NOVY 7530 Phantom Cable

SAFETY AND ASSEMBLY
REGULATIONS
Further information on Novy products, accessories and services may be found on the internet: www.novy.com.
These are the installation instructions for the appliance as shown on the front. The directions for use are in a separate booklet supplied with the appliance.
These installation instructions make use of a number of symbols. The meanings of the symbols are shown below.
| Symbol | Meaning | Action |
![]() | Indication | Explanation of an indication on the hood. |
![]() | Warning | This symbol indicates an important tip or a dangerous situation |
Observe this instruction in order to prevent injury and damage to property.
Warnings before installation
- This appliance complies with the applicable safety instructions. However, inexpert installation may cause personal injury or damage to the appliance.
- The appliance is intended exclusively for household use (preparation of food) and excludes all other domestic, commercial or industrial use. Do not use the appliance outside.
- Check the condition of the appliance and the installation fittings as soon as you remove them from the packaging.
Remove the appliance from the packaging with care. Do not use sharp knives to open the packaging. - Do not install the appliance if it is damaged, and in that case inform Novy.
- Check on the basis of the drawing A that all the materials for installation have been supplied. The grease filters are in the appliance.
- Novy is not liable for damage resulting from incorrect assembly, incorrect connection, incorrect use or incorrect operation.
- The installation and electrical connection of the appliance should be left to a recognised expert.
- Safety is guaranteed only with expert installation in accordance with the installation manual. The installing technician is responsible for proper operation at the installation location.
- For easier installation of the appliance, it is advisable to carry it out with at least 2 people.
- Read the directions for use and the installation instructions before installing and using this appliance. You will find important information here for the assembly and use of the appliance.
- Metal parts may have sharp edges, and you may injure yourself on them. For that reason, wear protective gloves during installation.
Installation instructions for the appliance
- Ensure that the structure on or in which the appliance is to be installed can bear its weight.
- To ensure correct installation, you must use a material which is sufficiently stable and suitable for both the structural conditions and the weight of the appliance.
- The appliance must not be fitted directly onto plasterboard or similar lightweight materials.
- Faulty or damaged parts may only be replaced by original Novy parts.
- The larger the distance between the appliance and the hob, the less easily the cooking vapours can be taken up by the appliance. For this reason, pay heed to the stated (recommended) installation height.
- If a different distance is specified in the installation instructions for the gas hob, the largest distance indicated applies.
- In order to ensure that the cooking vapours are taken up in an optimal way, the appliance, or the structure into which the appliance is being installed, should extend over the hob. When using your own structure, ensure that the appliance is installed centred above the hob.
- For optimal operation, the hob should not be larger than the appliance or the structure into which the appliance is installed.
Recirculation
The cooker hood can only be used as a recirculation cooker hood.
The cooking vapours are cleaned by the grease filters and an odour filter and returned to the kitchen.
Air supply
With an appliance with recirculation, there must be a minimum of ventilation in the room where the appliance has been installed/is positioned. Ventilation can be provided by the overall ventilation in the home or by tilting a window or opening a door.
Installation instructions for the outlet
- The appliance may only be connected with the power plug to a socket with earth (230 V – 50 Hz).
- If connection with a main plug is not possible, an all-pole isolating switch must be integrated into the permanent electrical installation according to the conditions of overvoltage category III and according to the installation regulations. Only a licensed professional may connect appliances without plugs.
- Safety is only assured when the appliance is connected to an earth cable in accordance with the instructions laid down.
- The appliance must be able to be disconnected from the power at any desired point.
- Do not use an extension cable for the connection to the electrical mains.
- Electric shock: never switch on a faulty appliance, this could cause an electric shock. Take the power plug out of the socket, or switch off at the distribution cabinet.
Contact the Novy service department.
- Repairs and replacing faulty or damaged wiring must only be carried out by technicians who have undergone instruction by Novy.
- Moisture that has got into the appliance may cause an electric shock. Do not use a high pressure or steam cleaner.
ACCESSORIES
Kit with longer hanging cables Optionally, an accessory with four longer cables of 3,5 metres can be ordered (item number 7530.100).
InTouch
InTouch offers you the possibility to control the Novy cooker hood from the Novy InTouch induction cooking plate. The ceiling hood may, as a default, be combined with InTouch induction cooking plates.
Visit the website for the different models of induction cooking plates with InTouch.
Further information on Novy products, accessories and services may be found on the internet: www.novy.com.
Novy recommends paying extra attention to the finishing of the ceiling surface. The Phantom has an uplight that will highlight imperfections in the plaster.
Check the smoothness of the ceiling, if necessary with an uplight, before starting the installation of the Phantom.
Do NOT remove the hood from the packaging.
The hood will be mounted while still in the box.
The recommended mounting height for an electric or ceramic cooking plate is min. 600 mm and max. 850 mm. The mounting height for a gas or induction cooking plate is min. 650 mm and max. 850 mm.
For correct mounting, use material that is sufficiently stable and suitable for the building situation and the weight of the cooker hood. The screws and plugs provided should only be used for concrete ceilings.
Type 7530 weight: 45 kg
Type 7540 weight: 51 kg
The appliance must not be fitted directly onto plasterboard or similar lightweight materials.

INSTALLATION
- Caution, do not install under voltage.
Ensure that the power circuit to which the device is connected is switched off. - Remove the lid of the packaging and take out the top cardboard packaging kit.
- Cut the tape of the cardboard packaging kit.
Fold the cardboard open. The inner sides of the cardboard contain 2 drilling templates.
There is a cardboard filling sheet between the two drilling templates.
CAUTION: In the type 7540 box, the frame profiles are located in the cardboard filling sheet.
Put all the material aside; you will need it in the next steps. - Do NOT remove the cooker hood from the packaging. The cooker hood is assembled from the box.
Open the sides of the box and check the cooker hood for broken glass.
- Take the cardboard with the images of the drilling templates and cut the cardboard at the indicated dotted lines to create two separate drilling templates.
Please note: 2 different drilling templates (type 7530 Phantom Cable or type 7540 Phantom Frame).
Choose the right drilling template according to the device you are going to mount. - Determine the centre of the cooker hood and draw a cross line on the ceiling.
Please note that the cooker hood must be mounted centrally above the hob.
- Turn the drilling template marked “FRONT” to the correct position. “FRONT” should be on the side where the person will be cooking in order to open the bottom panel in the right direction. Place the drilling template with the visible selected side down.Make sure the drawn cross line matches the arrows on the drilling template. Mark the 12 drill holes on the ceiling.
Please note that the power cable must end somewhere in the shaded rectangle.
Mark the 2 drill holes for the power cable’s pot on the ceiling.
The ideal position for the electrical connection is marked A.
For correct mounting, use material that is sufficiently stable and suitable for the building situation and the weight of the cooker hood.
The screws and plugs provided should only be used for concrete ceilings.
Type 7530 weight: 45 kg
Type 7540 weight: 51 kg
Remove the drilling template and drill the 12 holes using an 8-mm drill bit (if necessary, first drill a smaller diameter) and insert the plugs (906055). - Then drill the 2 holes for the power cable’s pot with a 5 mm drill bit. In the case of a false ceiling, the pass-through hole for the electrical connection must also be made. Mark and drill this hole (max. diameter 28 mm). Insert the 2 supplied plugs (7530084).
- Slide the steel suspension cables (7540030) from the top through the ceiling fixture (7530138). The end cap of the suspension cable disappears into the ceiling mount.
- Screw each ceiling fixture to the ceiling with 3 screws (906143).

- Slide the metal cover plate (7530039) over the cable and place it on the ceiling fixture. The cover plate magnetically clicks into place on the ceiling fixture.
- With two people, place the cardboard box on the worktop at the location where the cooker hood is to be installed. Turn the box so that the sticker on the top of the cooker hood that says “FRONT” is in the right position. “FRONT” must be on the side where the person will be cooking, in order to open the bottom panel in the right direction.
- Fold open the sides of the cardboard box and check the cooker hood for damage before continuing assembly.
- There are cable clamps in the cooker hood.
These lock the steel suspension cable. Slide the suspension cables into the cable clamp. The cable will lock automatically.
If you want to release the cable, you can press the
cable clamp and pull the cable at the same time.
Always support the cooker hood when doing this!
As soon as the cable clamp is no longer pressed, the cable will be locked.
When adjusting the suspension cables, the cooker hood must be supported to prevent it from falling down.
Adjust the height with 2 people.

- To further insert the cables, one person must hold the side of the cooker hood with cardboard box in the air while the other pushes the cables further into the cable clamps.
- Do this step by step, alternating left and right until the cooker hood hangs high enough to slide out the cardboard box from underneath.
- Remove the cardboard box and the packing blocks that protect the sides of the cooker hood.
- Now loosen the plastic screws by hand with which the transparent cover is fixed to the top of the cooker hood.
- Remove the protective film from both sides of the transparent cover.
Remove any fingerprints and place the transparent cover back on the cooker hood. Fix the transparent cover with the plastic screws by hand. Then do the same for the other three transparent covers. - Remove plastic bag monoblock filter Carefully remove the monoblock filter from the metal filter holder by sliding the filter to one side.
Remove the monoblock filter from the plastic bag and carefully replace the monoblock filter in the filter holder.
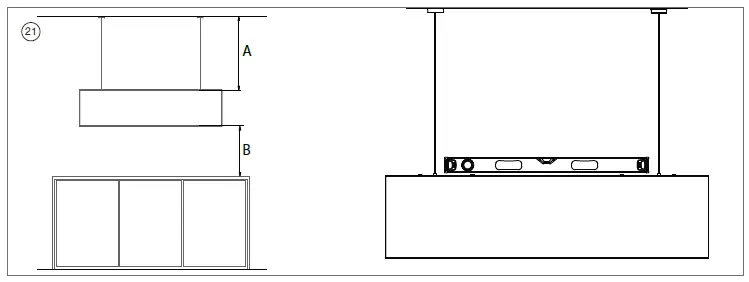
- Adjustment of the height
The recommended mounting height for an electrical or ceramic cooking plate is min. 600 mm and max. 850 mm (B).
The mounting height for a gas or induction cooking plate is min. 650 mm and max. 850 mm (B).
To avoid draughts above the cooking surface, the minimum distance between cooker hood and ceiling should be at least 250 mm(A).
The distance from the topside of the cooker hood to the ceiling can be adjusted from 250 to 1518 mm.
Do not exceed the maximum distance to the ceiling (1518 mm) to ensure the safety of the suspension cables (A).
As an accessory, 4 longer suspension cables (length 3.5 metres) including a longer power cable can be ordered (item number 7530100).
Adjust the width and depth of the cooker hood using a spirit level.
If you want to release the cable, you can press the cable clamp and pull the cable at the same time.
Always support the cooker hood! As soon as the cable clamp is no longer pressed, the cable will be locked.
- Slide the parts of the ceiling cap over the power cable in the order shown in the drawing.
Caution, do not install under voltage.
Ensure that the power circuit to which the device is connected is switched off.
- Secure the cooker hood power cable to the plastic housing (strain relief). Make sure that the power cable is not too long, so that it is easy to slide any excess length of power cable into the cooker hood in the following steps. The total length of the power cable depends on the distance between the ceiling cap and the power cable opening in the appliance. For a nice finish, it is possible to lead the power cable at right angles from the ceiling cap to the cooker hood using a self-adhesive tension band holder (step 28).
- Remove the insulation from the power cable of the cooker hood and strip the wire insulation from the three power wires with a stripper.
- Connect the power wires to a terminal block and connect them to the power cable. Make sure they are connected correctly. Observe the phase, neutral and earth connections as illustrated on the terminal block. Place the terminal block in the plastic housing.
- Attach the plastic housing to the ceiling with the flat disk in between, making sure that the raised edge on the flat disk is on the right side. Secure with two screws (7530085).

- Slide the metal pot over the assembly and click it into place with the small disc (fastening piece).
The visible length of the power cable can be regulated by sliding it into the hood.
- If the ceiling cap is mounted in the ideal position (indicated as A in the shaded rectangle of the drilling template), the visible excess length of the power cable can be simply pushed into the hood.
If the ceiling cap is placed anywhere else in the shaded rectangle of the drilling template, the power cable can be guided at right angles to the cooker hood by means of the supplied tension strap and self-adhesive tension strap holder (7530087+10237).

Proceed as follows:
1. Degrease the surface where the tension strap holder is to be glued by using the supplied degreasing cloth (661057).
2. Place the tension strap together with the tension strap holder around the power cable. Do not tighten it fully yet, so that everything can still move!
3. Hold the cable at a right angle downwards and stick the tensioning strap holder onto the cooker hood.
4. Tighten the tension strap. Any visible excess length of the power cable can be easily slid into the cooker hood.
Dimensions

NOVY nv behoudt zich het recht voor te allen tijde en zonder voorbehoud de constructie en de prijzen van haar producten te wijzigen.
NOVY nv
Noordlaan 6
B – 8520 KUURNE
Tel. 056/36.51.00
Fax 056/35.32.51
E-mail: [email protected]
www.novy.com
France: Tél: 0320.940662
Deutschland und Österreich: Tel: +49 (0)511.54.20.771
Nederland: Tel.: +31 (0)88-0119110
United Kingdom: +44 (0)207 866 2493
España: Tel.: +34 938 700 895
Italia: Tel.: +39 039.20.57.501





























