Titus ET115.24-NOM1 Hp Series Fan Coils

INTRODUCTION
Titus fan coils represent a prudent investment which can, with proper installation, operation, and regular maintenance, give trouble-free operation and long service. Your equipment is initially protected under the manufacturer’s standard warranty; however, this warranty is provided under the condition that the steps outlined in this manual for initial inspection, proper installation, regular periodic maintenance, and everyday operation of the equipment be followed in detail. This manual should be fully reviewed in advance of any actual work being done on the equipment. Should any questions arise, please contact your local Sales Representative BEFORE proceeding. The equipment covered by this manual is available with a vast variety of options and accessories. Consult the approved unit submittal, order acknowledgement, and other manuals for details on the options and accessories provided with the equipment on each project.
SAFETY SYMBOLS
The following symbols are used in this document to alert the reader to areas of potential hazard:
DANGER
indicates an imminently hazardous situation which, if not avoided, will result in death or serious injury.
WARNING
indicates a potentially hazardous situation which, if not avoided, could result in death or serious injury.
SAFETY PRECAUTIONS
The equipment covered by this manual is designed for safe and reliable operation when installed and operated within its design specification limits. To avoid personal injury or damage to equipment or property while installing or operating this equipment, it is essential that qualified, experienced personnel perform these functions using good judgment and safe practices. See the following cautionary statements.
ELECTRICAL SHOCK HAZARDS
All power must be disconnected prior to installation and servicing this equipment. More than one source of power may be present. Disconnect all power sources to avoid electrocution or shock injuries.
MOVING PARTS HAZARDS
Motor and Blower must be disconnected prior to opening access panels. Motors can start automatically, disconnect all power and control circuits prior to servicing to avoid serious crushing or dismemberment injuries.
HOT PARTS HAZARD
Electric Resistance heating elements must be disconnected prior to servicing. Electric Heaters may start automatically, disconnect all power and control circuits prior to servicing to avoid burns.
CAUTION
identifies a hazard which could lead to damage to the machine, damage to other equipment and/or environmental pollution. Usually an instruction will be given, together with a brief explanation.
NOTE
is used to highlight additional information which may be helpful to you.
Check that the unit assembly and component weights can be safely supported by rigging and lifting equipment. All assemblies must be adequately secured during lifting and rigging by temporary supports and restraints until equipment is permanently fastened and set in its final location. All unit temporary and permanent sup-ports must be capable of safely sup-porting the equipment’s weight and any additional live or dead loads that may be encountered. All supports must be designed to meet applicable local codes and ordinances. All fastening devices must be designed to mechanically lock the assembly in place without the capability of loosening or breaking away due to system operation and vibration. Protect adjacent flammable materials when brazing. Use flame and heat protection barriers where needed. Have fire extinguisher available and ready for immediate use.
SECTION ONE – RECEIPT & INITIAL INSTALLATION CODE COMPLIANCE
This equipment has been manufactured and certified in accordance with UL 1995-Standard for Safety, Heating and Cooling Equipment (CAN/CSA C22.2 NO 236-M90) and bears the Electrical Testing Laboratories (ETL) Mark under ETL Control No: 41629.
RECEIPT & INITIAL INSTALLATION
NO ATTEMPT SHOULD BE MADE TO HANDLE, INSTALL, OR SERVICE ANY UNIT WITHOUT FOLLOWING SAFE PRACTICES REGARDING MECHANICAL EQUIPMENT.
- All power must be disconnected before any installation or service should be attempted. More than one power source may be supplied to a unit. Power to remote mounted control devices may not be supplied through the unit. Never wear bulky or loose fitting clothing when working on any mechanical equipment. Gloves should only be worn when required for proper protection from heat or other possible injury. Safety glasses or goggles should always be worn when drilling, cut-ting, or working with chemicals such as refrigerants or lubricants.
- Never pressurize any equipment beyond specified operating pressures. Always pressure test with an inert fluid or gas such as clear water or dry nitrogen to avoid possible damage or injury in the event of a leak or component failure during testing.
- Always protect adjacent flammable material when welding or soldering. Use suitable heat shield material to contain sparks or drops of solder. Have fire extinguisher available for use when welding or brazing.
The manufacturer assumes no responsibility for personal injury or property damage resulting from improper or unsafe practices during the handling, installation, service, or operation of any equipment.
UNPACKING & INSPECTION
All units are carefully inspected at the factory throughout the manufacturing process under a strict detailed quality assurance program, and where possible, all major components and subassemblies are carefully tested for proper operation and verified to be in full compliance with the factory manufacturing documents. Customer furnished components such as control valves, switches and DDC controls are not factory tested. Each unit is carefully packaged for shipment to avoid damage during normal transport and handling. The equipment should always be stored in a dry place in the proper orientation as marked on the carton.
All shipments are made F.O.B. factory and it is the responsibility of the receiving party to inspect the equipment upon arrival. Any obvious damage to the carton and/or its contents should be recorded on the bill of lading and a claim should be filed with the freight carrier. After determining the condition of the carton exterior, carefully remove each unit from the carton and inspect for hidden damage. At this time check to make sure that “furnished only” items such as switches, thermostats, etc. are accounted for. Any hidden damage should be recorded and immediately reported to the carrier and a claim filed as before. In the event a claim for shipping damage is filed, the unit, shipping carton, and all packing must be retained for physical inspection by the freight carrier. All equipment should be stored in the factory-shipping carton with internal packing in place until installation.
At the time of receipt, the equipment type and arrangement should be verified against the order documents. Should any discrepancy be found, the local Sales Representative should be notified immediately so that the proper action may be instituted. Should any question arise concerning warranty repairs, the factory must be notified BEFORE any corrective action is taken. Where local repairs or alterations can be accomplished, the factory must be fully informed as to the extent and expected cost of those repairs before work is begun. Where factory operations are required, the factory must be contacted for authorization to return equipment and a Return Authorization Number will be issued. Unauthorized return shipments of equipment and shipments not marked with an authorization number will be refused. In addition, the manufacturer will not accept any claims for unauthorized expenses.
HANDLING & INSTALLATION
While all equipment is designed for durability and fabricated for sturdy construction and may present a rugged appearance, great care must be taken to assure that no force or pressure be applied to the coil, piping or drain stub-outs during handling. Also, depending on the options and accessories, some units could contain delicate components that may be damaged by improper handling. Wherever possible, all units should be maintained in an upright position and handled by the chassis as close as possible to the mounting point locations. In the case of a full cabinet unit, the unit must obviously be handled by the exterior casing. This is acceptable providing the unit is again maintained in an upright position and no impact forces are applied that may damage internal components, access panels, or painted surfaces. The equipment covered in this manual IS NOT suitable for outdoor installations or hazardous/explosive environments. The equipment should never be stored or installed where it may be subjected to a hostile environment such as rain, snow, extreme temperatures or corrosive or chemical laden atmospheres.
During and after installation, special care must be taken to prevent foreign material such as paint, plaster, and drywall dust from being deposited in the drain pan or on the motor or blower wheels. Failure to do so may have serious adverse effects on unit operation and in the case of the motor and blower assembly, may result in immediate or premature failure. All manufacturers’ warranties are void if foreign material is allowed to be deposited on the motor or blower wheels of any unit. Some units and/or job conditions may require some form of temporary covering during construction. While the manufacturer does not become involved in the design and selection of support methods and components, it should be noted that unacceptable system operating characteristics and/or performance might result from improper or inadequate unit structural support. In addition, adequate clearance must be provided for service and removal of the equipment and its accessory components. Anchoring the equipment in place is accomplished by using the mounting points provided and positioning the unit to maintain the unit on a LEVEL plane. All units are supplied with hanging holes for use with all thread rods.
DRAIN PAN

The sloped, insulated drain pan can be equipped with a secondary drain connection. Standard drain pans are externally insulated, single wall galvanized steel. The drain pan is easily removable for cleaning. The optional auxiliary drip pan to catch condensed moisture from valves and piping is easily attachable to the drain pan. Care must be taken to ensure that the unit drain pan does not slope away from the outlet connection.
AUXILIARY DRIP PAN

The auxiliary drip pan mounts directly to the unit drain pan using (2) #10 x 1/2” screws. After the connections are completed, the system should then be tested for leaks. Since some components are not designed to hold pressure with a gas, hydronic systems should be tested with water.
TOOL-FREE DRAIN PAN REMOVAL
For drain pan removal, follow the four-step process illustrated below.
NOTE
To prevent condensation drip outside of the drain pan area, drain pan retention clip must be returned to its original engagement position within the drain pan area (see below).
Step 1: Locate Drain Pan Retention Clip. Press Upward Until Clip Clears Edge Of Drain Pan.

Step 2: Visually Locate Drain Pan Retention Studs.

Step 3: Apply Slight Upward Pressure to Drain Pan.

Step 4: Disengage Pan Via 45° Downward Motion, Then Remove Drain Pan From Unit.

AUXILIARY DRIP PAN REMOVAL
The auxiliary drip pan is easily removable for cleaning. For auxiliary drip pan removal, follow the two-step process illustrated below, by locating and then removing the two (2) retaining screws which secure the auxiliary drip pan to the side of the main unit plenum.
Step 1: Locate The Two (2) Retaining Screws Which Secure The Auxiliary Drip Pan To The Main Unit Plenum.

Step 2: Remove Both Retaining Screws And Carefully Remove The Auxiliary Drip Pan From The Unit.

CAUTION
All water coils must be protected from freezing after initial filling with water. Even if the system is drained, unit coils may still hold enough water to cause damage when exposed to temperatures below freezing.
COOLING/HEATING MEDIUM CONNECTIONS
Refrigerant systems should be tested with dry nitrogen rather than air to prevent the introduction of moisture into the system. In the event that leaking or defective components are discovered, the Sales Representative must be notified BEFORE any repairs are attempted. All leaks should be repaired before proceeding with the installation. After system integrity has been established the piping should be insulated in accordance with the project specifications. ALL chilled water piping and valves or refrigerant suction piping not located over drain pans must be insulated to prevent damage from sweating. This includes factory and field piping inside the unit cabinet. The drain should always be connected and piped to an acceptable disposal point. For proper moisture carry-off, the drain piping should be sloped away from the unit at least 1/8” per foot. A drain trap may be required by local codes and it is strongly recommended for odor containment.
Condensate Trap

RETURN AIR LOCATION
This unit is equipped with a field reversible rear or bottom ducted air return for plenum style units. To change the return air location, remove the reversible plenum box panel and the filter rack. Rotate both the reversible panel and filter rack 180 degrees. Replace the reversible panel in the old filter rack position and fasten using the supplied screws. Fasten the filter rack to the location where the reversible panel was and replace the filter(s) as described above.

Bottom Return

Rear Return
PLENUM BOX SERVICE PANEL
The service panel on the plenum box is easily removable by removing the screws located on the sides and bottom of the service panel.
PLENUM BOX REMOVAL
In most cases this unit is fully serviceable without the need for removal of the plenum box. However, should the need arise, the plenum box is easily removable by removing the screws attaching the plenum box to the sides, top and rear of the coil casing.

COILS
All fan coils are available in 2 or 4 pipe configurations. On units with water coils, the maximum water pressure applied to the unit should never exceed 450 PSIG at 200°F. On units with steam heating coils, the maximum steam pressure applied to the unit should never exceed 15 PSIG. The drain piping and steam trap should be sized and routed to allow for proper condensate flow. (Minimum ambient temperature 35°F. Coils may freeze.).
PIPING CONNECTIONS
Toxic residues and loose particles resulting from manufacturing and field piping techniques such as joint compounds, soldering flux, and metal shavings may be present in the unit and the piping system. Special consideration must be given to system cleanliness when connecting to solar, domestic or potable water systems. Submittals and Product Catalogs detailing unit operation, controls, and connections should be thoroughly reviewed BEFORE beginning the connection of the various cooling and/or heating mediums to the unit. All accessory valve packages should be installed as required, and all valves should be checked for proper operation. If coil and valve package connections are to be made with “sweat” or solder joint, care should be taken to assure that no components in the valve package are subjected to a high temperature which may damage seals or other materials. Many two-position electric control valves, depending on valve operation, are provided with a manual-opening lever. This lever should be placed in the “open” position during all soldering or brazing operations. Valve bodies should be wrapped with a wet rag to help dissipate heat encountered during brazing. Use a brazing alloy to make connections. Soft solder is not recommended. If the valve package connection at the coil is made with a union, the coil side of the union must be prevented from twisting (“backed up”) during tightening to prevent damage to the coil tubing. Over-tightening must be avoided to prevent distorting the union seal surface and destroying the union. In the case of field installed valves and piping, the chilled water valve cluster (or expansion valve on DX units) should be installed in such a way that any dripping or sweating is contained in the auxiliary drip pan or other device. Valves and TXV’s should be secured or supported to avoid damage to coil headers or distributor tubes.
DUCTWORK CONNECTIONS
All ductwork and/or supply and return grilles should be installed in accordance with the project plans and specifications. If not included on the unit or furnished from the factory, Titus supply and return grilles are available in a variety of types.
All units must be installed in non-combustible areas. Some models are designed to be connected to ductwork with a MINIMUM amount of external static pressure. Consult the approved submittals and the product catalog for unit external static pressure limitations. Units provided with outside air for ventilation should have some form of low temperature protection to prevent coil freeze-up. Outside air should be pretreated for best results. It should be noted that none of these methods would adequately protect a coil in the event of power failure. The safest method of freeze protection is to use glycol in the proper percent solution for the coldest expected air temperature. Consult glycol supplier literature for correct solution ratios.
The manufacturer assumes no responsibility for undesirable system operation due to improper design, equipment or component selection, and/or installation of ductwork, grilles, and other field supplied components.
ELECTRICAL CONNECTIONS
ELECTRICAL SHOCK HAZARDS
All power must be disconnected prior to installation and servicing this equipment. More than one source of power may be present. Disconnect all power sources to avoid electrocution or shock injuries.
The electrical service to the unit should be compared to the unit nameplate to verify compatibility. The routing and sizing of all conduit, and the type and sizing of all wiring and other electrical components such as circuit breakers, disconnect switches, etc. should be determined by the individual job requirements and should not be based on the size and/or type of connection provided on the equipment. All installations should be made in compliance with all governing codes and ordinances. Compliance with all codes is the responsibility of the installing contractor. The unit nameplate lists the unit electrical characteristics such as the required supply voltage, fan and heater amperage and required circuit ampacities. The unit-wiring diagram shows all unit and field wiring. Since each project is different and each unit on a project may be different, the installer must be familiar with the wiring diagram and nameplate on the unit BEFORE beginning any wiring. This unit is not acceptable for installation in hazardous/explosive areas.
CONTROL ENCLOSURE
The optional electrical control enclosure provides access to the electrical compartment. This compartment houses all electric heat and control components. Terminal strips are furnished for simple power and control wiring connections. Multiple knockouts allow wiring entries from either side of the compartment.

All components furnished for field installation, by either the factory or the controls contractor should be located and checked for proper function and compatibility. All internal components should be checked for shipping damage and all electrical connections should be tightened to minimize problems during start-up. Any devices such as fan switches or thermostats that have been furnished from the factory for field installation must be wired in strict accordance with the applicable wiring diagrams. Failure to do so could result in personal injury or damage to components and will void all manufacturers’ warranties. The fan motor(s) should never be controlled by any wiring or device other than the factory furnished switch or thermostat/switch combination, without factory authorization. All field wiring should be done in accordance with governing codes and ordinances. Any modification of the unit wiring without factory authorization will result in voiding of all factory warranties and will nullify any agency listings. The manufacturer assumes no responsibility for any damages and/or injuries resulting from improperly field installed or wired components.
MODEL THH HORIZONTAL FAN COIL Optional Telescoping Bottom Panel Assembly
OPTIONAL TELESCOPING BOTTOM PANEL
The telescoping bottom panel allows for fully recessing the unit while permitting service access into the ceiling plenum. The architectural ceiling panel is finished with a durable powder coat paint. For typical installation instructions, dimensions, and recommended ceiling cut-out dimensions, please refer to pages 11-12 of this manual.

Optional Telescoping Bottom Panel Assembly
NOTE
Portions of the inlet louver not directly below unit inlet may require covering in the field on applications where infiltration of ceiling plenum air into space is undesired. Telescoping skirt and collar assembly must be field adjusted to assure a proper fit between filter frame and louvered inlet panel assembly. Refer to assembly submittal drawings for specific dimensions.
AIR SYSTEM BALANCING
MODEL THH HORIZONTAL FAN COIL
Optional Telescoping Bottom Panel Assembly, Typical Installation Instructions

TABLE 1:
| DESCRIPTION | UNIT SIZE 02 03 04 06 08 09 10 12 | |||||||
| Telescoping bottom panel | 10 [5] | 11 [5] | 12 [5] | 14 [6] | 16 [7] | 17 [8] | 20 [9] | 21 [10] |


TELESCOPING / FILTER BOTTOM ACCESS PANEL FOR USE WITH BOTTOM & FREE RETURN UNITS
NOTES:
- ALL DIMENSIONS ARE IN INCHES [mm] AND ARE +/- 1/8″
- 1″ TAW FILTER STANDARD, 1″ OR 2″ PLEATED FILTERS ARE OPTIONAL
- BOTTOM PANELS ARE REMOVABLE
- TOTAL TELESCOPING ADJUSTMENT IS 3 1/2″ TO 6 1/2″
- FILTER AND GRILLE SIZES ARE THE SAME FOR FOR EACH UNIT SIZE IN THE TBH SERIES-A PRODUCT LINE.
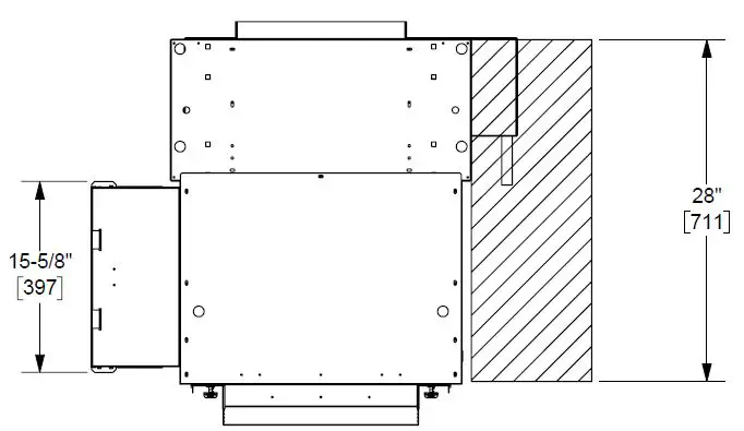
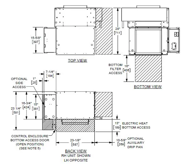
MODEL THHP REAR RETURN
Service And Clearance Requirements
Drawings not for installation purposes. Refer to unit and size-specific submittal drawings for installation.


NOTES:
- All chilled water piping that projects beyond the condensate pan or the optional auxiliary drip pan must be
field insulated by others. - Optional Auxiliary Drip Pan (not shown) is mounted on the outlet side of the drain pan.
- Drain pan is installed with the outlet tube(s) on cooling coil connection end of coil on 4-pipe units with
optional opposite end connection. - Dimensions shown on this drawing apply to standard CW and HW valve packages. Refer to the Piping Package Catalog for valve package code details. Contact factory for details on valve packages using non-standard or customer furnished components.
- Provide sufficient clearance to access electrical components and comply with all applicable codes and ordinances.
MODEL THHP BOTTOM RETURN
Service And Clearance Requirements
Drawings not for installation purposes. Refer to unit and size-specific submittal drawings for installation.

NOTES:
- All chilled water piping that projects beyond the condensate pan or the optional auxiliary drip pan must be
field insulated by others. - Optional Auxiliary Drip Pan (not shown) is mounted on the outlet side of the drain pan.
- Drain pan is installed with the outlet tube(s) on cooling coil connection end of coil on 4-pipe units with
optional opposite end connection. - Dimensions shown on this drawing apply to standard CW and HW valve packages. Refer to the Piping
Package Catalog for valve package code details. Contact factory for details on valve packages using
non-standard or customer furnished components. - Provide sufficient clearance to access electrical components and comply with all applicable codes and ordinances.
MODEL THHP WITH MIXING BOX
Service And Clearance Requirements
Drawings not for installation purposes. Refer to unit and size-specific submittal drawings for installation.


NOTES:
- All chilled water piping that projects beyond the condensate pan or the optional auxiliary drip pan must be
field insulated by others. - Optional Auxiliary Drip Pan (not shown) is mounted on the outlet side of the drain pan.
- Drain pan is installed with the outlet tube(s) on cooling coil connection end of coil on 4-pipe units with
optional opposite end connection. - Dimensions shown on this drawing apply to standard CW and HW valve packages. Refer to the Piping Package Catalog for valve package code details. Contact factory for details on valve packages using non-standard or customer furnished components.
- Provide sufficient clearance to access electrical components and comply with all applicable codes and ordinances.
MODEL THHE
Service And Clearance Requirements
Drawings not for installation purposes. Refer to unit and size-specific submittal drawings for installation.


NOTES:
- All chilled water piping that projects beyond the condensate pan or the optional auxiliary drip pan must be
field insulated by others. - Optional Auxiliary Drip Pan (not shown) is mounted on the outlet side of the drain pan.
- Drain Pan is installed with the outlet tube(s) on cooling coil connection end of coil on 4-pipe units with
optional opposite end connection. - Dimensions shown on this drawing apply to standard CW and HW valve packages. Refer to the Piping
Package Catalog for valve package code details. Contact factory for details on valve packages using
non-standard or customer furnished components. - Provide sufficient clearance to access electrical components and comply with all applicable codes and ordinances.
MODEL THHC
Service And Clearance Requirements
Drawings not for installation purposes. Refer to unit and size-specific submittal drawings for installation.


NOTES:
- All chilled water piping that projects beyond the condensate pan or the optional auxiliary drip pan must be field insulated by others.
- Optional Auxiliary Drip Pan (not shown) is mounted on the outlet side of the drain pan.
- Drain pan is installed with the outlet tube(s) on cooling coil connection end of coil on 4-pipe units with optional opposite end connection.
- Dimensions shown on this drawing apply to standard CW and HW valve packages. Refer to the Piping Package Catalog for valve package code details. Contact factory for details on valve packages using non-standard or customer furnished components.
- Provide sufficient clearance to access electrical components and comply with all applicable codes and ordinances.
SECTION TWO – START-UP
GENERAL
Before beginning any start-up operation, the start-up personnel should familiarize themselves with the unit, options and accessories, and control sequence to understand the proper system operation. All personnel should have a good working knowledge of general start-up procedures and have the appropriate start-up and balancing guides available for consultation.
The initial step in any startup operation should be a final visual inspection. All equipment, plenums, duct-work, and piping should be inspected to verify that all systems are complete and properly installed and mounted, and that no debris or foreign articles such as paper or drink cans are left in the units or other areas. Each unit should be checked for loose wires, free blower wheel operation, and loose or missing access panels or doors. Except as required during start-up and balancing operations, no fan coil units should be operated without all the proper ductwork attached, supply and return grilles in place, and all access doors and panels in place and secure. A clean filter of the proper size and type must also be installed. Failure to do so could result in damage to the equipment or building and furnishings, and/or void all manufacturers’ warranties. Fan coils are not intended for temporary heat/cool or ventilation. Units are not designed or equipped to operate in dusty construction environments.
Operation of the units in conditions outlined above could result in damage to the equipment or building and furnishings and/or void all manufacturer’s warranties.
COOLING/HEATING SYSTEM
Prior to the water system start-up and balancing, the chilled/hot water systems should be flushed to clean out dirt and debris, which may have collected in the piping during construction. During this procedure, all unit service valves must be in the closed position. This prevents foreign matter from entering the unit and clogging the valves and metering devices. Strainers should be installed in the piping mains to prevent this material from entering the units during normal operation. During system filling, air venting from the unit is accomplished by the use of the standard manual or optional automatic, air vent fitting installed on the coil. In the case of the manual air vent fitting, the screw should be turned counterclockwise no more than 1-½ turns to operate the air vent. Automatic air vents may be unscrewed one turn counterclockwise to speed initial venting but should be screwed in for automatic venting after start-up operations. Check to ensure that no leaks are prevalent at the coils, coil connections, piping packages, etc.
The air vent provided on the unit is not intended to replace the main system air vents and may not release air trapped in other parts of the system. Inspect the entire system for potential air traps and vent those areas as required, independently. In addition, some systems may require repeated venting over a period of time to properly eliminate air from the system.
All ductwork must be complete and connected, and all grilles, filters, access doors and panels must be properly installed to establish actual system operating conditions BEFORE beginning air balancing operations.
Each individual unit and attached ductwork is a unique system with its own operating characteristics. For this reason, air balancing is normally done by balance specialists who are familiar with all procedures required to properly establish air distribution and fan system operating conditions. These procedures should not be attempted by unqualified personnel.
After the proper system operation is established, the actual unit air delivery and the actual fan motor amperage draw for each unit should be recorded in a convenient place for future reference such as the inspection, installation, & start-up check sheet, a copy of which is provided within this manual. Contact the Sales Representative or the factory for additional copies of this sheet.
WATER SYSTEM BALANCING
A complete knowledge of the hydronic system, its components, and controls is essential to proper water system balancing and this procedure should not be attempted by unqualified personnel. The system must be complete and all components must be in operating condition BEFORE beginning water system balancing operations. Each hydronic system has different operating characteristics depending on the devices and controls in the system. The actual balancing technique may vary from one system to another. After the proper system operation is established, the appropriate system operating conditions such as various water temperatures and flow rates should be recorded in a convenient place for future reference. Before and during water system balancing, conditions may exist which can result in noticeable water noise or undesired valve operation due to incorrect system pressures. After the entire system is balanced, these conditions will not exist on properly designed systems.
CONTROLS OPERATION
Before proper control operation can be verified all other systems must be in proper operation. The correct water and air temperatures must be present for the control function being tested. Some controls and features are designed to not operate under certain conditions or beyond designed range. A wide range of controls and electrical options and accessories may be used with the equipment covered in this manual. Consult the approved unit submittals, order acknowledgement, and other manuals for detailed information regarding each individual unit and its controls. Since controls and features may vary from one unit to another, care should be taken to identify the controls to be used on each unit and their proper control sequence. Information provided by component manufacturers regarding installation, operation, and maintenance of their individual controls is available upon request.
PHYSICAL DATA
Each unit on a job will have its own unique operating environment and conditions that may dictate a maintenance schedule for that unit that is different from other equipment on the job. A formal schedule of regular maintenance and an individual unit log should be established and maintained. This will help to achieve the maximum performance and service life of each unit on the job. See Appendix for a list of available installation, operation and maintenance manuals.
NOTE
Information regarding safety precautions contained in the preface at the beginning of this manual should be followed during any service and maintenance operations. For more detailed information concerning service operations, consult your Sales Representative or the Factory.
MOTOR/BLOWER ASSEMBLY
The type of fan operation is determined by the control components and their method of wiring, and may vary from unit to unit. Refer to the wiring diagram for each unit for that unit’s individual operating characteristics. Motors are permanently lubricated, PSC or ECM type and do not require field lubrication.
FAN ASSEMBLY REMOVAL
Each fan assembly is easily removed from the unit at four ¼” weld studs in the fan deck. In most applications the fan assembly can be removed without disconnecting the ductwork for service access to motors and blowers at, or away from the unit.
Motor & Fan Data
|
UNIT SIZE |
FAN SPEED | MOTOR HP (Quantity) | # OF FANS | Amps @ 120V/1/60 | ||||||
| PSC | ECM | ECM 3-SPD | ||||||||
| PSC | ECM | ECM3 | FLA | FLA | 3-Phase Neutral Current | FLA | 3-Phase Neutral Current | |||
| 06 | High | (1) 1/6 | (1) 1/3 | (1) 1/3 | 1 | 2.6 | 5 | 8.7 | 4.8 | 8.3 |
| Medium | (1) 1/8 | 2.1 | ||||||||
| Low | (1) 1/10 | 1.8 | ||||||||
| 08 | High | (1) 1/4 | (1) 1/3 | (1) 1/3 | 1 | 4.4 | 5 | 8.7 | 4.8 | 8.3 |
| Medium | (1) 1/6 | 3.6 | ||||||||
| Low | (1) 1/8 | 3.0 | ||||||||
| 10 | High | (1) 1/4 | (1) 1/3 | (1) 1/3 | 1 | 4.9 | 5 | 8.7 | 4.8 | 8.3 |
| Medium | (1) 1/5 | 4.1 | ||||||||
| Low | (1) 1/6 | 3.2 | ||||||||
| 12 | High | (2) 1/6 | (1) 1/2 | (2) 1/3 | 2 | 5.2 | 7.7 | 13.3 | 9.6 | 16.6 |
| Medium | (2) 1/8 | 4.2 | ||||||||
| Low | (2) 1/10 | 3.6 | ||||||||
| 14 | High | (2) 1/4 | (2) 1/3 | (2) 1/3 | 2 | 8.8 | 10 | 17.3 | 9.6 | 16.6 |
| Medium | (2) 1/6 | 7.2 | ||||||||
| Low | (2) 1/8 | 6.0 | ||||||||
| 16 | High | (2) 1/4 | (2) 1/3 | (2) 1/3 | 2 | 9.8 | 10 | 17.3 | 9.6 | 16.6 |
| Medium | (2) 1/5 | 8.2 | ||||||||
| Low | (2) 1/6 | 6.4 | ||||||||
| 18 | High | (2) 1/4 | (2) 1/3 | (2) 1/3 | 2 | 9.8 | 10 | 17.3 | 9.6 | 16.6 |
| Medium | (2) 1/5 | 8.2 | ||||||||
| Low | (2) 1/6 | 6.4 | ||||||||
| 20 | High | (2) 1/4 | (2) 1/2 | (2) 1/2 | 2 | 9.8 | 15.4 | 26.7 | 9.6 | 16.6 |
| Medium | (2) 1/5 | 8.2 | ||||||||
| Low | (2) 1/6 | 6.4 | ||||||||
|
UNIT SIZE |
FAN SPEED | MOTOR HP (Quantity) | # OF FANS | Amps @ 208V-230V/1/60 | ||||||
| PSC | ECM | ECM 3-SPD | ||||||||
| PSC | ECM | ECM3 | FLA | FLA | 3-Phase Neutral Current | FLA | 3-Phase Neutral Current | |||
| 06 | High | (1) 1/6 | (1) 1/3 | (1) 1/3 | 1 | 1.0 | 2.8 | 4.8 | 2.8 | 4.8 |
| Medium | (1) 1/8 | 0.9 | ||||||||
| Low | (1) 1/10 | 0.6 | ||||||||
| 08 | High | (1) 1/4 | (1) 1/3 | (1) 1/3 | 1 | 1.6 | 2.8 | 4.8 | 2.8 | 4.8 |
| Medium | (1) 1/6 | 1.0 | ||||||||
| Low | (1) 1/8 | 0.8 | ||||||||
| 10 | High | (1) 1/4 | (1) 1/3 | (1) 1/3 | 1 | 2.0 | 2.8 | 4.8 | 2.8 | 4.8 |
| Medium | (1) 1/5 | 1.4 | ||||||||
| Low | (1) 1/6 | 1.2 | ||||||||
| 12 | High | (2) 1/6 | (1) 1/2 | (2) 1/3 | 2 | 2.0 | 4.3 | 7.4 | 5.6 | 9.7 |
| Medium | (2) 1/8 | 1.8 | ||||||||
| Low | (2) 1/10 | 1.2 | ||||||||
| 14 | High | (2) 1/4 | (2) 1/3 | (2) 1/3 | 2 | 3.2 | 5.6 | 9.7 | 5.6 | 9.7 |
| Medium | (2) 1/6 | 2.0 | ||||||||
| Low | (2) 1/8 | 1.6 | ||||||||
| 16 | High | (2) 1/4 | (2) 1/3 | (2) 1/3 | 2 | 4.0 | 5.6 | 9.7 | 5.6 | 9.7 |
| Medium | (2) 1/5 | 2.8 | ||||||||
| Low | (2) 1/6 | 2.4 | ||||||||
| 18 | High | (2) 1/4 | (2) 1/3 | (2) 1/3 | 2 | 4.0 | 5.6 | 9.7 | 5.6 | 9.7 |
| Medium | (2) 1/5 | 2.8 | ||||||||
| Low | (2) 1/6 | 2.4 | ||||||||
| 20 | High | (2) 1/4 | (2) 1/2 | (2) 1/2 | 2 | 4.0 | 8.6 | 14.9 | 5.6 | 9.7 |
| Medium | (2) 1/5 | 2.8 | ||||||||
| Low | (2) 1/6 | 2.4 | ||||||||
NOTES:
- Motor electrical data is nameplate data. Actual data will vary with application.
- Motors nameplated for 208-230/1/60. Data is at 230 volts.
- ECM motors operated on 208/1/60 power result in reduced airflow.
|
UNIT SIZE |
FAN SPEED | MOTOR HP (Quantity) | # OF FANS | Amps @ 277V/1/60 | ||||||
| PSC | ECM | ECM 3-SPD | ||||||||
| PSC | ECM | ECM3 | FLA | FLA | 3-Phase Neutral Current | FLA | 3-Phase Neutral Current | |||
| 06 | High | (1) 1/6 | (1) 1/3 | (1) 1/3 | 1 | 0.9 | 2.6 | 4.5 | 2.6 | 4.5 |
| Medium | (1) 1/8 | 0.8 | ||||||||
| Low | (1) 1/10 | 0.7 | ||||||||
| 08 | High | (1) 1/4 | (1) 1/3 | (1) 1/3 | 1 | 1.3 | 2.6 | 4.5 | 2.6 | 4.5 |
| Medium | (1) 1/6 | 0.8 | ||||||||
| Low | (1) 1/8 | 0.6 | ||||||||
| 10 | High | (1) 1/4 | (1) 1/3 | (1) 1/3 | 1 | 1.9 | 2.6 | 4.5 | 2.6 | 4.5 |
| Medium | (1) 1/5 | 1.6 | ||||||||
| Low | (1) 1/6 | 1.3 | ||||||||
| 12 | High | (2) 1/6 | (1) 1/2 | (2) 1/3 | 2 | 1.8 | 4.1 | 7.1 | 5.2 | 9.0 |
| Medium | (2) 1/8 | 1.6 | ||||||||
| Low | (2) 1/10 | 1.4 | ||||||||
| 14 | High | (2) 1/4 | (2) 1/3 | (2) 1/3 | 2 | 2.6 | 5.2 | 9.0 | 5.2 | 9.0 |
| Medium | (2) 1/6 | 1.6 | ||||||||
| Low | (2) 1/8 | 1.2 | ||||||||
| 16 | High | (2) 1/4 | (2) 1/3 | (2) 1/3 | 2 | 3.8 | 5.2 | 9.0 | 5.2 | 9.0 |
| Medium | (2) 1/5 | 3.2 | ||||||||
| Low | (2) 1/6 | 2.6 | ||||||||
| 18 | High | (2) 1/4 | (2) 1/3 | (2) 1/3 | 2 | 3.8 | 5.2 | 9.0 | 5.2 | 9.0 |
| Medium | (2) 1/5 | 3.2 | ||||||||
| Low | (2) 1/6 | 2.6 | ||||||||
| 20 | High | (2) 1/4 | (2) 1/2 | (2) 1/2 | 2 | 3.8 | 8.2 | 14.2 | 5.2 | 9.0 |
| Medium | (2) 1/5 | 3.2 | ||||||||
| Low | (2) 1/6 | 2.6 | ||||||||
NOTES:
- Motor electrical data is nameplate data. Actual data will vary with application.
- Motors nameplated for 208-230/1/60. Data is at 230 volts.
- ECM motors operated on 208/1/60 power result in reduced airflow.
INSPECTION & START-UP CHECKLIST
Receiving & Inspection
- Unit Received Undamaged
- Unit Arrangement/Hand Correct
Handling & Installation
- Unit Mounted Level & Square
- Proper Electrical Service Provided
- Proper Service Switch/Disconnect Provided
- Proper Access Provided For Unit & Accessories
- Proper Overcurrent Protection Provided
- Proper Chilled Water Line Size to Unit
- Proper Refrigerant Line Sizes to Unit
Cooling/Heating Connections
- Protect Valve Package Components From Heat
- Connect Field Piping to Unit
- Install Drain Line & Traps as Required
- Install Condensate Pan Under Piping as Required
Ductwork Connections
- Install Ductwork, Fittings & Grilles as Required
- Control Outside Air for Freeze Protection
Electrical Connections
- Refer to Unit Wiring Diagram
- All Field Wiring in Code Compliance
Unit Startup
- General Visual Unit & System Inspection
- Record Ambient Temperature
- Close All Unit Isolation Valves
- Fill Systems With Water/Refrigerant
- All Ductwork & Grilles in Place
- Start Fans, Etc.
- Check All Ductwork & Units for Air Leaks
- Record All Final Settings for Future Use
- Check All Dampers for Proper Operation
- Unit Received Complete as Ordered
- Unit Structural Support Complete & Correct
- Proper Steam Condensate Trap on Return Line
- All Services to Unit in Code Compliance
- Proper Hot Water Line to Unit
- Proper Steam Line Sizes to Unit
- Proper Steam Supply Pressure to Unit (15psi Max)
- All Shipping Screws & Braces Removed
- Mount Valve Packages
- Pressure Test All Piping for Leaks
- Insulate All Piping as Required
- Connect Supply and Return Pipe to Correct Coil Connections
- Proper Supply/Return Grille Types & Sizes Used
- Insulate All Ductwork as Required
- Connect Incoming Power Service or Services
- SCR Fan Speed Control Wired to High Speed
- Verify Proper Heating Operation
- Record Electrical Supply Voltage
- Check All Wiring for Secure Connections
- Flush Water Systems
- Vent Water Systems as Required
- All Unit Panels & Filters In Place
- Check for Overload Condition of All Units
- Balance Air Systems as Required
- Check Piping & Ductwork for Vibration
- Verify Proper Cooling Operation
- Reinstall All Covers & Access Panels
SECTION FOUR – NORMAL OPERATION & PERIODIC MAINTENANCE
Should the assembly require more extensive service, the motor/blower assembly may be removed from the unit to facilitate such operations as motor or blower wheel/housing replacement, etc. Dirt and dust should not be allowed to accumulate on the blower wheel or housing. This can result in an unbalanced blower wheel condition that can damage a blower wheel or motor. The wheel and housing may be cleaned periodically using a vacuum cleaner and a brush taking care not to dislodge the factory balancing weights on the blower wheel blades. To remove the motor from the fan, disconnect the motor wire leads, loosen the set screw on the motor shaft and remove the cap screws that attached the motor to the blower housing. To reassemble, insert the motor into the blower wheel, (motor slots to be facing up) center the blower wheel within the blower housing and tighten the set screw. Reinstall the (3) cap screws and tighten to 40 in/lbs. Place the entire fan assembly back up over the weld studs, install the washers and tighten
the 1/4-20 nylok nuts to 65 in/lbs.
COIL
Coils may be cleaned in place by removing the motor/blower assemblies and brushing the entering air face between fins with a soft brush parallel to fins. Do not brush perpendicular to fin orientation as damage may occur. Brushing should be followed by cleaning with a vacuum cleaner. If a compressed air source is available, the coil may also be cleaned by blowing air through the coil fins from the entering air face. Vacuuming should again follow this. Units provided with the proper type of air filters, replaced regularly, may require periodic coil cleaning.
Fan Assembly Removal

Example 1: Exploded Motor and Blower Illustration (Cap Screws, Grommets, and Inserts are Typical x3)

Example 2: Motor and Blower Aligned & Reassembled
UNIT WEIGHT DATA – 1/2″ COILS
| COMPONENT | UNIT SIZE | ||||||||||||||||
| 6 | 8 | 10 | 12 | 14 | 16 | 18 | 20 | ||||||||||
| THHC Series-A BASE UNIT | 68 | [31] | 73 | [33] | 77 | [35] | 114 | [52] | 119 | [54] | 124 | [56] | 128 | [58] | 132 | [60] | |
| THHP Series-A BASE UNIT | 87 | [39] | 95 | [43] | 101 | [46] | 141 | [64] | 150 | [68] | 157 | [71] | 164 | [74] | 170 | [77] | |
| THHP Series-A WITH MIXING BOX | 119 | [54] | 132 | [60] | 144 | [65] | 189 | [86] | 204 | [93] | 217 | [98] | 229 | [104] | 246 | [112] | |
| THHE Series-A BASE UNIT | 137 | [62] | 146 | [66] | 158 | [72] | 202 | [92] | 219 | [99] | 228 | [103] | 240 | [109] | 250 | [113] | |
| THHE Series-A EXTENDED UNIT | 162 | [73] | 171 | [78] | 183 | [83] | 227 | [103] | 244 | [111] | 253 | [115] | 265 | [120] | 275 | [125] | |
|
TOTAL COIL ROWS | 1 ROW – Dry | 5 [2] | 6 [3] | 7 [3] | 8 [4] | 10 [5] | 10 [5] | 11 [5] | 12 [5] | ||||||||
| 1 ROW – Wet | 7 [3.2] | 9 [4.1] | 10 [4.5] | 11 [5] | 14 [6.4] | 14 [6.4] | 16 [7.3] | 17 [7.7] | |||||||||
| 2 ROW – Dry | 11 [5] | 13 [5.9] | 14 [6.4] | 16 [7.3] | 20 [9.1] | 20 [9.1] | 22 [10] | 24 [10.9] | |||||||||
| 2 ROW – Wet | 14 [6.4] | 18 [8.2] | 20 [9.1] | 23 [10.4] | 27 [12.2] | 28 [12.7] | 32 [14.5] | 35 [15.9] | |||||||||
| 3 ROW – Dry | 16 [7.3] | 19 [8.6] | 21 [9.5] | 24 [10.9] | 30 [13.6] | 30 [13.6] | 33 [15] | 36 [16.3] | |||||||||
| 3 ROW – Wet | 21 [9.5] | 27 [12.2] | 30 [13.6] | 34 [15.4] | 41 [18.6] | 42 [19.1] | 48 [21.8] | 52 [23.6] | |||||||||
| 4 ROW – Dry | 21 [9.5] | 25 [11.3] | 29 [13.2] | 33 [15] | 40 [18.1] | 40 [18.1] | 44 [20] | 48 [21.8] | |||||||||
| 4 ROW – Wet | 27 [12.2] | 35 [15.9] | 41 [18.6] | 46 [20.9] | 54 [24.5] | 56 [25.4] | 64 [29] | 69 [31.3] | |||||||||
| 5 ROW – Dry | 26 [11.8] | 30 [13.6] | 34 [15.4] | 38 [17.2] | 42 [19.1] | 46 [20.9] | 50 [22.7] | 54 [24.5] | |||||||||
| 5 ROW – Wet | 33 [15] | 39 [17.7] | 45 [20.4] | 51 [23.1] | 57 [25.9] | 63 [28.6] | 70 [31.8] | 77 [34.9] | |||||||||
| 6 ROW – Dry | 32 [14.5] | 38 [17.2] | 43 [19.5] | 49 [22.2] | 59 [26.8] | 61 [27.7] | 67 [30.4] | 71 [32.2] | |||||||||
| 6 ROW – Wet | 42 [19.1] | 53 [24] | 61 [27.7] | 69 [31.3] | 80 [36.3] | 85 [38.6] | 97 [44] | 103 [46.7] | |||||||||
| 7 ROW – Dry | 38 [17.2] | 42 [19.1] | 48 [21.8] | 54 [24.5] | 60 [27.2] | 66 [29.9] | 72 [32.7] | 78 [35.4] | |||||||||
| 7 ROW – Wet | 49 [22.2] | 56 [25.4] | 63 [28.6] | 70 [31.8] | 77 [34.9] | 84 [38.1] | 91 [41.3] | 98 [44.5] | |||||||||
| 8 ROW – Dry | 43 [19.5] | 49 [22.2] | 55 [24.9] | 61 [27.7] | 67 [30.4] | 73 [33.1] | 79 [35.8] | 85 [38.6] | |||||||||
| 8 ROW – Wet | 55 [24.9] | 63 [28.6] | 71 [32.2] | 79 [35.8] | 87 [39.5] | 95 [43.1] | 103 [46.7] | 111 [50.3] | |||||||||
NOTE: Unit weight data is in pounds [kilograms].
| COMPONENT | UNIT SIZE | ||||||||||||||||
| 6 | 8 | 10 | 12 | 14 | 16 | 18 | 20 | ||||||||||
| THHC Series-A BASE UNIT | 68 | [31] | 73 | [33] | 77 | [35] | 114 | [52] | 119 | [54] | 124 | [56] | 128 | [58] | 132 | [60] | |
| THHP Series-A BASE UNIT | 87 | [39] | 95 | [43] | 101 | [46] | 141 | [64] | 150 | [68] | 157 | [71] | 164 | [74] | 170 | [77] | |
| THHP Series-A WITH MIXING BOX | 119 | [54] | 132 | [60] | 144 | [65] | 189 | [86] | 204 | [93] | 217 | [98] | 229 | [104] | 246 | [112] | |
| THHE Series-A BASE UNIT | 137 | [62] | 146 | [66] | 158 | [72] | 202 | [92] | 219 | [99] | 228 | [103] | 240 | [109] | 250 | [113] | |
| THHE Series-A EXTENDED UNIT | 162 | [73] | 171 | [78] | 183 | [83] | 227 | [103] | 244 | [111] | 253 | [115] | 265 | [120] | 275 | [125] | |
|
TOTAL COIL ROWS | 1 ROW – Dry | 4 [1.7] | 5 [2.1] | 6 [2.6] | 6 [2.9] | 8 [3.6] | 9 [3.9] | 9 [4.3] | 10 [4.5] | ||||||||
| 1 ROW – Wet | 5 [2.4] | 7 [3.1] | 8 [3.6] | 9 [4] | 11 [5] | 12 [5.5] | 14 [6.2] | 14 [6.4] | |||||||||
| 2 ROW – Dry | 8 [3.8] | 10 [4.5] | 11 [5.1] | 13 [5.8] | 16 [7.1] | 17 [7.8] | 19 [8.5] | 20 [9.1] | |||||||||
| 2 ROW – Wet | 11 [4.8] | 14 [6.2] | 16 [7.3] | 18 [8.3] | 21 [9.6] | 24 [10.9] | 27 [12.4] | 29 [13.2] | |||||||||
| 3 ROW – Dry | 12 [5.5] | 14 [6.5] | 17 [7.7] | 19 [8.7] | 24 [10.7] | 26 [11.7] | 28 [12.8] | 30 [13.6] | |||||||||
| 3 ROW – Wet | 16 [7.2] | 20 [9.3] | 24 [10.9] | 27 [12.3] | 32 [14.6] | 36 [16.4] | 41 [18.6] | 43 [19.7] | |||||||||
| 4 ROW – Dry | 17 [7.9] | 20 [9.2] | 24 [10.8] | 27 [12.2] | 33 [14.8] | 32 [14.7] | 35 [16.1] | 38 [17.4] | |||||||||
| 4 ROW – Wet | 20 [9.2] | 27 [12] | 33 [14.9] | 37 [16.7] | 42 [19.2] | 48 [21.9] | 55 [24.8] | 58 [26.1] | |||||||||
| 5 ROW – Dry | 20 [8.9] | 23 [10.3] | 27 [12.4] | 30 [13.8] | 33 [14.9] | 40 [18] | 43 [19.4] | 45 [20.4] | |||||||||
| 5 ROW – Wet | 25 [11.3] | 30 [13.4] | 36 [16.4] | 41 [18.5] | 45 [20.3] | 54 [24.6] | 60 [27.1] | 64 [29.1] | |||||||||
| 6 ROW – Dry | 24 [11] | 29 [13.1] | 35 [15.7] | 39 [17.8] | 46 [21] | 53 [23.8] | 57 [25.9] | 59 [26.9] | |||||||||
| 6 ROW – Wet | 32 [14.4] | 40 [18.2] | 49 [22.2] | 55 [25] | 63 [28.4] | 73 [33.2] | 83 [37.5] | 86 [39] | |||||||||
| 7 ROW – Dry | 29 [13] | 32 [14.4] | 39 [17.5] | 43 [19.6] | 47 [21.3] | 57 [25.8] | 61 [27.9] | 65 [29.5] | |||||||||
| 7 ROW – Wet | 37 [16.8] | 42 [19.3] | 51 [23] | 56 [25.4] | 60 [27.4] | 72 [32.8] | 78 [35.2] | 82 [37.1] | |||||||||
| 8 ROW – Dry | 32 [14.7] | 37 [16.8] | 44 [20] | 49 [22.1] | 53 [23.8] | 63 [28.5] | 67 [30.6] | 71 [32.1] | |||||||||
| 8 ROW – Wet | 42 [18.8] | 48 [21.7] | 57 [25.9] | 63 [28.7] | 68 [30.9] | 82 [37.1] | 88 [39.9] | 93 [42] | |||||||||
NOTE: Unit weight data is in pounds [kilograms].
DANGER
ELECTRICAL SHOCK HAZARDS. All power must be disconnected prior to installation and servicing this equipment. More than one source of power may be present. Disconnect all power sources to avoid electrocution or shock injuries.
Electric resistance heaters typically require no normal periodic maintenance when unit air filters are changed properly. Other conditions and equipment may affect the operation and service life in the system. The two most important operating conditions for an electric heater are proper airflow and proper supply voltage. High supply voltage and/or poorly distributed or insufficient airflow over the element will result in element overheating. This condition may result in the heater cycling on the high limit thermal cutout. The open wire type heaters provided have an automatic reset switch with a back-up high limit thermal switch. Automatic reset switches are as the name implies; they reset automatically after the heater has cooled down. One-time use high limit thermal switches must be replaced once the circuit has been broken. A manual reset high limit thermal switch is available as an optional feature. The high limit thermal cutout device is a safety device only and is not intended for continuous operation. With proper unit application and during normal operation, the high limit thermal cutout will not operate. For manual reset high limit switch (if provided), the switch will not operate unless manually reset. This device only operates when some problem exists and ANY condition that causes high limit cutout MUST be corrected immediately. High supply voltage also causes excessive amperage draw and may result in tripping of the circuit breaker or blowing of the fuses on the incoming power supply.
ELECTRICAL WIRING & CONTROLS
The electrical operation of each unit is determined by the components and wiring of the unit and may vary from unit to unit. Consult the wiring diagram for the actual type and number of controls provided on each unit. The integrity of all electrical connections should be verified at least twice during the first year of operation. Afterwards, all controls should be inspected regularly for proper operation. Some components may experience erratic operation or failure due to age. Wall thermostats may also become clogged with dust and lint and should be periodically inspected and cleaned to provide reliable operation.
When replacing any components such as fuses, contactors, or relays, use only the exact type, size, and voltage component as furnished from the factory. Any deviation without factory authorization could result in personnel injury or damage to the unit and will void all factory warranties. All repair work should be done in such a manner as to maintain the equipment in compliance with governing codes and ordinances or testing agency listings.
VALVES & PIPING
No formal maintenance is required on the valve package components most commonly used with fan coil units other than a visual inspection for possible leaks in the course of other normal periodic maintenance. In the event that a valve should need replacement, the same precautions taken during the initial installation to protect the valve package from excessive heat should also be used during replacement. In some cases, the valve actuator may fail and usually can be replaced without removing valve body from piping.
ELECTRICAL SHOCK HAZARDS
All power must be disconnected prior to installation and servicing this equipment. More than one source of power may be present. Disconnect all power sources to avoid electrocution or shock injuries. The THH Series-A incorporates an innovative dropdown Electric Heat Rack Assembly, which allows for convenient manual reset limit switch access (if provided), heater element inspection, restring, or complete electric heat rack assembly replacement.
Step 1: Remove Two (2) Screws From Electric Heat
Rack Access Cover, Which is Located Between the Fan Compartment and Water Coil.

Step 2: Remove Electric Heat Rack Access Cover and Set Aside. Manual Reset Limit Switch (If Provided) is Now Accessible. If Electric Heat Rack Requires Maintenance or Replacement, Proceed to Step Three.

Step 3: For Element or Rack Replacement, Disconnect EH Wiring Harnesses, Remove Four (4) Screws Which Affix Heater Rack to Heater Bracket. Heater Rack Will Then Lower Approximately 2” Onto Internal Support Brackets.

Step 4: Lift Electric Heat Rack Upwards to Disengage From Internal Support Brackets. Tilt Rack Towards Coil, Angling
Electric Heat Rack Downward and Out of the Heater Access Compartment.

NOTE:
With Electric Heat Rack Removed, Perform Maintenance or Replacement As Needed. To Reinstall, Follow Steps 1-4 In Reverse Fashion.
DRAIN
The drain should be checked before initial start-up and at the beginning of each cooling season to assure that the lines are clear. If it is clogged, steps should be taken to clear the debris so that condensate will flow easily.
Periodic checks of the drain should be made during the cooling season to maintain a free flowing condensate. Should the growth of algae and/or bacteria be a concern, consult an air conditioning and refrigeration supply organization familiar with local conditions for chemicals available to control these agents. If cleaners are used, they should be compatible with the materials of construction for the coil and drain pan.
FILTERS
This unit is equipped with a standard 1” throwaway filter most commonly used on fan coil units, and should be replaced on a regular basis. The time interval between each replacement should be established based on regular inspection of the filter and should be recorded in the log for each unit. At a minimum, filters should be inspected monthly and replaced if needed. Refer to the Filters chart for recommended filter size for each product type and size. If the replacement filters are not purchased from the factory, the filters used should be the same type, size and MERV rating as that furnished from or recommended by the factory. Optional 1” and 2” pleated filters are available and can be used in this unit. Contact the local Sales Representative for the correct filter upgrade specification and availability. Consult the factory for applications using filter types other than the factory standard or optional product.
FILTER REPLACEMENT
To replace the filter(s), turn the quick-release latches located at either side of the filter brackets counter-clockwise until the filter brackets can be removed. Slide out the used filter(s) and replace with the new one(s). Reattach the filter brackets by turning the quick-release latches clockwise.
Step 1: Turn Quick-Release Latches Counter-Clockwise to Disengage Filter Brackets

Step 2: Remove Filter Brackets and Replace Filter as Required

Face Area and Filter Sizes
| UNIT SIZE | COIL FACE AR EA | NOM INAL FILTER SIZES | 1″ THROWAWAY FACE AR EA | 1 ” PLEATED GR OSS MEDIA AR EA | 2 ” PLEATED GR OSS MEDIA AR EA |
| 06 | 1. 46 [0.14] | (1) 16 x 16 [406 x 406] | 1. 62 [0.15] | 4. 0 [0.37] | 5. 4 [0.50] |
| 08 | 1. 94 [0.18] | (1) 16 x 20 [406 x 508] | 2. 04 [0.19] | 4. 8 [0.45] | 6. 8 [0.63] |
| 10 | 2. 33 [0.22] | (1) 16 x 25 [406 x 381] | 2. 57 [0.24] | 6. 0 [0.56] | 8. 5 [0.79] |
| 12 | 2. 82 [0.26] | (2) 16 x 16 [406 x 406] | 3. 23 [0.30] | 8. 0 [0.74] | 10.4 [0.97] |
| 14 | 3. 31 [0.31] | (1) 16 x 16 & (1) 16 x 20 (1) [406 x 406] & (1) [406 x 508] | 3. 65 [0.34] | 8. 8 [0.82] | 12.2 [1.13] |
| 16 | 3. 79 [0.35] | (2) 16 x 20 [406 x 508] | 4. 08 [0.38] | 9. 6 [0.89] | 13.4 [1.24] |
| 18 | 4. 28 [0.40] | (1) 16 x 20 & (1) 16 x 25 (1) [406 x 508] & (1) [406 x 635] | 4. 61 [0.43] | 10.8 [1.00] | 14.3 [1.33] |
| 20 | 4. 67 [0.43] | (2) 16 x 25 [406 x 635] | 5. 14 [0.48] | 12.0 [1.11] | 17.0 [1.58] |
NOTES:
- Face and free areas are in square feet [square meters].
- Filter sizes are in inches [millimeters].
Factory Replacement Parts
Factory replacement parts should be used wherever possible to maintain the unit performance and operating characteristics and the testing agency listings. Replacement parts may be purchased through the local Sales Representative. Contact the local Sales Representative before attempting any unit modifications. Any modifications not authorized by the factory could result in personal injury and damage to the unit and could void all factory warranties. When ordering parts, the following information must be supplied to ensure proper part identification:
- Complete unit model number
- Unit hand connection (right or left hand) while facing the direction of airflow at the inlet
- Complete part description including any numbers
On warranty replacements, in addition to the information previously listed, the project CO # that appears on the unit nameplate, is required. Contact the factory for authorization to return any parts such as defective parts replaced in warranty. All shipments returned to the factory MUST be marked with a Return Authorization Number, which is provided by the factory. All equipment and components sold through Titus are warranted under the same conditions as the standard manufacturer’s warranty with the exception that the warranty period is 12 months unless the component is furnished as warranty replacement. Parts furnished as warranty replacements are warranted for the remaining term of the original unit warranties.
THH Series-A Coil Connection Sizes
Drawings are representative and may vary depending on selected unit options.




NOTES:
- Table applies to 1/2″ and 3/8″ tube diameters.
- Number of circuits does not affect Coil connection size.
| WATER & DX COIL CONNECTION SIZES | |||
| UNIT SIZE | TYPE | # ROWS | CONN. SIZE (OD) |
| 06 | HW | 1 | 5/8 |
| 06 | HW | 2 | 5/8 |
| 06 | HW | 3 | 7/8 |
| 06 | HW | 4 | 7/8 |
| 06 | CW OR DX | 3 | 7/8 |
| 06 | CW OR DX | 4 | 7/8 |
| 06 | CW OR DX | 6 | 7/8 |
| 08 | HW | 1 | 5/8 |
| 08 | HW | 2 | 5/8 |
| 08 | HW | 3 | 7/8 |
| 08 | HW | 4 | 7/8 |
| 08 | CW OR DX | 3 | 7/8 |
| 08 | CW OR DX | 4 | 7/8 |
| 08 | CW OR DX | 6 | 7/8 |
| 10 | HW | 1 | 5/8 |
| 10 | HW | 2 | 5/8 |
| 10 | HW | 3 | 7/8 |
| 10 | HW | 4 | 7/8 |
| 10 | CW OR DX | 3 | 7/8 |
| 10 | CW OR DX | 4 | 7/8 |
| 10 | CW OR DX | 6 | 7/8 |
| 12 | HW | 1 | 5/8 |
| 12 | HW | 2 | 5/8 |
| 12 | HW | 3 | 7/8 |
| 12 | HW | 4 | 7/8 |
| 12 | CW OR DX | 3 | 7/8 |
| 12 | CW OR DX | 4 | 7/8 |
| 12 | CW OR DX | 6 | 7/8 |
| 14 | HW | 1 | 7/8 |
| 14 | HW | 2 | 7/8 |
| 14 | HW | 3 | 1 1/8 |
| 14 | HW | 4 | 1 1/8 |
| 14 | CW OR DX | 3 | 1 1/8 |
| 14 | CW OR DX | 4 | 1 1/8 |
| 14 | CW OR DX | 6 | 1 1/8 |
| 16 | HW | 1 | 7/8 |
| 16 | HW | 2 | 7/8 |
| 16 | HW | 3 | 1 1/8 |
| 16 | HW | 4 | 1 1/8 |
| 16 | CW OR DX | 3 | 1 1/8 |
| 16 | CW OR DX | 4 | 1 1/8 |
| 16 | CW OR DX | 6 | 1 1/8 |
| 18 | HW | 1 | 7/8 |
| 18 | HW | 2 | 7/8 |
| 18 | HW | 3 | 1 1/8 |
| 18 | HW | 4 | 1 1/8 |
| 18 | CW OR DX | 3 | 1 1/8 |
| 18 | CW OR DX | 4 | 1 1/8 |
| 18 | CW OR DX | 6 | 1 1/8 |
| 20 | HW | 1 | 7/8 |
| 20 | HW | 2 | 7/8 |
| 20 | HW | 3 | 1 1/8 |
| 20 | HW | 4 | 1 1/8 |
| 20 | CW OR DX | 3 | 1 1/8 |
| 20 | CW OR DX | 4 | 1 1/8 |
| 20 | CW OR DX | 6 | 1 1/8 |
APPENDIX
COMPONENT INSTALLATION, OPERATION & MAINTENANCE MANUALS
- Fan Coil EC Motor Installation, Operation & Maintenance
- Fan Relay Board 2 (FRBii) Installation, Operation & Maintenance
- EC Motor Select and Sync PWM Installation, Operation & Maintenance
- Electric Heat Installation, Operation & Maintenance
- Analog Thermostats – Data and Instructions
- Digital Thermostat (D-Series) – Installation Guide
- Digital Thermostat (D-Series) – Operating Manual
- Programmable Thermostat (P-Series) – Installation Guide
- Programmable Thermostat (P-Series) – Operating Manual
- N-Series and F-Series TEC3000 – Installation Instructions
- Return Air Sensor (for operation with D-Series or P-Series) – Installation Instructions
For the supplemental installation, operation and maintenance manuals listed above, please contact your local Sales Representative
or visit www.titus-hvac.com.




















