POTTER IPS Series Industrial Pressure Switch

UL Listed and CSA Approved
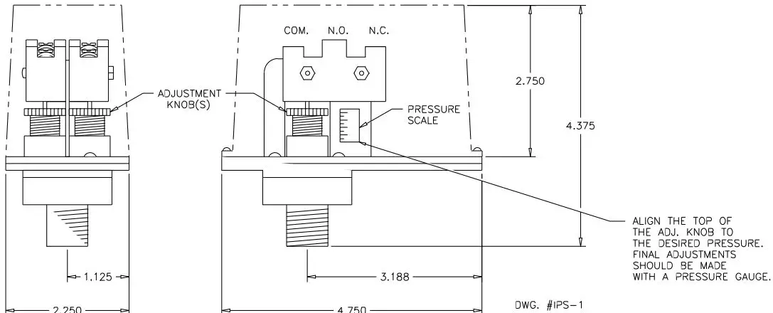
- Dimensions: 4 3/4″W x 2 1/4″D x 4 3/8″H
- Enclosure: NEMA Type 4 for indoor or outdoor use.
- Cover – Die-cast with textured gray powdercoat fi nish
- Base – Plated Steel with one opening for 1/2″ conduit
- Pressure Connection: 1/2″ NPT Male
- Factory Adjustment:
- IPS10 and IPSB10: Operates on pressure increase at 6 PSI ±1PSI
- IPS40 and IPSB40: Operates on pressure increase at 40 PSI ±3PSI
- Differential Approx. (Not Adj.):
- IPS10 and IPSB10 – 2 lbs.
- IPS40 and IPSB40 – 2 lbs. at 20 PSI; 5 lbs. at 175 PSI
- Adjustable Range:
- IPS10 and IPSB10: 5-15 PSI
- IPS40 and IPSB40: 10 – 175 PSI
- Maximum Pressure: 250 PSI
- Switch Contacts:
- One or two Snap Action SPDT (Form C Contacts)
- 15.0 Amps at 125/250VAC,
- 0.5 Amps at 125 VDC
- 0.25 Amps at 250 VDC
- Motor Ratings: 120VAC 240VAC
- Horsepower: 1/8 1/4
- AC F.L.A. : 3.8 2.9
- AC L.R.A. : 22.8 17.4
- Pilot Duty Rating: 125 VA 120/240 VAC
- Ambient Temperature range: -40°/131°F (-40°/55°C)
- Media Temperature range: 32°/250°F (0°/121°C)
WARNING
Risk of explosion. Not for use in hazardous locations. Serious injury or death could result.
They are designed for applications sensing air, water or any fl uid or gas not harmful to nylon or silicone for models IPS and brass or silicone for models IPSB.
CAUTION
Read all instructions carefully and understand them before starting installation. Save instructions for future use.
| MODEL | STOCK NUMBER | NUMBER OF CONTACTS | PRESSURE RANGE | PRESSURE CONNECTION |
| IPS10-1 | 9000101 | 1 | 5-15 PSI | NYLON 1/2″ NPT MALE |
| IPS10-2 | 9000102 | 2 | 5-15 PSI | NYLON 1/2″ NPT MALE |
| IPS40-1 | 9000104 | 1 | 10-175 PSI | NYLON 1/2″ NPT MALE |
| IPS40-2 | 9000105 | 2 | 10-175 PSI | NYLON 1/2″ NPT MALE |
| IPSB10-1 | 9000120 | 1 | 5-15 PSI | BRASS 1/2″ NPT MALE |
| IPSB10-2 | 9000121 | 2 | 5-15 PSI | BRASS 1/2″ NPT MALE |
| IPSB40-1 | 9000122 | 1 | 10-175 PSI | BRASS 1/2″ NPT MALE |
| IPSB40-2 | 9000123 | 2 | 10-175 PSI | BRASS 1/2″ NPT MALE |
The Model IPS and IPSB are pressure switches designed to indicate an increase or decrease in normal system pressure. On the two switch models the two switches operate independently of each other and each switch may be adjusted to actuate at any point within their adjustable range.
WARNING
- Installation must be performed by qualifi ed personnel and in accordance with all national and local codes and ordinances.
- Shock hazard. Disconnect power source before servicing. Serious injury or death could result.
- Risk of explosion. Not for use in hazardous locations. Serious injury or death could result.
DIMENSIONS

CAUTION
- Do not tighten by grasping the switch enclosure. Use wrenching flats on the bushing only. Failure to install properly could damage the switch and cause improper operation resulting in damage to equipment.
- To seal threads, apply tefl on tape to male threads only. Using joint compounds or cement can obstruct the pressure port inlet and result in improper device operation and damage to equipment.
MOUNTING: Device should be mounted in upright position. (Threaded connection down.)
FIELD ADJUSTMENTS: The operating point of the switch or switches can be adjusted to any point within their adjustable range. (5-15 PSI for the IPS-10 and IPSB-10; 10-175 PSI for the IPS-40 and IPSB-40). To adjust the device turn the adjustment knob(s) clockwise to raise the actuation point and counterclockwise to lower the actuation point. On the two switch models the two switches operate independently of each other and each switch may be adjusted to actuate at any point within their adjustable range. The pressure scales on the devices are approximate. Final adjustment should be made with a pressure gauge.
PRESSURE SWITCH TERMINATIONS




















