PENTAIR PVM32 Single and Three Phase Vertical Multistage Pumps Instruction Manual
Safety Instructions
Carefully read and follow all safety instructions in this manual or on pump.
This is the safety alert. When you see this symbol on your pump or in this manual, look for one of the following signal words and be alert to the potential for personal injury.
Danger: Warns about hazards that will cause serious personal injury, death or major property damage if ignored.
Warning: Warns about hazards that can cause serious personal injury, death or major property damage if ignored.
Caution: Warns about hazards that will or can cause minor personal injury or property damage if ignored.
The word NOTICE indicates special instructions that are important but not related to hazards.
Warning: Hazardous Pressure and Temperature
Risk of explosion or seal failure if operating pressure or temperature limits are exceeded.
Warning: California proposition 65 warning
This product and related accessories contain chemicals known to the State of California to cause cancer, birth defects or other reproductive harm.
To avoid serious or fatal personal injury and possible property damage, carefully read and follow the safety instructions.
- Install pump according to all code requirements.
- Compare pump nameplate data with desired operating range.
- Pump only liquids that are compatible with pump component materials (that is, that will not attack the pump). For liquids other than water, consult chemical compatability charts.
- If in any doubt about chemical compatability with the pump, consult the factory for further information.
- Do not pump strong acids or caustics with this pump.
- Make sure plumbing is adequate to handle system pressure.
- Periodically perform maintenance inspection on pump and system components.
- Wear safety glasses at all times when working on pumps.
INSPECT THE SHIPMENT
The vertical multistage centrifugal in-line pump has been carefully inspected and packaged to assure safe delivery. Inspect the pump and fittings and report to the carrier any items that are damaged or missing.
CONFIRM THAT YOU HAVE THE RIGHT PUMP:
APPLICATIONS AND OPERATING RANGES
Pentair multistage in-line centrifugal pumps are designed for liquid transfer, circulation, and pressure boosting of hot or cold clean water or other thin, nonexplosive liquids, not containing solid particles or fibers, which will not chemically attack the pump materials.
Typical applications include:
- Municipal water supply and pressure boosting
- Boiler feed and condensate systems
- Cooling water systems
- Irrigation
- Fire fighting
PVM32 SPECIFICATIONS
- Maximum Operating Temperature: 250°F
- Liquid Temperature Range: +5°F to +250°F
- Minimum Suction Pipe Size: 2-1/2″ Nominal Diameter
- Minimum Pumping Rate:
- Up to 175°F: 15 GPM
- 175°F to 250°F: 35 GPM
- Maximum Ambient Temperature: 104°F (40°C)
- Liquid Temperature Range: 5°F to 250°F
(–15°C to +121°C) - Maximum Permissible Operating Pressure: 435 psi
NOTE: The pump’s inlet pressure plus the discharge pressure when the pump is running against a closed valve must always be lower than the Maximum Permissible Operating Pressure. - Electrical Data: See Motor Nameplate Dimensions and
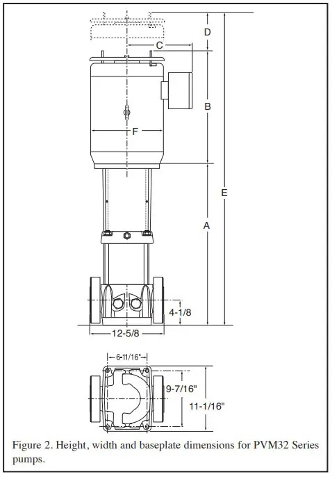
- Port-to-Port Lengths: See Figure 2 and Table I
INSTALLATION
Warning: Hazardous Voltage
Voltage can shock, burn, or cause death. Ground pump motor correctly before connecting to power supply, per article 250- 80 of the National Electrical Code (NEC) in the U.S., or the Canadian Electrical Code (CEC), as applicable.
LOCATION. Locate pump in a dry, well ventilated area, not subject to freezing or extreme variations in temperature.
PVM32 DIMENSIONS

Mount pump a minimum of 6″ from any obstruction or hot surface. Install the pump with the motor shaft vertical. Make sure that an adequate supply of cool air reaches the motor cooling fan. Maximum ambient air temperature is 104°F (40°C).
For open systems requiring suction lift, locate the pump as close to the water source as possible.
FOUNDATION. Foundation should be concrete or a similarly rigid foundation to provide a secure, stable mounting base for the pump.
Secure pump to foundation using all bolt holes. Refer to Figure 2 for bolt plate dimensions. Be sure that all four pads on the base are properly supported.
Shim pump base to make sure that pump is level.
PIPING.
Warning: Explosion and Burn Hazard
Do not run pump with discharge valve closed; the water in the pump may boil, with risk of explosion and steam burns to anyone near.
If there is any danger of the pump running against a closed discharge valve, install a pressure relief or bypass valve in the.
TABLE I – Single Phase – Maximum Height and Width Dimensions*
| Model Number | Dimension in Inches | |||||
| A | B | C | D | E | F | |
| PVM32-1-1D | 22.3 | 13.9 | 7.9 | 2.6 | 38.8 | 10.0 |
| PVM32-1D | 22.3 | 13.9 | 7.9 | 2.6 | 38.8 | 10.0 |
| PVM32-2-2D | 27.0 | 13.9 | 7.9 | 2.6 | 43.5 | 10.0 |
| PVM32-2-1D | 27.0 | 13.9 | 7.9 | 2.6 | 43.5 | 10.0 |
| PVM32-2D | 27.0 | 13.9 | 7.9 | 2.6 | 43.5 | 10.0 |
| PVM32-3-2D | 29.8 | 13.9 | 7.9 | 3.1 | 46.8 | 10.0 |
TABLE II – Three Phase – Maximum Height and Width Dimensions*
| Model Number | Dimension in Inches | |||||
| A | B | C | D | E | F | |
| PVM32-1-1D | 22.3 | 12.6 | 6.9 | 2.6 | 37.5 | 8.6 |
| PVM32-1D | 22.3 | 12.6 | 6.9 | 2.6 | 37.5 | 8.6 |
| PVM32-2-2D | 27.0 | 13.9 | 8.1 | 2.6 | 43.5 | 10.3 |
| PVM32-2-1D | 27.0 | 13.9 | 8.1 | 2.6 | 43.5 | 10.3 |
| PVM32-2D | 27.0 | 13.9 | 8.1 | 2.6 | 43.5 | 10.3 |
| PVM32-3-2D | 29.8 | 14.2 | 8.1 | 3.1 | 47.1 | 10.3 |
| PVM32-3D | 29.8 | 20.0 | 9.5 | 4.0 | 53.8 | 12.9 |
| PVM32-4-2D | 32.5 | 20.0 | 9.5 | 4.0 | 56.5 | 12.9 |
| PVM32-4D | 32.5 | 20.0 | 9.5 | 4.0 | 56.5 | 12.9 |
| PVM32-5-2D | 35.3 | 16.9 | 9.2 | 3.8 | 56.0 | 11.5 |
| PVM32-5D | 35.3 | 16.9 | 9.2 | 3.8 | 56.0 | 11.5 |
| PVM32-6-2D | 38.0 | 20.0 | 9.5 | 3.0 | 61.0 | 13.3 |
| PVM32-6D | 38.0 | 20.0 | 9.5 | 3.0 | 61.0 | 13.3 |
| PVM32-7-2D | 40.8 | 20.0 | 9.5 | 3.0 | 63.8 | 13.3 |
| PVM32-7D | 40.8 | 23.9 | 13.1 | 3.0 | 67.7 | 15.6 |
| PVM32-8-2D | 43.6 | 23.9 | 13.1 | 3.0 | 70.5 | 15.6 |
| PVM32-8D | 43.6 | 23.9 | 13.1 | 3.0 | 70.5 | 15.6 |
| PVM32-9-2D | 46.3 | 23.2 | 13.1 | 3.0 | 72.5 | 15.6 |
| PVM32-9D | 46.3 | 23.2 | 13.1 | 3.0 | 72.5 | 15.6 |
| PVM32-10-2D | 49.1 | 23.2 | 13.1 | 3.0 | 75.3 | 15.6 |
| PVM32-10D | 49.1 | 23.2 | 13.1 | 3.0 | 75.3 | 15.6 |
| PVM32-11-2D | 51.8 | 23.2 | 13.1 | 3.0 | 78.0 | 15.6 |
* Measurements represent the largest number possible for each model. discharge pipe to allow for minimum liquid flow through the pump. Minimum liquid flow through the pump is needed for cooling and lubrication of the pump (see Specifications). Run the bypass/relief valve and discharge pipe to a floor drain or a tank for collection.
Suction pipe should be adequately sized (see Specifications) and run as straight and as short as possible to keep friction losses to a minimum. Pipes, valves, and fittings must have a pressure rating equal to or greater than the maximum system pressure.
Pressure check the discharge piping as required by codes or local regulations.
“Inlet” and “Outlet” are marked on the pump base to show the direction of the liquid flow through the pump.
Install antivibration mountings on either side of the pump if a minimum noise level is desired.
Install isolation valves in both inlet and outlet pipes near the pump (see Figure 3). This allows for removal of pump for service without draining the system and isolation of the pump in case of a flooded suction condition.
Figure 3. Bypass required if pump might operate with discharge valve closed. See PVM32 Specifications for minimum required flow through pump to prevent overheating and to ensure lubrication.
Install a check valve in the discharge pipe to prevent high system pressure from backing up to the inlet side of the pump. Excessive inlet pressure can cause the pump to exceed its maximum permissible operating pressure.
Make sure, especially on the inlet side of the pump, that there are no airlocks in the system. See Figure 4 for correct pipe work to avoid airlocks. The suction pipe should be level or slightly rising.
Support all piping independently of the pump so the weight of the piping system does not strain the pump case. Make sure that the expansion and contraction of the piping system from temperature variations cannot put a strain on the pump.
If the system or pump must be drained periodically (especially if the discharge pipe is horizontal or slopes downward away from the pump), install a loop and vacuum valve as shown in Figure 5 to protect the pump against running dry. The highest point of the loop should be at least as high as the lowest point of the motor. This loop/valve combination will allow the pump and the system to be drained independently of one another.
ELECTRICAL
Warning: Hazardous Voltage.
Can shock, burn or cause death. All electrical work should be performed by a qualified electrician in accordance with the National Electrical Code and all local codes and regulations. Make sure that the motor voltage, phase, and frequency match the incoming electrical supply.
The proper operating voltage and other electrical information can be found on the motor nameplate. These motors are designed to run up to ±10% of the nameplate-rated voltage. The wiring connection diagram can be found on either a plate attached to the motor or on a diagram inside the terminal box cover.
- If voltage variations are greater than ±10%, do not operate the pump.
- Incorrect voltage can cause fire or serious damage to the motor and voids warranty.
- Ground the pump motor correctly before connecting it to the power supply.
- Follow the wiring instructions when connecting the motor to the power lines.
POSITION OF TERMINAL BOX.
To turn the motor so that the terminal box faces the right direction, proceed as follows:
- Disconnect the power to the pump motor.
- Remove the coupling guards.
- Remove the couplings.
- Remove the bolts that fasten the motor to the motor stool.
- Turn the motor to the required position (in quarter-turn increments).
- Follow steps 10B and 14–19 under Pump Reassembly Sequence.
FIELD WIRING. All wiring connections and wiring sizes must meet National Electrical Code and local requirements.
MOTOR PROTECTION. See the motor nameplate for electrical connection/wiring diagram.
Pentair pumps must be used with the proper size and type of motor starter to ensure protection against damage from low voltage, phase failure, current imbalances, and overloads. The overload should be sized to trip at the full load current rating of the motor.
OPERATION
PRIMING.
Warning: Hazardous Pressure
Do not run the pump with the discharge valve closed; the water in the pump may boil, causing risk of explosion and steam burns to anyone nearby.
Warning: Hazardous Voltage
Disconnect all power to the pump before servicing or working on the pump. Make sure that the power is locked out and that the pump cannot be accidentally started.
NOTICE: Under no circumstances should the pump be operated without flow through the pump. Never operate the pump dry.
Operation of closed systems or open systems with the liquid level above the pump priming plug:
- Close the discharge isolating valve and loosen the needle valve located in the assembly in the pump head (Figure 6). Do not remove the needle valve.
Warning: Risk of Water Damage and Injury Watch the direction of the priming plug and make sure that the liquid escaping from it does not injure persons nearby or damage the motor or other components. In hot water installations, pay particular attention to the risk of injury from scalding hot water or steam. - Slowly open the isolation valve in the suction pipe until a steady stream of liquid runs out the vent in the priming port.
- Tighten the needle valve in the vent plug. Completely open isolation valves.
NOTICE: Please turn to Starting before proceeding any further.
Operation of open systems with the liquid level below the top of the pump:
NOTICE: The suction pipe requires a check valve or isolation valve.
- Close the discharge isolation valve.
- Remove the vented priming plug.
- Pour liquid through the priming port until the suction pipe and the pump are completely filled with liquid.
- Replace the vented priming plug and tighten it securely.
- Repeat steps 1–4 until the pump is primed
NOTICE: Please turn to Starting before proceeding any further.
CHECKING DIRECTION OF ROTATION. NOTICE: Do not disconnect the motor from the shaft to check the direction of rotation. If you remove the coupling, then you must adjust the shaft position when you reinstall it. This must be done before starting the pump.
Arrows on the pump coupling show the correct direction of rotation. When seen from the motor fan, the pump should rotate counterclockwise ( ). For pump motors without a fan remove one of the coupling guards and look at the coupling to determine the direction of rotation. Turn off the pump and replace coupling guard.
NOTICE: Do not check the direction of rotation until the pump has been filled with liquid. See Priming.
- Switch power off.
- Remove the coupling guard and rotate the pump shaft to be certain it can turn freely. Replace the coupling guard.
- Verify that the electrical connections are in accordance with the wiring diagram on the motor.
- If the fan is visible, turn on and off to verify rotation.
- To reverse the direction of rotation, first switch OFF the power supply.
- On three-phase motors, switch 2 of the 3 power leads on the load side of the starter. On single-phase motors, see the connection diagram on the motor nameplate. Change the wiring as indicated.
Warning: Hazardous Voltage Voltage can shock, burn or cause death. Ground the pump motor correctly before connecting to power supply per article 250-80 of National Electrical Code (NEC) in the U.S., or the Canadian Electrical Code (CEC), as applicable - Switch on the power supply and recheck the direction of motor rotation.
STARTING.
- If a suction line isolation valve has been installed, check to be sure that it is completely opened.
- For initial starting, the isolation valve in the discharge pipe should be almost closed.
- Start the pump.
- When the piping system has been filled with liquid, slowly open the discharge isolation valve until it is completely open. Opening the valve too fast may result in water hammer in the discharge pipe. If the pump or system starts to rattle, the pump is cavitating; to avoid damage to the pump, reduce the flow through the discharge isolation valve until the rattling stops. If this does not give adequate flow for your installation, call your installer or system designer.
- Record the voltage and amperage of the motor. Adjust the motor overloads if required.
- If pressure gauges have been installed, check and record operating pressures.
- Check all controls for proper operation.
MOTOR BEARINGS. For the greasing schedule and greasing procedure of the motor bearings, follow the motor manufacturer’s recommendations.
CALCULATING MINIMUM INLET PRESSURE. Minimum inlet pressure is required to avoid cavitation in the pump and is calculated as follows:
H = Pb – NPSHR – Hf – Hv – Hs
H = Minimum inlet pressure in ft. of head
Pb = Barometric pressure in ft.
1 Bar = 29.53 inches of mercury (Hg)
1 PSI = 2.31 ft. of head
1 Bar = 33.5 ft. of head
NPSHR = Net Positive suction head required. To be read from the NPSHR curve, Figure 7, at the highest flow the pump will be delivering.
Hf = Friction loss in suction pipe in ft. of head
Hv = Vapor pressure in ft. of head (see Table II).
Hs = A safety margin of 1.64 ft. of head
Example for PVM32:
If: Flow = 145 GPM
Pb = 1 Bar = 29.53 inches of mercury* (convert from Bar to ft. of head) 1 inch of mercury = 1.13 ft. of water
T = 100°F NPSHR = 10′ (see Figure 7)
Hf = 10′ of 2-1/2″ steel pipe @ 14.5′ of loss per 100′ of pipe (Hf = 14.5’/10 = 1.45′)
Hv = 2.195′ (from Table II)
Hs = 1.64′ (safety factor from abov
Then: H = 33.5’* – NPSHR – Hf – Hv – Hs
H = 33.5′ – 10′ – 1.45′ – 2.195′ – 1.64 = 18.215′
H = 18.215′ = Minimum inlet pressure
1 Bar = 14.5 PSI x 2.31 ft. of head = 33.5′

TABLE II – Vapor Pressure of Water
| Temperature in °F (°C) | Vapor Pressure in PSIA (kPa) | Absolute Pressure in Feet (m) of Water |
| 32 (0) | 0.089 (.61) | 0.205 (.062) |
| 40 (4.4) | 0.122 (.84) | 0.281 (.086) |
| 60 (15.6) | 0.256 (1.77) | 0.592 (.180) |
| 80 (26.7) | 0.507 (3.50) | 1.172 (.358) |
| 100 (37.8) | 0.95 (6.55) | 2.195 (.669) |
| 120 (48.9) | 1.695 (11.69) | 3.914 (1.193) |
| 140 (60.0) | 2.892 (19.94) | 6.681 (2.036) |
| 160 (71.1) | 4.745 (32.72) | 10.961 (3.341) |
| 180 (82.2) | 7.515 (51.84) | 17.36 (5.291) |
| 200 (93.3) | 11.529 (79.49) | 26.632 (8.117) |
| 210 (98.9) | 14.125 (97.39) | 32.629 (9.945) |
| 212 (100) | 14.698 (101.34) | 33.952 (10.349) |
| 220 (104.4) | 17.188 (118.51) | 39.704 (12.102) |
| 230 (110.0) | 20.78 (143.28) | 48.002 (14.631) |
| 240 (115.6) | 24.97 (172.17) | 57.681 (17.581) |
| 248 (120.0) | 28.79 (188.51) | 66.505 (20.271) |

FREQUENCY OF STARTS AND STOPS. Check pump cycling frequency and make sure that the pump is not starting more than:
TABLE III – Maximum Number of Cycles
| Cycles | Motor HP Rating |
| 20 times per hour | 1/2 –5 HP motors |
| 15 times per hour | 7- 1/2 – 15 HP motors |
| 10 times per hour | 20 and 25 HP motors |
| 4 times per hour | 30 HP motors |
| 3 times per hour | 40 HP motors |
FROST PROTECTION.
- If you do not use your pump during seasons of frost, drain it and add a glycol based antifreeze (50/50 mixture) to avoid damage.
Caution: Risk of Water Damage and Injury Watch the direction of the priming plug and make sure that liquid escaping from it does not injure persons nearby or damage the motor or other components. In hot water installations, pay particular attention to the risk of injury from scalding hot water. - Upon restart dispose of spent antifreeze properly.
- Do not replace the drain plug or tighten the priming plug until you put the pump back in service again.
REGULAR MAINTENANCE CHECKS. The following checks should be made at regular intervals:
- The pump meets required performance and is operating smoothly and quietly.
- There are no leaks.
- The motor is not overheating.
- Remove and clean all strainers and filters in the system.
- Verify amp draw – check motor amperage.
- Pump wear rings and shaft require no regular maintenance.
TABLE IV – Torque Specifications (foot-lbs.)
| Part Description | Torque | Type of Lubrication Required |
| Coupling Screws | 45 | G |
| Strap Nuts | 4.4 | O |
| Motor Stool Capscrews | 45 | G |
| Pump Head Capscrews | 45 | G |
| Base Bearing Ring Screw | 8 | O |
| Staybolt | 75 | G |
| Collet Lock Nut | 52 | O |
| Seal Carrier Screws | 46 | G |
| Shaft Screw (bottom) | 26 | O |
| Plugs | 26 | G |
| Motor Capscrews | 30 | G |
G = Grease or Threading Compound.
O = Anti-Seizing Oil.
PUMP DISASSEMBLY SEQUENCE
Warning: Hazardous Voltage
Disconnect all power to the pump before servicing or working on it. Make sure that the power is locked out and that pump cannot accidentally start.
Close the suction and discharge valves nearest the pump to isolate it from the system before starting work.
NOTE: See Table IV for torque specifications.
Step 1. Remove the screws holding the coupling guards and remove the guards.
Step 2. Unscrew the Allen screws out of the coupling and remove the coupling halves.
NOTE: if you are disassembling more than one pump, be sure you do not mix the coupling parts; each coupling is a matched pair.
Step 3. Unscrew the four screws holding the seal carrier and remove the carrier.
Step 4. Loosen the Allen screws holding the seal about one-half turn. Do not remove the screws.
Step 5. Lift the seal straight up and off the pump shaft as shown. The cartridge seal will come out as an assembly.
Step 6. Remove the four Allen screws securing the motor stool to the pump head and remove the motor and motor stool as a unit. The stool will protect the motor shaft from damage while it is off the pump.
Step 7. Remove the staybolt nuts and washers from the pump head.
Step 8. Tap around the pump head with a rubber mallet to loosen it, then remove the pump head from the pump.

Step 9. Remove the O-ring from the pump head with a small screwdriver.
Step 10. Grasp two opposite staybolts; then press the sleeve sideways with your thumbs to loosen it from the base. Lift the sleeve off the base.
Step 11. Lift the stack off the base.
Step 12. Remove the Allen screw that secures the bottom bearing in the base.
Step 13. Use a bearing puller to remove the bearing from the base.
Step 14. Remove the O-ring from the pump base with a small screwdriver.
Step 15. Remove the four rubber stack compression spacers from the pump head.
STACK DISASSEMBLY SEQUENCE
Step 1. Clamp the assembly fixture in the vise and set the stack on it. Lift the shaft enough to allow you to pin it with the locking tool inserted in the “DISASSEMBLY” hole in the fixture. Remove the strap nuts, washers, and straps.
Step 2. Remove the top stage bowl from the stack.
NOTE: make a note of the order of the stages as you remove them (see Figure 8). You must preserve the order when you reassemble the pump.
Step 3. Remove the impeller locknut; hold the impeller with the wrench while you remove the locknut, exposing the collet.
Step 4. With the large end of the collet driver, tap the impeller down off the collet. Remove the collet and impeller.
Step 5. Repeat steps 2, 3, and 4 until you have dismantled all stages of the pump. Remove the bottom plate, remove the lock pin, and retrieve the shaft from the fixture.
STACK ASSEMBLY SEQUENCE
Step 1. Clamp the fixture in the vise and insert the shaft. Pin the shaft with the lock spindle inserted in the “ASSEMBLY” hole.
Step 2. Add the first impeller. Tap the collet into the impeller hub with the collet driver until it locks to the shaft and the impeller is seated on the fixture.
Step 3. Apply anti-seize oil to the impeller threads, add the locknut; hold the impeller with the wrench and tighten the locknut against the collet. Torque to 52 ft.-lbs.
Step 4. Remove the lock spindle. Remove the shaft from the fixture, seat the bottom flange in the fixture, and reinsert the shaft/ impeller assembly into the fixture. Reinsert the lock spindle from the opposite side of the fixture (that is, in the hole in the fixture). For single stage pumps, skip to Step 9.
Step 5. Slide a bowl (see Figure 8) down the shaft until it seats on the bottom plate.
Step 6. Slide the next impeller, collet, and locknut down the shaft and repeat Steps 2 and 3. For two-stage pumps, skip now to Step 9. For three-stage pumps, add a bearing (type DB stage) before going to Step 7.
Step 7. For all pumps with more than three stages, use a type D stage. Three-stage pumps use type DB (with spacer over the locknut) and go to Step 9. NOTE: If your pump has reduced diameter impellers (for example, a PVM32-6-2), they go in the top stages. In a PVM32-6-2, for instance, stages 5 and 6 (the top two) are reduced diameter. Note that the impeller shroud is full diameter; only the vanes are reduced.Be sure you do not mix them with full diameter impellers.
Step 8. Repeat Steps 5 and 6, following the order for bowl assembly shown in Figure 8. Repeat until you have done the next to the last bowl, then go to Step 9.
Step 9. Add type F stage bowl (with cutouts for straps). Insert the straps in the holes in the bottom plate, hook into the bowl cutouts, add nuts and washers, and tighten the straps to 4.4 ft.-lbs. (53 in.-lbs.) of torque (see Table IV).
PUMP REASSEMBLY SEQUENCE
Warning: Hazardous Voltage
Disconnect all power to the pump before servicing or working on it. Make sure that the power is locked out and that pump cannot accidentally start.
NOTE: See Table IV for torque specifications
Step 1. Install the four rubber stack compression spacers in the pump head.
Step 2. Install the O-ring in the groove in the pump base.
Step 3. Align the notch in the bearing with the threaded hole in the base and press the bearing into the base. Make sure it goes in straight and does not deform.
Step 4A. Install the Allen screw that secures the bottom bearing in the base. Tighten it to 6 ft.- lbs. torque.
Step 4B. If you removed the staybolts at disassembly, grease the threads and reinstall them now, tightening them to 75 ft.-lbs. torque.
Step 5. Align the hole in the bottom plate with the pin on the base and install the stack on the base.
Step 6. Install the sleeve in the base.
Step 7. Lubricate the O-ring and install it in the groove in the pump head.
Step 8. Install the pump head on the pump and seat it with a rubber mallet. The vent plug must be over the discharge port in the pump base.
Step 9. Lubricate the threads and install the staybolt nuts and washers on the pump head. Cross-tighten them to 75 ft.-lbs. torque.
Step 10A. Install the motor stool on the pump head. Grease the threads on the four Allen screws that secure it, then install the Allen screws and cross-tighten them to 45 ft.-lbs. torque.
Step 10B. If you removed the motor at disassembly, reinstall it now. Grease the threads on the motor bolts and then install and cross-tighten them to 30 ft.-lbs. torque.
Step 11. Lubricate the shaft seal and O-rings. Install the seal on the shaft, making sure that it seats on the pump head.
Step 12. Slide the seal carrier down the shaft until it seats solidly on the shaft seal flange. Grease the threads on the Allen screws and install the screws. Cross-tighten them to 46 ft.-lbs. torque.
Step 13. Cross-tighten the Allen screws holding the seal to 6 ft.-lbs. torque.
Step 14. Lift the pump shaft and insert the spacer under the seal flange.
Step 15. Install the coupling with the shelfat the bottom of the coupling flush with the top of the pump shaft as shown. Grease the coupling Allen screws and loosely install all four of them.
Step 16. After all four Allen screws are in place, cross-tighten them to 45 ft.-lbs. torque, making sure that the gap between the halves remains even on both sides as you tighten the screws.
Step 17. Remove the spacer from under the seal flange. For safekeeping, clamp it under the Allen screw in the extra hole on the seal carrier.
Step 18. Turn the pump shaft by hand to check rotation. If it binds or drags, disassemble the pump and repeat the assembly procedure.
Step 19. Replace the coupling guards and secure them with screws.
The pump has now been completely reassembled and should be ready for service.
TROUBLESHOOTING GUIDE
Warning: Hazardous Voltage and Risk of Sudden Starts
Disconnect all power to the pump before servicing or working on pump. Make sure that power is locked out and that pump cannot be accidentally started.
| Fault | Possible Cause |
| 1. Motor does not run when started | A. Power failureB. Fuses blownC. Motor starter overload has tripped outD. Main contacts in motor starter are not making contact or the coil is faultyE. Control circuit fuses are defectiveF. Motor is defective |
| 2. Motor starter overload trips out immediately when power supply is switched on | A. One fuse has blownB. Contacts in motor overload relay are faultyC. Cable connections are loose or faultyD. Motor winding is defectiveE. Pump mechanically blockedF. Overload setting is too low |
| 3. Motor starter overload trips out occasionally | A. Overload setting is too lowB. Low voltage at peak times |
| 4. Motor starter has not tripped out but the motor does not run | A. Check 1A, B, D and E |
| 5. Pump capacity is not constant | A. Pump inlet pressure is too lowB. Suction pipe/pump partly blockedC. Pump is sucking air |
| 6. Pump runs but gives no water | A. Suction pipe/pump blockedB. Foot or nonreturn valve is blocked in closed positionC. Leakage in suction pipeD. Air in suction pipe or pumpE. Motor rotates in the wrong direction |
| 7. Pump runs backward when switched off | A. Leakage in suction pipeB. Foot or nonreturn valve is defectiveC. Foot valve is blocked in open or partly open positionD. Nonreturn valve leaks or is blocked in open or partly open positionE. Discharge valve is defective |
| 8. Leakage from shaft seal | A. Pump shaft position is incorrectB. Shaft seal is defective |
| 9. Noise | A. Cavitation is occurring in the pumpB. Pump does not rotate freely (there is increased frictional resistance) because of incorrect shaft position |
REPAIR PARTS LIST FOR PVM32 SERIES

| Ref. No.1 | DescriptionMotor |
| 1A | Motor Capscrew 1/2–13 x 1-1/2″ UNC |
| 2 | Coupling Guard |
| 3 | Coupling Guard Capscrew M5X10 |
| 4 | Motor Stool |
| 5 | Motor Stool Capscrew M10X55, Allen Hd. |
| 6 | Coupling Assembly (Complete) |
| 7 | Coupling Screw M10X25 Allen Hd. |
| 8 | Seal Carrier Screw M10X25 Allen Hd. |
| 9 | Mechanical Seal |
| 10A | Seal Spacer Lock Screw |
| 10B | Seal Spacer |
| 11 | Seal Carrier |
| 12 | Staybolt Nut 5/8-11 |
| 13 | 5/8″ Star Washer |
| 14 | 5/8″ Flat Washer |
| 15 | Pump Head |
| 16 | Fill Plug |
| 17 | O-Ring |
| 18 | Vent Plug with Needle |
| 19 | Shaft |
| 20 | Bearing Ring |
| 21 | Adapter Ring |
| 22 | Washer M10 |
| 23 | Shaft Capscrew M10X16 |
| Ref. No.24A | DescriptionTop Bowl (Type F) |
| 24B | Bowl with Bearing (Type DB) |
| 24C | Bowl with Graphite (Type D) |
| 25 | Collet Lock Nut |
| 26 | Collet |
| 27A | Impeller (Reduced Diameter) |
| 27B | Impeller (Full Diameter) |
| 28 | Strap M8 |
| 29 | Intermediate Bearing |
| 30 | Interconnector (Stack Bottom Plate) |
| 31 | Strap Washer M8 |
| 32 | Strap Nut M8X20 |
| 33 | Sleeve |
| 34 | Staybolt 5/8-11 |
| 35 | Bearing Lock Capscrew (Incl. Washer) M6X8 |
| 36 | Bottom Bearing |
| 37 | Pin |
| 38 | Drain Plug (Includes O-Ring) |
| 39 | Pump Base |
| 40 | Flange Lock Ring |
| 41 | 8-Bolt 300# Flange |
| 42 | 4-Bolt 150# Flange |
| 43 | SS Drain Plug with 1/4 NPT Gauge Tap and Pipe Plug |
| (Not Illustrated) | Rubber Stack Bumpers |
WARRANTY
Seller warrants equipment (and its component parts) of its own manufacture against defects in materials and workmanship under normal use and service for one (1) year from the date of installation or start-up, or for eighteen (18) months after the date of shipment, whichever occurs first. Seller does not warrant accessories or components that are not manufactured by Seller; however, to the extent possible, Seller agrees to assign to Buyer its rights under the original manufacturer’s warranty, without recourse to Seller. Buyer must give Seller notice in writing of any alleged defect covered by this warranty (together with all identifying details, including the serial number, the type of equipment, and the date of purchase) within thirty (30) days of the discovery of such defect during the warranty period. No claim made more than 30 days after the expiration of the warranty period shall be valid. Guarantees of performance and warranties are based on the use of original equipment manufactured (OEM) replacement parts. Seller assumes no responsibility or liability if alterations, non-authorized design modifications and/or non-OEM replacement parts are incorporated If requested by Seller, any equipment (or its component parts) must be promptly returned to Seller prior to any attempted repair, or sent to an authorized service station designated by Seller, and Buyer shall prepay all shipping expenses. Seller shall not be liable for any loss or damage to goods in transit, nor will any warranty claim be valid unless the returned goods are received intact and undamaged as a result of shipment. Repaired or replaced material returned to customer will be shipped F.O.B., Seller’s factory. Seller will not give Buyer credit for parts or equipment returned to Seller, and will not accept delivery of any such parts or equipment, unless Buyer has obtained Seller’s approval in writing. The warranty extends to repaired or replaced parts of Seller’s manufacture for ninety (90) days or for the remainder of the original warranty period applicable to the equipment or parts being repaired or replaced, whichever is greater. This warranty applies to the repaired or replaced part and is not extended to the product or any other component of the product being repaired. Repair parts of its own manufacture sold after the original warranty period are warranted for a period of one (1) year from shipment against defects in materials and workmanship under normal use and service. This warranty applies to the replacement part only and is not extended to the product or any other component of the product being repaired. Seller may substitute new equipment or improve part(s) of any equipment judged defective without further liability. All repairs or services performed by Seller, which are not covered by this warranty, will be charged in accordance with Seller’s standard prices then in effect.
THIS WARRANTY IS THE SOLE WARRANTY OF SELLER AND SELLER HEREBY EXPRESSLY DISCLAIMS AND BUYER WAIVES ALL OTHER WARRANTIES EXPRESSED, IMPLIED IN LAW OR IMPLIED IN FACT, INCLUDING ANY WARRANTIES OF MERCHANTABILITY OR FITNESS FOR A PARTICULAR PURPOSE. Seller’s sole obligation under this warranty shall be, at its option, to repair or replace any equipment (or its component parts) which has a defect covered by this warranty, or to refund the purchase price of such equipment or part. Under the terms of this warranty, Seller shall not be liable for (a) consequential, collateral, special or liquidated losses or damages; (b) equipment conditions caused by normal wear and tear, abnormal conditions of use, accident, neglect, or misuse of said equipment; (c) the expense of, and loss or damage caused by, repairs or alterations made by anyone other than the Seller; (d) damage caused by abrasive materials, chemicals, scale deposits, corrosion, lightning, improper voltage, mishandling, or other similar conditions; (e) any loss, damage, or expense relating to or resulting from installation, removal or reinstallation of equipment; (f) any labor costs or charges incurred in repairing or replacing defective equipment or parts, including the cost of reinstalling parts that are repaired or replaced by Seller; (g) any expense of shipment of equipment or repaired or replacement parts; or (h) any other loss, damage or expense of any nature.
The above warranty shall not apply to any equipment which may be separately covered by any alternate or special warranties.
PERFORMANCE: In the absence of Certified Pump Performance Tests, equipment performance is not warranted or guaranteed. Performance curves and other information submitted to Buyer are approximate and no warranty or guarantee shall be deemed to arise as a result of such submittal. All testing shall be done in accordance with Seller’s standard policy under Hydraulic Institute procedures.
LIABILITY LIMITATIONS: Under no circumstances shall the Seller have any liability under the Order or otherwise for liquidated damages or for collateral, consequential or special damages or for loss of profits, or for actual losses or for loss of production or progress of construction, regardless of the cause of such damages or losses. In any event, Seller’s aggregate total liability under the Order or otherwise shall not exceed the contract price.
ACTS OF GOD: Seller shall in no event be liable for delays in delivery of the equipment or other failures to perform caused by fires, acts of God, strikes, labor difficulties, acts of governmental or military authorities, delays in transportation or procuring materials, or causes of any kind beyond Seller’s control.
COMPLIANCE WITH LAW: Seller agrees to comply with all United States laws and regulations applicable to the manufacturing of the subject equipment. Such compliance shall include: The Fair Labor Standards Acts of 1938, as amended; Equal Employment Opportunity clauses of Executive Order 11246, as amended; Occupational Safety and Health Act of 1970 and the standards promulgated thereunder, if applicable. Since compliance with the various Federal, State, and Local laws and regulations concerning occupational health and safety, pollution or local codes are affected by the use, installation and operation of the equipment and other matters over which Seller has no control, Seller assumes no responsibility for compliance with those laws and regulations, whether by way of indemnity, warranty, or otherwise. It is incumbent upon the Buyer to specify equipment which complies with local codes and ordinances.
800 Airport Road
North Aurora, Illinois 60542
630-859-7000
www.aurorapump.com


















