gorenje GI52040X Dishwasher

WHAT’S INCLUDE

TOOL REQUIRED

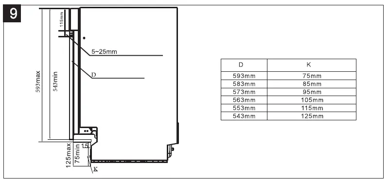
DIMENSION


INSTALLATION




TOOL REQUIRED





Download manual
Here you can download full pdf version of manual, it may contain additional safety instructions, warranty information, FCC rules, etc.