ProDIGy PLUS N0922 900lb Nugget Ice Machine

Features & Benefits
- Available in softer, Original Chewable Nugget Ice and harder, H2 Nugget Ice
- Sealed, maintenance-free bearings for reduced preventative maintenance and long-lasting performance
- Stainless steel evaporator and auger for maximum durability
- AutoAlert™ indicator lights for better visibility
- Operational footprint among the industry’s smallest
- Unit-specific QR code for quick access to service manuals, cleaning guides and warranty history
- Front-breathing – No side clearance required for Flexible placement
- Smart-Board™ advanced feature module available for additional diagnostic capabilities
- Optional Vari-Smart™ ice level control allows operators to customize ice levels
- Antimicrobial protection guards internal surfaces between cleanings
- A full range of water- and energy-saving features

Sealed, maintenance-free bearings ensure maximum reliability and contribute to a long machine life

Available in softer, Original Chewable Nugget Ice or harder, H² Nugget Ice
Nugget Ice
Original Chewable Nugget
Ice Hardness Rating:
Soft = 74%

H² Nugget
Ice Hardness Rating:
Hard = 87%
Certification

Warranty
- 3 years parts and labor on all components.
- 5 years parts on the compressor.
- Warranty valid in North, South & Central America for commercial installations.
- Contact factory for warranty in other regions.
- Residential Applications: 1 year parts and labor
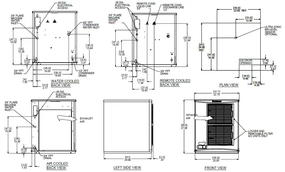
DIMENSION

Specifications

All Models

Accessories

Scotsman recommends all ice machines have water filtration. See Scotsman water filter specification sheet for details.
Operating Requirements
Specifications and design are subject to change without notice.
101 Corporate Woods Parkway, Vernon Hills, IL 60061
1-800-SCOTSMAN
Fax: 847-913-9844
www.scotsman-ice.com
[email protected]
2020 Scotsman Ice Systems.



















