
User’s manual
Customer Service
US: 1-800-645-2986
Bench-In-A-Box
Technical Workbench
B2334698: 72″W x 30″D ESD Laminate Top (ref page 3)
B2334699: 72″W x 30″D Plastic Laminate Top
B2334700: 60″W x 30″D ESD Laminate Top (ref page 3)
B2334701: 60″W x 30″D Plastic Laminate Top
- Sleeve leg Extender into leg at desired Height and place bolt assembly as shown and tighten.
- Screw nylon glide into leg extenders.
- Assemble front and back rail using stud plates and locknuts provided. The 2 x 2 x 1 channel is for the front of the unit and the 1 x 8 channel is for the rear then attach the 1/4″ – 20 x 3/4″ hex head bolt and flat washer to the bottom-most hole in the back rail. (before tightening nuts, make sure that the front rail and the back rail are pushed inward approximately 1/8″ to allow the work surface to be mounted properly),
Note: Holes in rails should be facing up. - Place worksurface bottom up on a protected surface (to protect laminate from scratches). Place assembled frame on backside of top, locate flush with back edge of leg. (seam of edging to back). Pre-drill holes 1/2″ deep and screw #12 x 3/4″ screws in to secure frame to top.
- Set bench upright and adjust nylon.

- Sleeve leg extender into leg at desired height and place bolt assembly as shown and tighten.
- Screw Nylon glides into leg extenders.
NOTE: If the leg extenders are fitting tightly and are not sliding easily into the legs, remove extender and with a rubber mallet hit along both sides of the extender to slightly bend the channel inwards.
- Assemble footrest as shown using 1/4″ – 20 x 2 1/4″ flat Allen head bolt, finish washer, flat washer and kepnuts provided.

ESD installation only for below models:
B2334698: 72″W x 30″D ESD Laminate Top
B2334700: 60″W x 30″D ESD Laminate Top
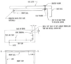
- Drill 3/8″ hole in work surface per measurements in the top view (if not already pre-drilled).
- Install 5/16″ x 2 1/2″ hex head bolt, ring terminal and serated through work surface. On underside of work surface install washer, ring terminal, washer, ringer terminal, washer, and nut in this order and tighten.
- Mount Jacks into front rail using nuts provided.
- Run wires in manner shown in top view using wire ties and self stick pads (4 to 6 per bench)
NOTE: Pads stick better to metal surfaces. - Cut wires to appropriates length by pulling wires (to remove excess slack) towards the hole in the work surface and adding 1″ to that. Strip wires back 1/4″ and install the ring terminal by crimping it to both exposed wires at the same time.

- Mount brackets as shown to the padlock drawer using 1/4″ hex head bolts, nuts and washers. (tighten bolts on rear bracket nut leave bolts on front plate loose).
- Slide padlock drawer over front rail of bench sandwiching front rail between padlock drawer and plate.
- Set the padlock drawers as close to the left leg as possible and flush with the front rail.
- Install #12 Phillips pan head screws through rear bracket and into bottom of the worksurface. Tighten the bolts securing the front hanging plate.
Note: Padlock drawers are more easily mounted when bench is flipped upside down.

- Remove drawer from housing.
- Mount brackets to drawer using 1/4″ x 3/4″ hex head bolts and washers as shown. (tighten bolts on rear bracket but leave bolts on front plate loose).
- Slide housing over front rail of bench sandwiching front rail between housing and plate.
- Set drawer housing a minimum of 1″ away from leg and 3/4″ set back from front rail.
- Install five (5) #12 Phillips pan head screws through rear bracket and into bottom of the work surface. Tighten the bolts securing the front hanging plate.
Note: Drawers are more easily mounted when bench is flipped upside down.

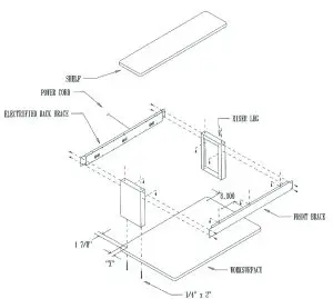
If worksurface is not already predrilled, drill the work surface with 3/8″ dia. drill bit per dimensions for your particular size shelf on drawing and chart.- Mount the electrical back brace and front brace to riser legs using 1/4″ -20 x 3/4″ truss head bolt.
- Mount shelf evenly on riser assembly (front brace and riser legs) using #12 3/4″ Phillips pan head screws (make sure that the “seam of the “T” mold edge is facing the rear of the station and that there is equal overhang on either side and for front to back overhang, locate that dimension on the chart.
- Mount riser leg assembly to the work surface with 1/4″ x 2″ flat allen head bolts provided.



If worksurface is not already predrilled, drill the work surface with 3/8″ dia. drill bit per dimensions for your particular size shelf on drawing and chart.

















