BLK BOX
WALL-MOUNTED DOUBLE WALL BALL TARGET
21-0208-0C

OWNERS MANUAL & QUICK START GUIDE
NOTE: PLEASE READ ALL THE INSTRUCTIONS CAREFULLY BEFORE ASSEMBLING THIS PRODUCT.
PRODUCT SPECIFICATION
| PRODUCT WEIGHT | 6.7kg |
| DIMENSIONS | 72mm x 340mm x 540mm |
WARNING
SERIOUS OR FATAL INJURIES MAY OCCUR FROM INCORRECTLY ASSEMBLED EQUIPMENT. ALWAYS ENSURE BOLTS ARE TIGHTENED CORRECTLY AND ALL PARTS ARE LEVEL AND PLUMB. TO FURTHER REDUCE RISK OF INJURIES OR DEATH PLEASE USE OUR SUGGESTED TOOLS AND PERSONAL PROTECTIVE EQUIPMENT (PPE). WE SUGGEST THAT A MINIMUM OF THREE PEOPLE ARE INVOLVED IN THE ASSEMBLY OF THIS PRODUCT. EACH PERSON SHOULD BE EQUIPPED WITH SAFETY GLASSES, STEEL TOE CAP BOOTS, AND EARPLUGS.
![]()
THIS SYMBOL IS AN INDICATION OF THE RECOMMENDED TORQUE EACH BOLT SHOULD BE TIGHTENED TO. THIS VALUE WILL BE DEPENDENT ON THE BOLT TYPE. PLEASE HAND TIGHTEN ALL BOLTS UNTIL YOU SEE THIS SYMBOL.
TOOLS REQUIRED

| No. | Name | SKU | QTY |
| 1 | WALL BALL | 21-0224-0A | 2 |
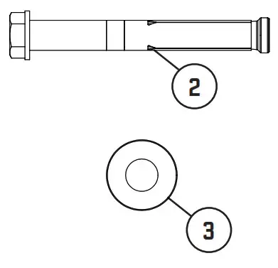
| 2 | TARGET | 10-0031 | 4 |
| 3 | M10X80 SLEEVE | 10-0019 | 4 |
PARTS & ATTACHMENTS


INSTALLATION
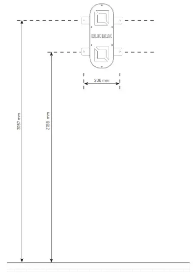
MARK DRILLING LOCATIONS USING THE GUIDE BELOW. THE ADVISED HEIGHTS WILL ENSURE TARGET IS MOUNTED THAT THE TOP WALL BALL TARGET IS 10 FOOT HIGH, AND THE BOTTOM ONE IS 9 FOOT. HOLES ARE SPACED 300 MM APART.
BOLT 1QTY WALL BALL TARGET (21-0224-0A) TO THE WALL USING 4QTY SLEEVE ANCHOR BOLTS (10-0031) AND 4QTY M10 WASHERS (10-0019) DRILL HOLES AND MOUNT USING GUIDE AS SHOWN BELOW, TIGHTEN TO SPECIFIED TORQUE.
- DRILL 10MM HOLE IN WALL, 90MM DEEP USING PLATE AS A GUIDE.
- VACUUM OUT THE DUST.
- HAMMER SLEEVE ANCHOR INTO THE HOLE.
- TIGHTEN SLEEVE ANCHOR TO SPECIFIED TORQUE USING 13MM SPANNER.
SLEEVE ANCHOR BOLT FITTING
SCALE FASTENERS

FOR TERMS AND CONDITIONS VISIT OUR WEBSITE AT
www.blkboxfitness.com/pages/terms-conditions
GET IN TOUCH
TEL:028 9045 4123
EMAIL: [email protected]
DISCOVER MORE AT:
www.blkboxfitness.com
#MADEINBELFAST

















