REHAU Nea Smart 2.0 R-Module 24 V

Safety Instructions and Product Conformity
Risk of life through electrical shock! The electrical installation must follow the applicable national standards and guidelines as well as any specific requirements of your local energy supplier. These instructions are intended for use by a qualified person who is holding an official certificate in one of the following professions:
electrician or electronics engineer.Always read the instructions prior to commencing the installation. Connection to the final power supply must only be carried out after the installation is complete.Hereby, REHAU Industries SE & Co. KG declares that the radio equipment type Nea Smart 2.0 is in compliance with Directive 2014/53/EU. The full text of the EU declaration of conformity is available at the following internet address: www.rehau.com/neasmart2
System Overview

Scope of Delivery

Wall Installation

DIN Rail Installation

Electrical voltage! Danger to life!
The system is live.
- Prior to opening always disconnect from the mains and secure all components of the system in such a way that they cannot accidentally be switched on.
- Disconnect external voltages at the relay contacts and secure against unintended activation.
- Check for absence of voltage!
Diagrams

or

Electrical terminations
Solid cable
0,5-1,5 mm²

Multiple stranded cable
1,0-1,5 mm²

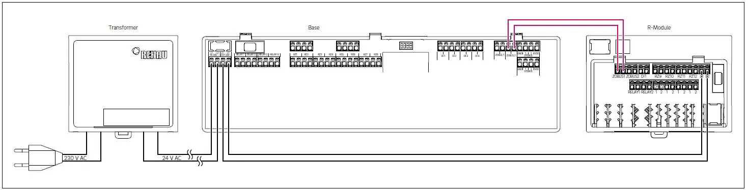
Freely configurable
- A. Zone Bus
- B. Digital Input 1
- C. Zone 9-12
- D. Relay 1
5 A, Class 2 - E. Relay 2
5 A, Class 2 - F. Fuse T2A
Additional information
This document is protected by copyright. All rights based on this are reserved. No part of this publication may be translated, reproduced or transmitted in any form or by any similar means, electronic or mechanical, photocopying, recording or otherwise, or stored in a data retrieval system.
Our verbal and written advice with regard to usage is based on years of experience and standardised assumptions and is provided to the best of our knowledge. The intended use of REHAU products is described comprehensively in the technical product information. The latest version can be viewed at www.rehau.com/TI. We have no control over the application, use or processing of the products. Responsibility for these activities therefore remains entirely with the respective user/processor.
Where claims for liability nonetheless arise, they shall be governed exclusively according to our terms and conditions, available at www.rehau.com/conditions, insofar as nothing else has been agreed upon with REHAU in writing. This shall also apply for all warranty claims, with the warranty applying to the consistent quality of our products in accordance with our specifications. Subject to technical changes.
954634 03.2022 © REHAU Industries SE & Co. KG, Rheniumhaus, 95111 Rehau
References
Conditions of Sale worldwide | REHAU
REHAU TI Portal - Find specific technical information
REHAU North America
REHAU Group | Engineering progress – Enhancing lives
Conditions of Sale worldwide | REHAU
NEA SMART 2.0 Manager | REHAU
REHAU TI Portal - Find specific technical information
Szállítási és Fizetési Feltételek


















