
NUAIRE MRXBOXAB-ECO2B-AESW Mechanical Ventilation Units

SAFETY INFORMATION
- The provision of the electrical supply and the connection of the unit to the electrical supply must be carried out by a qualified electrician in accordance with latest edition of the wiring regulations.
- Isolate from power supply before removing any covers. During installation/maintenance ensure all covers are fitted before switching on the mains supply.
- All-pole disconnection from the mains as shown in the wiring diagram must be incorporated within the fixed wiring and shall have a minimum contact separation of 3mm in accordance with latest edition of the wiring regulations.
- This unit must be earthed.
- Ducting must be securely fixed with screws to the spigot to prevent access to live parts. Duct runs terminating close to the fan must be adequately protected by suitable guards.
- If the supply cord is damaged, it must be replaced by the manufacturer, its service agent or similarly qualified persons in order to avoid a hazard. The replacement cord must be of the same technical specification as the original cord or greater.
- Precautions must be taken to avoid the back-flow of gases into the room from the open flue of gas or other fuel-burning appliances.
- This appliance should not be used by children or persons with reduced physical, sensory or mental capabilities or lack of experience and knowledge, unless they have been given supervision or instruction concerning the safe use of the appliance by a person responsible for their safety. Children shall not play with the appliance. Cleaning and user maintenance shall not be carried out by children.
Hazard Symbols
REFER TO THE INSTRUCTION MANUAL
Read and understand the installation and maintenance manual before installing, operating or maintaining this product.
Important Information
This manual contains important information on the safe and appropriate assembly, transport, commissioning, operation, maintenance, disassembly and simple troubleshooting of the product.
While the product has been manufactured according to the accepted rules of current technology, there is still a danger of personal injury or damage to equipment if the following general safety instructions and the warnings contained in these instructions are not complied with.
- Read these instructions completely and thoroughly before working with the product.
- Keep these instructions in a location where they are accessible to all users at all times.
- Always include the operating instructions when you pass the product on to third parties.
Personal Protective Equipment
The following minimum Personal Protective Equipment (PPE) is recommended when interacting with Nuaire products:
- Protective Steel Toed Shoes – when handling heavy objects.
- Full Finger Gloves (Marigold PU800 or equivalent) – when handling sheet metal components.
- Semi Fingerless Gloves (Marigold PU3000 3DO or equivalent)
- when conducting light work on the unit requiring tactile dexterity.
- Safety Glasses – when conducting any cleaning/cutting operation or exchanging filters.
- Reusable Half Mask Respirators – when replacing filters which have been in contact with normal room or environmental air.
Nuaire would always recommend a site-specific risk assessment by a competent person to determine if any additional PPE is required.
INTRODUCTION
The ECO2B-AE wall-mounted range of units are designed to offer improved sound levels and an aesthetically pleasing by housing a Mechanical Ventilation with Heat Recovery R) in acoustically lined enclosure.
The MVHR unit is fitted with two independent fans. Each f full speed control for background and boost ventilation rates. To recover heat from the extracted air the heat exchanger block is utilis exchanger can recover up to 95% of the normally wasted heat.
If the MVHR unit has integral automatic HX bypass (AB models only), the bypass damper shall open automatically via a wax actuator allowing the air to bypass the heat exchanger to deliver fresh filtered air during the warmer months.
Bypass operation can be disabled via a manual switch in colder months so the unit recovers heat continually.


The unit must remain switched on at all times to maintain ventilation within the dwelling. Turning the unit off will cause long-term damage to the unit and building fabric.
This appliance is not intended for use by persons (including children) with reduced physical, sensory or mental capabilities, or lack of experience and knowledge unless they have been given supervision or instruction concerning the use of the appliance by a person for their safety. Children should be supervised so that they do not play with the appliance.
MECHANICAL INSTALLATION
Installation must be carried out by competent personnel in accordance with the appropriate authority and conforming to all statutory governing regulations. All mains wiring must be in accordance with the current I.E.E. Regulations, or the appropriate standards. Ensure that the mains supply (Voltage, Frequency and Phase) complies with the rating label.
Please allow a minimum of 350mm in front of the enclosure.
The fan must be installed indoors, on a suitable wall away from direct sources of frost, heat and water spray or moisture generation.
For a vibration-free result the unit must be mounted to a non-reverberant wall.
Transportation Fixings
To prevent damage during transportation the product is shipped with securing fixings, these can be found front and centre of the enclosure top panel (Figure 3). These must be removed before use, failure to do so will result in excessive vibration and noise. The screws removed can be discarded and replaced with rubber caps provided.

Wall Mounting
The unit is designed for wall mounting on a solid wall only, a gypsum block/plasterboard wall will not suffice. Examples of suitable installation are shown overleaf. The wall brackets supplied should be secured to the wall using suitable fixings (supplied by others) as per the dimensions given in Figure 4; the head of the chosen fixing should protrude no more than 8mm from the wall bracket. The enclosure assembly can then be lifted using suitable equipment and moved into position so it is sitting directly on the wall brackets (ensuring the rear panel of the enclosure is not in contact with the wall bracket fixings).
The enclosure can be secured to the wall brackets using the 4x M8 fixings supplied.
No part of enclosure should be in contact with the building structure, the only components that should be in contact are the wall mounting brackets.
Care must be taken to ensure the unit is installed true in all 3 dimensions. Failure to do so may result in overflow from the internal condensation drip tray.

Solid Wall Mounting (Recommended)
The MVHR unit fixed to a solid wall construction using the mounting bracket provided.

Stud Partition Wall Mounting (Alternative)
If it is not practical to use a solid wall, the unit should be fixed to a stud partition with a 25mm minimum thickness MDF panel solidly fixed behind the plasterboard.
If fixing to a stud wall the MDF panel should extend, width-wise, over a minimum of 3 vertical studs with centers of no more than 400mm.
A vertical stud should be located to correspond with the position each mounting bracket is to be fixed to provide additional support.
Add additional vertical supports if necessary. Height-wise, the MDF panel should extend from floor to ceiling.
Fix the mounting bracket to the wall (Figure 4) and use the wall-mounted bracket to mount the unit on (as shown in Figure 6).

Condensate Drain
The MVHR unit inside the enclosure is fitted with a straight coupling to allow a 21.5mm overflow pipe (not supplied) to be attached using solvent cement, the pipe should be passed through the flexible adhesive-backed cover plate before the solvent cement is applied.
The pipe can then be inserted into the coupling of the MVHR unit and the cover plate slid along the length to bond against the base panel of the enclosure preventing noise breakout (Figure 7).
- The condensate must be discharged under a water level in a U-trap drainpipe or an alternative drain method that acts as an airlock.
- This condensate discharge connection is suitable for a 21.5mm diameter overflow pipe. Solvent cement should be used to make the joint.
- If using a U-trap please ensure the U-trap has been filled to a suitable level of water to avoid any air locks.
- If the condensation pipe is fitted in an unheated space the pipe should be in insulated to prevent freezing.
Nuaire recommends that MVHR-DRAIN be used as the primary condensate take-off (Figures 9 and 10).



When using a “T” Piece to connect the CONTRAP drainage and the MVHR drain pipework the MVHR drain must always be fitted before the “T” Piece.

Extract & Supply Areas
The unit is designed to extract air from all wet rooms e.g. bathroom, kitchen, en-suite, and utility room (with sink). WCs do not need to be ventilated if openable windows are fitted.
Supply air should be to all habitable rooms e.g. bedrooms and lounge.
Extract/input grilles should be adjustable valve types (not supplied).
External grilles are to have a minimum free area of 12,250 mm2.
Ducting
Before commencing ducting installation reference should be made to the building regulations document “Domestic ventilation compliance guide”. This document supports ADF2010 and details the installation, testing and commissioning of all ventilation systems. If the enclosure is to be used in conjunction with an ancillary distribution box (MRXBOX-DB2) refer to additional assembly instructions supplied with the MRXBOX-DB2 as requirements will differ.
Otherwise fit 4x 125mm diameter plastic spigots with the self-tapping screws supplied to the spigot fixings plates found on the top panel of the enclosure, a bead of silicone should be applied to the groove of spigot fixing plate to prevent leakage (Figure 3).
It is recommended that rigid ducting be used at all times. Flexible ducting has a very high resistance and it is impossible to calculate how much resistance will be on a system if used.
If used the flexible ducting must be kept to a minimum and should always be pulled taut. A maximum of 300mm should be used on each leg.
To prevent condensation on the outside of the outside air inlet duct and the air outlet duct from the unit, these ducts should be insulated.
Ducting must be installed in such a way that resistance to airflow is minimized. Bends should be kept to a minimum.
A minimum distance of 300mm between the appliance and any bends in ductwork is recommended.
Ideally, 125mm diameter or 220 x 90mm rectangular ducting should be used (Refer to dwelling design drawing, Figures 12 & 13 for further information).
Ducting joints must be sealed with silicone-type sealant and shall be adequately and reliably fixed to the appliance.
Any air intake terminal MUST be installed in accordance with the appropriate regulation.
As a guide, the BS5440 series of British Standards deals with this issue and currently states that an air intake must be at a minimum distance of 300mm from a gas boiler balanced flue.
Installers are advised to be aware of the requirements of this standard when installing ‘through the wall’ supply air ducting.
Ventilation Flow Rates
3.6.1 ADF 2010 – Extract Ventilation Rates

Whole Dwelling Ventilation Rates

- In addition, the minimum ventilation rate should be no less than 0.3 l/s per m2 of internal floor area. (This includes all floors, e.g. for a two-story building add the ground and first floor areas).
- This is based on two occupants in the main bedroom and a single occupant in all other bedrooms. This should be used as the default value. If a greater level of occupancy is expected add 4 l/s per occupant.
ADF 2010 Ventilation Calculations Design Of MVHR
Systems
The MVHR system has been sized for the winter period. Additional ventilation may be required during the warmer months and it has been assumed that the provisions for purge ventilation (e.g. openable windows) could be used.
Step 1: For any design air permeability, determine the whole dwelling ventilation supply rate from Table 2.
As an alternative where the design air permeability is intended to be more than (>) 5m3/(h.m2) 50 Pa, allow for infiltration for all dwelling types by subtracting from the whole dwelling ventilation supply rate from Table 2; 0.04 x gross internal volume of the dwelling heated space (m3).
Step 2: Calculate the whole dwelling extract ventilation rate by summing the individual room rates for ‘minimum high rate’ from Table
- (For sanitary accommodation only, as an alternative, the purge
ventilation provisions given in ADF 2010 can be used where security is not an issue. In this case ‘minimum high extract rate’ for the sanitary accommodation should be omitted from the step 2 calculation).
Step 3: The required airflow rates are as follows:
- The maximum whole dwelling extract ventilation rate (e.g. boost) should be at least greater of step 1 and step 2. Note that the maximum individual room extract rate should be at least those given in table 1.
The minimum air supply rate should be at least the whole building ventilation rate found in step 1.
For Scotland refer to BRE Digest 398.
For further information refer to “Domestic Ventilation Compliance Guide” www.planningportal.gov.uk/buildingregulations/approved documents/partl/compliance
Pre Commissioning MRXBOX MVHR Units
MRXBOX units are designed to ventilate the whole dwelling and must not be used during site construction or the clean-up period. Cement and plaster dust can be abrasive and can affect fan performance and reliability. Please ensure that the filters are checked prior to commissioning to ensure there is no build-up of dust or debris.
While the property is drying out, very high moisture levels are likely to occur. Therefore it is advisable that if the installation and building works are complete the unit is left running. If the building works are not complete please close the air valves or cover up the air valves to prevent condensation forming in the ductwork and the MRXBOX95 unit due to natural migration of warm air.
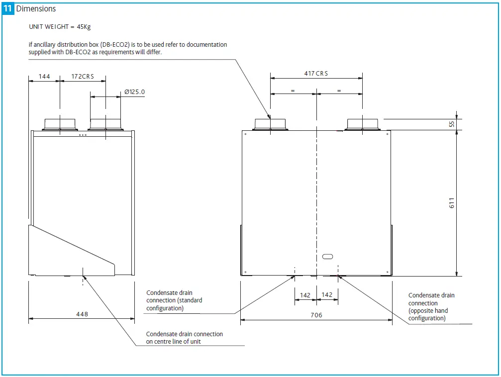
Dimensions

Ducting Arrangements – Standard Configuration Unit
Circular Ducting

Rectangular Ducting


ELECTRICAL INSTALLATION
For good EMC engineering practice, any sensor cables or switched live cables should not be placed within 50mm of other cables or on the same metal cable tray as other cables.
The electrical connection of the unit must be carried out by a qualified electrician.
The unit is supplied with a flexible cord for connection to the mains supply.
Electrical Information
Electrical details:
Voltage: 240V 1ph 50Hz
Consumption: 1.2 Amp
This unit must be earthed.
The cable from the mains power supply should be connected to a fixed wiring installation, via a fused isolator, in accordance with current IEE wiring regulations.
Wiring is for reference purposes only as the connections in Figure 14 are factory fitted. The unit is pre-wired with a 2-meter fly lead.

Wiring Diagrams
Unit Serving Kitchen & Bathroom
Optional Controls – For further information regarding optional controls, contact Nuaire on 02920 858 400.
Disconnection from the supply mains must be incorporated within the fixed wiring in accordance with the wiring regulations and shall have a minimum contact separation of 3mm.

Unit Serving Kitchen & 2 Bathrooms
Disconnection from the supply mains must be incorporated within the fixed wiring in accordance with the wiring regulations and shall have a minimum contact separation of 3mm.

Summer / Winter Switch

COMMISSIONING
The filters fitted inside the unit are protected with a plastic film.
Prior to commissioning remove the covers (Figure 20, take off the film and replace.
- For the required airflow rates please refer to the design specification for the property, follow Scetion 3.7, or refer to building regulations ADF 2010.
- The unit is supplied with independent control for both normal and boost airflows (Figure 18).
- Correct commissioning is essential to ensure the ventilation air flow rates are met. It also ensures the unit is not over ventilating and causing excessive power consumption.
- Commissioning should be carried out in accordance with building regulations document “Domestic ventilation compliance guide”. www.planningportal.gov.uk/building regulations/approved documents/parts/associated A calibrated moving vane anemometer and hood will be required to carry out commissioning.
- Adjustment valves should be locked in place to prevent further adjustment.
- Once commissioned the homeowner/tenant should be informed that the unit should not be adjusted as it will have a detrimental effect on the indoor air quality and could result in condensation and mold growth. The clear panel covering the control has an adhesive panel which should be exposed and sealed post commissioning to prevent tampering.
- Speed 1 is limited to never exceed speed 2, when commissioning speed 2 should always be set first.

CONTROLS
Humidity Adjustment
This product contains an internal humidity sensor fitted into the airflow extracting from the wet rooms. When the unit senses that the humidity exceeds the set point the unit will boost to that set by the commissioned boost speed. The set point can be found behind the front of the unit (Figure 18) and is at its least sensitive when turned fully clockwise. Note that the sensor is measuring humidity from all the wet rooms at the same time and should not be relied on to solely boost the unit. Additional switch should be used local to the wet rooms (see wiring diagrams).
Adjustment only to be carried out by qualified person, isolate power before removing cover.
Status Indication
The status of the unit is indicated by a series of LED’s on the front cover.
The variants are listed below.
The display on the unit control panel will not indicate when a higher speed setting has been triggered by an external source.

Integral Automatic HX Bypass
Intake and extract temperatures are monitored at the point the airflows enter the unit, if the range falls within the set parameters the bypass damper is opened automatically to target an indoor comfort temperature all year round.
The extract temperature is average from all wet rooms. If this exceeds 25°C the unit may go into bypass depending on outside temperatures.
Summer / Winter Switch
When the switch position is set to Summer the integral automatic summer bypass is fully operational, in the alternative Winter position the HX bypass is disabled to ensure the unit is constantly in heat recovery mode.
Speed 3 Operation (SW Units Only)
Speed 3 will be non-operational if the intake temperature is greater than the extract temperature.
Frost Protection
In the event of the intake air temperature at the unit dropping below the predetermined set point (-5°C as standard) the supply fan will reduce to minimum speed, once the temperature rises above the set point the fan will return to its commissioned speed.
Please note this mode will only activate after ten days of continuous run time. If commissioning of the unit is outside of this time frame please notify the after sales department prior to site visit.
MAINTENANCE
It is important that maintenance checks are recorded and that the schedule is always adhered to, in all cases, the previous report should be referred to.
Isolation – Before commencing work make sure that the unit, switched live and control are electrically isolated from the mains supply and switched live supply.
Routine Maintenance
Nuaire recommend that filters are inspected every 6 months and replaced every 12 months. A flashing LED (Section 6.2) will indicate that a filter change is required. This indication repeats every 12 months and will turn off automatically after 5 Days.
Remove the filter covers on the front panel of the unit by gripping the two circular tabs either end of the filter covers and pulling away from the unit. The filter can now be extracted by pulling the removal loop on the front edge of the filter. Once the filters have been inspected return or replace them as necessary.
Inspect the heat exchanger every 5 years. Generally check for damage and security of components. Refit cover.

WARRANTY
The 5 year warranty starts from the day of delivery and includes parts and labour for the first year. The remaining period covers replacement parts only.
This warranty is void if the equipment is modified without authorisation, is incorrectly applied, misused, disassembled, or not installed, commissioned and maintained in accordance with the details contained in this manual and general good practice.
The product warranty applies to the UK mainland and in accordance with Clause 14 of our Conditions of Sale. Customers purchasing from outside of the UK should contact Nuaire International Sales office for further details.
END-OF-LIFE AND RECYCLING
Where possible Nuaire use components which can be largely recycled when the product reaches its end-of-life:
- Fans, motors, controls, actuators, cabling and other electricalcomponents can be segregated into WEEE recycling streams.
- Sheet metal parts, aluminium extrusion, heating/cooling coils and other metallic items can be segregated and fully recycled.
- EPP, plastic ducting, nylon corner pieces, plastic heat exchangers, packaging material and other plastic components can be segregated into mixed plastic and widely recycled.
- Cardboard packaging, wood, used filters and other paper components can be largely recycled or fully processed in energy from waste centres.
- Remaining Items can be further segregated and processed in accordance with the zero waste hierarchy. Please call After Sales Support for further information on items not listed above.
Ensure that Nuaire product is made safe from any electrical / water/ refrigerant supplies before dismantling commences. This work should only be undertaken by a qualified person in accordance with local authority regulations and guidelines, taking into account all site based risks.
AFTER-SALES AND REPLACEMENT PARTS
For technical assistance or further product information, including spare parts and replacement components, please contact the After Sales Department.
If ordering spares please quote the serial number of the unit together with the part number, if the part number is not known please give a full description of the part required. The serial number will be found on the identification plate attached to the unit casing.
The supply cable must be replaced by an electrically competent person.
Telephone 02920 858 400
[email protected]
Technical or commercial considerations may, from time to time, make it necessary to alter the design, performance and dimensions of equipment and the right is reserved to make such changes without prior notice.




















