
vaillant VRC 720/3 sensoCOMFORT RF Weather Compensating System Instruction Manual

VRC 720/3
1. Safety
1.1 Intended use
In the event of inappropriate or improper use, damage to the product and other property may arise.
The product is intended for using an eBUS interface to control a heating installation with heat generators from the same manufacturer.
The system control controls based on the installed system:
- Heating
- Cooling
- Ventilation
- Domestic hot water generation
- Circulation
Intended use includes the following:
- observance of accompanying operating, installation and maintenance instructions for the product and any other system components
- installing and setting up the product in accordance with the product and system approval
- compliance with all inspection and maintenance conditions listed in the instructions.
Intended use also covers installation in accordance with the IP code.
This product can be used by children aged from 8 years and above and persons with reduced physical, sensory or mental capabilities or lack of experience and knowledge if they have been given supervision or instruction concerning use of the product in a safe way and understand the hazards involved. Children must not play with the product. Cleaning and user maintenance work must not be carried out by children unless they are supervised.
Any other use that is not specified in these instructions, or use beyond that specified in this document, shall be considered improper use. Any direct commercial or industrial use is also deemed to be improper.
Caution.
Improper use of any kind is prohibited.
1.2 General safety information
1.2.1 Qualification
The following work must only be carried out by competent persons who are sufficiently qualified to do so:
- Set-up
- Dismantling
- Installation
- Start-up
- Decommissioning
Work and functions that must only be carried out or set by the competent person are marked by the
symbol.
▶ Proceed in accordance with current technology.
1.2.2 Danger caused by improper operation
Improper operation may present a danger to you and others, and cause material damage.
▶ Carefully read the enclosed instructions and all other applicable documents, particularly the “Safety” section and the warnings.
▶ As the end user, you should only carry out those activities for which these instructions provide instructions and that are not marked with the
symbol.
1.3
— Safety/regulations
1.3.1 Risk of material damage caused by frost
▶ Do not install the product in rooms prone to frost.
1.3.2 Regulations (directives, laws, standards)
▶ Observe the national regulations, standards, directives, ordinances and laws.
2 Product description
2.1 Which nomenclature is used?
- System control: Instead of VRC 720
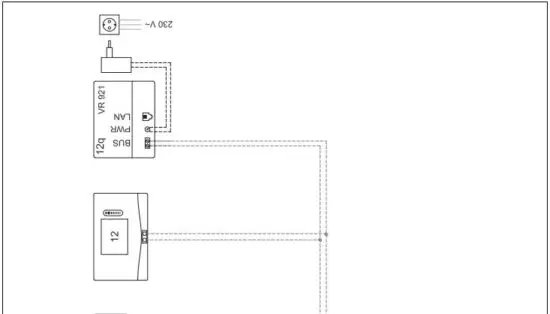
- Remote control: Instead of VR 92
- FM3 or FM3 functional module: Instead of VR 70
- FM5 or FM5 functional module: Instead of VR 71
2.2 What is the effect of the frost protection function?
The frost protection function protects the heating installation and flat from frost damage.
At outdoor temperatures
- Below 4 °C for longer than four hours, the system control switches the heat generator on and regulates the target room temperature to at least 5 °C.
- Above 4 °C, the system control does not switch the heat generator on, but it monitors the outdoor temperature.
2.3 What do the following temperatures mean?
Desired temp. is the temperature to which you want to heat or cool the living rooms.
Set-back temp. is the level below which the temperature in the living rooms does not fall when outside of the time periods.
Flow temp. is the temperature at which the heating water leaves the heat generator.
Domestic hot water temperature is the temperature to which the domestic hot water cylinder is to be heated.
2.4 What is a zone?
A building can be divided into multiple areas, which are known as zones. A different requirement can be placed on the heating installation in each zone. Examples for dividing into zones:
- Underfloor heating (zone 1) and a radiator system (zone 2) are available in one building.
- A building is made up of several self-contained residential units. Each residential unit has its own zone.
2.5 What is the circulation?
An additional water pipe is connected to the domestic hot water pipe and forms a circuit with the domestic hot water cylinder. A circulation pump facilitates the continuous circulation of domestic hot water through the pipework system which means that hot water is immediately available, even at more distant draw-off points.
2.6 What is a fixed value control?
The system control regulates the flow temperature to two fixed temperatures, which are independent from the room or outdoor temperature. This control is suitable for a door air curtain or swimming pool heating, for example.
2.7 Prerequisites for heating mode
- The outdoor temperature must be lower than the temperature that the competent person has set in the MENU | SETTINGS | Installer level | Installation configuration | Circuit 1 | OT switch-off threshold: °C function.
- In the MENU | CONTROL | Zone | Heating | Mode: function, you have selected Manual or Time-contr..
- Domestic hot water mode is not active.
- For the MENU | SETTINGS | Installer level | Installation configuration | Circuit 1 | Ext. heat demand: function, the competent person has defined that a signal from an external control can deactivate the operation of a zone. The function has enabled the operation of a zone.
For heat pumps, also note the following:
- In the MENU | SETTINGS | Installer level | Installation configuration | Installation | ESCO: function, the competent person has defined that an external signal can deactivate the heating mode. The function has enabled heating mode.
For heat pumps that are equipped with the cooling mode function, also note the following:
- The MENU | CONTROL | Cooling for several days function must be deactivated.
- The competent person has activated the MENU | SETTINGS | Installer level | Installation configuration | Installation | Automatic cooling: function. The function automatically switches between heating and cooling mode. The function has enabled heating mode.
- The competent person has defined the Ext. cooling mode in the MENU | SETTINGS | Installer level | Installation configuration | HP control module configuration | MI: function. A signal from an external control switches between heating and cooling mode. As long as no signal is present, heating mode is active.
2.8 Prerequisites for the cooling mode
- The heat pump is equipped with the cooling mode function.
- The competent person has set up the heat pump via the required functions for cooling mode. Retroactively setting cooling mode (→ Section 5.4)
- In the MENU | CONTROL | Zone | Cooling | Mode: function, you have selected Manual or Time-contr..
- Domestic hot water mode is not active.
- For the MENU | SETTINGS | Installer level | Installation configuration | Circuit 1 | Ext. heat demand: function, the competent person has defined that a signal from an external control can deactivate the operation of a zone. The function has enabled the operation of a zone.
- In the MENU | SETTINGS | Installer level | Installation configuration | Installation | ESCO: function, the competent person has defined that an external signal can deactivate the cooling mode. The function has enabled cooling mode.
- One of the following conditions must be met:
- The MENU | CONTROL | Cooling for several days function is activated.
- The competent person has activated the MENU | SETTINGS | Installer level | Installation configuration | Installation | Automatic cooling: function. The function automatically switches between heating and cooling mode. The function has enabled cooling mode.
- The competent person has defined the Ext. cooling mode in the MENU | SETTINGS | Installer level | Installation configuration | HP control module configuration | MI: function. A signal from an external control switches between heating and cooling mode. As long as a signal is present, cooling mode is active.
2.9 What is meant by “time period”?
Example of heating mode in the mode: Time-controlled

You can divide a day up into several time periods (1) and (2). Each time period can comprise an individual start time and end time. The time periods must not overlap. You can assign a different desired temperature (3) to each time period.
Example:
16:30 to 18:00; 21 °C
20:00 to 22:30; 24 °C
The living rooms are heated to the desired temperature within the time periods. In the times outside of the time periods (5), the living rooms are heated to the lower set-back temperature (4) that is set.
Example of cooling mode in the mode: Time-controlled

You can divide a day up into several time periods (1) and (2). Each time period can comprise an individual start time and end time. The time periods must not overlap. You can set a desired temperature (3) that is assigned to all time periods.
Example:
16:30 to 18:00; 24 °C
20:00 to 22:30; 24 °C
The living rooms are cooled to the desired temperature within the time periods. During the times outside of the time periods (4), the living rooms are not cooled.
2.10 What is the effect of the hybrid manager?
The hybrid manager calculates whether the heat pump or the additional boiler covers the heat demand cost-effectively. The decision-making criteria are the set tariffs in relation to the heat demand.
To ensure that the heat pump and the additional boiler can work effectively, you must enter the tariffs correctly. See MENU | SETTINGS. Otherwise, increases costs may arise.
2.11 Preventing malfunctions
- Do not cover the system control with furniture, curtains or other objects.
- If the system control is installed in the living room, open all of the thermostatic radiator valves in this room fully.
2.12 Setting the heat curve

The figure shows the possible heat curves of 0.1 to 4.0 for a target room temperature of 20 °C. If, for example, heat curve 0.4 is selected, a flow temperature of 40 °C is maintained at an outdoor temperature of -15 °C.

If the heat curve 0.4 is selected and 21 °C is specified for the target room temperature, the heat curve is then translated, as shown in the figure. The heat curve is displaced according to the value of the target room temperature along axis a which is angled at 45°. At an outdoor temperature of -15 °C, the control system provides a flow temperature of 45 °C.
2.13 Display, control elements and symbols

2.13.1 Control elements

2.13.2 Symbols

2.14 Operating and display functions
Note
The functions described in this section are not available for all system configurations.
To call up the menu, press
twice.
2.14.1 Menu item CONTROL
MENU






2.14.2 Menu item INFORMATION
MENU



2.14.3 SETTINGS menu item
MENU



2.14.4 Installation configuration menu item
MENU | SETTINGS | Installer level

























3 — Electrical installation, set-up
Only qualified electricians may carry out the electrical installation.
The heating installation must be decommissioned before work is carried out on it.
3.1 Determining the system control’s installation site
Condition: Working Adaptive heat curve:, Room temp. mod.:, Dew point monitoring:, Zone assignment:
▶ Install the system control in a living room in the selected zone.
Condition: Not working Adaptive heat curve:, Room temp. mod.:, Dew point monitoring:, Zone assignment:
▶ Install the system control in a suitable room, in which the end user can operate the system control well.
3.2 Requirements for the eBUS line
Observe the following rules when routing the eBUS lines:
▶ Use twin-core cables.
▶ Never use shielded or twisted cables.
▶ Use only appropriate cables, e.g. NYM or H05VV (-F/-U).
▶ Observe the permissible total length of 125 m. In this case, a conductor cross-section of ≥ 0.75 mm² up to 50 m total length and a conductor cross-section of 1.5 mm² from 50 m.
In order to prevent faults in the eBUS signals (e.g. due to interferences):
▶ Maintain a minimum clearance of 120 mm to power supply cables or other electromagnetic sources of interference.
▶ For parallel routing to mains connection lines, guide the cables in accordance with the applicable regulations, e.g. on cable trays.
▶ Exceptions: For wall breaks and in the electronics box, it is acceptable to not reach the minimum clearance.
3.3 Requirements for the sensor cable
Observe the following rules when routing the sensor lines:
▶ Use twin-core cables.
▶ Never use shielded or twisted cables.
▶ Use only appropriate cables, e.g. NYM or H05VV (-F/-U).
▶ Observe the permissible total length of 50 m.
In order to prevent faults in the sensor signals (e.g. due to interferences):
▶ Maintain a minimum clearance of 120 mm to power supply cables or other electromagnetic sources of interference.
▶ For parallel routing to mains connection lines, guide the cables in accordance with the applicable regulations, e.g. on cable trays.
▶ Exceptions: For wall breaks and in the electronics box, it is acceptable to not reach the minimum clearance.
3.4 Connecting the system control
▶ Connect the eBUS line to the eBUS terminals in the system control’s wall base.
3.4.1 Connecting a system control to the heat generator
▶ Connect the eBUS line to the heat generator’s eBUS terminals, as described in the installation instructions for the heat generator and in Basic system diagram and wiring diagram (→ Section 4.9.1).
3.4.2 Connecting a system control to the ventilation unit
1. Connect the system control to the ventilation unit as described in the installation instructions for the ventilation unit.
Condition: Ventilation unit connected to the eBUS without VR 32, Ventilation unit without eBUS heat generator
▶ Connect the eBUS line to the eBUS terminals in the system control’s wall base.
▶ Connect the eBUS line to the eBUS terminals on the ventilation unit.
Condition: Ventilation unit connected to the eBUS with VR 32, Ventilation unit with up to two eBUS heat generators
▶ Connect the eBUS line to the eBUS terminals in the system control’s wall base.
▶ Connect the eBUS line to the eBUS of the heat generator.
▶ Set the address switch for the VR 32 in the ventilation unit to position 3.
Condition: Ventilation unit connected to the eBUS with VR 32, Ventilation unit with more than two eBUS heat generators
▶ Connect the eBUS line to the eBUS terminals in the system control’s wall base.
▶ Connect the eBUS line to the common eBUS on the heat generator.
▶ Determine the highest possible position on the address switches of the VR 32 for the connected heat generator.
▶ Set the address switch of the VR 32 in the ventilation unit to the second highest position.
3.5 Installing the system control and outdoor temperature sensor






4 Using the functional modules, basic system diagram, start-up
4.1 System without functional modules

Simple systems with a direct heating circuit do not require a functional module.
4.2 System with FM3 functional module

Systems with two heating circuits that must be controlled separately from each other require the FM3 functional module. The VR 92 remote control cannot be added to the system.
4.3 System with FM5 and FM3 functional modules

Systems with more than two mixed heating circuits require the FM5 functional module.
The system may comprise the following:
- Maximum 1 x FM5 functional module
- Maximum 3 x FM3 functional modules, in addition to the FM5 functional module
- Maximum 4 x VR 92 remote controls, which can be installed in each heating circuit
- Maximum 9 x heating circuits, which you achieve using 1 x FM5 functional module and 3 x FM3 functional modules
4.4 Potential application for the functional modules
4.4.1 FM5 functional module
Each configuration corresponds to a defined connection assignment of the FM5 (→ Section 4.5) functional module.

4.4.2 FM3 functional module
If a FM3 functional module is installed, the system has one mixed and one non-mixed heating circuit. The potential configuration (FM3) corresponds to a defined terminal assignment for the FM3 (→ Section 4.6) functional module.
4.4.3 FM3 and FM5 functional modules
If the FM3 and FM5 functional modules are installed in a system, each additional installed FM3 functional module adds two mixed heating circuits to the system.
The potential configuration (FM3+FM5) corresponds to a defined terminal assignment for the FM3 (→ Section 4.6) functional module.
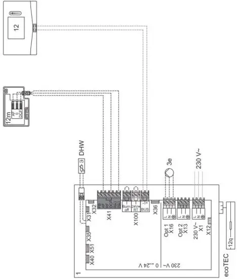
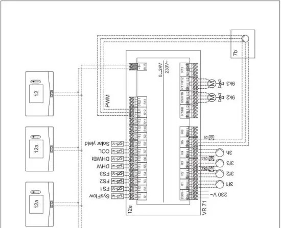
4.5 Connection assignment for the FM5 functional module

- Input sensor terminals
- Signal terminals
- eBUS terminal
When connecting, pay attention to the polarity! - Output relay terminals
- Power supply
S6 to S11 sensor terminals: An external control can also be connected
S12, S13 signal terminals: I = input, O = output
R7/8, R9/10, R11/12 mixer output: 1 = open, 2 = closed
You can configure the contacts for external inputs in the system control.
– Open, deact.: Contacts open, no heat demand
– Bridge,deact.: Contacts closed, no heat demand


4.6 Connection assignment for the FM3 functional module

- Input sensor terminals
- Signal terminal
- Address switch
- eBUS terminal
- Mixer output
- Output relay terminals
- Power supply
S2, S3 sensor terminals: An external control can also be connected
R3/4, R5/6 mixer output: 1 = open, 2 = closed
You can configure the contacts for external inputs in the system control.
– Open, deact.: Contacts open, no heat demand
– Bridge,deact.: Contacts closed, no heat demand

Meaning of the abbreviations (→ Section 4.9.1)
Sensor assignment

4.7 Settings for the basic system diagram codes
The systems are roughly grouped according to their connected system components. Each grouping contains a basic system diagram code that you must enter in the Basic system diagram code: function in the system control. The system control requires the basic system diagram code in order to enable the system-related functions.
4.7.1 Gas- or oil-fired boiler as a single unit

4.7.2 Cascade with gas- or oil-fired boilers
Maximum seven boilers possible
As of the second boiler, the boilers are connected via VR 32 (address 2 to 7).

4.7.3 Heat pump as a single unit (monoenergetic)
With immersion heater in the flow as a back-up boiler

4.7.4 Heat pump as a single unit (hybrid)
With external back-up boiler
A back-up boiler (with eBUS) is connected via the VR 32 (address 2).
A back-up boiler (without eBUS) is connected to the output for the heat pump or the heat pump control module for the external back-up boiler.

4.7.5 Cascade with heat pumps
Maximum seven heat pumps possible
With external back-up boiler
As of the second heat pump, the heat pumps and, if required, the heat pump control modules, are connected via the VR 32 (B) (address 2 to 7).
A back-up boiler (with eBUS) is connected via the VR 32 (next free address).
A back-up boiler (without eBUS) is connected to the output for the first heat pump or the heat pump control module for the external back-up boiler.

4.8 Combinations of basic system diagram and configuration of functional modules
You can use the table to check the selected combination of the basic system diagram code and the configuration of functional modules.


4.9 Basic system diagram and wiring diagram
4.9.1 Meaning of the abbreviations




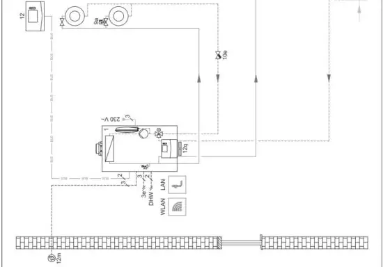
4.9.2 Basic system diagram 0020184677
4.9.2.1 Setting on the system control
Basic system diagram code: 1
4.9.2.2 Basic system diagram 0020184677


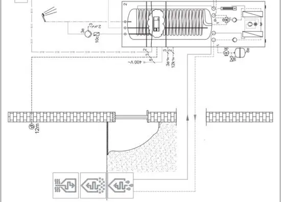
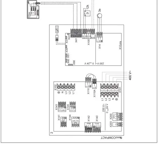
4.9.2.3 Wiring diagram 0020184677

4.9.3 Basic system diagram 0020178440
4.9.3.1 Setting on the system control
Basic system diagram code: 1
FM3 configuration: 1
FM3 MO: Circulation pump
Circuit 1 / Circuit type: Heating
Circuit 2 / Circuit type: Heating
Zone 1/ Zone activated: Yes
Zone 2/ Zone activated: Yes
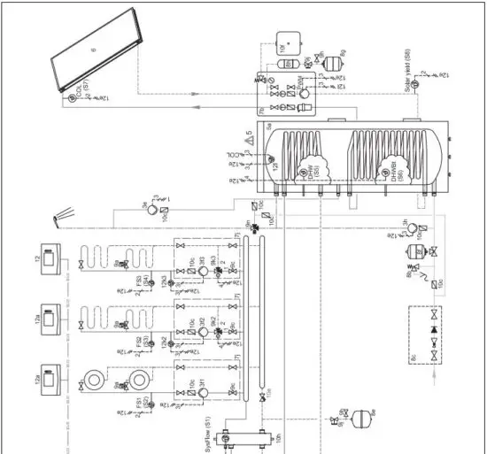
4.9.3.2 Basic system diagram 0020178440


4.9.3.3 Wiring diagram 0020178440

4.9.4 Basic system diagram 0020177912
4.9.4.1 Special features of the system
8: At least 35% of the nominal flow rate must always be able to flow through a reference room without an individual room temperature control valve.
4.9.4.2 Settings on the system control
Basic system diagram code: 8
Circuit 1 / Room temp. mod.: Active or Expanded
Zone 1 / Zone assignment: Sys. control
4.9.4.3 Settings in the heat pump
Cooling technology: No cooling
4.9.4.4 Basic system diagram 0020177912


4.9.4.5 Wiring diagram 0020177912


4.9.5 Basic system diagram 0020280010
4.9.5.1 Special features of the system
5: The cylinder temperature cut-out must be installed in a suitable location in order to avoid cylinder temperatures above 100 °C.
4.9.5.2 Settings on the system control
Basic system diagram code: 1
FM5 configuration: 2
FM5 MO: Anti-legio. pump
Circuit 1 / Circuit type: Heating
Circuit 1 / Room temp. mod.: Active or Expanded
Circuit 2 / Circuit type: Heating
Circuit 2 / Room temp. mod.: Active or Expanded
Circuit 3 / Circuit type: Heating
Circuit 3 / Room temp. mod.: Active or Expanded
Zone 1/ Zone activated: Yes
Zone 1 / Zone assignment: Rem. contr. 1
Zone 2/ Zone activated: Yes
Zone 2 / Zone assignment: Rem. contr. 2
Zone 3/ Zone activated: Yes
Zone 3 / Zone assignment: Sys. control
4.9.5.3 Settings at the remote control
Remote control address: (1): 1
Remote control address: (2): 2
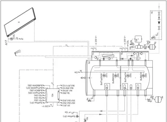
4.9.5.4 Basic system diagram 0020280010


4.9.5.5 Wiring diagram 0020280010


4.9.6 Basic system diagram 0020260774
4.9.6.1 Special features of the system
17: Optional component
4.9.6.2 Setting on the system control
Basic system diagram code: 1
FM5 configuration: 6
Circuit 1 / Circuit type: Heating
Circuit 1 / Room temp. mod.: Active or Expanded
Circuit 2 / Circuit type: Heating
Circuit 2 / Room temp. mod.: Active or Expanded
Circuit 3 / Circuit type: Heating
Circuit 3 / Room temp. mod.: Active or Expanded
Zone 1/ Zone activated: Yes
Zone 1 / Zone assignment: Rem. contr. 1
Zone 2/ Zone activated: Yes
Zone 2 / Zone assignment: Rem. contr. 2
Zone 3/ Zone activated: Yes
Zone 3 / Zone assignment: Sys. control
4.9.6.3 Settings at the remote control
Remote control address: (1): 1
Remote control address: (2): 2
4.9.6.4 Basic system diagram 0020260774


4.9.6.5 Wiring diagram 0020260774


5 Start-up
5.1 Prerequisites for starting up
- The system control and outdoor temperature sensor have been installed and wired.
- The FM5 functional module is installed and connected in accordance with configuration 1, 2, 3 or 6, see supplement.
- The FM3 functional modules are installed and connected, see supplement. A unique address is assigned to each FM3 functional module via the address switch.
- Start-up of all system components (except for the system control) is complete.
5.2 Running the installation assistants
The installation assistant is at the Language: query.
The system control’s installation assistant takes you through a list of functions. For each function, you should choose the set value that is best suited to the heating installation being installed.
5.2.1 Completing the installation assistant
Once you have gone through the installation assistant, Select the next step. appears on the display
Installation configuration: The installation assistant switches to the system configuration for the installer level, in which you can further optimise the heating installation.
Installation start: The installation assistant switches to the basic display and the heating installation works with the values you have set.
Sensor/actuator test: The installation assistant switches to the sensor/actuator test function. You can test the sensors and actuators here.
5.3 Changing the settings later
All settings that you have made via the installation assistant can be changed again at a later date via the end user or installer level.
5.4 Retroactively setting cooling mode
Preliminary work
1. Check whether your heat pump is equipped with the cooling mode function.
Note
Cooling mode is product-dependent. If the cooling mode function is not available for the heat pump, an optional accessory must be installed.
2. Condition: Heat pump with cooling mode function
2.1. Activate cooling mode on the heat pump’s control panel (for cascades of all cooling heat pumps) (→ Installation instructions for the heat pump).
2.2. Briefly switch off the heat pump (in cascades, heat pump 1) and, if required, FM5.
2.3. Switch the heat pump (in cascades, heat pump 1) and, if required, FM5 back on.
◁ The system control is informed that the heat pump’s cooling mode is activated.
1. In the system control, navigate to the function MENU | SETTINGS | Installer level | Installation configuration | Circuit | Cooling possible: and confirm by pressing Yes.
2. Navigate to the function MENU | SETTINGS | Installer level | Installation configuration | Circuit | Min. cooling targ. flow temp.: °C and set the temperature.
Note
If the target flow temperature is set too low, condensate may form.
3. If required, navigate to the function MENU | SETTINGS | Installer level | Installation configuration | Circuit | Room temp. mod.: and select Active or Expanded.
4. If required, navigate to the function MENU | SETTINGS | Installer level | Installation configuration | Circuit | Dew point monitoring: and confirm by pressing Yes.
5. If required, navigate to the function MENU | SETTINGS | Installer level | Installation configuration | Installation | Automatic cooling: and select Activated.
6. Fault and maintenance messages
6.1 Fault
How to respond if the heat pump fails
The system control switches to limp home mode, i.e. the back-up boiler supplies the heating installation with heating energy. During installation, the competent person has restricted the temperature for limp home mode. You can feel that the domestic hot water and heating are not becoming very hot.
You can select one of the following settings until the competent person arrives:
Off: The heating and domestic hot water only become moderately hot.
Heating: The back-up boiler takes over the heating mode; the heating becomes hot and the domestic hot water is cold.
DHW: The back-up boiler takes over the domestic hot water mode; the domestic hot water becomes hot and the heating is cold.
DHW + heat.: The back-up boiler takes over the heating and domestic hot water mode; the heating and domestic hot water become hot.
The back-up boiler is not as efficient as the heat pump, meaning that using only the back-up boiler to generate heat is expensive.
Troubleshooting (→ Appendix A.1)
6.2 Fault message
with the text of the fault message appears in the display.
You can find fault messages under: MENU → SETTINGS → Installer level → Fault history
Troubleshooting (→ Appendix B.2)
6.3 Maintenance message
with the text of the maintenance message appears in the display.
Maintenance message (→ Appendix)
7. Information about the product
7.1 Observing and storing other applicable documents
▶ Observe all of the instructions that are intended for you and are enclosed with the components of the installation.
▶ As the end user, keep these instructions and all other applicable documents safe for future use.
7.2 Validity of the instructions
These instructions apply only to: – 0020260921
7.3 Data plate
The data plate is located on the rear of the product.

7.4 Serial number
You can call up the serial numbers under MENU → INFORMATION → Serial number. The 10-digit article number is located in the second line.
7.5 CE marking
![]()
The CE marking shows that the products comply with the basic requirements of the applicable directives as stated on the declaration of conformity.
The declaration of conformity can be viewed at the manufacturer’s site.
7.6 Guarantee and customer service
7.6.1 Guarantee
You can find information about the manufacturer’s guarantee in the Country specifics.
7.6.2 Customer service
The contact details for our customer service are provided on the back page or on our website.
7.7 Recycling and disposal
Packaging
▶ Dispose of the packaging correctly.
This product is an electrical or electronic unit within the context of EU Directive 2012/19/EU. The unit was developed and manufactured using high-quality materials and components. These can be recycled and reused.
Find out about the regulations that apply in your country regarding the separate collection of waste electrical or electronic equipment. Correctly disposing of old units protects the environment and people against potential negative effects.
▶ Dispose of the packaging correctly.
▶ Observe all relevant regulations.
Disposing of the product
If the product is labelled with this symbol:
- In this case, do not dispose of the product with the household waste.
- Instead, hand in the product to a collection centre for waste electrical or electronic equipment.
Disposing of batteries
If the product contains batteries that are labelled with
this symbol:
- In this case, dispose of the batteries at a collection point for batteries.
◁ Prerequisite: The batteries can be removed from the product without causing any destruction. Otherwise, the batteries are disposed of together with the product. - In accordance with the legal regulations, the end user is obligated to return used batteries.
Deleting personal data
Personal data may be misused by unauthorised third parties.
If the product contains personal data:
▶ Ensure that there is no personal data on or in the product (e.g. online login details or similar) before you dispose of the product.
7.8 Product data in accordance with EU
Ordinance no. 811/2013, 812/2013
On units with integrated weather-compensated controls, including a room thermostat function that can be activated, the seasonal room-heating efficiency always includes the correction factor for control technology class VI. The seasonal room-heating efficiency may deviate if this function is deactivated.

Appendix
A Troubleshooting, maintenance message
A.1 Troubleshooting


A.2 Maintenance messages

B — Troubleshooting, maintenance message
B.1 Troubleshooting


B.2 Troubleshooting





B.3 Maintenance messages

Country specifics
1 ES
2 Great Britain
2.1 Guarantee
We only grant a Vaillant manufacturers warranty if a suitably qualified engineer has installed the system in accordance with Vaillant instructions. The system owner will be granted a warranty in accordance with the Vaillant terms and conditions. All requests for work during the guarantee period must be made to Vaillant Service Solutions.
2.2 Customer service
For contact details for our customer service department, you can write to the address that is provided on the back page, or you can visit www.vaillant.co.uk.
3 IE, Ireland
3.1 Guarantee
We only grant a Vaillant manufacturers warranty if a suitably qualified engineer has installed the system in accordance with Vaillant instructions. The system owner will be granted a warranty in accordance with the Vaillant terms and conditions. All requests for work during the guarantee period must be made to Vaillant Service Solutions.
3.2 Customer service
For contact details for our customer service department, you can write to the address that is provided on the back page, or you can visit www.vaillant.co.uk.
4 NZ, New Zealand
4.1 Guarantee
For information on the manufacturer’s guarantee, you can write to the contact address that is provided on the back page.
4.2 Customer service
For contact details for our customer service department, you can write to the address that is provided on the back page, or you can visit www.vaillant.com.
5 PT, Portugal
5.1 Garantia
A garantia deste produto está ao abrigo da legislação em vigor.
5.2 Serviço de apoio ao cliente
Pode encontrar os dados de contacto para o nosso serviço
de apoio ao cliente por baixo do endereço indicado no verso
ou em www.vaillant.pt.
Supplier
Vaillant Saunier Duval, S.A.U
Polígono Industrial Ugaldeguren III Parcela 22
48170 Zamudio
Teléfono +34 94 48 96 200 Atención al Cliente +34 910 77 88 77
Servicio Técnico Oficial +34 910 779 779
www.vaillant.es
Vaillant Ltd.
Nottingham Road Belper Derbyshire DE56 1JT
Telephone 0330 100 3143
[email protected] www.vaillant.co.uk
Vaillant Group International GmbH
Berghauser Strasse 40 D-42859 Remscheid
Tel. +49 2191 18 0
www.vaillant.info
Publisher/manufacturer
Vaillant GmbH
Berghauser Str. 40 D-42859 Remscheid
Tel. +49 2191 18 0 Fax +49 2191 18 2810
[email protected] www.vaillant.de
© These instructions, or parts thereof, are protected by copyright and may be reproduced or distributed only with the manufacturer’s written consent. Subject to technical modifications.
Read More About This Manual & Download PDF:
References
Vaillant UK | Leading Boilers, Heat Pumps & Heating Systems
Pioneering technology | Vaillant!
Heizung? Entdecken Sie innovative Heizungen | Vaillant
Sistemas de climatización | Vaillant
Pioneering technology | Vaillant!
Bem-vindo | Vaillant
Servicio Técnico Oficial — Servicio Técnico Oficial Vaillant















