INCLUSIVE CUBES
USER GUIDE
V.1.0.2021

INTRODUCTION
Thank you for choosing our product! We believe you would be satisfied using our Inclusive Cubes.
TERMA Inclusive Cubes combines outdoor fun with therapy. Device aims to integrate non-disabled people and those with disabilities (using wheelchairs), giving them possibility of playing together. Besides inclusive purpose TERMA Inclusive Cubes provides kinesiotherapy and social rehabilitation. The device complies with PN-EN 1176 standard.
The device complies with the premise of universal design, which provides ideas of accessibility to all potential users, physically able-bodied, and with movement impairments.
TERMA Inclusive Cubes is dedicated to be used outdoor, at such a places as outdoor gyms, parks, accessible recreation areas, private gardens.
The following User Guide provides all instructions refer to correct installation process, safe use and exploitation of the device.
The Manufacturer reserves the right to change the contents of the User Guide. The updated version of the User Guide could be downloaded from the Manufacturer’s website www.termamed.pl at the “Download” section.
DEVICE STRUCTURE
Materials:
Inclusive cubes are made of the following materials:
Construction: steel profile with epoxy primer, powder coated and painted, 2 mm thick stainless steel
Fronts: HDPE board, 15 mm thick
Foundation: concrete class min. B-15
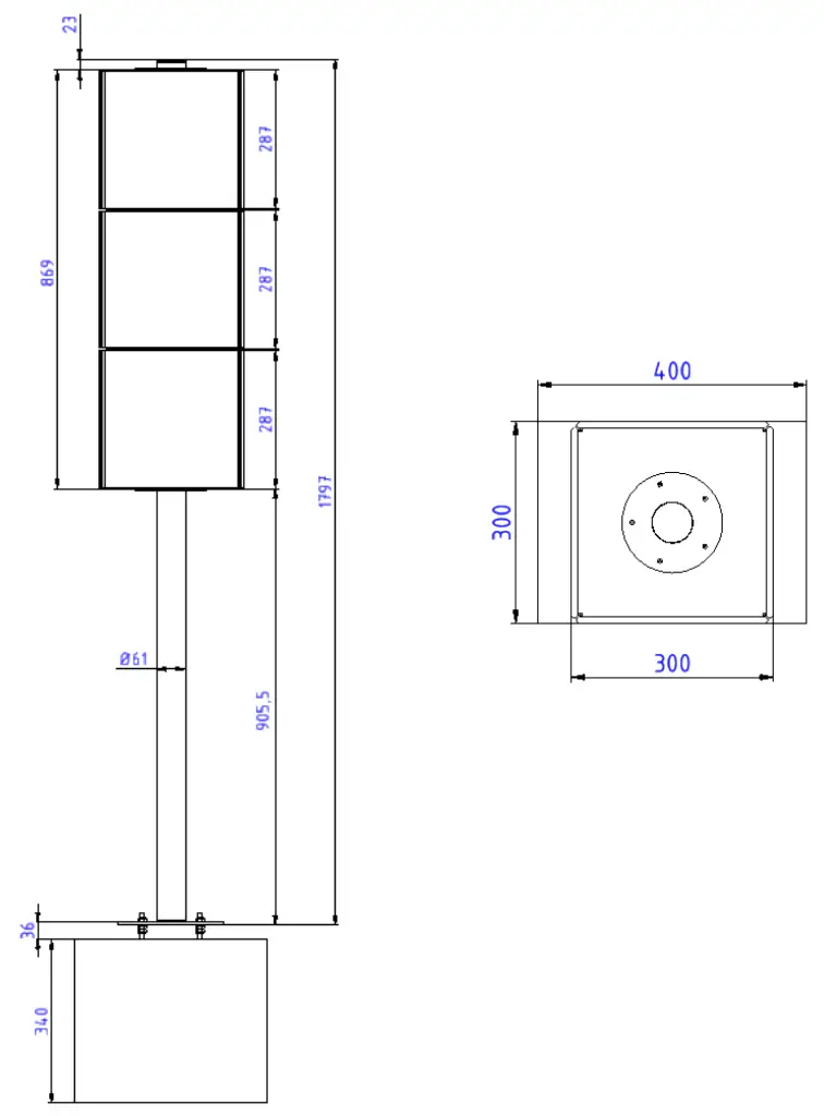
Dimensions and parameters:
Device external dimensions: 1858 x 300 x 300 mm
Height of the device measured from the ground: 1658 mm
Block distance from the ground: 715 mm
Block dimensions: 300 x 300 x 300 mm
Number of cubes in the set: 3
Free fall height: none
Weight (without foundations): 32 kg
Outer diameter of the post section: 61 mm
Other dimensions of the device:
Free fall height: none
Safety area dimensions: 1500 mm from the outer edge of the device
Foundation depth: 540 mm
The area of the functional zone: 9.2 m ^ 2
Dimension of the longest element: Pillar: 1797 mm
The weight of the heaviest element: Main structure: 32 kg

Terma Inclusive Cubes consists of the following elements:
The list of elements shown in the table below :
| No. | Component | Quantity [pcs.] | Figure |
| 1 | Main structure | 1 | |
| 2 | Foundation block (optional) | 1 | ![]() |
| 3 | Foundation pin M10x300 | 4 |
|
| 4 | Nut M10 DIN EN ISO 4032 | 12 | ![]() |
INSTALLATION
To ensure the highest level of safety standards for users and caregivers, it is necessary to read and follow the steps of installation sequence, assembly quality and safety instructions below.
TERMA Inclusive Cubes is dedicated to be installed on a playground. This device complies with the EN 1176-1 : 2017 standard.
Ensure a comfortable and safe entry for wheelchair access to the device. No shock-absorbing surface is required around the TERMA Inclusive Cubes. The rigid surfaces are recommended for wheelchair access.
Loose surfaces such as sand or crushed stone are excluded, grass surfaces are not recommended.
The surface around the device should also not allow the foundations of the structure to be exposed (e.g. no loose surface such as sand or gravel should be used).
The safety zone of the Inclusive Cubes cannot overlap the other devices safety zones and the traffic routes!

The foundation block should be permanently attached to the ground. Foundations should be at a depth of min. 200 mm below the ground level.

ASSEMBLY
Place of installation
Terma Inclusive Cubes is designed to be installed in the playground. The safety zone shall be defined around the equipment which is 150 cm from each edge of the device. The safety zone of the Inclusive Cubes cannot overlap the other devices safety zones and the traffic routes.
No shock-absorbing surface is not required around the TERMA Inclusive Cubes, but a wheelchair user must have an easy access.
To ensure the comfortable and safe access for wheelchair users the rigid surfaces are recommended. Loose surfaces such as sand or crushed stone are excluded, grass surfaces are not recommended.
It is forbidden to install the device in geologically unfavorable conditions, i.e. in a boggy or loose ground causing subsidence of foundations or in a ground where water appears after the excavation has been made. Geological conditions should be regulated prior to installation (effective drainage).
Tools needed for assembly:
Spade 2 pieces
Rake 1 piece
Spirit level 0, 5 rm 1 piece
17 open-ended or socket wrench 1 piece
Measure 3m 1 piece
Chemical anchor Fischer FIS VL 410 C or Tytan EVOLUTION II 1 pack of 410 ml
Loctite 243 Adhesive 1 pack of 10 ml
Hammer drill with a drill fi 12 min drilling length 180mm
WARNING! The manufacturer does not provide any tools for assembly!
Two people are needed to assemble the TERMA Inclusive Cubes .
Next steps of assembly:
- Digging a hole for a concrete screed or a block
- Placing the foundation and drilling holes for the pins
- Placing the pins in the foundation
- Installing the device on foundation pins
- Filling the foundations
1. Digging the hole for a concrete screed or concrete block
Tools:
Shovel / spade
Measure 3 meters
Tape and rods to define the digging area
There are two options for installing the device in the ground.
Option 1:
Dig holes according to the following drawings. Pour dug holes with B-15 concrete class and wait until it sets. Go to step 4, to find out how to proceed.
Option 2:
If the device was purchased in a set with concrete cubes, the holes should be dug in accordance with the drawings below, next the cubes should be placed in the ground, level and check the dimensions, and then sprinkle with earth to prevent the concrete cubes from moving.
1. Placing the foundations and drilling holes for the pins
| List of needed items | |||
| No. | Component | No of pieces | Illustration |
| 1 | Main structure | 1 | |
| 2 | Foundation screed or foundation block (optional) | 1 | ![]() |
| 3 | Foundation pin M10x236 | 4 |
|
| 4 | Nut M10 DIN EN ISO 4032 | 12 | ![]() |
Tools:
Hammer drill with a drill fi 12 min drilling length 140mm
Chemical anchor Fischer FIS VL 410 C or Tytan EVOLUTION II or other with similar properties 17mm spanner / socket wrench
Loctite 243 adhesive
If a concrete screed has been made, the concrete has set and is ready for further work, place the Cubes on the concrete and make holes for the anchors in appropriate places. According to the manufacturer Fischer FIS VL 410 C, a diameter of fi 12 is required for the M10 pin.
Install foundation pins in the holes according to the instructions of the chemical anchor manufacturer. The minimum length of the pin protruding from the foundation is shown in the drawing. Follow the setting time of the anchors according to the manufacturer’s recommendations. The labyrinth should be attached to the foundations using washers and cap nuts. Before screwing in the nut, coat the thread with Loctite 243.
When drilling, be especially careful not to damage the paint coating!

2. Placing the pins in the foundation
In the next step, install foundation pins in the holes according to the instructions of the manufacturer of the chemical anchors. The minimum length of the pin protruding from the foundation is shown in the drawing. Follow the setting time of the anchors according to the manufacturer’s recommendations.

3. Installing the device on foundation pins
Start by threading two pieces of nuts onto each stud, as in the first picture below, with the top nut approximately 30mm above the foundation surface.

In the next step, place the main structure on the pins so that the foundation plate rests on the top nuts. Then, using a spirit level, level the device by adjusting its position with nuts so as to set the bearing column vertically.

The last step is to fix the structure with locknuts. Use Loctite 243 glue before screwing them onto the pins.

Cross-sectional view of the device before the final covering with soil
MAINTENANCE, INSPECTION, REPAIRS
It is recommended to keep a book of inspections of devices in accordance with PN-EN 1176 standard.
It is recommended to use the following types of inspections, to eliminate the potential risks for users and determine the need for service or maintenance:
– Routine visual inspection carried out every 1-7 days. Its purpose is to identify hazards that may result from normal use, acts of vandalism or weather conditions. Pay attention to the cleanliness of the surface around the Inclusive Cubes and the access ramps (glass, stones, packaging, etc.). As the device is based on a single pole, its stability must be checked as part of a routine inspection.
– Kontrola funkcjonalna Functional inspection carried out every 3 months. It refers to verify the correct operation of the device in terms of functionality. A functional inspection is a more detailed inspection than a routine inspection, checking the operation (functionality) and stability of the device in detail, mainly in terms of its wear.
Check:
– the quality of the varnish coating,
– no play in setting in the ground,
– free rotation of each of the rotating elements.
The condition of the smoothed surfaces should also be checked, as well as any protruding, sharp elements, edges, protruding screws. The assessment also covers the degree of strength of the entire structure and the unavailability of the edges or surfaces of the foundations to the user.
– Annual main inspection carried out to establish the general condition of the equipment in relation to the safety level. It is recommended to pay special attention to factory-sealed (non-dismountable) parts. Annual inspection may require disassembly of the device and sending to Manufacturer for service.
In the event of a failure of devices or any malfunctions in their operation, the devices should be secured against users until the damage is removed by fencing it with a construction signal tape with a suspended sign informing about the damage, for example: “WARNING DEVICE FAILURE”.
Contact the Manufacturer to explain the malfunction and take corrective actions . The principles of warranty repairs and service are described in this manual.
Functional tests before putting the device into use
Before putting the device into use, check the following functionalities to confirm the safety of users and correct installation:
– stability of mounting the device on the foundation,
– smooth rotation of all 3 cubes,
– the gap between the cubes – should be less than 8 mm.
Maintenance
The device has no parts that require periodic maintenance. If any irregularities in operation are noticed during periodic inspections, diagnose the cause and replace the worn parts.
As the device is based on one pole, in accordance with the recommendations of the PN-EN 1176 standard, increased controls should be applied in terms of the stability of the device and the quality of its connection to the foundation.
Spare parts list:
| List of spare parts | |||
| No. | Spare part | No of pieces | Figure |
| 1 | A sliding disk | 6 |
|
| 2 | Pipe cap | 1 |
|
| 3 | Pulley cover | 2 |
|

HOW TO USE TERMA INCLUSIVE CUBES
The Inclusive Cubes is dedicated for both non-disabled and disable (those with physical disabilities, using wheelchairs) users. The Cubes is designed for users from 3 years of age.
Options of using the Inclusive Cubes:
– One person with a disability, without leaving the wheelchair, and at the same time 1 disabled person,
– Two people with disabilities, without leaving the wheelchair,
– Two non-disabled people,
– One person with a disability,
– One non-disabled person.
WARNING!
It is forbidden to climb over the surface of the Cubes!
WARNING! It is forbidden to overload the Cubes!
Before using the Cubes, it is absolutely necessary to read this User Guide and follow the guidelines.
The User Guide is also available on the website www.termamed.pl in the “Download” tab.
TERMA Sp. z o.o. or a service designated by the manufacturer are the only entity that can perform repairs and inspections. The manufacturer is not responsible for modernization and repairs made by other entities.
In the case of any device damage or any user injury, report the incident to the manufacturer immediately. Additionally, please complete the “Incident Report
Form” and send it to the Manufacturer by e-mail or letter. The “Incident Report Form” is included in this User Guide and on the website www.termamed.pl in the “Download” tab.
WARRANTY
Terma Sp. z o.o. guarantees good condition and efficient operation of the device mentioned in the Warranty Card, hereinafter referred to as Product, according to the technical and exploitation details described in the user guide.
Warranty confirms the responsibility of the entity who introduced the product to the market to free of charge removal of any faults of the product that was sold. The arranty does not limit or suspend buyer’s rights resulting from nonconformity of the goods with the contract.
- The warranty period starts on the day of receipt of the Product and lasts for 36 months for:
– main frame of the device, made of black steel with epoxy primer and powder coated or stainless steel,
– hot deep galvanized thruss made of black steel,
– aluminum riffled plates,
– concrete foundation cubes offered by a Manufacturer.
The warranty lasting 24 months from the receipt of the Product refers to:
– moving, connecting and protecting elements, made of steel or plastics,
– shock absorbing elements,
– textile elements,
– HDPE boards,
– information elements. - The free warranty repair shall be understood as the performance by the Guarantor during the warranty period of the specific activity appropriate for removing the defect covered by the warranty. This warranty covers Product defects caused by defective parts or defects in production. Warranty liability covers only defects caused by the underlying causes of the sale.
- The condition for the Buyer to use the rights given by warranty is to present at the time of the service request a total of:
a. Deffective product,
b. A proof of purchase. - The warranty will be done by the service during 14 working days from the date of acceptance the product to be repaired or from delivering it to the manufacturer’s service to the address:
Terma Sp. z o.o.
Czaple 100,
80-298 Gdansk, Poland
58 694 06 04, [email protected] - The scope of warranty service does not cover the installation, commission and maintenance activities which, in accordance with the user guide, is required to performed by the user of the Product on his own. Warranty repairs do not include periodic maintenance and product reviews, and in particular: cleaning, regulation, performance control, correction of operating errors or parameter programming, and other actions that the user is responsible for.
- The warranty excludes cases of random damage of the device and coating, independent of operating conditions (for example: thefts, accidents, fires, floods) and mechanical damage caused by improper use.
- The Buyer, by submitting the Product to the Service, and in particular by sending it to third parties, shall provide him with a secure package. Any damage or damage to the Product resulting from its improper packaging shall be covered by the Buyer.
- Along with the Product, the Buyer shall include the exact description of the defect that causes the need of repair. The person submitting the complaint should provide his / her personal details: name, address, telephone number (legal basis: art. 23 section 1 point 3 of the Act of August 29, 1997 on the protection of personal data, Journal of Laws of 2002, No. 101, item 926).
- Guarantor chooses the best way to remove the defect. The Guarantor undertakes to remove physical defects free of charge by repair or replacement of the Product free of defects. Regardless of how defects are removed, the warranty continues.
- Any faulty Products or parts exchanged under the guarantee become the property of Terma Sp. o.o.
- If only a part of the Product is defective and can be detached from the Product in accordance with the technical and operating conditions described in the user guide, the Buyer’s right under these Warranty Terms shall be limited to the repair of the defective part of the Product only.
- The Buyer has the right to exchange the Product for the new one, free from defects, if:
a. During the warranty period referred to in Section 1, the Service will carry out five warranty repairs and the Product will still reveal defects that prevent it from being used for its intended purpose, or
b. The service will confirm in writing that removal of the defect is impossible. - User loses warranty rights in case of:
a. The statements made in the Product unauthorized construction changes or adjustments not covered in the User Guide.
b. The statements made attempts to repair and interference by third parties.
c. statements of parts and supplies not recommended by the manufacturer and guarantee. - The warranty does not support:
a. Damage resulting from improper storage, transport, failure to perform maintenance procedures, periodic inspections.
b. Damages resulting from maintenance and repair activities performed by the user contrary to the operating instructions.
c. Damage caused by the user’s fault or ignorance.
d. Product damage resulting from natural wear and tear as a consequence of its use.
e. Damage caused by vandalism.
f. Damages resulting from the use of non-original spare parts or the use of consumables not intended for use with the Product.
g. Products whose Warranty Card or serial numbers have been altered, obliterated or obliterated in any way.
h. Defects resulting from incorrect (inconsistent with the instructions or art) assembly by an external entity commissioned by the Guarantor for assembly - Warranty does not cover parts and materials whose consumption is a natural consequence of work, and these are, in particular, consumable items that are clearly consumed during the operation of the Product. Warranty rights do not include the buyer’s right to demand the return of the lost profits in connection with the failure and repair of the Product.
- The manufacturer is not responsible for the quality of the installation of the device performed by an external entity. Before putting the device into use, perform a functional inspection and check the device for possible mechanical damage and assembly that ensures compliance with the standard.
INCIDENT APPLICATION FORM
In the event of an incident that results in damage to the equipment or injury to the patient, manufacturer must be immediately reported. After filling the “Incident application form,” given below, it should be provided to the manufacturer by e-mail [email protected] or by Post Office service.
| Name of institution: | |
| Address: | |
| Institution contact details: | |
| Name and surname of person involved in the incident: | |
| Contact details of the person involved in the incident, e-mail phone number | |
| Date of the incident: | |
| Date of the notification: | |
| Description of the incident: |
| Consequences of the incident: | |
| Taken remedial measures: | |
| Additional information |
V.1.0.R1.2020
Manufacturer:
Terma Sp. z o. o
80-298 Gdańsk
Czaple 100
T: +48 58 694 06 04
email : [email protected]
www.termamed.pl





















