LENNOX T2HW Series Hot Water Heaters

KITS AND ACCESSORIES
INSTALLATION INSTRUCTIONS FOR T2HW SERIES HOT WATER HEATERS TO BE USED WITH EL_XA / ELA / TAA SERIES UNITS (44W20 AND 44W21)
RETAIN THESE INSTRUCTIONS FOR FUTURE REFERENCE
WARNING
Improper installation, adjustment, alteration, service or maintenance can cause property damage, personal injury or loss of life. Installation and service must be performed by a licensed professional HVAC installer or equivalent, service agency, or the gas supplier.
CAUTION
As with any mechanical equipment, contact with sharp sheet metal edges can result in personal injury. Take care while handling this equipment and wear gloves and protective clothing.
Shipping and Packing List
Check parts for shipping damage; if any damage is found, immediately contact the last shipping carrier.
Package 1 of 1 contains the following:
- 1 – Assembled hot water coil unit
- 1 – Installation instruction

General
These instructions are intended as a general guide and do not supersede local codes in any way. Consult authorities who have jurisdiction before installation.
Application
NOTE – All valves and secondary pumps must be provided by the installer. T2HW series coils are used as primary heaters for EL_XA, ELA and TAA series units. T2HW coils can be installed in either horizontal or upflow applications with a specific EL_XA/ELA/TAA unit.
- T2HWCL10M – ELA072 through ELA150 units and TAA072 through TAA150 units.
- T2HWCL10N – ELA180 through ELA240 units and TAA180 through TAA240 units.
T2HW units are provided with knockouts for front plumbing exits and 1-3/8” supply and return sweat fittings for field piping connections.
Blower Speed Requirements
T2HW coil applications require specific blower air volumes. To determine the unit CFM, see EL_XA/ELA/TAA series installation instructions.
Hardware Installation
- If the unit has been previously installed, remove the supply-air duct from the air handler.
- Apply PVC foam striping around adjoining cabinet surfaces as illustrated in figure1.
- Align the T2HW cabinet, air handler unit and the two provided mounting brackets as illustrated in figures 2 through 4.
- Secure the two cabinets together using the provided screws and mounting brackets.
- Remove the piping access panel.
- Remove the cap plugs from the hot water coil manifolds.
- Install the provided grommets (2) into access panel after removing knockouts.
- Run piping through access panel grommets and braze to manifolds.
Foam Stripping Installation

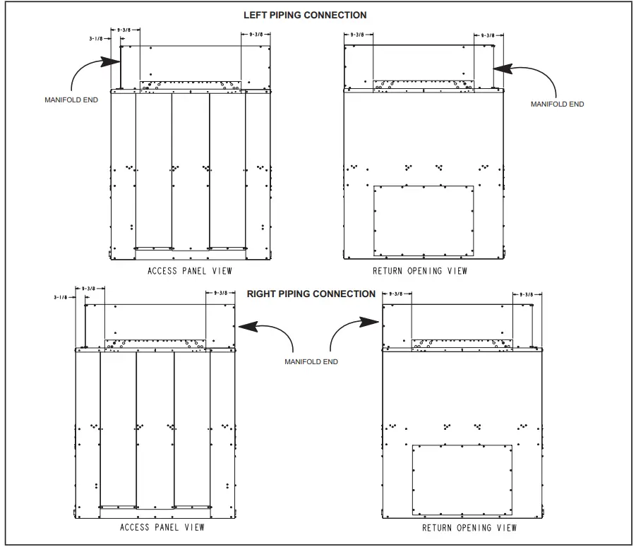
T2HW Cabinet Installation on EL072-090XA, ELA072/090 and TAA072/090 (Left and Right Piping Connections)

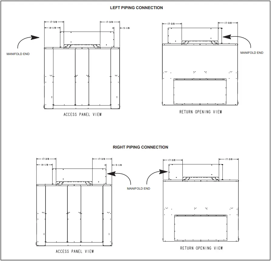
T2HW Cabinet Installation on EL120-150XA, ELA120/150 and TAA120/150 (Left and Right Piping Connections)

T2HW Cabinet Installation on EL180-240XA, ELA180/240 and TAA180/240 (Left and Right Piping Connections)




















