BRADFORD WHITE Brute Series Volume Water Heaters

Standard Equipment
- High condensing efficiency
- Modulation down to 10% of full fire (10:1 turndown)
- Sealed combustion chamber
- Pre-mix stainless steel burner
- Low NOx system exceeds the most stringent regulations for air quality – 10 ppm NOx
- For placement indoors and outdoors (in non-freezing environments)
- Horizontal or vertical direct vent
- Vent and air pipe lengths of up to 100 equivalent feet (each)
- Available with pump matched to heater
- Direct spark ignition system
- Electronic PID modulating control with large touchscreen and color display
- Controller cascades with up to NeoTherm LC heaters to lead/lag the heaters together
- Accepts external 4-20mA modulation control (0-10V with optional converter)
- Domestic water pump time delay
- Alarm output
- Sensor for domestic water tank
- Manual reset high limit
- On/off toggle switch
- Vent temperature cutoff feature
- Built-in condensate trap
- 160 psi maximum working pressure
- Stainless steel heat exchanger with welded construction (no gaskets)
- ASME “H” stamp
- Meets NSF/ANSI-372 Low Lead Content Certification (NTV)
- 125 psi (861 kPa) ASME rated pressure relief valve
- Water flow switch
- Temperature & pressure gauge
- Burner site glass
- 8-Year limited warranty
Heater Data

Factory Mounted Options

Accessories for Field Mounting

Sizing Data
| Model | Input | Output | Thermal | Gas Conn. | Water Conn. | Product | Shipping | ||
| Efficiency | size | size | Weight | Weight | |||||
| BTU/h | kW | BTU/h | kW | % | inches | inches | lbs kg | lbs kg | |
| BNTV 1000 | 999,900 | 293 | 950,000 | 278 | 95.0 | 1½ | 2 | 518 235 | 750 341 |
| BNTV 1200 | 1,200,000 | 351 | 1,140,000 | 333 | 95.0 | 1½ | 2 | 538 244 | 770 350 |
NOTES:
For other boiler ratings:
Boiler Horsepower: HP = Output/33,475
Radiation Surface: EDR sq. ft. = Output/150
Clearances
![]()
| Surface | inches | cm | inches | cm |
| Front | 24 | 61 | 2 | 5.1 |
| Left Side | 12 | 30 | 0 | 0 |
| Right Side | 18 | 46 | 0 | 0 |
| Top | 24 | 61 | 8 | 20 |
| Back | 24 | 61 | 0 | 0 |
| Vent | — | — | 1 | 2.5 |
Electrical Data
| Heater | Heater Circuit | Heater Pump Circuit* | ||
| Size MBH | 1000 | 1200 | 1000 | 1200 |
| Voltage | 120V 1PH | 120V 1PH | 120V 1PH | 120V 1PH |
| FLA | 6 Amps | 11 Amps | 16 Amps | 16 Amps |
| MCA | 8 Amps | 14 Amps | 20 Amps | 20 Amps |
| MOP | 14 Amps | 25 Amps | 36 Amps | 36 Amps |
FLA = Full Load Amperage
MCA = Minimum Circuit Ampacity
MOP = Maximum Over-current Protection
Note: For any pump(s) exceeding 7.4 FLA / 120V VAC, an external pump relay/contactor must be used. Units that are purchased with pumps include a pump contactor.
Vent System
|
Size | Intake (Air) Pipe | Exhaust (Vent) Pipe | Maximum Allowable Equivalent Length* |
| 1000 | 6″ | 6″ | 100 ft 30 m |
| 1200 | 6″ | 6″ | 100 ft 30 m |
Installations in the U.S. require exhaust vent pipe that is a combination of PVC and CPVC complying with ANSI/ASTM D1785 F441, polypropylene pipe that complies with ULC S636, or stainless steel complying with UL 1738. Installations in Canada require exhaust vent pipe that is certified to ULC S636.
NOTE: The first 12″ (30cm) of vent must be CPVC if using a PVC vent system. Intake (air) pipe may be ABS, PVC, CPVC or galvanized material. Closet and alcove installations do not allow the use of PVC under any circumstances
To calculate max equivalent length, measure the linear feet of the pipe, and add 5 feet (1.5m) for each elbow used.
Water Flow Requirements
| Flow | H/L | Temp Rise | |
| gpm | feet | F | |
| 1000 | 75 | 18 | 25 |
| 1200 | 75 | 18 | 30 |
| Flow | H/L | Temp Rise | |
| lpm | m | C | |
| 1000 | 283.9 | 5.5 | 14 |
| 1200 | 283.9 | 5.5 | 17 |
Note:
- Pumps that are shipped with heaters are sized for 30 feet of full-sized piping and a typical number of fittings, intended to serve a heater with a tank that is within 15 feet.
- Maximum water hardness of 10 grains per gallon allowed..
Recovery Data
| Size | 40°F gph | 50°F gph | 60°F gph | 70°F gph | 80°F gph | 90 °F gph | 100°F gph | 120°F gph | 140°F gph |
| 1000 | 2857 | 2286 | 1905 | 1633 | 1429 | 1270 | 1143 | 952 | 816 |
| 1200 | 3420 | 2736 | 2280 | 1954 | 1710 | 1520 | 1368 | 1140 | 977 |
| Design Temperature Rise Across Heater | |||||||||
| 22°C | 28°C | 33°C | 39°C | 44°C | 50°C | 56°C | 67°C | 78°C | |
| Size | L/h | L/h | L/h | L/h | L/h | L/h | L/h | L/h | L/h |
| 1000 | 10799 | 8641 | 7201 | 6173 | 5402 | 4801 | 4321 | 3599 | 3084 |
| 1200 | 12927 | 10369 | 8641 | 7407 | 6482 | 5761 | 5185 | 4319 | 3701 |
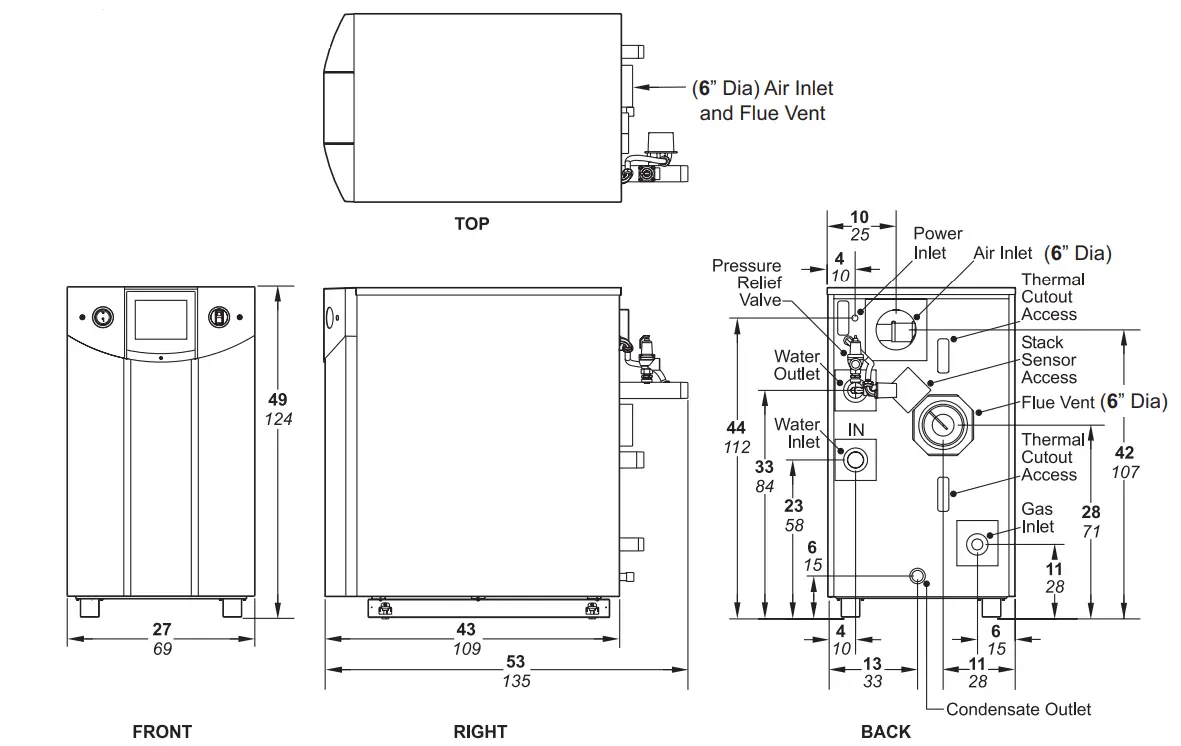
Dimensional Data
Brute 1NeoTherm LC 000 and 1000 & 1200Brute1200

Bradford White Corporation reserves the right to change specifications, components, features, or to discontinue products without notice.
603.335.6300 • Fax 603.335.3355
9 Brigden Gate, Halton Hills, Ontario, Canada L7G 0A3 (905) 203-0600 Fax: (905) 636-0666
www.Laars.com Litho in U.S.A. © Laars Heating Systems 21-06 Document 2158Q
Laars Heating Systems Company reserves the right to change specifications, components, features, or to discontinue products without notice.
200 Lafayette St.
Middleville, MI 49333
Warranty: (800) 531-2111
www.BradfordWhite.com
Litho in U.S.A. © Bradford White 21-06 Document 2158Q-BW



















