FUJIOH FR-HT2190V Cooker Hood

SAFETY INSTRCUTION
This manual explains the proper installation and use of your cooker hood, please read it carefully before using even if you are familiar with the product.
The manual should be kept in a safe place for future reference.
Never to do:
- Do not try to use the cooker hood without the grease filters or if the filters are excessively greasy!
- Do not install above a gas hob with a high level grill.
- Do not leave frying pans unattended during use because overheated fats or oils might catch fire.
- Never leave naked flames under the cooker hood.
- If the cooker hood is damaged, do not attempt to use.
- Do not flambé under the cooker hood.

- CAUTION: Accessible parts may become hot when used with cooking appliances.
- The minimum distance between the supporting surface for the cooking vessels on the hob and the lowest part of the cooker hood.(When the cooker hood is located above a gas appliance, this distance shall be at least 75 cm)
- The air must not be discharged into a flue that is used for exhausting fumes from appliances burning gas or other fuels. Cooker hoods and other cooking fume extractors may adversely affect the safe operation of appliances burning gas or other fuels (including those in other rooms) due to back flow of combustion gases. These gases can potentially result in carbon monoxide poisoning. After installation of a cooker hood or other cooking fume extractor, the operation of open flued gas appliances should be tested by a competent person to ensure that back flow of combustion gases does not occur.

Always to do:
- Important! Always switch off the electricity supply at the mains during installation.
- The cooker hood must be installed in accordance with the installation instructions and all measurements followed.
- All installation work must be carried out by a competent person or qualified electrician.
- Please dispose the packing material carefully. Children are vulnerable to it.
- Pay attention to the sharp edges inside the cooker hood especially during installation and cleaning.
- Make sure the ducting has no bends sharper than 90 degrees as this will reduce the efficiency of the cooker hood.
- WARNING: Failure to install the screws or fixing device in accordance with these instructions may result in electrical hazards.
- WARNING: Before obtaining access to terminals, all supply circuits must be disconnected.
- Always put lids on pots and pans when cooking on a gas cooker.
- When in extraction mode, air in the room is being removed by the cooker hood.
Please make sure that proper ventilation measures are being observed. The cooker hood removes odours from room but not steam. - This cooker hood is for domestic use only.
- If the supply cord is damaged, it must be replaced by the manufacturer, its service agent or similarly qualified persons in order to avoid a hazard.
- This appliance can be used by children aged from 8 years and above and persons with reduced physical, sensory or mental capabilities or lack of experience and knowledge if they have been given supervision or instruction concerning use of the appliance in a safe way and understand the hazards involved. Children shall not play with the appliance. Cleaning and user maintenance shall not be made by children without supervision.
- CAUTION: The appliance and its accessible parts can become hot during operation. Be careful to avoid touching the heating elements. Children younger than 8 years old should stay away unless they are under permanent supervision.
- There shall be adequate ventilation of the room when the cooker hood is used at the same time as appliances burning gas or other fuels.
- There is a fire risk if cleaning is not carried out in accordance with the instructions.
- Regulations concerning the discharge of air have to be fulfilled.
- Clean your appliance periodically by following the method given in the chapter MAINTENANCE.
- For safety reason, please use only the same size of fixing or mounting screw which are recommended in this operating/installation manual.
- Regarding the details about the method and frequency of cleaning, please refer to maintenance and cleaning section in the operating/installation manual.
- Cleaning and user maintenance shall not be made by children without supervision.
- When the cooker hood and appliances supplied with energy other than electricity are simultaneously in operation, the negative pressure in the room must not exceed 4 Pa (4 x 10-5 bar).
- WARNING: Danger of fire: do not store items on the cooking surfaces.
- A steam cleaner is not to be used.
- Never try to extinguish a fire with water, but switch off the appliance and then cover flame e.g. with a lid or a fire blanket.
INSTALLATION
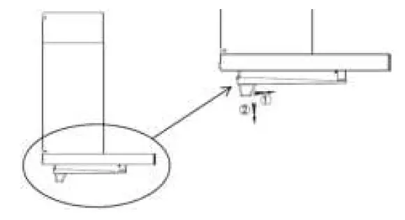
MOUNTING OF THE V-FLAP
If the cooker hood does not have an assembled V-flap 1, you should mount the half-parts to its body. The images only show an example of how to mount the V-flap, because the outlet may vary according to different models and configurations.
To mount the V-flap 1 you should:
- Mount two half-parts 2 into the body 6;
- The pin 3 should be top oriented;
- The axis 4 should be inserted into the holes 5 on the body; Repeat all the operations for the 2nd half-part.

If you have an outlet to the outside, your cooker hood can be connected as below picture by means of an extraction duct (enamel, aluminum, flexible pipe or non-flammable material with an interior diameter of 150mm).
- Before installation, turn the unit off and unplug it from the outlet.

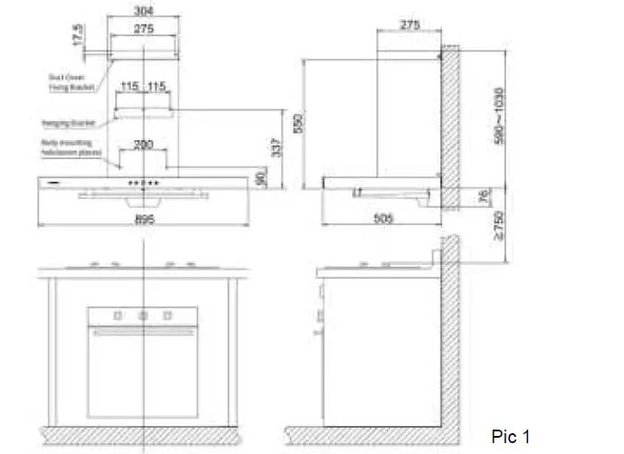
- The cooker hood should be placed at a distance of 75 cm above the cooking surface for best effect. See Pic 1.

- After determining the installation height, drill 7φ8 holes on a suitable place and then insert the attached plastic expansion pipes into the hole. Fix the hanging bracket on the wall with 3pcs ST4x40 screws and keep it in line. Install the duct cover fixing bracket on the wall with 2pcs ST4x40 screws. The fixed position of the duct cover fixing bracket is the highest place of slide duct cover. See Pic 2.

- Fix the flexible tube duct on the cooker hood. See Pic 3.
- Put the slide duct cover into the duct cover, and be sure that the slide duct cover can be adjusted the height in it freely. See Pic 4. Note: The flexible tube duct is not included in the product.

- Put the cooker hood on the hanging bracket and fix it with 2pcs ST4x30 wood screws. See Pic 5.
Note: The 2woodscrews are positioned on the main unit back housing, with a diameter of 6mm. - Adjust the height of the slide duct cover to the position of the duct cover fixing bracket and fix it with 2pcs ST4x8 screws, then fix the duct cover with 2pcs ST4x8 screws. See Pic 6.

- Put on the magnetic ring rubber sleeve. See Pic 7.
- Hang the oil guide plate on two U-shaped hooks. See Pic 8.
- Install the oil tray. See Pic 9.


HINTS FOR EXHAUST DUCT INSTALLATION
The following rules must be strictly followed to obtain optimal air extraction:
- Keep flexible tube duct short and straight.
- Do not reduce the size or restrict the flexible tube duct.
- When using the flexible tube duct always install the pipe pulled taut to minimize pressure loss.
- Failure to observe these basic instructions will reduce the performance and increase noise level of the cooker hood.
- Any installation work must be carried out by a qualified electrician or competent person.
- Do not connect the ducting system of the hood to any existing ventilation system which is being used for any other appliance ,such as warmer tube, gas tube , hot wind tube.
- The angle of the bend of the flexible tube duct should not be less than 90 ° ; you must direct the pipe horizontally, or, alternatively, the pipe should go up from the initial point and should be led to an outer wall.
- After the installation, make sure that the cooker hood is installed correctly to avoid grease collection at on end.
- Ensure the flexible tube duct selected for installation complies with relevant standards and is fire retardant.

Warning
- For safety reason, please use only the same size of fixing or mounting screws which are recommended in this instruction manual.
- Failure to install the screws or fixing device in accordance with these instructions may affect the use of range hood.
START USING YOUR COOKER HOOD
Touch control with LED display

- Press the “Power” button, the button control the “on” & “off ” of the hood.
- Press the button “Speed” time after time, the motor runs as low / mid /high / low mid … , the speed runs circularly; and the LED display will indicate as 1-2-3-1-2…circularly.
- Press “Lamp” button, the light is on, press this button again, the light is off. Please note the Lamp is not under control of the on/off button.
- When the hood is working, if press the “Timer” button, the hood will go into the status of acquiescent working (acquiescent time is 9mins), and then, LED display will be shown 9.8.7.6 …decreasing by 1,when time is up, the hood will be off automatically and the lamp will extinguish. If pressing “Timer” button, the hood will go in or go out “Timer” function.
TROUBLESHOOTING
| Fault | Possible Cause | Solution |
| Light on, but motor does not work. | Fan switch turned off. | Select a fan switch position. |
| Fan switch failed. | Contact service center. | |
| Motor failed. | Contact service center. | |
| Light does not work, motor does not work. | House fuses blown. | Contact service center. |
| Mains power cable is loose or disconnected. | Contact service center. | |
|
Oil leakage. | One way valve and the outlet are not tightly sealed. | Contact service center. |
| Leakage from the connection of chimney and cover. | Contact service center. | |
| Lights does not work. | Broken or faulty bulbs. | Contact service center. |
| Insufficient suction. | The distance between the cooker hood and the gas top is too far. | Contact service center. |
| The Cooker hood inclines. | The fixing screw is not tight enough. | Contact service center. |
MAINTENANCE AND CLEANING
Caution:
- Before maintenance or cleaning is carried out, the cooker hood should be disconnected from the mains power supply. Ensure that the cooker hood is switched off at the wall socket and the plug removed.
- External surfaces are susceptible to scratches and abrasions, so follow the cleaning instructions to ensure the best possible result without damage.
GENERAL
Cleaning and maintenance should be carried out only when the appliance is cooled after use especially.
Important
Use neutral detergents and avoid using harsh cleaning chemicals, strong household detergents or products containing abrasives, as these will affect the appearance of the appliance and potentially remove any printings on the control panel and will void manufactures warranty.
Avoid leaving alkaline or acids substances (lemon juice, vinegar etc.) on the surfaces.
STAINLESS STEEL
The stainless steel must be cleaned regularly (e.g. weekly) to ensure a long life expectancy. Dry with a clean soft cloth after cleaning. A specialized stainless steel cleaning fluid may be used.
NOTE:
Ensure that wiping is done along with the grain of the stainless steel to prevent any unsightly crisscross scratching patterns from appearing.
CONTROL PANEL SURFACE
The inlay control panel can be cleaned using warm soapy water. Ensure the cloth is clean and well wrung before cleaning. Use a dry soft cloth to remove any excess moisture left after cleaning.
THE OIL TRAY
- Your cooker hood includes a unique oil tray which collects the oil that is deposited on the grease filters.
- When the oil tray is about 2/3 full the oil tray needs to be cleaned.
- Take away the oil tray as the diagram below shows, by slightly pulling the oil tray forwards to release it from the Cooker hood.
- Discard the oil before cleaning/washing the oil.
- Ensure the oil has been cleaned and dried before reattaching to the Cooker hood.

NOTE:
Any electrical repairs to this appliance must conform to your local, state and federal laws. Please contact the service centre if in any doubt before undertaking any of the above actions. Always disconnect the unit from the power source when opening the unit.
GREASE FILTER
The filter can be cleaned by hand. Soak them for about 3 minute in water with a mild detergent and then brush it gently with a soft brush. Do not apply too much pressure so as to avoid any damage to it . (Leave to dry naturally out of direct sun light)
Filter should be washed separately to crockery and kitchen utensils. It is advisable not to use rinse aid.
REMOVING GREASE FILTER
- Hold he oil tray with your hands and pull it back to remove the oil tray, pour out the oil and clean the oil tray.
- Open the rectifier panel (note that the oil tray must be removed before opening the rectifier panel, otherwise it will cause oil stains in the in the oil tray pour out), remove the screws that fix the filter and remove the filter.
- Apply the reverse procedure to install the filter back.
ENVIRONMENTAL PROTECTION:
This product is marked with the symbol on the selective sorting of waste electronic equipment. This means that this product must not be disposed of with household waste but must be supported by a system of selective collection in accordance with Directive 2012/19/EU. It will then be recycled or dismantled to minimize impacts on the environment, electrical and electronic products are potentially dangerous for the environment and human health due to the presence of hazardous substances. For more information, please contact your local or regional authorities.
NOTE:
The following shows how to reduce total environmental impact (e.g. energy use of the cooking process).
- Install the cooker hood in a proper place where there is efficient ventilation.
- Clean the cooker hood regularly so as not to block the airway.
- Remember to switch off the cooker hood light after cooking.
- Remember to switch off the cooker hood after cooking.
INFORMATION FOR DISMANTLING
Do not dismantle the appliance in a way which is not shown in the user manual. The appliance can not be dismantled by user. At the end of life, the appliance should not be disposed of with household waste. Check with your Local Authority or retainer for recycling advice.
LIST OF INCLUDED ITMES
| No. | Items name | Drawing | Qty. |
| 1 | Main unit | ![]() | 1 |
| 2 | Rectifier panel | 1 | |
| 3 | Oil tray | 1 | |
| 4 | Duct cover | 1 | |
| 5 | Slide duct cover | 1 | |
| 6 | Duct cover fixing bracket | 1 | |
| 7 | Hanging bracket | 1 | |
| 8 | Plastic expansion pipe | 7 | |
| 9 | Wood Screw(ST4x40mm) | 5 | |
| 10 | Wood Screw(ST4x30mm) | 2 | |
| 11 | Screw(ST4X8mm) | 4 | |
| 12 | V-flap | 2 | |
| 13 | Magnetic ring rubber sleeve | ![]() | 2 |
CIRCUIT DIAGRAM

INFORMATION FOR LAMP
- ILCOS D code for this lamp is: DSR-1.5/65-S-64
- LED modules – round lamp
- Max wattage: 2×1.5 W
- Voltage range: DC 12V
- Dimensions:

SPECIFICATION
| Rated voltage (V) | Speed | Frequency (Hz) | Power consumption (W) | Air flow (m³/h) | Sound (dB) |
| 220 | Hi | 50 | 244 | 725 | 58 |
| Med | 194 | 560 | 52 | ||
| Low | 167 | 410 | 45 | ||
| 230 | Hi | 50 | 260 | 745 | 59 |
| Med | 208 | 585 | 53 | ||
| Low | 180 | 435 | 47 | ||
| 240 | Hi | 50 | 275 | 760 | 59 |
| Med | 223 | 615 | 54 | ||
| Low | 194 | 460 | 48 |
* With 2×1.5W=3W Watts for lamp
Global Website
WWW.fujioh.com
FUJIOH INTERNATIONAL TRADING PTE. LTD.
Southeast Asia Regional Headquarters
130 Joo Seng Road #05-05 Singapore 368357
Tel: (65) 6286 3286 Fax: (65) 6285 3285
E-mail: [email protected]
Rev1 2021





























