Miele DA 399-7 Classic Wall Mounted Cooker Hood

Safety instructions for installation
Damage risk from incorrect installation.
Incorrect installation can cause damage to the Smart Line element. The Smart Line element must only be installed by a qualified person.
Risk of electric shock!
Incorrect connection to the mains supply may result in an electric shock.
Damage from falling objects.
Take care not to damage the Smart Line element when fitting wall units or a cooker hood above it. Fit the wall units and the cooker hood before the Smart Line element.
- The veneer or laminate coatings of worktops (or adjacent kitchen units) must be treated with 100 °C heat-resistant adhesive which will not dissolve or distort. Any back moulds must be of heat-resistant material.
- The Smart Line element must not be installed over a fridge, fridge- freezer, freezer, dishwasher, washing machine, washer-dryer or tumble dryer.
- This Smart Line element must not be installed above ovens or cookers unless these have a built-in cooling down fan.
- After installation, the mains connection cable of the Smart Line
element must not come into contact with any moving kitchen component (e.g. a drawer) or be subject to mechanical loads which could damage it. - Observe carefully the safety clearances listed on the following pages.
Safety distances
Safety distance above the Smart Line element

The safety distance specified by the manufacturer of the cooker hood must be maintained between the Smart Line element and the cooker hood above it. If combustible objects are installed above the Smart Line element (e.g. cabinets, utensil rail, etc.), a minimum safety distance of 500 mm must be maintained. When two or more Smart Line elements which have different safety distances are installed together below a cooker hood, you should observe the greatest specified safety distance.
Safety distances to the sides and back of the appliance
The Smart Line element should preferably be installed with plenty of space on the right and left. The minimum distance Specified below must be observed between the rear of the Smart Line element and a tall unit or room wall. The minimum distance specified below must be adhered to between one side of the Smart Line element (right or left) and a tall unit or room wall. A minimum distance of 300 mm must be observed on the opposite side.
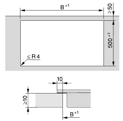
- Minimum distance between the back of the worktop cut-out and the rear edge of the worktop: 50 mm
- Minimum distance on the right side between the worktop cut-out and the closest adjacent piece of furniture (e.g. tall unit) or a room wall: 50 mm
- Minimum distance on the left side between the worktop cut-out and the closest adjacent piece of furniture (e.g. tall unit) or a room wall: 50 mm.
Not allowed |
Highly recommended |
Not recommended |
Not recommended |
Minimum safety distance underneath the Smart Line element
To ensure proper ventilation of the Smart Line element, a minimum safety distance is required between the element and an oven, interim shelf or drawer. The minimum safety distance from the lower edge of the Smart Line element to
- Upper edge of oven: 15 mm
- Upper edge of interim shelf: 15 mm
- Upper edge of drawer: 5 mm
- Base of drawer: 75 mm
Intermediate shelf
It is not necessary to fit an interim shelf underneath the Smart Line element but one may be fitted if you wish.
Leave a gap of 10 mm at the back of the shelf to accommodate the mains connection cable. We recommend a gap at the front of the Smart Line element of 20 mm to ensure good ventilation.
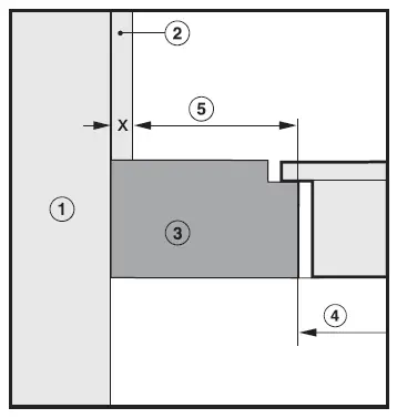
Safety distance when installing the appliance near a wall with additional niche cladding
If a niche cladding is installed, a minimum safety distance must be maintained between the worktop cut-out and the cladding, since high temperatures can damage these materials. If the niche cladding is made from a combustible material (e.g. wood) a minimum safety distance of 50 mm must be maintained between the worktop cut-out and the cladding. If the niche cladding is made from a non-combustible material (e.g. metal, natural stone, ceramic tiles) the minimum safety distance between the worktop cut-out and the cladding will be 50 mm less the thickness of the cladding.
Example: 15 mm niche cladding 50 mm – 15 mm = minimum safety distance of 35 mm
- Flush-fit installation

- Onset installation

- Masonry
- Niche cladding dimension x = thickness of the niche cladding material c Worktop
- Worktop cut-out
- Minimum distance to combustible materials 50 mm non-combustible materials 50 mm – dimension x
Installation notes – surface-mounted
Sealing between the Smart Line Element and the worktop

The Smart Line element and worktop may be damaged if the element needs to be removed after it has been sealed with a sealant. Do not use any sealant between the Smart Line element and the worktop. The seal under the edge of the top part of the appliance provides a sufficient seal for the worktop.
Tiled worktop

Grout lines and the hatched area underneath the Smart Line element frame must be smooth and even. If they are not, the Smart Line element will not sit flush with the worktop and the sealing strip underneath the top part of the appliance will not provide a good seal between the appliance and the worktop.
Sealing strip
Dismantling the Smart Line element for service purposes may damage the sealing strip underneath the edge of the Smart Line element.
Always replace the sealing strip before reinstalling the Smart Line element.
Installing several Smart Line elements
The gaps between the individual Smart Line elements are sealed with a silicone sealant that is heat-resistant to at least 160 °C. With flush-fit installation, the gap between the Smart Line element(s) and the worktop must also be sealed with a silicone sealant that is heat-resistant to at least 160 °C.
After installation, the Smart Line elements must be easily accessible from below, so that the bottom half of the casing can be removed for maintenance. If the Smart Line elements are not accessible from below, the sealant must be removed so that they can be removed.
Combination with a downdraft extractor
If the SmartLine element is installed in combination with a downdraft extractor, the latter must be installed first.
Worktop cutout – surface-mounted

Installation with a countertop extractor
| Combination examples | Number x width [mm] | Dimension B [mm] | |
| Cooking elements | Countertop extractor | ||
![]() | 1 x 378 | 1 x 120 | 481 |
![]() | 2 x 378 | 1 x 120 | 862 |
![]() | 1 x 378 1 x 620 | 2 x 120 | 1226 |
![]() | 3 x 378 | 2 x 120 | 1365 |
![]() | 2 x 378 1 x 620 | 2 x 120 | 1607 |
![]()
| 4 x 378 | 2 x 120 | 1746 |
![]() | 1 x 620 | 2 x 120 | 845 |
Installation without a countertop extractor

Spacer bars – surface-mounted
If you are installing several appliances, you must fit spacer bars between them. The clips supplied with the spacer bars are only required for installing a CSDA 700x FL. Installing 3 elements and 2 spacer bars

Spacer bars – surface-mounted
If you are installing several elements, you must fit spacer bars between them. The clips supplied with the spacer bars are only required for installing a CSDA 700x FL. Installing 3 elements and 2 spacer bars

Installation dimensions – Surface-mounted
All dimensions are given in mm.

- Front
- Mains connection cable, L = 2000 mm
Preparing the worktop
- Create the worktop cutout.
Remember to maintain the minimum safety distances (see “Installation –Safety distances”). - Seal any cut surfaces on wooden
worktops with a special varnish, silicone sealant or resin to prevent the wood from swelling as a result of moisture ingress. The sealant must be heat-resistant.
Make sure that the sealant does not come into contact with the top of the worktop.
Fitting the spacer bars
Use the middle screw holes if one of the following Smart Line elements is installed to the right or left of the spacer bar: CS 7611, CS 7641, CS 7101(-1), CS 7102(-1)
Wooden worktops

- Position the spacer bars flush onto the upper edge of the cutout.
- Secure the spacer bars with the 3.5 x 25 mm wood screws supplied.
Natural stone worktops
You will need heavy-duty double-sided tape (not supplied) to secure the spacer bars.
- Stick the tape along the top edge of the worktop cutout.
- Position the spacer bars flush onto the upper edge of the cutout.
- Press the spacer bars firmly into place.
Installing the Smart Line element
- Stick the supplied sealing strip under
- Feed the mains connection cable down through the worktop cutout.
- Position the Smart Line element in the worktop cutout. Ensure that:
- The seal of the appliance sits flush with the worktop on all sides to ensure an effective seal all round.
- All gap widths are uniform.
- If the seal does not meet the worktop correctly on the corners, carefully scribe the corner radii (≤ R4) with a jigsaw.
Do not use any additional sealant (e.g. silicone) on the Smart Line element. - Connect the Smart Line element to the mains electricity supply.
- If required, connect the Smart Line element to the gas supply (see “Installation – Gas connection”).
- Check that the Smart Line element work.
- Seal the gaps between the individual elements with a silicone sealant that is heat-resistant to at least 160 °C.
Unsuitable sealant can damage natural stone.
For natural stone worktops and natural stone tiles, only use silicone sealant that is specially formulated for natural stone. Follow the manufacturer’s instructions.
Installation notes – flush-fit
Flush-fit installation is only possible in natural stone (granite, marble), solid wood and tiled worktops. For installation in worktops made of other materials, please consult the relevant manufacturer as to whether their worktops are suitable for flush-fit installation. The internal width of the base unit underneath the appliance must be at least as wide as the inner worktop cutout (see “Installation – Building-in dimensions – flush-fit”), so that the SmartLine element is easily accessible from underneath after installation and the bottom half of the casing can be removed for maintenance. If the element is not freely accessible from below after installation, the sealant must be removed so that the element can be removed.
Natural stone worktops
The Smart Line element is set directly in the cutout.
Solid wood worktops, tiled worktops, glass worktops
The Smart Line element is set on a wooden frame inside the cutout. The frame must be provided on site, and is not supplied with the appliance.
Sealing strip
Dismantling the Smart Line element for service purposes may damage the sealing strip underneath the edge of the Smart Line element.
Always replace the sealing strip before reinstalling the Smart Line element.
Installing several Smart Line elements
The gaps between the individual Smart Line elements are sealed with a silicone sealant that is heat-resistant to at least 160 °C. With flush-fit installation, the gap between the Smart Line element(s) and the worktop must also be sealed with a silicone sealant that is heat-resistant to at least 160 °C.
After installation, the Smart Line elements must be easily accessible from below, so that the bottom half of the casing can be removed for maintenance. If the Smart Line elements are not accessible from below, the sealant must be removed so that they can be removed.
Combination with a downdraft extractor
If the Smart Line element is installed in combination with a downdraft extractor, the latter must be installed first.
Worktop cutout – flush-fit

- Natural stone worktop
- Wooden worktop
- 7+0.5 mm with CS 7611 FL
Installation with a countertop extractor
| Combination examples | Number x width [mm] | Dimensi on A [mm] | Dimensi on B [mm] | |
| Cooking elements | Counterto p extractor | |||
![]() | 1 x 378 | 1 x 120 | 505 | 481 |
![]() | 2 x 378 | 1 x 120 | 886 | 862 |
![]() | 1 x 378 1 x 620 | 2 x 120 | 1250 | 1226 |
![]() | 3 x 378 | 2 x 120 | 1389 | 1365 |
![]() | 2 x 378 1 x 620 | 2 x 120 | 1631 | 1607 |
![]()
| 4 x 378 | 2 x 120 | 1770 | 1746 |
![]() | 1 x 620 | 2 x 120 | 869 | 845 |
Installation without a countertop extractor

Spacer bars – flush-fit
If you are installing several appliances, you must fit spacer bars between them. The clips supplied with the spacer bars are only required for installing a CSDA 700x FL. Installing 3 elements and 2 spacer bars

Spacer bars – flush-fit
If you are installing several elements, you must fit spacer bars between them. The clips supplied with the spacer bars are only required for installing a CSDA 700x FL. Installing 3 elements and 2 spacer bars

Installation dimensions – Flush-fit
All dimensions are given in mm.

- Front
- Mains connection cable, L = 2000 mm
- Stepped cutout (for detailed illustrations, see “Installation – Worktop cutout –flush-fit”)
- 12 mm wooden frame (not supplied, for detailed illustrations, see “Installation – Worktop cutout – flush-fit”)
Installation – flush-fit
Preparing the worktop
- Create the worktop cutout. Remember to maintain the minimum safety distances (see “Installation –Safety distances”).
- Seal any cut surfaces on wooden worktops with a special varnish, silicone sealant or resin to prevent the wood from swelling as a result of moisture ingress. The sealant must be heat-resistant.
Make sure that the sealant does not come into contact with the top of the worktop. - For wooden worktops, secure the wooden frame 5.5 mm below the upper edge of the worktop.
For CS 7611 FL, the wooden frame must be secured 7 mm under the upper edge of the worktop.
Fitting the spacer bars
Use the middle screw holes if one of the following Smart Line elements is installed to the right or left of the spacer bar: CS 7611, CS 7641, CS 7101(-1), CS 7102(-1)
Wooden worktops

- Position the spacer bars flush on to the lower step of the stepped cutout.
- Secure the spacer bars with the 3.5 x 25 mm wood screws supplied.
Natural stone worktops
You will need heavy-duty double-sided tape (not supplied) to secure the spacer bars.

- Stick the tape onto the lower step of the stepped cutout.
- Position the spacer bars flush onto the lower step of the stepped cutout.
- Press the spacer bars firmly into place.
Installing the Smart Line element
- Stick the supplied sealing strip under the edge of the Smart Line element. Do not apply the sealing strip under tension.
- Feed the mains connection cable down through the worktop cutout.
- Position the Smart Line element in the worktop cutout. Ensure that:
- The seal of the appliance sits flush with the worktop on all sides to ensure an effective seal all round.
- All gap widths are uniform.
- Connect the Smart Line element to the mains electricity supply.
- If required, connect the Smart Line element to the gas supply (see “Installation – Gas connection”).
- Check that the Smart Line element
works. - Seal the gaps between the individual elements and between the elements and the worktop with a silicone sealant that is heat-resistant to at least 160 °C.
Unsuitable sealant can damage natural stone. For natural stone worktops and natural stone tiles, only use silicone sealant that is specially formulated for natural stone. Follow the manufacturer’s instructions.
Electrical connection
Risk of damage from incorrect connection.
Unauthorized installation, maintenance and repairs can cause considerable danger for the user. Miele cannot be held liable for damage or injury caused by unauthorized installation, maintenance or repair work, or by an inadequate or faulty on-site earthing system (e.g. electric shock). This Smart Line element must be connected to the electrical supply by a qualified electrician. The electrician must be familiar with and comply with the national regulations and any additional regulations of the local electricity provider. After installation, ensure that all electrical components are shielded and cannot be accessed by users.
Total power rating
See data plate
Connection data
The connection data is quoted on the data plate. Please ensure these match the household mains supply.
Disconnecting devices
It must be possible to disconnect the Smart Line element from the mains at all poles using disconnecting devices! A contact distance of at least 3 mm must be observed in the switched-off state! The disconnecting devices are overcurrent protection devices and residual current protection devices.
Disconnecting from the mains
Risk of electric shock.
There is a risk of electric shock if the appliance is connected to the mains supply during repair or service work. After disconnection, ensure the appliance cannot be switched back on by mistake. To disconnect the appliance from the mains power supply, do one of the following depending on installation:
Safety fuses
- Completely remove fuses.
Automatic circuit breakers
- Press the (red) test button until the middle (black) button springs out.
Built-in circuit breakers
- Circuit breakers at least type B or C: Switch the lever from 1 (on) to 0 (off).
Residual current device (RCD)
- Switch the main switch from 1 (on) to 0 (off) or press the test button.
Replacing the mains connection cable
Risk of electric shock. Incorrect connection to the power supply may result in an electric shock.
The mains cable must only be replaced by a qualified electrician. When replacing the mains cable only use cable type H 05 V2V2-F with a suitable cross section. A suitable connection cable is available from your Miele dealer.

Not allowed
























