fujioh FR-MT1990 Cooker Hood

Safety Precautions
- Read the following safety instructions before operating, and use the cooker hood properly and securely.
- These instructions are for correct operation of the product to prevent any risk of hazards or damages inflicting on you or others. The instructions are classified into 2 categories as “WARNING” and “CAUTION” depending on their emergency and severity. Pay attention and strictly observe the instructions as they are critical for safety.
WARNING Alerts possible risk of death or serious injury , if not observed.
CAUTION Alerts possible risk of injury or physical damage , if not observed.
WARNING
- Less than 4 burners
The cooker hood is intended to be installed over a hob with up to four hob elements or burners. - Disassembly, repair, or modification prohibited
Never attempt to disassemble, repair, or modify.
Entrust them to the qualified technician, otherwise fire, electric shock, or abnormal performance may occur. - Using prohibited
Don’t connect to the power voltage other than 220V/230V/240V AC.
Fire or electric shock may result in. - Assembly cautioned
Electric wiring must be made properly by the professional installer or personnel.
Incorrect wiring may be cause of electric leakage or fire. - Mounting cautioned
Mounting work should be done by 2 persons minimum. - Disconnect the plug
Be sure to disconnect the power plug from the wall outlet, or switch off the breaker when care and maintenance. Also, don’t handle the power plug or breaker with wet hand.
Electric shock or injury may result in. - Wipe off dust
When dust accumulated on the blades of the power plug or on their roots, wipe off well.
Fire may result in - Spraying water prohibited
Don’t spray water on the electric parts.
Fire or electric shock may result in. - Operation prohibited
When there may be a gas leak in your gas hob, don’t switch on or off the cooker hood. Gas explosion may result in. - Air supply cautioned
Choose a mounting location where sufficient air flow is maintained.
CO poisoning may result if not ventilated adequately while using a natural vent type stove, etc. - Air supply cautioned
There shall be adequate ventilation of the room when the cooker hood is used at the same time as appliances burning gas or other fuels. (Not applicable to appliances that only discharge the air back into the room.) - Ensure adjustment
Exhaust adjustment must be ensured. - Supervision requested
This appliance is not intended for use by person (including children) with reduced physical, sensory or mental capabilities, or lack of experience and knowledge, unless they have been given supervision or instruction concerning use of the appliance by a person responsible for their safety.
Children should be supervised to ensure that they do not play with the appliance. - Clean frequently
Children should be supervised to ensure that they do not play with the appliance.
There is a fire risk if cleaning is not carried out in accordance with the instructions. - Flambé prohibited
Do not flambé under the cooker hood.
CAUTION
- Mounting cautioned
Mount the product securely aider selecting a solid place.
Dropping may result in injury. - Improper discharge prohibited
The air must not be discharged into a flue which is used for exhausting fumes from appliances burning gas or other fuels (not applicable to appliances that only discharge the air back into the room). - Mounting cautioned
The minimum distance between the wok pan support of the hob and the lowest part of the cooker hood should be at least 750mm when the cooker hood is located above the hob. If the instructions for installation of the hob specify a greater distance, this has to be taken into account. - Disconnect by holding the plug
While disconnecting the power plug, hold the plug . Don’t pull the cord anyway.
The cord may be damaged, and fire or electric shock may result in. - Disconnect the plug
Be sure to disconnect the power plug from the wall outlet, or switch off the breaker when not using for a long time.
Insulation may be deteriorated, and fire or electric shock may result in. - Using prohibited
Never use the product in a wet place such as bath room, etc. (Use a ventilation fan for bath room.)
It may be cause of fire or failure if used. - Assembly cautioned
Assemble the fan or component parts securely.
Injury by dropping may result in. - Assembly cautioned
Ensure that electric wiring is made safely according to the standard or regulations related.
Incorrect wiring may result in fire or electrical shock. - Contact prohibited
Accessible parts may become hot when used with cooking appliances.
Don’t touch the filter or parts around it while cooking.
The filter or parts may drop, and burn or injury may result in. - Contact prohibited
During operation, never insert fingers or other objects.
Failure or injury may result in. - Operation prohibited
Switch off the cooker hood at once if the oil catches fire while cooking.
It’s dangerous if not switched off, as fire is built up. - Prohibited
Do not put anything on the cooker hood.
It may be cause of fire, failure, or injury by dropping. - Wear gloves
Be sure to wear gloves during care and maintenance.
Injury by the sharp edges or corners may result in. - Replace the cord if it’s damaged
If the power cord is damaged, it must be replaced by the manufacturer, its service agent or similarly qualified persons in order to avoid a hazard. - Replace the cord if it’s damaged
To avoid eye damage, do not look directly at the LED light while it is on. - Prohibited
When the oil reaches one half of the oil tray, it must be cleaned to prevent overflow and oil dripping during removal. - Caution
During installation, the hook and plastic expansion pipe (on the concrete wall) must be matched with the product to prevent the product from falling. - Mounting cautioned
In order to prevent the product from falling, the plastic expansion pipe used must be equipped with a corresponding drill bit with a minimal gap between them. - Caution
- The exhausting construction work should be carried out by the qualified person in accordance to the related law and regulations.
- Caution
Use attachment screws only.
If you fail to follow the instructions provided in this manual when installing other screws or fixed equipment, it may cause an electrical hazard. - Caution
Contact FUJIOH or an agent when changing LED lamps in this product.
Precautions on Use
- Operate the cooker hood without fail when using cooking wares.
Otherwise, it may be cause of the cooker hood damage or failure due to increased temperature. - Don’t use a gas range with nothing put on it.
The body of the cooker hood is heated, and it may cause trouble. - Prevent influence of direct wind from air conditioner.
Smoke capturing performance may be deteriorated if influenced. Especially, as the Induction
Heater (IH) provides nearly no ascending air current, it is easily influenced in open place. - When using with the Induction Heater (IH), smoke capturing performance may be deteriorated by influence of cross wind. Also, the surface of the cooker hood may suffer dew condensation if it is used in low temperature.
In this case, use the cooker hood aer wiping off. - During operation, pay attention to sufficient air supply.
Provide adequate air intake slots on the wall opposite from the cooker hood, or open the door of the room a little.
Otherwise, ventilation performance may be deteriorated, or abnormal noise/vibration may result in. - Separate gas heater more than 500mm from the cooker hood.
Since the surrounding of gas heater gets hotter, separate more than 500mm.
Never install the cooker hood above gas heater. If not, it may be cause of the cooker hood damage or failure by increased temperature. - Do not use the cooker hood with its rectifier panel removed.
Smoke capturing performance may be deteriorated.
Preparation
Name of Parts

List of included items
FR-MT1990V (Ventilating type)
| Name | Usage | Quantity |
| Main unit | / | 1 1 |
| Rectifier panel | / | 1 |
| Oil tray | / | 1 |
| Duct Cover | / | 1 |
| Slide Duct Cover | / | 1 |
| Hanging Bracket | Mounting the main unit | 2 |
| Duct Cover Fixing Bracket | Mounting the slide duct cover/duct cover | 1 |
| Installation screw pack | Mounting the main unit/slide duct cover/duct cover | 1 |
| Manual | / |
FR-MT1990R(Recycling type)
| Name | Usage | Quantity |
| Main unit | / | 1 1 |
| Rectifier panel | / | 1 |
| Oil tray | / | 1 |
| Duct Cover | / | 1 |
| Slide Duct Cover | / | 1 |
| Recycling Device | / | 1 |
| Hanging Bracket | Mounting the main unit | 2 |
| Duct Cover Fixing Bracket | Mounting the slide duct cover/duct cover | 1 |
| Installation screw pack | Mounting the main unit/slide duct cover/duct cover/recycling unit | 1 |
| Manual | / |
Installation screw pack list
| Name | Usage | Quantity |
| ST4.2×9.5 flat head screw | Lifting the whole machine | 4+(2) 7 |
| ST5×50 Wood screw | Lifting the whole machine | 7 |
| Plastic expansion pipe | Lifting the whole machine | 4 |
| ST4×8 Cross recessed flat head screw | Recycling Device(Recycling type) |

Switch
Power button…………………….ON/OFF
Low button………………………..when the smoke is less or when desiring silent operation
Middle button…………………….normal operation
High button………………………..when there’s much smoke or when desiring quick air exchange
Timer button ……………………..3/6/9 minutes delay for shutdown of the whole machine under working state
Lamp ON/OFF…………………….ON/OFF of independently controlling the lamp
Installation
Preparation and Check before Installation
CAUTION
- Mount the cooker hood carefully and avoid contact with any metal parts (the lath in the wall or the like) of the building.
- Never embed the body of the cooker hood in the wall. Otherwise, electricity might leak in the wall, which in any case flows to the body of the cooker hood.
- The air must not be discharged into a flue which is used for exhausting fumes from appliances burning gas or other fuels (not applicable to appliances that only discharge the air back into the room).
- The minimum distance between wok pan support of the hob and the lowest part of the cooker hood. Should be at least 750mm while the cooker hood is located above the hob.
If the instructions for installation for the hob specify a greater distance, this has to be taken into account. - Use a gas range having a narrower width than that of the cooker hood.
- Avoid using the cooker hood with changes in the specification, for instance, with modifying the switch.
- Do not install the cooker hood in a wet area or in other wet rooms since it may result in electric shock or damage.
- Do not install the cooker hood at a place where its ambient temperature exceeds 40°C, otherwise it may result in failure.
- To protect your hands from injury, wear working gloves when installing the cooker hood.
- If the power cord is damaged, it must be replaced by the manufacturer or its service agent or a similarly qualified person in order to avoid a hazard.
Checking mounting surface strength
The mounting surface should have sufficient strength enough to support the cooker hood. Mount the cooker hood on a place durable to support the weight of the cooker hood.
- In the case of boarded wall
- If the thickness is more than 20mm, mount the cooker hood directly to the wall.
- If the thickness is less than 20mm, embed a reinforcing board and mount the cooker hood to this board.
- In the case of a concrete/tile faced wall
- Embed a reinforcing board in the wall in advance, or use a curl plug or the like.
Power plug
This product include a power plug. Be sure to use the wall outlet only for the cooker hood.
Checking accessory parts
Take out the main unit and accessory parts from the packing box, and check whether there is any shortage.
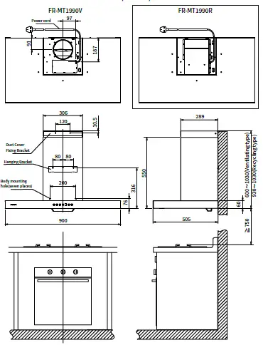
Confirmation of the installation location(Unit: mm)

Cooker Hood Installation
Note Use the appropriate accessories for installation (see page 7).
Installation method
- Remove the fixing screw attached to the front side of the filter. Remove the filter.

- Remove the fan guard from the 4 mounting screws attached to the fan guard.

- Install the recycling device assembly (for recycling type).
Secure the exhaust box assembly with 4 ST4×8 flat head screws.
- 5 pieces of ST5×50 wood screws(installation size on page 9)
The duct cover fixing bracket and the hanging bracket are fixed on the wall.
Note
If you use a plastic expansion pipe, use a Ø10mm drill bit to drill holes in the wall.
The hole diameter is Ø10mm and the depth is 55mm or more.
- Please ensure that breaker is in “off” position, and then, plug power supply into the socket.
Note
When you connect power plug, please be sure to turn off the breaker of switchboard.
- Assemble the duct cover fixing bracket and 2 ST4.2×9.5 flat head flat head screws to duct cover.

- Insert slide duct cover from the top into the gap between duct cover fixing bracket by laterally bending towards the inside of duct cover.

- Assemble the combination of duct cover and slide duct cover to the main unit.
While assembling please, fit the lower part of the duct cover combination unit first while supporting the upper part to avoid the falling of combination unit.
For the Ventilating type, as shown in the right figure, cut the flexible tube duct to the required length and shrink it before installing the flexible tube duct . (Applicable to ventilating type)
Note
The longer the exhaust pipe, the worse the ventilation performance. Straighten the exhaust pipe as much as possible. The more turns, the worse the ventilation performance.
- Hook the main unit to the hanging bracket.
Note
As shown in the figure to the right, the ventilating type is equipped with a flexible tube duct and then it is mounted on the wall. (See page 11) If the exhaust pipe has been installed from the ceiling or the product height is 750 mm or less, you can remove the duct cover fixing bracket.
- Fix 2 ST5×50wood screws in the hole on the back of the main unit.

- Fix slide duct cover and duct cover fixing bracket with 2 ST4.2×9.5 flat head screws.
- For the ventilating type, please lengthen the telescopic flexible tube duct and connect it to the exhaust pipe connected to the outside with a flame retardant metal tape.

- Fix the fan guard with 4 fixing mounting screws.

- Secure the filter with a fixing screw.

- Install the rectifier panel.
- Put the rectifier panel on two rear hooking brackets of the main unit.
- Turn the rectifier panel horizontally, align it with the left and right ball catchers, and push it forward towards the main unit.
Note: Ensure that the ball catchers in the rectifier panel is completely clamped in the clamp anchor. If it is not installed in place, there may be a risk of falling.

- Install the oil tray.
- Align two feet of the oil tray with the hole on the rectifier panel and insert the oil tray into the hole, the direction is shown in the right figure.
- Push the oil tray into the slot.
Note: When removing the oil tray, push one side out of the slot, and then push the other side out of the slot.
Operation Check
- Please install the oil tray matched with the product.
- Turn on a breaker and check operation.
- Check that the fan rotates normally at all speeds during operation.
- Check that there are no abnormal sound or vibration.
Power supply
Insert the power plug into the wall socket (220V/230V/240V AC).
Maintenance
Clean the cooker hood as many times as possible (especially, clean the filter once every month) as it will become greasy. For a family size of 4 to 5 people and cooking twice a day, clean the filter once in every two weeks. If the cooker hood is left unattended for a long time, much oil is accumulated and it will become difficult to remove the hardened grease.
Caution for Maintenance
- Before cleaning the cooker hood, be sure to disconnect the power plug from the receptacle, or turn off the breaker.
- For safety, always wear a pair of rubber gloves while cleaning the filter, etc.
- Especially, be careful to prevent electric parts such as the motor, switch, connectors or the like from coming into contact with water.
- Do not spray liquid or any types of detergent to the electric parts. It can cause trouble.
- Do not use solvents such as thinner, benzine, polishing powder or the like for cleaning the painted surfaces, facing plates, etc. as these parts may become lusterless or scored.
- Do not wash parts with a hard brush or the like while cleaning as it can cause damage to the product..
Detaching/Attaching Cleaned Parts
Install all parts using the opposite procedure as that for removing the parts.
Oil Tray
- Detaching
Hold the rectifier panel with the left hand, hold and pull the oil tray with the right hand(first pull one side of the oil tray out of the clamp, then pull the other side out of the clamp in accordance to the convenience.)
Note
The oil tray may be filled with oil, so be careful when removing it. When removing the oil tray, be sure to hold the rectifier panel by hand to avoid accidental falling off and causing injury.
- Attaching
Hold the oil tray, insert the oil tray foot into the oil tray hole, then push it completely to the end.
Note
If the oil tray is not installed properly, it may result in oil dripping, injury by dropping, etc.
Rectifier Panel
- Detaching
Hold the rectifier panel with two hands on both sides, slightly pull it out to loosen the front end, then turn down the rectifier panel to take it out of the cooker hood.
Note
In order not to drop the rectifier panel, hold it by both hands securely. If dropped, it may be a cause of injury, flaw or warp of parts, etc.
- Attaching
Hold the rectifier panel with both hands, hang the end of it into the hooking bracket, align the front end with the clamp anchor and push it to the end, and ensure that the rectifier panel is fully clamped in the ball catch.
Note
Make sure that the rectifier panel is fixed securely. It may be a cause of dropping if not fixed firmly.
Filter
- Detaching
Hold the filter and remove the fixing screw at the front of the filter.
Note
Be sure to hold the filter with hand when removing it. Otherwise, it may drop and result in injury.
- Attaching
Put the end of the filter into the hook, put the filter into the groove smoothly, and tighten the fixing screw.
Cleaning
Hood body /Duct Cover/Fan Guard
When cleaning, use a neutral detergent and soft cloth.
Do not use an organic solvent. After cleaning, wipe the hood well with a wet cloth dipped in water to remove any remaining detergent, and finally thoroughly wipe any moisture off using a dry cloth.
Oil tray/Rectifier panel/Filter
When cleaning, use a neutral detergent and soft cloth.
Do not use an organic solvent. After cleaning, wash off with water to remove all remaining detergent, and finally thoroughly wipe any moisture off using a dry cloth.
Note
When cleaning the rectifier panel, perform it on a flat surface in order not to deform it.
- Other information
Specifications
FR-MT1990V(Ventilating type)
| Rated voltage (V) | Speed | Frequency (Hz) | Power consumption (W) | Air flow (㎥/h) | Sound (dB) |
| 220 | Hi | 50 | 195 | 570 | 50 |
| Med | 146 | 410 | 42 | ||
| Low | 106 | 255 | 32 | ||
| 230 | Hi | 50 | 211 | 600 | 51 |
| Med | 158 | 440 | 44 | ||
| Low | 114 | 270 | 34 | ||
| 240 | Hi | 50 | 226 | 620 | 52 |
| Med | 170 | 465 | 45 | ||
| Low | 121 | 285 | 35 |
*With 2×1.5W=3W Watts for lamp
FR-MT1990R(Recycling type)
Voltage Picture Square/Diameter: 33.2mm×120mm1.5WDC12V
| Rated voltage (V) | Speed | Frequency (Hz) | Power consumption (W) | Air flow (㎥/h) | Sound (dB) |
| 220 | Hi | 50 | 126 | 260 | 56 |
| Med | 117 | 205 | 50 | ||
| Low | 99 | 120 | 39 | ||
| 230 | Hi | 50 | 134 | 270 | 56 |
| Med | 123 | 220 | 52 | ||
| Low | 104 | 130 | 40 | ||
| 240 | Hi | 50 | 143 | 270 | 57 |
| Med | 128 | 230 | 53 | ||
| Low | 114 | 140 | 41 | ||
| Max Power | Lamp Cap | ILCOSD code | |||
| Dss-1.5-s-33.2 /120 |
*With 2×1.5W=3W Watts for lamp
Circuit diagram

Troubleshooting
Before request repairing services, please confirm whether there is the following situation again.
| Symptom | Possible cause | Action |
| After pressing the Power switch, the fan and the lamp don’t work. The fan doesn’t work. | 1.Brake of the switchboard is”off”. 2.Power plug is pulled out. 3.Connector bad contact or is disconnected. | 1.Brake of the switchboard is”on”. 2.Plug in the power plug. 3.Request repairing. |
| The lighting doesn’t light up. | 1.Connector suffers poor contact or connector is disconnected. | 1.Request repairing. |
| There exists abnormal sound. | 1. The filter is clogged with grease and dirt. 2. Air supply is not sufficient. 3.The mounting screws of the fan are loose. | 1. Clean the filter. 2. Ensure sufficient air supply and open the window or air inlet. 3. Request repairing. |
| Inadequate suction force. High operating noise. | 1.Using of several filters in addition to the original filter like non-woven filter. 2.The filter is dirty. 3. Insufficient air supply. 4. Smoke from cooking is blown away by the air from the air conditioner and window. 5. The exhaust pipe outlet is blocked. | 1. Remove other filters except the original one. 2. Clean the filter. 3. Open the window and the air inlet, ensure sufficient air supply. 4. Prevent from being blown by the wind. 5.Request smoke repairing. |
Service and warranty
When requesting after sales service:
If any abnormality occurs while the cooker hood is in operation, switch off the cooker hood, check the following points:
- Whether the fuse in the circuit breaker has been burnt out?
- Whether the power plug is not in proper contact with the receptacle?
If not above, disconnect the power plug from the receptacle and consult the shop from which you have purchased your cooker hood.
When consulting, inform the shop the type/model of cooker hood requiring repair and the date of purchase.
- The minimum retention period of performance parts for repairing the cooker hood is 5 years after termination of manufacturing of the cooker hood.
The performance parts refer to those parts which requires to maintain the functions of a cooker hood. However the same kinds of repair parts or interchangeable parts will be supplied for 4 years thereafter. If the functions can be maintained when repaired, we are willing to repair when ordered by you.
- The parts used on the cooker hood are subject to partial change without prior notice owing to improvement of performance.
Global Website
FUJIOH INTERNATIONAL TRADING PTE.LTD.
Southeast Asia Regional Headquarters
130 Joo Seng Road #05-05 Singapore 368357
Tel:(65)6286 3286
Fax:(65)6285 3285 E-mail: f[email protected]
Rev3 2020

Power button…………………….ON/OFF
Low button………………………..when the smoke is less or when desiring silent operation
Middle button…………………….normal operation
High button………………………..when there’s much smoke or when desiring quick air exchange
Timer button ……………………..3/6/9 minutes delay for shutdown of the whole machine under working state
Lamp ON/OFF…………………….ON/OFF of independently controlling the lamp


















Note





















