FUJIOH FR-SD2290V Cooker Hood Instruction Manual
Warning
- This appliance is not intended for use by persons (including children) with reduced physical, sensory or mental capabilities, or lack of experience and knowledge, unless they have been given supervision or instruction concerning use of the appliance by a person responsible for their safety. Children shall not play with the appliance. Cleaning and user maintenance shall not be made by children without supervision. If the supply cord is damaged, it must be replaced by the manufacturer, its service agent or similarly qualified persons in order to avoid a hazard.
- There shall be adequate ventilation of the room when the cooker hood is used at the same time as appliances such as burning gas or other fuels.
- Please do not use corrosive detergent for cleaning. The proper function of the unit is conditioned by the regularity of the maintenance.
- To protect the main body from corrosive formed by the long time accumulation of dirt, the cooker hood should be cleaned with hot water with non-corrosive detergent in every two months.
- There is a fire risk if cleaning is not carried out in accordance with the instructions.
- Do not flame under the cooker hood.
- The air must not be discharged into a flue that is used for exhausting fumes from appliances such as burning gas or other fuels.
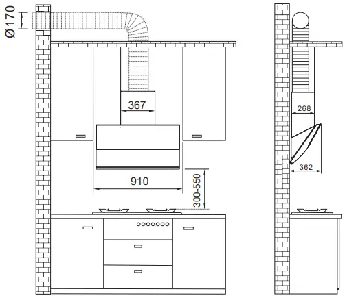
- The minimum distance between the top most part of the cooking appliance such as gas hob and the lowest part of the cooker hood, when it is located exactly over the cooking appliance, shall be at least 300mm. If greater distance is specified in the manual of the cooking appliance, it must be taken into account.
- Regulations concerning the discharge of air must be fulfilled.
Caution
- Accessible parts may become hot when used with cooking appliances.
- This hood is an external exhaust type cooker hood, and the gas the cooker hood machine should not be discharged into the hot flue gas used for the discharge of smoke produced through burning gas or other fuel.
- If the cooker hood is installed above the gas stove, the distance from the bottom of the body to the focal plane is at least 300mm, which should be considered if the installation instructions of gas-fired stoves provide a larger installation distance.
- It is strictly forbidden to modify the product without authorization, and the power cord shall not be replaced or modified by itself.
- Please do not install the cooker hood machine on the wall of flammable material.
- Do not install the cooker hood machine on the top of the stove with solid fuel.
- When drilling holes in the wall, avoid electrical wires embedded in the wall to avoid electric shock hazard.
- A special power supply socket shall be used for the cooker hood machine, and the special power outlet should be reliably grounded (the product must use 10A, 220~V or above).
- The wall shall have sufficient supporting strength for the installation of the cooker hood machine. The hollow core of the wall shall be greater than 30mm, and the concrete wall can be directly punched and installed. The product must be securely mounted on the wall.
- The cooker hood may have very sharp edges. Please wear protective gloves when you install or clean the cooker hood.
- If your kitchen is under a state of decoration, do not use cooker hood exposed, for building materials, dust, paint, coatings and their volatile gas cooker hood surface causes corrosion and lose luster, please install cooker hood in after the decoration.
Safety warning
- The appliance is not intended for use by young children or infirm persons without supervisions.
- Young children should be supervised to ensure they do not play with the appliance.
- Plug the power cord to socket outlet with earthing continuity terminal.
- The cooker hood is for home use only, not suitable for barbecue, roast shop and other commercial purposes.
- The cooker hood and its filter should be cleaned regularly according to the instruction.
- Do not use open flame, or allow flame to go beneath the appliance.
- Please ensure that there is an adequate ventilation in the room while the cooker hood is in operation.
- Please ensure that the power plug is disconnected from the socket or turn off the breaker before cleaning or maintaining the hood.
- If the supply cord is damaged, it must be replaced by the manufacturer, service agent or similarly qualified person in order to avoid a hazard.
The replaced power cord should be provided by manufacturer or seller. - There is a fire risk if cleaning is not carried out in accordance to the instruction.
- In case of damaged connecting wire, please refer to the manufacturer, after-sale service personnel or other qualified technicians.
- Use the product according to the instructions to avoid any fire hazard.
- The exhaust air must not be introduced into a smoke flue or chimney that is used for exhausting fumes from appliances such as burning gas.
- Follow the local laws applicable for external air evacuation.
Packing list
| No. | Name | Quantity |
| 1 | Main unit | 1pcs |
| 2 | Hanging bracket | 1pcs |
| 3 | Exhaust outlet | 1pcs |
| 4 | Flexible Tube Duct | lpcs |
| 5 | Plastic expansion pipe(010) | 7pcs |
| 6 | Wood screw(ST5x50) | 7pcs |
| 7 | Screw(ST4x10) | 2pcs |
| 8 | Screw(M4x10) | 2pcs |
| 9 | Slide duct cover fixing sheet | 2pcs |
| 1 0 | Instruction Manual | lpcs |
| 11 | Pressing plate | lpcs |
| 1 2 | Oil tray | lpcs |
| 1 3 | Slide duct cover fixing bracket | lpcs |
| 14 | Slide duct cover | lpcs |
Product structure schematic

Outline dimension

Installation guide
To determine the location (unit: mm)
The range hood machine should be installed horizontally and above the cooker. The installation diagram is as follows.
Installation precautions
- After installation of the cooker hood, the left and right level should be maintained.
- Should avoid excessive windows and air convection in the vicinity of the cooker hood, otherwise it will affect the efficiency of the cooker hood.
- Exhaust pipe requirements.
- The exit of the exhaust pipe should not be too long.
Cooker hood installation(unit: mm)
- Mark the mounting position of the hanging bracket according to the instructions below.
Make sure that the screws are symmetrical on both sides of the center line with a horizontal distance of 180mm and a vertical distance of 48mm.
- Drill holes with 10mm diameter and 55mm depth on the 4 screw positions marked, insert the plastic expansion pipe into the hole.

- First fix the hanging bracket with 4 pcs ST5x50 screws.

- Adjust slide duct cover (if necessary) to a suitable height(the screw hole for the slide duct cover fixing bracket is 20mm from the top of the cabinet), mark the position of 2 screws on the wall, then drill 2 holes with 10mm diameter and 55mm depth, insert the plastic expansion pipes into the hole.

- Use 2 ST5x50 screws to attach the slide duct cover fixing bracket to the wall.

- Install the main unit on the wall. The main unit and the wall should be tilted 1°to 2°, so that the hook of the main unit hanging bracket can be fully inserted and hung into the main unit slot. After hanging the cooker hood, please check the horizontal and ensure that the main unit is completely flat with the wall.
Use another ST5x50 screw to fix the pressure plate on the upper part of the cooker hood (drill a same hole and insert the expansion pipe as shown in step No.2). Avoid moving or dropping at running time.
- Place gasket at exhaust outlet (may need to remove screws in advance) as shown below. Make sure the gaskets are aligned correctly. This step can be prepared in advance depending on the installation space.

- Place the exhaust outlet assembly on the gasket. Make sure the exhaust outlet assembly does not interfere with the circuit board. Secure check assembly to main unit using set screws to ensure seal.

- Insert flexible tube duct into exhaust outlet assembly.

- Tighten the screws to fix the flexible tube duct to avoid loosening during operation of the cooker hood, and then wrap it tightly with tin alminum tape to prevent the leakage of the smoke and greasy dirt. Use tape to fix the power cord as shown.

Warning
Do not connect the power cable to the surface of the flexible tube duct. Otherwise, fire or electric shock may occur.
Note
Ensure that the installation screws are tightened, otherwise, the fume may leak. The flexible tube duct is peoperly stretched and led to outdoor with bending as little as possbile (generally one bending).The bending angle must be bigger than 120°,to avoid right -angle. The end of flexible tube duct should be a little lower to prevent greasy dirt reflux. - To install the slide duct cover, please pull up the slide duct cover from the main unit of the cooker hood, and fix the slide duct cover and the bracket with the fixing screw set. Please do not let the screw touch the power cord when fixing.

- Hold the bottom end of the oil tray with both hands and place the oil tray horizontally. Insert the oil tray into the holder and push the oil tray back to the oil tray stents.

Control panel operation

Press “Power” button will start operation at F02 and open the glass panel. The screen displays time when first power on. It will turn to standby if there is no operation within 3mins
Press “Timer” button at any speed will start 3mins delay. Then press “High”/”Low” button will cancel timer and change the speed. Long press “Timer” in standby state to set time. When the hour area flashes, press “High”/”Low” to change the number. Press “Timer” again to change the minute area. Press “Timer” again will finish setting and return to standby.
Press”Low” button to lower speed. Speed can be changed among F01、F02、F03、F04(boost). Press “Low” at F04 will return to F03
Press”High” button to raise speed. Long press “High” at F03 to change to F04(boost). It will return to F03 after 1 minute.![]()
Long press “Heat clean” button for 3s in standby state to start heat clean. The button will flash and screen will display 30 minutes count down. The process is 10mins heating→5mins F01 running→10mins heating→5mins F01 running. When finished, the cooker hood will turn off.
Light is not under control of “Power” button. Press “Light” button in stanby state will turn on light and open the glass panel. Turn off “Light” button will turn off light and the glass panel. When “Light” and “Power” are both on, press “Power” will not turn off light and the glass panel.![]()
TROUBLESHOOTING
| Fault | Possible Cause | Solution |
| Light on, but motor does not work. | Fan switch turned off. | Select a fan switch position. |
| Fan switch failed. | Contact service center. | |
| Motor failed. | Contact service center. | |
| Light does not work, motor does not work. | House fuses blown. | Contact service center. |
| Mains power cable is loose or disconnected. | Contact service center. | |
| Oil leakage. | One way valve and the outlet are not tightly sealed. | Contact service center. |
| Leakage from the connection of chimney and cover. | Contact service center. | |
| Lights does not work. | Broken or faulty bulbs. | Contact service center. |
| Insufficient suction. | The distance between the cooker hood and the gas top is too far. | Contact service center. |
| The Cooker hood inclines. | The fixing screw is not tight enough. | Contact service center. |
NOTE:
Any electrical repairs to this appliance must conform to your local, state and federal laws. Please contact the service centre if in any doubt before undertaking any of the above actions. Always disconnect the unit from the power source when opening the unit.
Maintenance
Daily cleaning
This product must be cleaned and maintained frequently for optimal operating performance and longer service life.
It is recommended to clean all surfaces with a wet cloth (neutral detergent may be used) to maintain the appearance and hygiene of the product.
![]()
- The automatic clean function only cleans the oil of the casing inside the cooker hood, and does not directly clean the grease filter.
- When cleaning the grease filter, do not use strong alkaline detergent. It is recommended to clean the grease filter at least once a month.
Oil tray cleaning
When the oil tray window in the oil tray is filled with oil, please clean it in time. The oil tray disassembly procedure is as follows: hold the lower part of the oil tray with both hands, and remove the oil tray horizontally; After cleaning, install the oil tray in reverse order. (Because the oil tray is long, please hold it firmly when the oil tray is removed so as not to spill the oil.)
Monthly cleaning
Regularly clean the cooker hood surface with a neutral detergent and soft cloth. First turn on the fan to open the flap, then unplug the power cord. Clean the filter and internal surface with a wet cloth soaked in diluted neutral detergent. Wipe with dry clean cloth to dry the cleaned area.
Electrical schematic diagram

Specifications
| Rated voltage (v) | Speed | Power consumption (w) | Air flow (m3/h) | Sound (dB) |
| 220 | Boost | 134 | 1020 | 54 |
| F3 | 108 | 955 | 52 | |
| F2 | 54 | 750 | 46 | |
| F1 | 30 | 605 | 41 | |
| 230 | Boost | 134 | 1025 | 54 |
| F3 | 109 | 955 | 52 | |
| F2 | 54 | 750 | 46 | |
| F1 | 30 | 605 | 41 | |
| 240 | Boost | 134 | 1025 | 54 |
| F3 | 109 | 955 | 52 | |
| F2 | 54 | 750 | 46 | |
| F1 | 30 | 605 | 41 |
LED light information
| Square / Dimension: | Max Power | Voltage | Picture | Lamp Cap |
| 170mm x 23mm | 2W | 12 V | ![]() | — |
Costumer Support
www.fujioh.com/my
BHD. MALAYSIA SDN. MARKETING FUJIOH
40400 26, Jalan Serendah 26/39, Section 23,
Shah Alam, Selangor, Malaysia






























