DAKE SXC Electrical Diagrams

ELECTRICAL DIAGRAMS
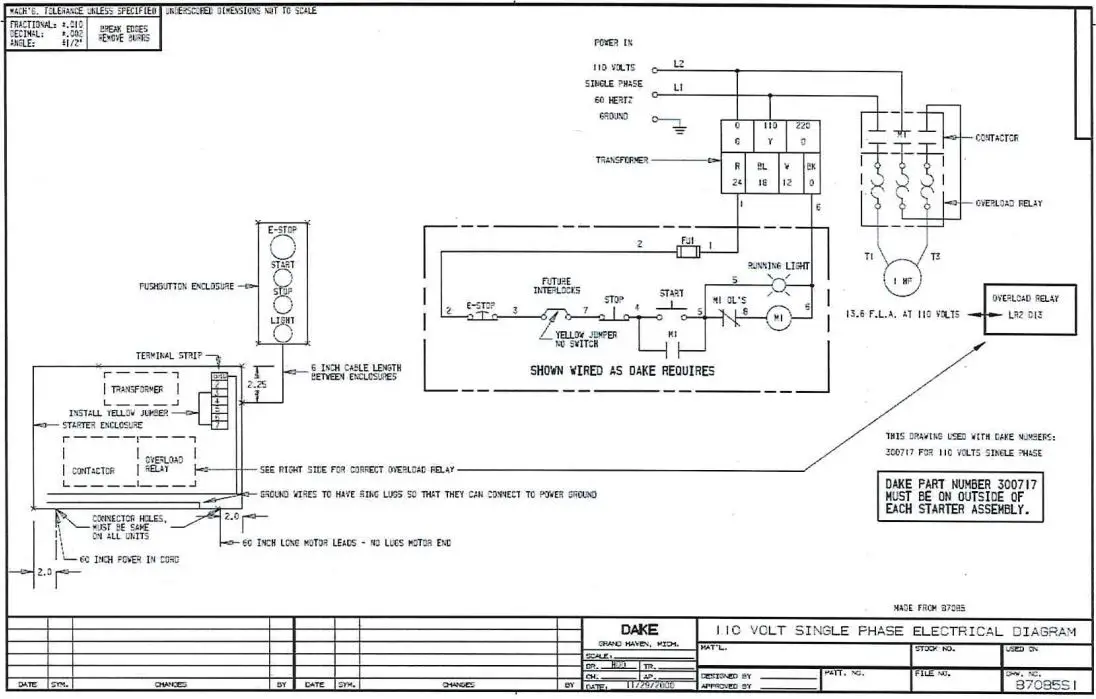
110V

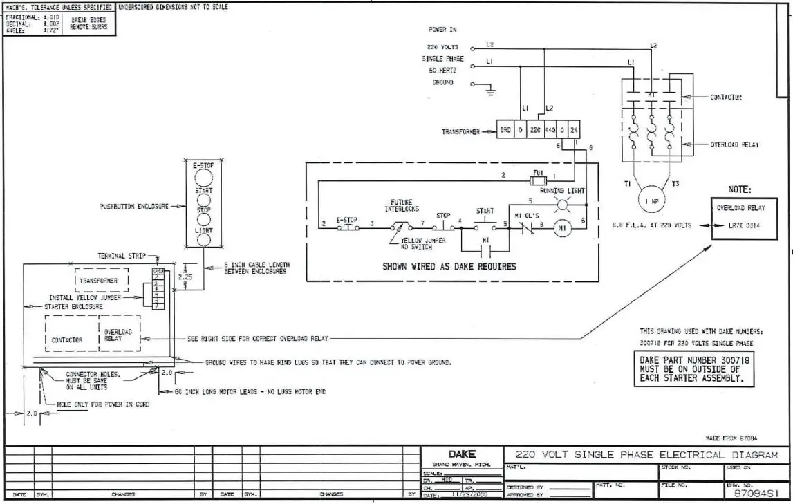
220V Single Phase

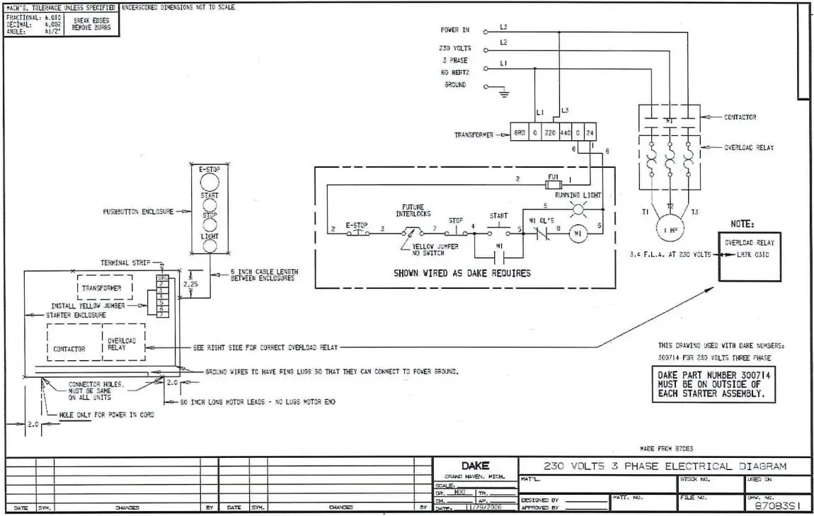
230V 3-Phase


EXPLODED VIEWS & PARTS LISTS

Gear Assembly Parts List





- Dake Corporation
- 1809 Industrial Park Dr
- Grand Haven, MI 49417
- www.dakecorp.com
ORDER INFORMATION
- Please contact factory for current prices
- Parts are available for direct purchase from Dake or through a distributor. When placing a parts order, you will need to provide the part number, name of part, and model number. All parts shipped F.O.B. Factory in Grand Haven, MI.
- If a customer has any questions or concerns regarding a Dake product that was purchased, please email customer service at [email protected]


















