
USER MANUAL
WMD12-2125-PQE,
DOUBLE-HINGED
CABINET, PLEXIGLASS WINDOW DOOR, M6 IN-SESSION COMMON SETTINGS RAILS
24/7 TECHNICAL SUPPORT AT 1.877.877.2269 OR VISIT BLACKBOX.COM
PREFACE
This manual is provided to prevent service personnel from committing an act that results in the risk of fire, electric shock, or personal injury. Only trained service personnel should receive, unpack, and assemble a Black Box wall mount cabinet. In addition, only trained service personnel should install equipment in wall mount cabinets..
This manual provides general safety guidelines to be observed during installation, operation, and maintenance of the Black Box wall mount cabinet.
WARNING:
Failure to follow directions in the warning could result in personal injury or loss of life.
CAUTION:
Failure to follow directions in the caution could result in damage to equipment or storage data.
SAFETY CONSIDERATIONS
WARNING:
Improper handling and use of the Black Box wall mount cabinet could result in equipment damage, serious injury, or possible death.
Only trained service personnel should be used to remove the wall mount cabinet from its packaging. Also, verify that you have a sufficient number of service personnel. Do not attempt to move a wall mount cabinet by yourself. Be sure to read and follow all individual manufacturer equipment manuals for safety and installation instructions.
Proper spacing is required when installing electrical equipment to avoid electrical shock. Maintain minimum spacing between the accessories; components, and the wall mount cabinet for safe equipment operation when installed in accordance with the current National Electrical Code ANSI/NFPA.
The ambient temperature operating range for the Black Box wall mount cabinet and accessories is 50 to 95° F (10 to 35° C).
The non-operating temperature is -4 to +140° F (-20 to +60° C).
PRODUCT PHOTOS

INSTALLATION PREPARATION
RECEIVING AND UNPACKING
- Inspect and report any damage before receiving. Unpack the wall mount cabinet by carefully removing the corrugated carton and corners.
- Avoid damaging the wall mount cabinet when removing packaging.
WARNING:
Only trained service personnel should be used to unpack and move the wall mount cabinet. Also, verify that you have a sufficient number of service personnel. Do not attempt to move a wall mount cabinet by yourself.
MOUNTING INSTRUCTIONS
Once the location on the wall has been determined, inspect the wall surface. The wall must be flat and square in the horizontal and vertical plane to ensure that the wall mount closes correctly. If the wall is not flat and square, the use of shims may be required.
NOTE:
Installer is responsible for determining the appropriate hardware necessary based upon the installation surface.
WARNING:
Only install equipment after the wall mount cabinet has been properly secured. Do not move the wall mount assembly while loaded.
To maintain a uniform distribution of the mechanical load in the wall mount cabinet, load the heaviest equipment first at the bottom of the wall mount cabinet. Then load the lighter units at the top. Rated or maximum load capacities for the wall mount cabinets appear in the specification section on the next page.
SPECIFICATIONS
| Part Number | Height (inches) | Width (inches) | Depth (inches) | RMU | Weight. Capacity. (lb.) |
| WMD12-2125-PQE | 24 | 21.3 | 24.5 | 12 | 150 |
| WMD19-2125-PQE | 36 | 21.3 | 24.5 | 19 | 250 |
| WMD25-2125-PQE | 48 | 21.3 | 24.5 | 25 | 350 |
PACKAGE CONTENTS
- (1) Wall mount cabinet
- (2) Pair of SILVER keys – key number “333”
- (1) Bag of mounting hardware (50) M6 cage nuts and screws
- (4) Black Bars and (8) screws 10-32 for the bars
POWER AND GROUNDING
WARNING:
To avoid injury to persons or loss of life, ground each cabinet individually to the dedicated branch circuit ground.
Connecting Main Protective Grounding Stud to the Dedicated Branch Circuit Ground
Connect the dedicated branch circuit ground connector to the main protective grounding stud located inside the cabinet on the back of the rear section and inside the cabinet on the side using a listed ring or closed-loop terminal.
Connecting Main Protective Grounding Stud to the Protective Bonding Conductors
Connect the middle wall mount frame on the cabinet to the main protective grounding stud located inside the cabinet on the back of the rear section using a listed ring or closed-loop terminal.
Parts Not Bonded to Protective Earthing Terminal
The rails are not effectively bonded to the protective earthing terminal. If these parts need to be bonded to the protective earthing terminal, do so in accordance with Article 250 of the National Electrical Code.
INSTALLATION PROCEDURE
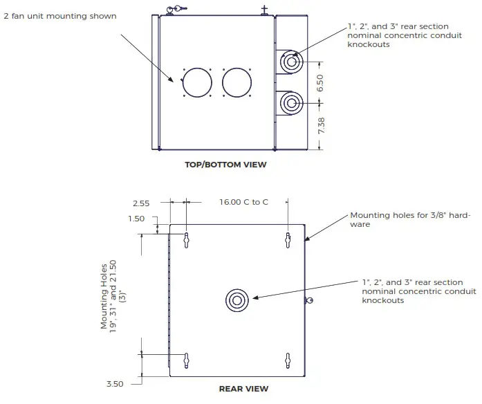
- Mounting holes are designed for 3/8″ hardware, 16″ on center.
- Use the template on the shipping box to locate your mounting holes.
- To adjust mounting rails, use 7/16 socket or wrench to loosen ¼-20 carriage bolts and nuts (multiple locations on the rail, dependent upon height); slide rail to desired location and tighten hardware.



APPENDIX A: REGULATORY INFORMATION
A.1 ROHS
This product is RoHS compliant.
B.1 DISCLAIMER
Black Box Corporation shall not be liable for damages of any kind, including, but not limited to, punitive, consequential, or cost of cover damages, resulting from any errors in the product information or specifications set forth in this document, and Black Box Corporation may revise this document at any time without notice.
B.2 TRADEMARKS USED IN THIS MANUAL
Black Box and the Black Box logotype and mark are registered trademarks of Black Box Corporation. Any other trademarks mentioned in this manual are acknowledged to be the property of the trademark owners.
NEED HELP?
LEAVE THE TECH TO US LIVE 24/7
TECHNICAL SUPPORT
1.877.877.2269

© Copyright 2022. BLACK BOX corporation. All rights reserved. WMD12-2125-PQE_WMD19-2125-PQE_WMD25-2125-PQE_user_rev1.pdf

















