
USER MANUAL
WMD12-2425-PQU, WMD19-2425-PQU, WMD26-2425-PQU
DOUBLE-HINGED CABINET, PLEXIGLASS WINDOW DOOR, M6 RAILS
24/7 TECHNICAL SUPPORT AT 1.877.877.2269 OR VISIT BLACKBOX.COM

IMAGES


NOTE:
WMD19-2425-PQU not pictured. See datasheet for ordering options.
PACKAGE CONTENTS
- (1) Wall Mount Cabinet
- (3) Rubber Grommets
- (20) Cage Nuts and Screws
- (1) Pair of keys
MOUNTING INSTALLATION
STEP 1:

To install the wall mount cabinet it is best to remove the rear door first.
To remove the rear door:
- Open the front door.
- Twist the knob on the right, releasing the latch that locks the rear door in place.
STEP 2

With the rear door now open, remove the two pins on the back left of the cabinet. This will separate the rear door from the body of the cabinet.
NOTE: It may be easier to remove the bottom pin first and the upper pin last.
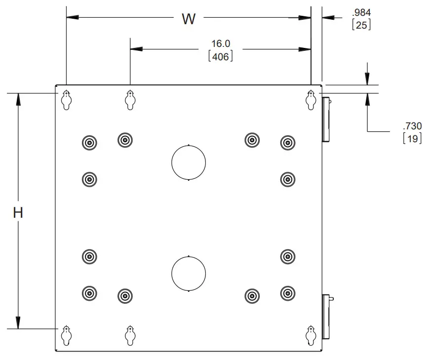
STEP 3:

Now, with the rear door removed from the cabinet body, you can mount it to the wall or another surface where you want to mount the cabinet.
Follow the template on the next page for the mounting location on the rear door. The rear door can be mounted on standard 16-inch centers. Mount the rear door on four points to best secure it to the wall or surface.
NOTE: We do not include any mounting hardware. Make sure you are using hardware that is strong enough and rated for the combined weight of the cabinet and equipment installed inside.
| SKU | Enclosure Size | H | W |
| WMD12-2425-PQU | 24 X 24 X 25 | 20.87 (530) | 21.65 (550) |
| WMD19-2425-PQU | 36 X 24 X 25 | 33.27 (845) | 21.65 (550) |
| WMD26-2425-PQU | 48 X 24 X 25 | 45.28 (1150) | 21.65 (550) |

STEP 4:

STEP 5:
Finally, re-install the cabinet body to the rear door that you now have mounted to the wall or surface by re-installing the two pins.

Load Rating
| Height | Load Capacity |
| 24 in. (610 mm) | 250 lb. (114 kg) |
| 36 in. (914 mm) | 300 lb. (136 kg) |
| 48 in. (1219 mm) | 350 lb. (159 kg) |
KNOCKOUT GROMMETS

If you choose to use the 3 inches round openings either on the top or bottom of the cabinet, “knock out” one of the openings with a small hammer and install one of the supplied 3-inch rubber grommets.
EQUIPMENT MOUNTING

Use the included mounting hardware to install a rack-mountable item in the cabinet.
The rails in the cabinet have square M6 cage nut openings. Install a cage nut provided in the rail and use the provided mounting screws.
NOTE: The image above shows mounting using standard 10-32 screws, and it is intended for general reference. The product will ship with M6 hardware and cage nuts.
ADJUSTING VERTICAL RAILS

If you need to adjust the internal rails inside the cabinet, loosen the upper and lower M6 nut that holds the rails in place.
Make sure to do this on both sides of the cabinet.
REVERSING DOOR

The front door can be reversed if you want to open it from left to right. This can be done by removing the two front hinges, flipping the door 180 degrees, and re-installing it on the right side of the cabinet.
APPENDIX A: REGULATORY INFORMATION
A.1 ROHS
This product is RoHS compliant.
APPENDIX B: DISCLAIMER/TRADEMARKS
B.1 DISCLAIMER
Black Box Corporation shall not be liable for damages of any kind, including, but not limited to, punitive, consequential, or cost of cover damages, resulting from any errors in the product information or specifications set forth in this document, and Black Box Corporation may revise this document at any time without notice.
B.2 TRADEMARKS USED IN THIS MANUAL
Black Box and the Black Box logotype and mark are registered trademarks of Black Box Corporation.
Any other trademarks mentioned in this manual are acknowledged to be the property of the trademark owners.
NEED HELP?
LEAVE THE TECH TO US
LIVE 24/7
TECHNICAL SUPPORT
1.877.877.2269
© COPYRIGHT 2022. BLACK BOX CORPORATION. ALL RIGHTS RESERVED.
WMD12-2425-PQU_WMD19-2425-PQU_WMD26-2425-PQU_USER_REV1.PDF
1.877.877.2269
BLACKBOX.COM
![]()
















