ROBAM A678S 36 Inch 1300 CFM Under Cabinet Wall Mounted Range Hood

Before operating this unit, please read the user manual completely and keep it. If the manual is lost, you can send email to [email protected], request for an electronic manual.
READ AND SAVE THESE INSTRUCTIONS
Dear users:
Thank for your buying our range hood. Please accept our best regards. Please read this user manual carefully before installation and operation.*The pictures in this manual only for your reference. If the picture isn’t accord with object, subject to object. We keep to right to update appearance, structure or products without notice.
Safety Precaution
In order to avoid harm or property damage to the users or other person, the following distinction and marks are stipulated. They are important safety precaution, please comply strictly based on the full understanding.
Subject to harmful or destruct degree
Danger If ignore this sign and operate product improperly, it’s highly possible to cause danger, serious injury or fire.
warning If ignore this sign and operate product improperly, it’s possible to cause danger, serious injury or fire.
Notice If ignore this sign and operate product improperly, it’s possible to cause injury or loss.
Notice and Prohibit Mark

warning
Please use this product according to manual strictly, or ROBAM shall not take any responsible caused by improper operation.
danger
- Don- t allow children or weakling to use range hood separately, or it may cause electric shock or other accident.
- Prohibit water on motor, switches or other electric parts; Prohibit wash range hood by water spray. Don’t use range hood if wet or it may cause electric leakage or shock.
- Don’t change, stretch, bind or press electric wire, or it’s possible to cause electric shock or fire because of broken wire.
- Prohibit any change of interior circuit, or it may cause injury or other danger, for example, electric shock or fire.
- Don’t touch plug, electric parts or button by wet hands, or it may cause electric shock.
- Unplug before cleaning, installing or maintaining, avoiding from electric shock.
- Please turn off range hood immediately if pan got fire (range hood shall aggravate fire if it’s working) and extinguish fire by effective action. For example, cover flame by metal cover, turn off gas valve immediately and remove inflammable things.
- Any abnormal, please turn off power, take off plug or cut off electric source, and contact service. It’s possible to cause electric shock or fire if using range hood under abnormal situation.
warning
- Range hood must be installed, disassembled or maintained by professional person.
- Stove fire shall be extinguished timely when it is not used; do not flambe under the range hood and it’ s prohibited to bake food under range hood directly to prevent range hood from damaging and causing accidents.
- Don’t touch lamp when it’s on or just turned off in a short time, or it may cause scald.
- In order to ensure safety, range hood must be installed by specific accessory (especially expansion pipe and wooden screws, or it may cause accidental drop of range hood). The pipe bore and hole must fit tightly during the installation of metal expansion pipe. It is prohibited to | make excessively large hole to prevent accidental drop of loosening expansion pipe.
- The range hood must be used by specific plug and properly ground it. It’s possible to cause electric shock, hot plug or fire because of improper electric wire. Installation must be executed by professional person based | on local electrical regulations. Before connect electricity, power must be turned off.
- if the supply cord is damaged, it must be replaced by the manufacture, its service agent or similarly qualified persons in order to avoid a hazard.
- All operation must comply with our safety guidelines as well as local safety regulations.
- There shall be adequate ventilation of the room when the range hood is used at the same time as appliances burning gas or other fuels.
- For Residential Use Only.And it’s not allowed to exhaust dangerous or explosive matter or air. It should be put under dry and ventilation environment without dangerous air.
- The range hood and electric circuit must be installed by skilled and trained personnel with required qualification. When installation, the related regulation, standard or instruction on fire must be complied. It may cause danger because of improper installation, for example, electric shock, drop or fire accident.
- The outlet must be connect with outside. In order to ensure safety and fresh air, waste gas should be exhaust to outside. Don’t exhaust waste gas to the wall, loft or garage.
- There is a fire risk if cleaning is not carried out in accordance with the instructions.
- Keep a good habit to turn off gas hob and gas valve if go outside, sleep or finish operation. Replace or check gas pipe regularly, since gas alarm device can’t completely avoid accident caused by gas leakage.
- TO REDUCE THE RISK OF INJURY TO PERSONS IN THE EVENT OF A RANGE TOP GREASE FIRE, OBSERVE THE FOLLOWING:
- a) SMOTHER FLAMES with a close-fitting lid, cookie sheet, or metal tray, then turn off the burner. BE CAREFUL TO PREVENT BURNS. If the flames do not go out immediately,EVACUATE AND CALL THE FIRE DEPARTMENT.
- b) NEVER PICK UP A FLAMING PAN – You may be burned.
- c) DO NOT USE WATER, including wet dishcloths or towels – a violent steam explosion will result.
- d) Use an extinguisher ONLY if:
- You know you have a Class ABC extinguisher, and you already know how to operate it.
- The fire is small and contained in the area where it started.
- The fire department is being called.
- You can fight the fire with your back to an exit.
warning
TO REDUCE THE RISK OF A RANGE TOP GREASE FIRE:
- a) Never leave surface units unattended at high settings. Boilovers cause smoking and greasy spillovers that may ignite. Heat oils slowly on low or medium settings.
- b) Always turn hood ON when cooking at high heat or when flambeing food (i.e. Crepes Suzette, Cherries Jubilee, Peppercorn Beef Flambe’).
- c) Clean ventilating fans frequently. Grease should not be allowed to accumulate on fan or filter.
- d) Use proper pan size. Always use cookware appropriate for the size of the surface element.
TO REDUCE THE RISK OF FIRE, ELECTRIC SHOCK, OR INJURY TO PERSONS, OBSERVE THE FOLLOWING:
- a) Installation work and electrical wiring must be done by qualified person(s) in accordance with all applicable codes and standards, including fire-rated construction.
- b) When cutting or drilling into wall or ceiling, do not damage electrical wiring and other hidden utilities.
- c) Ducted fans must always be vented to the outdoors.
TO REDUCE THE RISK OF FIRE, USE ONLY METAL DUCTWORK. TO PROVIDE PROTECTION AGAINST ELECTRIC SHOCK, CONNECT TO PROPERLY GROUNDED OUTLETS ONLY.
GROUNDING INSTRUCTIONS:This appliance must be grounded. In the event of an electrical short circuit, grounding reduces the risk of electric shock by providing an escape wire for the electric current. This appliance is equipped with a cord having a grounding wire with a grounding plug. The plug must be plugged into an outlet that is properly installed and grounded. Improper grounding can result in a risk of electric shock. Consult a qualified electrician if the grounding instructions are not completely understood, or if doubt exists as to whether the appliance is properly grounded. Do not use an extension cord. If the power supply cord is too short, have a qualified electrician install an outlet near the appliance. This appliance is not intended for use by persons (including children) with reduced physical, sensory or mental capabilities, or lack of experience and knowledge, unless they have been given supervision or instruction concerning use of the appliance by a person responsible for their safety.Children should be supervised to ensure that they do not play with the appliance.
Notice
- The air must not be discharged into a flue that is used for exhausting fumes from appliances burning gas or other fuels, the discharge of air must fulfill the requirements of local regulations.
- Before removing range hood for installation, clean or maintainance, power must be cut off avoiding from electric shock. When installation, clean or maintainance. protective gloove must be wear avoiding from injury.
- The temperature for range hood working can’t exceed 40°C
- Because the installation is difficult and hood is heavy, the installation shall be executed by professional person based on manul.
- Don’t break electric wire or other invisible equipment when cutting something or drilling holes on ceiling.
- When range hood is using in well sealed building, it should have air inlet or open door to ensure good ventilation.
- When the oil exceeds 2/3 or near tick mark in the oil cup, clean it in time. Don’ t eat waste oil from oil cup.
- The wall of installing range hood needs enough strength. For hollow walls, the thickness of solid layer of hollow wall must be more than 30mm, but for concrete walls, it can be drill holes directly.
- The range hood must be fixed on the wall firmly.
- Accessible parts may become hot when used with cooking appliances.
- DISPOSAL: Do not dispose this product as unsorted municipal waste. Collection of such waste separately for special treatment is necessary. This product must not be disposed together with the domestic waste. This product has to be disposed at an authorized place for recycling of electrical and electronic appliances. By collecting and recycling waste, you help save natural resources, and make sure the product is disposed in an environmental friendly and healthy way.
Important Information
Package of Range Hood
Please settle those packages carefully in order to protect environment. Don’t allow children to play plastic film and package, it may cause asphyxia. Please avoid children near package material.
Before use Range hood
Please read this manual and all information carefully before installation and operation. Please comply with our suggestion. If it’s necessary, please read manual for gas hob. And please keep these manual carefully for future reference. If range hood has obvious damage, please don’t electrify and contact operator.
Product Description
Technical Data
| Model | CXW-260-A678S CXW-260-A679S | Rated Power Input | 264W |
| Rated Main Motor Power Input | 260W | ||
| Power Supply | 120V~ 60Hz | Dimension (LxwxH) | (35-¼x19-7/ax19-¼)” (895x5Q5x488)mm |
| Max static pressure | 1000Pa | ||
| Noise | 52dB(A) | Net Weight | 60.6Ibs(27.5kg) |
Note
- The noise value shown is the A-weighted sound pressure level;
- Parameters of noise and others may have deviations of less than 5%.
Size

The size marked is for reference only.
Packing List
Please check the items in the container upon unpacking

Note: Please mount the oil cup in the container on the machine enclosure when to use the machine.

Installation
warning
- The air must not be discharged into a flue that is used for exhausting fumes from appliances burning gas or other fuels, the discharge of air must fulfill the requirements of local regulations.
- Note that when installing the metal expansion pipe, the pipe shall match with the hole in size. Overlarge hole is prohibited, as it will result in loose pipe and accidental drops.
- There shall be adequate ventilation of the room when the range hood is used at the same time as appliances burning gas or other fuels.
- lf the flue aperture is less than air duct aperture, it will influence the fume suction effect and the too long air duct will influence the fume suction effect, too.
- This appliance just for household use only.And it’s not allowed to exhaust dangerous or explosive matter or air. It should be put under dry and ventilation environment without dangerous air.
Preparation for installation
- surrounding
Keep the hood away from too many doors and windows, so as to avoid air convection affecting the efficiency. - Tools preparation
The hood will be installed with the following tools

Notice
- Installation and circuit setting must be done by experienced professionals. Only a professionally trained person with an installation qualification can install the hood. Non-professionals are not allowed to install, dismantle and repair the hood. ePlease do not power on the hood before installation to avoid electric shock.
- Do not expose the hood if your kitchen is under renovation, because construction materials, dusts, paint, coatings, and emitted gases will corrode and tarnish the hood surface. Therefore, it is recommended to install it after the renovation is completed.
- 1f you need move the Gas Hob before installing the Range Hood, please close the main valve before moving the Gas Hob. eThe wall shall be made of noncombustible materials with enough strength and the surface shall be flat.
- The hood may have very sharp edges. So, please wear protective gloves during hood installation, cleaning or repair. ewhen drilling on the wall or ceiling board, keep away from embedded wires and other concealed devices to avoid electric shock and fire.
- Do not install the hood at a too high position as well as keep the hood free from disturbance of ambient airflow lest the reduction of smoke pumping effect shall occur.
- When making cabinet, please leave space for installation and disassembly of the hood in order to maintain and overhaul the hood.
ewhen installing, please keep the machine body remain horizontal. - Please use single phase grounded socket and the hood shall be well grounded (water pipe grounding is not reliable and gas pipeline grounding has risks of causing fire disaster and explosion).
- In order to ensure safety and successful installation, please use standard accessories provided with the hood for installation, otherwise the hood may be at risk of falling down.
- If the power cord is damaged, in order to avoid danger, it must be replaced by manufacturer, professionals of its maintenance department or similar departments. Please do not carry out restructuring, stretching, knotting and squeezing or apply heavy objects to the power cord, etc., otherwise it may cause power cord damage easily, leading to accidents such as electric shock and fire disaster, etc.
- After installation, please clean the surface of the hood, and then supply power for test run.
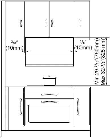
The range hood should be installed directly above the stove. In order to ensure the safety and the best effect of oil fume suction, it is suggested that the minimum distance between the top of the range hood and the cooker supporting surface on the stove should be 29-9’1s” (750mm) and the maximum should not be greater than 32-½” (825mm). If the state or region has laws on installation height of the range hood, please comply with the laws, but the fume suction effect of the product may be greatly affected.The installation of the range hood can be divided into three installation modes: no upper cabinet, with upper cabinet and upper cabinet with decoration panel.
Note:
- The hitching leg must be fixed to the beam with a screw.
- Please operate with protective gloves and goggles.
- The depth of the upper cabinet of the range hood from the wall shall be less than 15″(380mm).
Installation with upper cabinet
- Open the container and take out the machine, and check the items inside against the packing list.
- Open the duct hole at the top of the upper cabinet according to the opening position and size as shown in the picture below.
- Draw a vertical center line in the installation position, and then use the beam detector to find the beam to fix the hitching leg, and mark it with a pencil.

- Determine the installation position of the body hitching leg: confirm the hitching leg position with the lowest point at the bottom of the upper cabinet plate as the base and mark the drill holes. The relevant size is given as below: the distance from the bottom of the upper cabinet plate to the center of the area A of the hitch in le hole is 17-1 ‘2″ 444mm

- Fixed hanging feet
- When the wall of the hanging machine is tile, use a drill bit of 5’1s”(8mm) in diameter to drill a hole of 2-3/s”(60mm)-2- ¾”(70mm) in depth at the mark (not too big), press bulged tube(tile) into the hole, and use the 4x60mm The wood screw will be fixed reliably, and use a level to ensure the level of the hanging foot.
- When the wall of the hanging machine is gypsum board, directly screw bulged tube (gypsum board) into the wall with a screwdriver at the mark, then use 4x60mm wood screw to fix the hanging foot reliably and use a level to ensure the level of the hanging foot.
Note:
- The hitching leg must be fixed to the beam with a screw.
- The A area hole in the figure must be fixed, and the B area hole corres ondin to the wooden column must be fixed with the screw.

Paste the opening sample plate with the text surface downwards on the bottom plate of the upper cabinet, and use the electric saw and the drill bit of diameter ¼”(?mm) to open holes according to the requirements on the opening sample plate.
Note: wear the goggles and gloves when opening the holes.

- According to the thickness of the cabinet, fix the range hood from the bottom plate of the upper cabinet with 4 M5x4Q or M5x1QQ screws, and let go only after at least two screws are fixed.
- If there is a large gap between the cabinet bottom plate and the range hood, please add cushion block according to gap size near four M5x4Q or M5x1QQ screws before installation, so as not to make the range hood enclosure deform and affect use when fastening the screws.
Note: two or more persons are required to install this range hood for safety.
- Put the sealing gasket at the air outlet of the range hood, and fix the check valve with eight ST4.2×18 screws. Attach the duct to the check valve and seal with aluminum tape, make sure that the duct connection is sealed, and then plug it in.
Note: Please straighten the flexible aluminum duct when mounting, to avoid noise generated when the flexible aluminum duct is semistretched, and cut off the excess parts with wire pliers. The connection between the air outlet pipe and the wall hole or the public flue must be tightly sealed to ensure that the air outlet pipe is firmly connected with the check valve or the public flue, and ensure that the blade at the connection of the check valve or the public flue is opened 
- After installation, the range hood must be kept horizontal. In the end, insert the oil cup and power it for test run.

installation with upper cabinet and decoration panel
Note:
6″(152.4mm) or 12″(304.8mm) decorative plate fittings shall be selected when the height from the upper cabinet to the supporting surface of the pot exceeds 32-½”(825mm).
- Open the container and take out the machine, and check the items inside against the packing list.
- Open the duct hole at the top of the upper cabinet according to the opening position and size as shown in the picture below;
- Draw a vertical center line in the installation position, and then use the beam detector to find the beam to fix the hitching leg, and mark it with a pencil.

- Detennine the installation position of the hitching leg and the hitching leg fixed block: confinn the hitching leg position with the inside of the upper cabinet plate bottom as the base and mark the drill holes. The relevant size is given as below:
- When using the 6″ decoration panel, The distance from the inside of the upper cabinet panel base plate to the mounting holes for the hanging feet is 7-¼”(190mm);
- When using the 12″ decoration panel, The distance from the inside of the upper cabinet panel base plate to the mounting holes for the hanging feet is 13-¼”(343mm) ;
- The installment pitch of holes between the center of the hitching leg hole and the hitching leg stop block is 2-3/s”(60±2mm).

- Fixed hanging feet
- When the wall of the hanging machine is tile, use a drill bit of 5’1s”(8mm) in diameter to drill a hole of 2-3/s”(60mm)-2-¼”(70mm) in depth at the mark (not too big), press bulged tube(tile) into the hole.
- When the hanging wall is gypsum board, use a screwdriver to screw the bulged tube (gypsum board) into the wall directly at the mark.
Then, at the mark of the hanging foot stopper fixed orifice, drill a hole with a diameter of 3/s” (10mm) (not too large) and a depth of 2″ (50mm) -2-3’1s”(55mm), The M6 metal bulged tube is inserted into the hole.
- Remove M6 metal expansion pipe, nut and washer, and reliably fix the hitching leg with 4x 60mm wood screws supplied with the machine. Use a level ruler to make sure the hitching leg is in a horizontal position.
Note: The hitching leg must be fixed to the beam with a screw.
- Paste the opening sample plate with the text surface downwards on the bottom plate of the upper cabinet, and use the electric saw to open holes according to the requirements on the opening sample plate.
Note: wear the goggles and gloves when opening the holes.
- Put the sealing gasket at the air outlet of the range hood, and fix the check valve with eight ST4.2×18 screws. Attach the duct to the check valve and seal with aluminum tape, make sure that the duct connection is sealed.
Note: Please straighten the flexible aluminum duct when mounting, to avoid noise generated when the flexible aluminum duct is semi-stretched, and cut off the excess parts with wire pliers. The connection between the air outlet pipe and the wall hole or the public flue must be tightly sealed to ensure that the air outlet pipe is firmly connected with the check valve or the public flue, and ensure that the blade at the connection of the check valve or the public flue is opened and closed flexibly.
- Lift the range hood, hang the back hook at the hitching leg and use a level ruler to ensure that the machine is horizontal. Then plug in the power.

- After the machine is installed in place, install the hitching leg stop block and the gasket on the M6 metal expansion pipe, and tighten the nut with a wrench (to prevent the machine from decoupling accidentally under external force).
- Fix the decoration panel at the bottom of the upper cabinet plate with four ST4.2X18 self tapping screws and make sure that the decoration panel is flat.

- After installation, the range hood must be kept horizontal. In the end, insert the oil cup and power it for test r,1.1(1.

installation without upper cabinet
Note: select the mainframe panel accessories if there is no cabinet above the stove.
- Open the container and take out the machine, and check the items inside against the packing list.
- Open the duct hole at the top of the upper cabinet according to the opening position and size as shown in the picture below.
- Draw a vertical center line in the installation position, and then use the beam detector to find the beam to fix the hitching leg, and mark it with a pencil.

- Determine the positions to fix the hitching leg and the hitching leg stop block.
Confirm he hitching leg position with the cooker supporting surface as the base and mark the drill holes. The relevant size is given as below:- The minimum distance between the cooker supporting surface and the mounting holes of the hitching leg is 28-“(720mm)
- The maximum distance between the cooker supporting surface and the mounting holes of the hitching leg is 31-5/1″(795mm);
- Fixed hanging feet
- When the wall of the hanging machine is tile, use a drill bit of S/16″(8mm) in diameter to drill a hole of 2-/s”(60mm)-2- /4″(7Omm) in depth at the mark (not too big), press bulged tube(tile) into the hole.
- When the hanging wall is gypsum board, use a screwdriver to screw the bulged tube (gypsum board) into the wall directly at the mark. Then, at the mark of the hanging foot stopper fixed orifice, drill a hole with a diameter of S/” (10mm) (not too large) and a depth of 2″ (50mm) -2-3/16′”(55mm), The M6 metal bulged tube is inserted into the hole.
- Remove M6 metal expansion pipe, nut and washer, and reliably fix the hitching leg with 4x 60mm wood screws supplied with the machine. Use a level ruler to make sure the hitching leg is in a horizontal position.
Note: The hitching leg must be fixed to the beam with a screw.
- Put the sealing gasket at the air outlet of the range hood, and fix the check valve with eight ST4.2×18 screws.
- Lift the range hood, hang the back hook at the hitching leg and use a level ruler to ensure that the machine is horizontal.

- After the machine is installed in place, install the hitching leg stop block and the gasket on the M6 metal expansion pipe, and tighten the nut (to prevent the machine from decoupling accidentally under external force). Attach the duct to the check valve and seal with aluminum tape, make sure that the duct connection is sealed, and then plug it in. Note: Please straighten the flexible aluminum duct when mounting, to avoid noise generated when the flexible aluminum duct is semi-stretched, and cut off the excess parts with wire pliers. The connection between the air outlet pipe and the wall hole or the public flue must be tightly sealed to ensure that the air outlet pipe is firmly connected with the check valve or the public flue, and ensure that the blade at the connection of the check valve or the public flue is opened and closed flexibly.

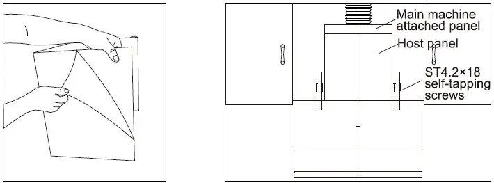
- Tear off the protective film of the host panel and the host attached panel, insert the host attached panel into the host panel, and then fix the host panel on the top of the range hood with 4 ST 4.2x 18 self-tapping screws.

- Taking the ceiling as a benchmark, mark the holes for the hanging legs of the main panel, so that the distance between the edges of the two hanging legs is slightly smaller than the width of the main panel.
- drill a hole with a depth of 2-¼”(70mm) at the marked place with a drill bit with a diameter of 5hs” (8mm), press the expansion pipe into the hole, fix the two hanging feet of the main machine attached panel reliably with 4x60mm wood screws, and then fix the top of the hanging feet of the main machine attached panel and the ceiling reliably with 4 ST4.2×18 screws
Note: the hanging foot of the attached panel of the main engine must be fixed on the wooden column with a screw;
The edge distance between the hanging legs of the two main machine attached panels is slightly smaller than the width of the main machine attached panels.
- After fixing the hanging feet of the host attached panel, pull out the host attached panel by hand, so that the top hem of the host attached panel is hung on the edge of the hanging feet, which makes the host attached panel firmly installed.
Note: When installing the main machine attached panel, it should be slightly broken outward, so that the top hem of the main machine attached panel can be hung on the edge of the hanging foot smoothly.
- After installation, the range hood must be kept horizontal. In the end, insert the oil cup and power it for test run.

A678Switch control panel

Turn on the power and the buzzer will sound, indicating the power state.


A679Switch control panel

Turn on the power and the buzzer will sound, indicating the power state.


Maintenance
warning
- There is a fire risk if cleaning is not carried out in accordance with the instructions.
- Cleaning and maintenance shall be conducted under outage. Electrical components such as motor, switch, and connector shall not be spoiled by water so as to prevent from accidents.
- It’ s prohibited to wash with water so as to prevent accidents.
- Stove fire shall be extinguished timely when it is not used; do not flambe under the range hood and it’ s prohibited to bake food under range hood directly to prevent range hood from damaging and causing accidents.
- If the supply cord is damaged, it must be replaced by the manufacturer, its service agent or similarly qualified persons in order to avoid a hazard.
- Accessible parts may become hot when used with cooking appliances.
Precautions
- The range hood should be maintained and cleaned on a regular basis to keep the body clean and ensure the use effect according to the use environment conditions, to extend the service life. You are recommended to wipe the outer surface of the product after each cooking.
- Do not use strong detergent. It is recommended to clean with neutral detergent and dry with soft cloth. If your range hood has a mechanical switch, prevent the detergent from touching the control keys.
- Do not keep the stains too long on the surface of the hood.
- Do not use cleaning ball, brush and other coarse materials to clean the hood to prevent scratching the body surface. ewear protective gloves when cleaning or maintaining the hood to prevent injury during wiping.
- check and clean the oil cup regularly. When more than 2/3 oil has accumulated in the oil cup, hold the oil cup with both hands, pan it out and pour out the waste oil.
- The range hood shall be turned on before cooking.
- Pull out the power plug that is not in use for a long time, but do not pull hard.

Removal of Components
warning
- As a general rule, the hood body does not need to remove, and removal shall be done by professional maintainers. Nonprofessionals are forbidden to remove, install and repair the hood.
- Before cleaning, installation or maintenance for the range hood, cut off the power supply to avoid electric shock.
Note: The installation procedures of the following components are in reverse with the removal. Please wear protective gloves during operation to prevent the sharp edge of metal hurting your hands.
Lamp removal
- Long press the cleaning button to open the air deflector, unplug the power, use a cross screwdriver to unscrew the two screws on the cover plate and take out the cover plate according to the direction of the arrow;
- Push out the lamp from the inside by hand and unplug the connecting wire for repair and replacement.

Switch removal
- Long press the cleaning button to open the air deflector, unplug the power, use a cross screwdriver to unscrew the two screws on the cover plate and take out the cover plate according to the direction of the arrow;
- Pull out the switch assembly and unplug the connecting wire for repair and replacement.

Filer disassembly
- Long press the cleaning button to open the air deflector.
- Hold the two magnetic clasps on the filter with both hands, slightly exert force outwards to make the filter no longer be absorbed, then lift the filter according to the direction of the arrow to make it separated from the neck, and finally pull out the filter to clean the filter.

Hood disassembly
- Take down the lamp according to the lamp disassembly steps;
- Take down the switch assembly according to the switch disassembly steps;
- Take down the filter according to the filter disassembly steps;
- Unscrews the screw on the back plate, remove the back plate, unscrew the screws on the air duct outlet, remove the air duct and unscrew the 6 screws on the check ring;
- Unscrew the cap clockwise and take out the impeller vertically; The assembly steps are opposite to the disassembly steps. (When installing the impeller, please apply some lubricating oil in the axle hole of the impeller.)
The body may not be disassembled under normal circumstances. The disassembly work should be completed by professional maintenance personnel.

Circuit diagram

Troubleshooting of General faults
| Serial number | Fault | Cause | Solution |
| 1 | No response after pressing any icon (e. g. the impeller does not rotate, or the light is off) | The power plug is not connected properly or there is power failure | Plug in the power plug |
| 2 | Pressing the lighting icon, the headlamp is not lit | The light is damaged or poorly connected | Replace the light or plug in the plug |
| 3 | Induced current exists on the hood body may paralyze hands | The power socket is not grounded well | Use single-phase three-pole socket and well grounded |
| 4 | Abnormal sound during impeller running | The impeller is loose, and the cap is not tightened | Tighten the cap |
| 5
| No oil in the oil cup after a period of time | The hood body is tilt | Adjust the body to the horizontal state |
| Warning | 1. When connecting or replacing the plug, please unplug the power plug. 2. lf the range hood’s power cords are damaged,it must be replaced by our company’s professional maintenance staff. | ||

Danger If ignore this sign and operate product improperly, it’s highly possible to cause danger, serious injury or fire.


Note: Please straighten the flexible aluminum duct when mounting, to avoid noise generated when the flexible aluminum duct is semistretched, and cut off the excess parts with wire pliers. The connection between the air outlet pipe and the wall hole or the public flue must be tightly sealed to ensure that the air outlet pipe is firmly connected with the check valve or the public flue, and ensure that the blade at the connection of the check valve or the public flue is opened 









Confirm he hitching leg position with the cooker supporting surface as the base and mark the drill holes. The relevant size is given as below:






















