FOTILE JQG7505 30 Inch Under-Cabinet or Wall-Mount Range Hood
SAFETY INFORMATION
In order to prevent accidental damage to the Fotile Range Hood and/or bodily injuries as a result of its operation, please read the following safety information nsta I ling and/or using this appliance. Following the instructions carefully will significantly reduce the risk of fire, electric shock and/or bodily injuries to persons. We recommend that you keep this manual for future use and/or in case of transfer of ownership of the range hood.
Important Note
- This appliance is intended for indoor home cooking only; it cannot be used for outdoor cooking. Please use this product only according to the manufacturer’s instructions. Fotile assumes no responsibility if you use it in special environment. Please contact a Fotile authorized service center if you encounter any problems.
- Check the appliance for damage after unpacking it. If you detect any obvious damage to the product, do not proceed with the installation please contact our authorized service center immediately.
- Avoid placing gypsum fX>Wder, construction dust, etc. within close proximity of the range hood.
- Operate the range hood only in the manner outlined in this product manual.
- When operating the range hood, do not leave the appliance unattended. If you have any questions and/or concerns, please contact our authorized service center.
- Operate, clean and maintain the range hood in accordance to the instructions outlined in this manual.
- Clean the metal greas,e filter according to the instructions.
- The range hood’s moto:r has a thermal overload function, which automatically turns off the motor when it overheats. Once the motor cools down ‘ the range hood will automatically restart. If the motor, continually turns off and restarts, please contact our authorized service center.
- If the range hood has not been in operation for an extended PEriod of time, unplug the appliance.
- Please make sure correct installation and maintenance of the appliance. Installation work and electrical wiring must be done by a qualified person(s), in accordance with all applicable codes and standards, including firerated construction codes and standards. The installation personnel should be responsible for normal operation of the appliance at the installed position.
- When operating the range hood in e·xhaust mode, ensure to install the damper along with the hood.
- For general exhausting only. Do not use this range hood to exhaust hazardous and /or explosive materials or gas.
- The product itself is nonflammable.
- In order to reduce the risk of fire all J exhaust pipes, flues and devices should be nonflammable. Use only metal duct cover and metal duct pipes. Never cover the hood with flammable plastic film or paper.
- Services guaranteed under warranty must be performed by Fotile certified service provider or personnel.The warranty is not effective for products removed for repair without authorization.
- Please read the specification label on the range hood for further information and requirements.
- Please install a supplementary air device if you install the high-power Range Hood in an airtight room. Due to the configuration of the Fotile Range Hood, it is recommended for users with an airtight new house to install a supplementary air device. Please comply with relevant regulations to install corresponding supplementary air device if there are relevant regulations in your state or region.
- This product is only used in USA and Canada.
- This product is for use in the U.S. and Canada only.
Caution: - When applicable local regulations comprise more restrictive installation and/or certification requirements, the aforementioned requirements will prevail, and installation personnel must conform to these requirements.
- The operating temperature of the range hood should not exceed 104 °F (40°C ).
- Please do not place anything on top of the product. Anything placed on top may fall off or incline. For example, if you place seasoning bottles on top, the inclination may cause liquid to flow inside the product, resulting in damaged electrified components and therefore unnecessary risks. Our company will not bear the responsibility for free repair in case of product damage due to the above reason.
- Clean the Grease Cup frequently to prevent overflow. The resulting grease is inedible! Please do not place flammable materials in the oil cup, such as plastic wrap, paper towels, etc.
- When cutting or drilling into the wall or ceiling, be careful not to damage electrical wiring, water pipes, gas lines, or other hidden utilities.
- Adhere to the heating equipment manufacturer’s guidelines and safety standards, such as those published by the National Fire Protection Association (NFPA), the American Society for Heating, Refrigeration and Air Conditioning Engineers (ASHR AE) and the local code authorities. Meanwhile, conform to the safety standards issued by such administrative departments as fire department.
- When gas burners are in operation without any cookware placed on them, they can build up a lot of heat. A ventilation appliance installed above the cooker may become damaged or catch fire. Only operate the gas burners with cookware on them.
- Adhere to the voltage and frequency settings
listed in this manual to avoid possible damage to the range hood. - Please use standard accessories provided by our company to prevent the range hood from falling down accidentally. The hole drilled in the wall should precisely match the size of the expansion pipe, otherwise, the range hood may loose and fall down.
- Tampered glass is applied to the products of the company and the tampering treatment of the glass determines the extremely little possibility of spontaneous explosion. If the occurrence of spontaneous explosion is not due to improper use, our company promises free replacement of the accessories. The possibility of tempered glass breaking can be significantly increased in the following situations, which should be avoided: For instance, hitting the glass, especially the corners of the glass, with cooking utensils or other hard objects; The glass is impacted when you open a cabinet door around the Range Hood; Put the glass in an extremely hot or cold environment or an environment where heat and cold are excessively alternated.
- Unauthorized modification of this product can lead to risks.
Warning
Risk of Electric Shock
A defective appliance may cause electric shock. Never switch on a defective appliance. Unplug the appliance from the mains or switch off the circuit breaker in the fuse box in case of problems, and contact our authorized service center.
- The range hood should be connected to a standard power socket with safe grounding. Midway connection, prolonged electric line or multi-socket wiring may cause electric shock, overheating and, in some cases, result in a fire. Installation of the range hood should be performed by professional electricians in strict accordance with electricity standards and regulations of the local area. Before connecting the rod, turn off the power source and take appropriate measures to prevent auto closing of the power switch.
- In order to prevent electric shock and/or other bodily injuries to persons, do not exceed 120V AC input.
- Do not install the range hood in a bathroom and/or a humid area, as this will significantly increase the risk of electric shock.
- If a wire is damaged or defective, contact an authorized service provider or a qualified technician (provided by Fotile) to replace the wire
- Do not change, stretch, knot, pressure or squeeze the wire as any resulting damage can result in electrical and/or fire hazards.
- Prevent water from coming into contact with the range hood’s electrical components, such as the motor, switch and connector. Do not wash the appliance with water. Do not use the appliance if it is wet, as electric leakage and/or electric shock may occur.
- Do not attempt to change the range hood’s internal wiring system. Improper modifications and/or repairs to the internal wiring can result in bodily injuries to persons, electric shock and/or a fire.
- In order to avoid electric shock, remember to turn off the appliance’s power source before installation, cleaning and/or maintenance service.
- Avoid using high-pressure detergents and/or steam cleaners on the appliance, as they may result in electric shock.
- Do not touch the plug or switch with wet hands, as an electric shock may occur.
Grounding Instructions
- This appliance must be grounded. In the event of an electrical short circuit, grounding reduces the risk of electric shock by providing an escape wire for the electric current. This appliance is equipped with a cord having a grounding wire with a grounding plug. The plug must be plugged into an outlet that is properly installed and grounded.
- Improper grounding can result in electric shock
- Consult a qualified electrician if the grounding instructions are not completely understood, or if doubt exists as to whether the appliance is properly grounded.
- Do not use an extension cord. If the power supply cord is too short, have a qualified electrician install an outlet near the appliance.
Risk of Fire
- In order to reduce the risk of fire and to properly exhaust air, always duct the air outside. Do not vent exhaust air into spaces within walls, ceilings, attics, crawl spaces and/or garages.
- In order to prevent the risk of fire, the range hood should be operated and maintained in accordance to the instructions.
- Hot oils may ignite and burn quickly. Never leave hot oils unattended.
- Clean the hood’s Grease Cup at regular intervals, as leftover grease deposits may ignite.
- Never operate the range hood without the Grease Cup filter attachment.
- Never work with naked flames close to the appliance (e.g. flambeing). Do not install the appliance near a heat-producing appliance for solid fuel (e.g. wood or coal) .There must be no flying sparks.
- Avoid cooking with food products that produce flames under the range hood.
To Reduce Risk of Cooktop Grease Fire:
- Never leave surface units unattended at high settings. Boilovers cause smoking and greasy spillovers that may ignite. Heat oils slowly on low or medium settings.
- Always turn the hood on during cooking.
- Clean ventilating fans . Grease should not be allowed to accumulate on fan, filter or in exhaust ducts.
- Use proper pan size. Always use cookware appropriate for the size of the surface element.
To Reduce the Risk of Injury to Persons in the Event of a Range Top Grease Fire, Observe the Following: - Smother flames with close-fitting lid, cookie sheet, or metal tray, then turn off the burner. Be careful to prevent burns. If the flames do not go out immediately, evacuate and call the fire department.
- When the cooking utensil catches fire, switch off the range hood immediately. Effective extinguishing measures must be taken at once, such as covering the open flame with metal cover, turning off the master gas valve and keeping flammable substance from the open flame etc. )
- Never pick up a flaming pan-you may be burned.
- Do not use water, including wet dishcloths or towels-a violent steam explosion will result.
Use an Extinguisher Only If:
- You know you have a class ABC extinguisher and you already know how to operate it.
- The fire is small and contained in the area where it started.
- The fire department is being called.
- You can fight the fire with your back to an exit
Risk of Injury
- This appliance is not intended for use by persons (including children) with reduced physical, sensory or mental capabilities, or lack of experience and knowledge, unless they have been given supervision or instruction concerning use of the appliance by a person responsible for their safety. Children should be supervised to ensure that they do not play with the appliance.
- The range hood may have sharp edges. Be careful to avoid cuts and abrasions during installation and cleaning. Do wear qualified protective gloves.
- The accessible parts become very hot when in operation. Never touch hot parts. Keep children at a safe distance.
- Do not touch lamps during or soon after operation. Burns may occur.
- Do not insert your limbs and/or foreign objects into the impeller while the range hood is in operation, as that action might cause injury.
- This appliance is not intended for operation with an external clock timer or a remote control. Incorrect repairs are dangerous. Repairs may only be carried out and damaged power cables replaced by one of our trained aftersales technicians ..
- If any abnormalities and/or defects occur while operating the range hood, immediately turn off the appliance and unplug the appliance from the mains or switch off the circuit breaker in the fuse box. Then , contact our authorized service center. Abnormal oper ation and defects may cause hazardous situations, such as electric shocks and fires.
Risk of Suffocation:
- Packaging material is dangerous to children. Never allow children to play with packaging material, which may cause suffocation. Keep all packing material out of proximity to children. Please remember that packaging materials should not be treated as toys.
Risk of Death:
- Risk of i:oisoning from flue gases that are drawn back in.
- Always ensure adequate fresh air in the room if the appliance is being operated in exhaust air mode at the same time as room air-dependent heat-producing appliance is being operated. Exhaust gases through the flue (chimney) of fuel burning equipment to prevent back drafting. Fotile is not responsible for injuries caused by improper and/or incorrect operation of the range hood.
OPERATION
Warning
- Do not use excessive force to press buttons on the control panel.
- Turn off gas burners without any cookware placed on them.
- Do not disassemble the appliance with power on and/or without complying with instructions.
- Clean the Grease Cup frequently to prevent overflow and a potential fire.
- Disassembly and/or servicing of the range hood must be performed by qualified technicians.
- Do not let the stove fire burn the range hood directly.
Product Information
| Model | JQG7505 | |
| Produce size L*D*H | 29 7/8 X 18 1/4 X 17 7/16 11 (758 x 462 x 442 mm) | |
| Net weight | 63.9 lbs(29Kg) | |
| Voltage/Frequency | 120V/60Hz | |
| Rated power input of the range hood | 210 W (light power included 3W x 2) | |
|
Noise | Super-high-setting | 5 6.5dB(A) |
| High-setting | 54dB(A) | |
| Medium-setting | 49dB(A) | |
| Low-setting | 39dB(A) | |
| Max static pressure | 540 Pa | |
| Caution: 1. dB noise in the above table complies with the IEC60704 standard, it is the sound pressure level, the corresponding sound power level is 70.SdB for supper- high-setting, 68dB for high-setting, 63dB for medium- setting and 53dB for low-setting. 2. such parameters as noise may have a deviation of less than 5%. | ||
- Fotile Range Hood Control Panel

- Operation Procedure
GESTURE function: Wave hands (J quickly through the sensor windows at two sides, the smoke baffle plate will automatically open, the range hood is operated on a high setting and the lights will be turned on; wave hands quickly through the sensor windows at two sides again, all functions of range hood will be turned off, the button indicator will be turned off, the s.moke baffle plate will be closed automatically and the range hood is off. When switching off, press -A Lighting and + Medium-setting Fain at the same time for 5 seconds to turn on/off the GESTURE function. - OPOWER button: Once you press the POWER button, the range hood will be activated, the button will fully illuminate and the other buttons on the control panel will display low illumination. Lightly press the POWER button again to turn off the range hood in the working conditions. Once the range hood is off, all functions are off, all buttons will cease to illuminate, and the smoke baffle plate will be closed automatically. With the exception of the LOCK SCREEN button, the other buttons will only work when the POWER button is active.
- HIGH-SETTI NG/SUPER-HIGH-SETTING FAN: Lightly press the button, the smoke baffle plate will open automatically, and the fan will start up, while the @HIGH-SETTING/SUPERHIGH-SETTING indicator will fully illuminate, and the range hood will be operated on highsetting; press the HIGH-SETTING/SUPERHIGH-SETTING FAN • lightly again, the motor will stop, and the HIGH-SETTING/ SUPER-HIGH-SETTING FAN indicator will return to low illumination; press the HIGHSETTING/SUPER-HIGH-SETTING FAN and hold for 2s, theHIGH-SETTING/SUPERHIGH-SETTING indicator will fully illuminate in green, and the range hood is operated on SUPER-HIGH-SETTING;Press the HIGHSETTING/SUPER-HIGH-SETTING FAN@ again and hold for 2s, the range hood can be operated on the HIGH-SETTING and the @ HIGH-SETTING/SUPER-HIGH-SETTING indicator will fully illuminate; lightly press the HIGH-SETTING/SUPER-HIGH-SETTING FAN ‘@ again, the motor will stop, and the@, HIGHSETTI NG/SUPER-HIGH-SETT I NG indicator will return to low illumination.
- MEDIUM-SETTING FAN: Press the MEDIUM-SETTING FAN lightly, the smoke baffle plate will open automatically and the fan will start up; while the ogo MEDIUM-SETTING indicator will fully illuminate, the range hood is operated on medium-setting; press the MEDIUM-SETTING FAN <%-> lightly again, the motor will stop, and the cg<> MEDIUM-SETTING indicator will return to low illumination.
- LOW-SETTING FAN: Press the button lightly, the smoke baffle plate will open automatically, the fan will start up, the LOWSETTING indicator will fully illuminate, and the range hood will be operated on low-setting; press the LOW-SETTING FAN lightly again, the motor will stop, and the LOW-SETTING indicator will return to low illumination.
- LIGHTING: The LIGHTING button opens the smoke baffle plate and turns on the lights Once pressed, the button will fully illuminate Press the button again and the light will turn off and the-:¢: LIGHTING indicator will return to low illumination. DELAY: Press the key lightly while the range hood motor is working, the (9 delay indicator will fully illumination, and a two-minute delay is activated; 2 minutes later, all functions will turn off, the smoke baffle plate will be closed automatically, and the range hood will turn off.
During the delay, if you press the DELAY (9 button lightly once, the (9 delay will be stopi:ed, the delay indicator will return to low illumination, and the range hood will remain the current working state.
Lightly press the any control panel button other than the DELAY button once during the delay to exit the delay, the (9 DELAY indicator will return to low illumination, and the function of the pressed button operates.
When the range hood is not working, the DELAY button (9 is not working, and if the button is pressed, an alarm sound will engage. - LOCK SCREEN button: Once pressed and held @for 2 seconds when the range hood fan is not operating, you will hear a “beep” sound, the @ LOCK SCREEN button will fully illuminate, all buttons will be locked, and any pressing will be invalid; in order to unlock the control panel, you must press and hold the LOCK SCREEN button @ for another 2 seconds. When the range hood fan is in operation, the LOCK SCREEN button is not working, if the button is pressed, an alarm sound will engage.
Hints- The range hood will be turned off automatically if it is not operated for 2 minutes in the standby state;
- It’s suggested that the range hood be turned on during steaming to keep the kitchen air fresh, otherwise, too much steam passing by the Sensor Window may trigger the GESTURE functiion.
CLEANING AND MAINTENANCE
Important Note
Reattach the grease filter after cleaning and maintenance of the range hood. Do not operate the appliance without the grease filter, as it may cause safety hazards
Caution
Risk of damage due to corrosion.
- Always switch on the appliance while cooking to avoid condensation. Condensate can produce corrosion damage.
- Surface damage due to incorrect cleaning. Clean stainless steel surfaces in the direction of the grain only. Do not use any stainless steel cleaners for operator controls.
- Surface damage due to strong or abrasive cleaning agents.
Replace faulty LED lights to prevent the remaining lights form overloading.
Warning:
- The range hood should only be cleaned as instructed; otherwise, it may ignite.
- Please remember not to wet the motor and/or the control panel, as it may result in damaging the electric circuits or potential hazards.
- Do not clean the appliance with chemical agents, such as gaso[ine, acids, benzene and solvents
Risk of Electric Shock:
- Penetrating moisture may result in an electric shock. Prior to cleaning and maintenance, pull out the mains plug or switch off the circuit breaker in the fuse box.
- Do not use any high-pressure cleaners or steam cleaners, which can result in an electric shock.
Risk of Fire:
- Grease deposits in the grease filter and Grease Cup may catch fire.
- Please do not place flammable materials in the oil cup, such as plastic wrap, paper towels, etc.
- Please avoid excessive accumulation of oil and regularly clean oil cup and other components which can accumulate oil
Risk of Injury:
- Unplug the appliance from the mains or switch off the circuit breaker in the fuse box before installation, cleaning, maintenance and repair in order to avoid electric shock.
- The range hood may have sharp edges. Be careful to avoid cuts and abrasions during installation and cleaning. Do wear qualified protective gloves.
- While the range hood is in operation, do not insert your hand into the area housing the fan.
- The appliance will become hot during operation, especially near LED lights. Allow the appliance to cool down before cleaning. Do not touch lamps during or soon after operation. Burns may occur.
- If you would like to schedule a deep cleaning for your appliance, please contact our authorized service center.
Fotile suggests that you clean the surface of the appliance for better use. - Neutral detergent may be used to clean stains on the range hood. However, avoid touchi ng the control panel. Wipe some detergent on the stains and let the detergent sit. Do not let the detergent sit for an extended period of time, as it can cause damages to the appliance’s surface. Then, wipe off the stain with a soft cloth and the left detergent with a slightly wet cloth. Next, use another cloth to dry the appliance.
- Stains on the range hood should be cleaned within a short ti me period, as to prevent the stains from becoming permanent.
- Abrasive detergents, such as a salt solution, disinfectant or bleach powder cannot be used to clean the appliance. Wipe off the detergent with a wet, soft cloth. Next, use another cloth to dry the appliance.
Warning: Do not clean the appliance with abrasive tools, such as steel wool, brushes, and coarse cloths, as these materials will permanently scratch the surface of the hood.
Preparations before Cleaning
- Unplug the range hood or turn off the power socket.

- Clear the cookvvare on the burners.
- Prepare a neutral detergent and a soft cloth (or soft brush) for stain removal and cleaning.

Washing and cleaning the surface, Grease Cup, and grease filter: (The cleaning can be done by the user)
- Clean the surface of the range hood.

- Take out the oil cup horizontally and wash it.
Warning: For the safety of you and your family, please regularly clean out the oil in the oil cup and sediment on the external surface of the oil cup to avoid fire risk. Please operate with protective gloves. - Lightly press the POWER button. Then, lightly press the LIGHTING button. After the LIGHTING button is pressed, the smoke baffle plate will open.

- 4. Hold the two sides of the grease filter and pull sideward to unlock it.
* Suggestion: In order to protect the health of you and your family, the filter should be cleaned regularly and it is dishwasher safe for your convenience.
Warning: Please wear qualified protective gloves in operation.
Replacing LED Lights
- Lightly press the POWER button; then, press the LIGHTING button. Ater the LIGHTING button of is pressed, the smoke baffle plate will open.

- Unplug the range hood or turn off the power socket.

- Use a small flat-head screwdriver to gently pry the LED assembly out.

- Disconnect the wires and then replace the LED lights.

Risk of Electric Shock
To avoid electric shock, please disconnect the power plug or shut off the power supply of the range-hood socket before replacing the LED light.
FAQ
Warning: Risk of Electric Shock
- Incorrect repairs are dangerous. Repairs may only be carried out and damaged power cables replaced by our authorized service center, or certified electricians.
- If there is a defect in the product, please disconnect the power plug or shut off the power supply of the range-hood socket in order to avoid electric shock. Please contact the service center authorized by FOTILE.
- to avoid electric shock, please disconnect the power plug or shut off the power supply of the range-hood socket before replacing the LED light.
- If an abnormal condition occurs during use, immediately stop using the product and disconnect the power plug or shut off the power supply of the range-hood socket in order to check the following:
Problem/Issue Possible Cause After the POWER button is pressed, the range hood remains off and the button does not illuminate.
The appliance may be unplugged The motor works, but the control panel buttons do not illuminate.
LED lights have been damaged If the problem/issue with the appliance still persists after ruling out the possible cause(s), please contact our authorized service center for assistance.
SERVICE INFORMATION
Warning
- In the event of an abnormal condition during the use of the range hood, please stop using it, disconnect the power plug or shut off the power supply of the range-hood socket. Please contact the service center authorized by FOTI LE.
- The appliance must only be repaired by a professionally trained and certified technician; otherwise, severe injuries may occur.The ventilator shall be not allowed to be repaired by any party other than Fotile’s appointed technicians. Otherwise it may cause serious consequences and exempt the product from warranty.
- Please do not repair or replace any part of the Range Hood unless it is specifically suggested in the manual. All other maintenance work should be carried out by qualified technicians.
- The following circumstances do not fall into the scope of free warranty, and a fee will be charged for repair.
- Damage resulting from improper handling, installation, use, maintenance and safekeeping conducted by the customer.
- Failure and damage caused by using the product beyond the normal operating conditions (damage caused in the case that the voltage is higher than 132V or lower than 104V).
- The product is installed, dismantled or repaired by the customer or any party other than Fotile’s appointed service staff or agency.
- The discrepancy between the information on the purchase voucher and the warranty card and the product.
- Product damage caused by force majeure (such as natural disasters and war, etc.).
- Product failure or damage arising from use not in conformity with the “instructions”.
INSTALLATION
Installation Instructions
Important Note
- Prior to installation, please read the Foti le Range Hood Installation carefully and save it for the local inspector’s future reference.
- This appliance must be installed in accordance with National Electrical Codes, as well as all state, municipal and local codes.
- The appliance must be equipped with safe circuit breaker and installed with safe grounding.
- The correct voltage, frequency and amperage must be supplied to the appliance according to the proper voltage, frequency and amperage ratings listed on the product rating plate.
- This installation must be completed by Fotile authorized service center, or certified installers.
- Please record the model and serial number before installing the range hood. Position of plaque can be referred to in figure A as follows:

Caution: - Please carefully read all instructions prior to installation. Please give special consideration to the following items:
- If you are renovating your kitchen, be careful to not expose the exterior of the range hood. Building materials, dust, paint, coating, and gases will corrode and tarnish the surface of the range hood. It is recommended that you install the range hood after all renovations are completed.
- If you need to remove your gas burner before installation, please turn off the main gas valve first.
- Do not connect the range hood duct to a duct used to exhaust hot air or fumes from another appiance.
- Two installers are recommended due to the large size and heavy weight of the range hood. Since the installation is complex and the appliance is heavy, professional installers are required to install the appliance as outlined in this manual.
- After the appliance fixed, the plug should be accessible.
- Make sure to keep the appl iance horizontally.
- Ensure that the appliance functions normally after the installation is complete.
Warning:
In order to reduce the risk of fire, electric shock, or injury to persons, please carefully read the following:
- The installation and wiring of the appliance should only be carried out by a professional electrician in accordance with current national or local electric safety regulations, including fire-rated construction. Non-professional personnel should not conduct installation. Proper installation is the responsibility of the installer.
Product failure due to improper installation is not covered under the Foti le warranty. - Please use standard installation equipment and tools provided by Fotile to ensure safe installation. Make sure to use the expansion tube and expansion bolt provided by our company, in case the range hood falls down accidentally. The hole drilled into the wall should precisely match the size of the expansion tube, otherwise, the range hood will not be properly secured to the wall and may fall down
- The range hood should be connected to a standard power socket with safe grounding. The midway connection, prolonged electric Ii ne or multi-socket wiring may cause electric shock, overheating and even fire.
Power off before wiring and make sure proper measures have been taken to avoid unexpected connections. - During installation, switch off the circuit breaker in the fuse box during installation. the supply cord is damaged, it must be replaced by a special cord or assembly available from the manufacturer or its service agent.
- The appliance should only be installed, removed and maintained by qualified technicians to prev ent risks like electric shocks, falling or fires from occurring.
Risk of Injury:
- Unplug the appliance from the mains or switch off the circuit breaker in the fuse box before installation, cleaning, maintenance and repair in order to avoid electric shock.
- The range hood may have sharp edges. Be careful to avoid cuts and abrasions during installation and cleaning. Do wear qualified protective gloves.
Warning Before Installation
- Prior to installation, ensure that the exhaust outlet is free of debris, as they may damage the range hood.
- A straight and short ducting run will ensure a high performance of the range hood.
- A curving and long ducting run should be avoided, as it will lower the performance of the range hood.
- strictly seal the connection between the duct and duct hole with duct tape. Ensure that the connection between the duct and the duct cover is secure, and seal it with aluminum tape.
- mall duct hole will lower the performance of the range hood. Therefore, it is highly recommended that you cut a duct hole equal to or larger than 6″(152.4mm) of the size
- The bolts used in this product are metric-size bolts, please do not apply any unqualified bolts.
Product Dimensions
Wall Preparation
The wall should be strong enough to support the range hood. As for hollow wall or hollow plate, The minimum thickness of the lumber should be 13/16″ (30mm). As for concrete wall, the installation can be directly operated. The range hood should be firmly fixed on the wal I.
Ductwork Installation
Risk of Injury
- Unplug the appliance from the mains or switch off the circuit breaker in the fuse box before installation, cleaning, maintenance and repair in order to avoid electric shock.
- The range hood may have sharp edges. Be careful to avoid cuts and abrasions during installation and cleaning. Do wear qualified protective gloves.
- When cutting or drilling into walls or ceilings, do not damage electrical wiring and other hidden utilities.
- Ducted fans must always be vented to the outdoors.
- To reduce the risk of fire and to properly exhaust air, always duct air outside. Do not vent exhaust air into spaces within walls, ceilings, into attics, crawl spaces or garages.
List of Accessories
Packing List 




Installation Tools
Installation Procedure
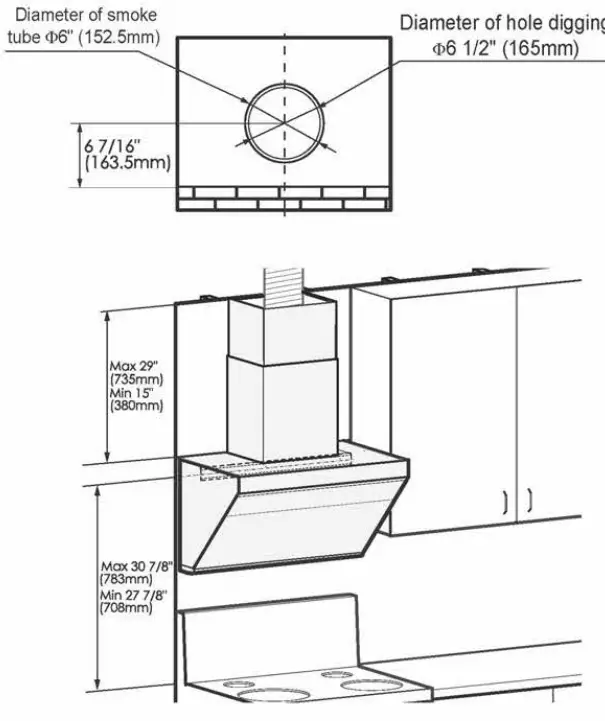
In order to secure the safe use of the range hood and maximize its ability to ventilate cooking fumes, the installation height is suggested as follows: The distance from the countertop of the gas stove to the top board of the range hood shall not be less than 29 9/16″(750mm) and shall not be more than 32 1/2″(825mm). Where there are relevant laws stipulating the mounting height of range hood in the state or region, the laws shall prevail ( Included but not Ii mited to architecture and firefighting regulations and standards). However, the effect of cooking fumes ventilation might be affected.
The range hood can be installed in three ways, either with or without the upper cabinet. Caution:
- One of the wood screws(#1 0x2 9/16″(ST5x65mm)) for duct bracket must be fastened to the wooden beam.
- If it is necessary to drill the duct outlet at the back wall, the distance from the top plane of the range hood to the center of the hole should be at least 8″ (203mm).
Warning: Excessively low installation height can cause overheating of the glass panel, increasing the possibility of breaking.
Installation of the Fotile Range Hood with an Upper Cabinet:
Warning: Do wear qualified protective gloves.
- Unpack the appliance and check the List of Accessories.

- Locate the wooden beam and mark the location with a pencil.

- Locate the duct bracket. Determine the central point and mark the centerline on the wall where the hood will be installed. Also, mark the point where the central line and the lowest point on the bottom board of the top cabinet meet This is the location, in which to secure the bracket. Mark screw hole locations on the wall. The distance behNeen the lowest point on bottom board of the top cabinet and the center of the bracket should be 16″ (405mm).
Caution: One of the wood screws( #1 0x2 9/16″(ST5 x65mm)) for main engine must be fastened to the beam. Screws must be fixed at Hole A and B in the drawing; also wood screws(#1 Qx2 9/16″(ST5x65mm)) must be fixed at bracket bores with corresponding wooden stakes in Area C. - Fixing hooks:
- Punch marks are on tiles (marble): Punch holes (<p3/8″(cp8mm)) with an electric drill at the marks, and embed expansion tube for til es(cp1/ 4″x1 5/1 6″(cp5.3x32mm)); fix hook with hook screws(#8×1 7/16″(ST4.2x36mm)), and keep the hook level with a level ruler.
- Punch marks are on plasterboards: Screw the expansion tube for plasterboards( cp3/16″x 1 5/8″(cp4x40mm)) into walls with screwdrivers at the marks; fix hooks with hook screws(#8×1 7 /16″(ST 4.2x36mm)), and keep the hook horizontal with a level ruler.

- Place the hole-drilling template with the side safe installation. of the hole-drilling dimension drawing facing down on the bottom of the upper cabinet, and then drill the holes as indicated on the hole-drilling template.
Caution: Wear safety goggles when drilling. In case of batten at the wall facing the bottom plate, the rear wall side of the paper template shall be cut as per the thickness of the batten.
If is necessary to fix the hook on the tile, the “Rear Wall” side of the hole-drilling template should be attached to the bottom of the upper cabinet, using the tile surface as a reference. - Remove the protective film of the stainless steel surface and Grease Cup at both sides of the range hood.

- Lift and position the hood onto the brackets at the bottom of the backside while keeping an angle between the wall and the hood, and then push the hood against the wall tightly.
Caution: Two installers are required to ensure - Use three sets of screws (#1Qx 2 13/16″(M5x 70mm)) for upper cabinet boards and supporting gaskets (cp1 5/16″(cp32mm)) to fix the main body, and secure at least two screws before releasing.
If there is a big gap between the bottom board of the top cabinet and the top of the range hood, please add wood pads based on the gap size near the three #10×2 13/16″(M5x70mm) screws to avoid range hood shell deformation caused by the tightening of screws, which will affect the use of the range hood.
- Place the seal (notch downward) at the air outlet of the machine and fix the outlet housing with 4 outlet-housing bolts of #8×3/4″(M4x 18mm). Then, secure the duct to the duct cover and seal the connection with aluminum tape.

- Make sure the hood is leveled. Install the Grease Cup, and plug in the appliance for a test run.
Warning: Please wear qualified protective gloves in operation.
Caution: Please run the machine and test if the smoke pipe leaks air after it is sealed with aluminum foil tape. The smoke pipe should be able to be straightened as much as possible.
Installation Instructions for the Decorative Plate with Upper Cabinet
Caution: Please confirm the height of the top cabinet. If the upper cabinet is over 32 1 /2″ es (825mm) high, 6″(152.4mm) or 4″(101.6mm) decorative plate is preferred.

- Unpack the appliance and check the List of Accessories.

- Locate the wooden beam and mark the location with a pencil.

- Locate the duct bracket. Determine the central point and mark the centerline on the wall where the hood will be installed. Also, mark the point where the central line and the top cabinet meet. This is the location, in which to secure the bracket. Mark screw hole locations on the wall. The upper edge (the fixed surface between the decorative sheet and the board of the top cabinet) of the bottom board of the top cabinet shall be deemed as the location datum. And the distance between the upper edge and the center of the bracket shall be 7 11 /16″(194.4mm)for 6″( 152.4mm) decorative sheet and 5 11/16″(143.6mm) for 4″(101.6mm) decorative sheet.
Caution: One of the wood screws(#1 Qx2 9/16″(ST5x65mm)) for main engine must be fastened to the beam.Screws must be fixed at Hole A and B in the drawing; also wood screws(#1 Qx2 9/16″(ST5x65mm)) must be fixed at bracket bores with corresponding wooden stakes in Area C. - Fixing hooks:
- Punch marks are on tiles (marble): Punch holes (cp3/8″(cp 8mm)) with an electric drill at the marks, and embed expansion tube for tiles(cp1/4″x 1 5/16″(cp5.3x32mm)); fix hook with hook screws(#8×1 7/16″(ST4.2x36mm)), and keep the hook level with a level ruler.
- Punch marks are on plasterboards: Screw the expansion tube for plasterboards(cp3/16″x1 5/8″(cp4x40mm)) into walls with screwdrivers at the marks; fix hooks with hook screws(#8x 1 7/16″(ST4.2x36mm)), and keep the hook horizontal with a level ruler.

- Place the hole-drilling template with the side of the hole-drilling dimension drawing facing down on the bottom of the upper cabinet, and then drill the holes as indicated on the holedrilling template.
Caution: Wear safety goggles when drilling.
In case of batten at the wall facing the bottom plate, the rear wall side of the paper template shall be cut as per the thickness of the batten. If it is necessary to fix the hook on the tile, the “Rear Wall” side of the hole-drilling template should be attached to the bottom of the upper cabinet, using the tile surface as a reference. - Remove the protective film of the stainless steel surface and Grease Cup at both sides of the range hood.

- Place the seal (notch downward) at the air outlet of the machine and fix the outlet housing with 4 outlet-housing bolts of #8×3/4″(M4x 18mm).

- Lift and position the hood onto the brackets at the top of the backside while keeping an angle between the wall and the hood, and then push the hood against the wall tightly. Secure the duct to the duct cover and seal the connection with aluminum tape.
Caution: Two installers are required to ensure safe installation. - Install the decorative plate. Fix the decorative panel in place with 4 #6 x 1 7/16″ (ST3.5x35mm) wood screws and fix the decorative panel on the upper cabinet plate (the wood screws are provided in the accessory bag in the packing box of the decorative panel).

- Make sure the hood is leveled. Install the Grease Cup, and plug the appliance for a test run.
Warning: Please wear qualified protective gloves in operation.
Caution: Please run the machine and test if the smoke pipe leaks air after it is sealed with aluminum foil tape. The smoke pipe should be able to be straightened as much as possible.
Installation Instructions for the Decorative Cover Without Upper Cabinet
- Unpack the appliance and check the List of Accessories.

- Locate the wooden beam and mark the location with a pencil.

- Locate the duct bracket, safety buffer baffle and decorative cover bracket:
Caution: one of the wood screws(#1 0x2 9/16″(ST5x65mm)) for main engine must be fastened to the beam.Screws must be fixed at hole A and B in the drawing; also wood screws(#1 Qx2 9/16″(ST5x65mm)) must be fixed at bracket bores with corresponding wooden stakes in area C.
Firstly determine the installation central point of the range hood according to the central point of the cooker, determine the bracket installation location based on cooker table and mark the place for drilling. The cooker table is about 27 7/8″ (708 mm) to 30 7/8″ (783 mm) away from the central point of bracket;
The location to install the safety buffer baffle should be 4 9/16″ (115.5 mm) to the left of the duct bracket and 2 5/16″ (58.5 mm) straight up. The location to install the decorative cover bracket shou Id generally be 29 15/16 ” (760 mm) above the central point of the duct bracket. If the distance between the ceiling and duct bracket equals to or is less than the value, secure the decorative cover bracket on the wall right under the ceiling. If the distance is more than the value, taller decorative covers (27 9/16″ (700 mm) and 35 7/16″ (900 mm) in height respectively) need to be bought separately. Embed the expansion tube in the punch marks: 1) Punch marks are on tiles (marble): Punch holes (<p3/8″(<p8mm)) with an electric drill at the marks, and embed expansion tube for tiles(<p1 /4″x1 5/16″(<p5.3x32mm)).
2) Punch marks are on plasterboards: Screw the expansion tube for plasterboards(<p3/16″x 1 5/8″(<p4x40mm)) into walls with screwdrivers at the marks. - Secure the duct bracket and decorative cover bracket to the wall with corresponding screws and tighten the screws. Make sure the bracket is leveled.
Caution: One of the wood screws(#1 Qx2 9/16″(ST5x65mm)) for the duct bracket must be fastened to the wooden beam. - Place the seal (notch downward) at the air outlet of the machine and fix the outlet housing with 4 outlet-housing bolts of #8×3/4″(M4x18mm). Fix four outer cover bolts of #8×7/16″ (M4x10mm) at the corresponding positions (The cover screws is provided in the accessory bag in the packing box of the decorative cover assembly.).

- Remove the protective film of the stainless steel surface and Grease Cup at both sides of the range hood.

- Lift and position the hood onto the mounting screws. Make sure the hood is stable and leveled by using a spirit level. Install the safety buffer baffle above the hood(The safety block is provided in the accessory bag in the packing box of the decorative cover assembly.).
Caution: Two installers are required to ensure safe installation. Please install the safety stop as required. The main function of the safety stop is to prevent the range hood from being lifted up accidentally, which will cause it to unhook and potentially fall. - Secure the duct to the duct cover and seal the connection with aluminum tape.
Make sure the hood is leveled. Install the Grease Cup, and plug the appliance for a test run.
Caution: Please run the machine and test if the smoke pipe leaks air after it is sealed with aluminum foil tape. The smoke pipe should be able to be straightened as much as possible. - First, tear off the protective film on the decorative cover and fan cover, and put the decorative cover into the fan cover. Then take up the decorative cover and fan cover, hang the decorative cover on the decorative cover hook, lower the fan cover slowly, and push the decorative cover and fan cover inward until the fan cover is fastened to the corresponding cover screws.

- Install the Grease Cup.
Warning: Please wear qualified protective gloves in operation.
Test Run After Installation
- Lightly press the POWER button. Next, lightly press the LIGHTING button. At this time, the smoke baffle plate and lights should work normally.
- Lightly press the fan buttons to check the motor. If any of the following malfunctions occurs, unplug the hood immediately and re-check the installation process. (If the malfunction continues, contact our authorized service center as soon as possible.)
- The hood vibrates violently.
- The impeller does not work
- The impeller grates while rotating.
- The motor makes strange sounds.
- Lightly press the POWER button again to turn off the fan and close the smoke baffle plate.
SAFETY INFORMATION



Warning: For the safety of you and your family, please regularly clean out the oil in the oil cup and sediment on the external surface of the oil cup to avoid fire risk. Please operate with protective gloves.
* Suggestion: In order to protect the health of you and your family, the filter should be cleaned regularly and it is dishwasher safe for your convenience.
Warning: Please wear qualified protective gloves in operation.








Caution: One of the wood screws( #1 0x2 9/16″(ST5 x65mm)) for main engine must be fastened to the beam. Screws must be fixed at Hole A and B in the drawing; also wood screws(#1 Qx2 9/16″(ST5x65mm)) must be fixed at bracket bores with corresponding wooden stakes in Area C.
Caution: Wear safety goggles when drilling. In case of batten at the wall facing the bottom plate, the rear wall side of the paper template shall be cut as per the thickness of the batten.
Caution: Two installers are required to ensure
If there is a big gap between the bottom board of the top cabinet and the top of the range hood, please add wood pads based on the gap size near the three #10×2 13/16″(M5x70mm) screws to avoid range hood shell deformation caused by the tightening of screws, which will affect the use of the range hood.

Warning: Please wear qualified protective gloves in operation.

Caution: One of the wood screws(#1 Qx2 9/16″(ST5x65mm)) for main engine must be fastened to the beam.Screws must be fixed at Hole A and B in the drawing; also wood screws(#1 Qx2 9/16″(ST5x65mm)) must be fixed at bracket bores with corresponding wooden stakes in Area C.
Caution: Wear safety goggles when drilling.

Caution: Two installers are required to ensure safe installation.
Warning: Please wear qualified protective gloves in operation.


Caution: one of the wood screws(#1 0x2 9/16″(ST5x65mm)) for main engine must be fastened to the beam.Screws must be fixed at hole A and B in the drawing; also wood screws(#1 Qx2 9/16″(ST5x65mm)) must be fixed at bracket bores with corresponding wooden stakes in area C.
Caution: One of the wood screws(#1 Qx2 9/16″(ST5x65mm)) for the duct bracket must be fastened to the wooden beam.

Caution: Two installers are required to ensure safe installation. Please install the safety stop as required. The main function of the safety stop is to prevent the range hood from being lifted up accidentally, which will cause it to unhook and potentially fall.
Caution: Please run the machine and test if the smoke pipe leaks air after it is sealed with aluminum foil tape. The smoke pipe should be able to be straightened as much as possible.
Warning: Please wear qualified protective gloves in operation.



















