JUNG KNX LED controller 5-gang

Safety instructions
Electrical devices may only be mounted and connected by electrically skilled persons.
Serious injuries, fire or property damage possible. Please read and follow manual fully.
Danger of electric shock. During installation and cable routing, comply with the regulations and standards which apply for SELV circuits.
These instructions are an integral part of the product, and must remain with the end customer.
Device components

- KNX connection
- LED module connection
- Power supply connection
- LED module connection
- PROG button
- NEXT button
- SET button
- PROG LED
- DC-POWER LED
- POWER LED
- Display
Function
System information
The device can be updated. Firmware can be easily updated.
The device is KNX Data Secure capable. KNX Data Secure offers protection against manipulation in building automation and can be configured in the ETS project. Detailed specialist knowledge is required. A device certificate, which is attached to the device, is required for safe commissioning. During mounting, the certificate must be removed from the device and stored securely.
Planning, installation and commissioning of the device are carried out with the aid of the ETS, version 5.7 and above.
Intended use
- Dimmer to control LEDs, LED modules, LED spots, halogen lamps and incandescent lamps of between 5 V … 48 V (pulse width-modulated).
- Mounting in false ceilings on surfaces or in/under furniture
Product characteristics
- Dimmer for colour temperature and coloured light control (RGB/HSV)
- Different dimming characteristics settable (soft dimming, deep-down dimming)
- PWM frequency settable (211 … 1200 Hz)
- Commissioning with display support
- Free configuration of the channels
- Integrated scenes and bit scenes
- Predefined and freely-definable sequences
- Time-controller dimming or Human Centric Lighting (HCL)
- Staircase light function
- Disabling function
- Measurement and meter function
- Diagnostics/message of the protection function via KNX group addresses and shown on display
- Electronic overtemperature switch-off of the load current (automatic reset)
- Protection functions for LED modules and power supply
Information for electrically skilled persons
Mounting and electrical connection
DANGER
Electrical shock on contact with live parts in the installation environment. Electrical shocks can be fatal.
Before working on the device, disconnect the power and cover live parts in the area.
Mounting
- Mounting the device in false ceilings, on surfaces or in/under furniture.
Connection

| Channel/Mode | A | B | C | D | E |
| RGBCCT | R | G | B | CW | WW |
| RGBW + 1 x IC | R | G | B | W | IC |
| RGB + 2 x IC | R | G | B | IC | IC |
| RGB + TW | R | G | B | CW | WW |
| 2 x TW + 1 x IC | IC | CW1 | WW1 | CW2 | WW2 |
| 1 x TW + 3 x IC | IC | IC | IC | CW | WW |
- CCT: Correlated Color Temperature
- RGBW: Red, Green, Blue, White
- IC: Independent Channel
- CW: Cold White
- WW: Warm White
- TW: Tunable White
Requirements:
- Power supply (5 … 48 V DC)
- KNX/EIB bus connection
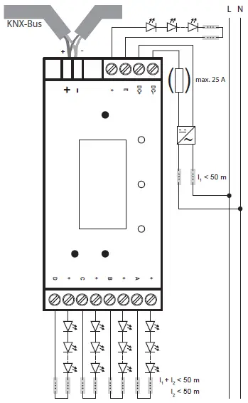
For position of the connections, see device components.
- Connect the power supply to the DC+ and DC- according to the connection diagram. (fig. 2)
DC- POWER LED lights up in yellow.
With power supplies with a rated current < 25 A and overload and/or overcurrent function, it is not necessary to use a fuse. - Connect the KNX.
- Connect the LED modules according to the connection plan (fig. 2) and the table (fig. 3).
- Recommended dimming frequency: up to 488 Hz
- Observe the technical data:
- Do not exceed the max. load per channel.
- Do not exceed the max. total current of all five channels.
- Do not exceed the max. cable lengths.
- Do not undershoot or exceed the conductor cross-section.
Commissioning
After connecting, the device is switched on automatically. The POWER LED turns green.
Operation
Display
The display switches itself off automatically after one minute.
Switching on display:
- Press the NEXT button.
Scrolling through menu:
- Press the NEXT button repeatedly while the display is switched on.
LED displays
There are three LEDs on the front of the device. The LEDs indicate the following device statuses during operation:
- PROG LED lights up red: Programming mode is activated.
- DC-POWER LED lights up yellow: Voltage at DC input is normal.
- POWER LED lights up green: Device is ready for operation.
Programming mode
Program device:
- Press the PROG button.
PROG LED lights up red.
Terminate programming mode:
- Press the PROG button again
Configuration
The device is configured via parameters in the ETS product database.
You can find detailed information about the configuration or parameterization of the device in the product documentation. The product documentation can be downloaded from our website.
KNX Data Secure
Requirements:
- Dedicated application program
- Safe commissioning activated
- FDSK entered/scanned or device certificate added in Document all passwords and store them securely.
Technical data
- Rated voltage: DC 5 … 48 V SELV
- Rated current without fuse: max. 25 A
KNX
- KNX Medium: TP256
- Commissioning mode: S-Mode
- Rated voltage: DC 21 … 32 V SELV
- KNX current consumption: < 30 mA
- KNX connection: connection terminal
Output
- Rated voltage DC 5 … 48 V SELV
- Dimming frequency 211 … 1200 Hz
- Current per output at 5 … 24 V
- Channel E, max. 13 m cable length (l1 + l2)
- up to 488 Hz max. 20 A
- 600 Hz max. 20 A
- 832 Hz … 1200 Hz max. 10 A
- Channel A … E, max. 50 m cable length (l1 + l2)
- up to 488 Hz max. 15 A
- 600 Hz max. 12 A
- 832 Hz … 1200 Hz max. 7 A
- Current per output at 48 V
- max. 50 % of the maximum currents of 5 … 24 V
- Total current over all 5 channels
- at 5 … 24 V max. 20 A
- at 48 V max. 10 A
- Ambient temperature −5 … +45 °C
- Storage/transport temperature −25 … +75 °C
- Relative humidity max. 93 % (no moisture condensation)
- Dimensions (L x W x H) 157 x 45 x 26 mm
- Connection mode: screw terminals
- single wire 0.5 … 4 mm²
- stranded without ferrule 0.5 … 4 mm²
- stranded with ferrule 0.5 … 2.5 mm²
Warranty
The warranty follows about the specialty store in between the legal framework as provided for by law.


















