Durastar DR1L12W12 12k BTU Cooling Heating

Product Information
The Durastar mini-split air conditioner is available in four models: DRA1H09S1A, DRA1H12S1A, DRA1H18S1A, and DRA1H24S1A. The model number and serial number of the product should be noted down for future reference. The product can be purchased through authorized dealers and contractors.
Product Usage Instructions
Before installing the outdoor unit, it is important to choose an appropriate location that follows local codes and regulations. The recommended installation location should be at least 24 inches (610 mm) above the ground, 12 inches (305 mm) from the left wall, and 79 inches (2007 mm) from the front. The installation may vary slightly depending on the region.
The indoor temperature range for optimal operation of the air conditioner is between 62°F (16.6°C) and 90°F (32.2°C), while the outdoor temperature range is between 5°F (-15°C) and 122°F (50°C). If the air conditioner operates outside of these temperature ranges, certain safety features may activate and turn off the unit to protect it from damage.
Maintenance and cleaning of the air conditioner should follow the safety precautions outlined in the user manual. It is important to ensure that the power supply to the unit is turned off before any maintenance or cleaning is performed. If any concerns or questions arise during usage, contact Durastar Customer Support through email at [email protected] or by telephone at 1-888-320-0706.
TIP
Capture relevant information about your Durastar mini-split equipment before it is installed and write it above for future reference
INTRODUCTION
To better serve you, please do the following before contacting customer service:
- If you received a damaged product, immediately contact the retailer or dealer that sold you the product.
- Read and follow this owner’s manual carefully to help you use and maintain your air conditioner.
- Read the troubleshooting section of this manual as it will help you diagnose and solve common issues.
- Visit us on the web at WWW.DURASTAR.COM to download product guides and up-to-date information.
- If you need warranty service, our friendly customer service representatives are available via email at [email protected] or by telephone at 1-888-320-0706.
WARNINGS
Symbols Used in This Manual
- The warning symbol indicates cautionary information for the user. Extra care and precautions should be taken to ensure the user’s safety.
- The pencil indicates any manufacturer notes relating to surrounding content. These may include further clarifications or call-outs.
- A light bulb symbol indicates suggested manufacturer tips for the user to get the most out of the Durastar equipment and to accommodate the best user experience.
IMPORTANT SAFETY PRECAUTIONS
Improper handling can cause serious damage or injury. Please read the following safety information in its entirety.
Operation, Cleaning, and Maintenance Safety Precautions
- Children and people with reduced physical, sensory, or mental capabilities, or lack of experience and knowledge, should only use this air conditioner if they are given supervision or instructions concerning use of the air conditioner in a safe way and understand the hazards involved.
- Children should not play with the air conditioner.
- Never stick fingers or any other body parts into the air conditioner openings. The internal fan may be rotating at high speeds, and may result in injury.
- After removing the filter, do not touch the fins in order to avoid injury.
- Maintenance must be performed by qualified professionals. Otherwise, you may experience personal injury or damage to the air conditioner and surrounding property.
- Do not repair the air conditioner by yourself. It may cause electric shock or damage. Please contact a qualified service representative when you need to repair the air conditioner.
- Do not block the air outlet or air inlet. This could cause a malfunction.
- Do not spill water on the remote control as this can permanently damage the remote.
- If the below problems occur, please turn off the air conditioner and disconnect power at the circuit breaker immediately. Then contact your dealer or a qualified professional for service.
- The power cord is overheating or damaged.
- There is an abnormal sound during operation.
- The circuit breaker trips frequently.
- The air conditioner gives off a burning smell.
- The indoor unit is leaking.
- If the air conditioner operates under abnormal conditions, it may cause malfunctions, electric shock, or fire hazard.
- When turning the unit on or off via the emergency operation switch, press the switch with an insulated object other than metal.
- Do not step on the top panel of the unit, or put heavy objects on the top panel. This could cause damage or personal injury.
- Cleaning and user maintenance should not be performed by children without supervision.
- Do not spray water on the indoor unit. This could cause electric shock or a unit malfunction.
- Do not use flammable materials such as hair spray, lacquer, or paint near the air conditioner as they may catch fire.
- Do not operate the air conditioner in places near combustible gases. Emitted gases may collect around the air conditioner and cause an explosion.
- Do not use fire or a hair dryer to dry the filter. This could cause a deformation or fire hazard.
- Do not wash the air conditioner with water as this could cause an electric shock.
- Disconnect the power supply by turning it off at the circuit breaker when cleaning the air conditioner. Otherwise, you could risk electric shock.
Electrical Safety
- Do not modify the length of the power supply cord or use an extension cord to power the unit.
- If the supply cord is damaged, it must be replaced by the manufacturer, a service agent, or a similarly qualified person in order to avoid a safety hazard.
- Do not share the electrical outlet with other appliances. Improper or insufficient power supply can cause fire or electrical shock.
- The product must be properly grounded at the time of installation, or electrical shock may occur.
- For all electrical work, follow all local and national wiring standards and regulations. Connect cables tightly, and clamp them securely to prevent external forces from damaging the terminal. Improper electrical connections can overheat and cause fire, and may also cause shock. All electrical connections must be made according to the Electrical Connection Diagram located on the panels of the indoor and outdoor units.
- All wiring must be properly arranged to ensure that the control board cover can close properly. If the control board cover is not closed properly, it can lead to corrosion and cause the connection points on the terminal to heat up, catch fire, or cause electrical shock.
- The air conditioner’s circuit board (PCB) is designed with a fuse to provide over-current protection. The specifications of the fuse are printed on the circuit board.
Installation Safety
- Installation must be performed by an authorized dealer or specialist. Improper installation can cause water leakage, electrical shock, or fire. (In North America, installation must be performed in accordance with NEC and CEC requirements by authorized personnel only.)
- Installation must be performed according to the installation instructions. Improper installation can cause water leakage, electrical shock, or fire.
- This air conditioner shall be installed in accordance with national and local wiring regulations.
- Contact an authorized service technician for repair or maintenance of this unit.
- Only use the included accessories, parts, and specified parts for installation. Using non-standard parts can cause water leakage, electrical shock, fire, and can cause the unit to fail.
- Install the unit in a firm location that can support the unit’s weight. If the chosen location cannot support the unit’s weight, or the installation is not done properly, the unit may fall and cause serious injury and damage.
- Install drainage piping according to the instructions in the installation manual. Improper drainage may cause water damage to your home and property.
- For units that have an auxiliary electric heater, do not install the unit within 3 feet (1 meter) of any combustible materials.
- Do not install the unit in a location that may be exposed to combustible gas leaks. If combustible gas accumulates around the unit, it may cause a fire.
- Do not turn on the power until all work has been completed.
- When moving or relocating the air conditioner, consult experienced service technicians for disconnection and re-installation of the unit.
- Be careful when opening or closing valves below freezing temperatures. Refrigerant may spurt out from the gap between the valve stem and the valve body, resulting in injuries.
Additional Precautions
- Turn off the air conditioner and disconnect the power if you are not going to use it for a long time.
- Turn off the unit during electrical storms to avoid damaging the unit.
- Make sure that water condensation can drain unhindered from the unit.
- Do not operate the air conditioner with wet hands. This may cause electric shock.
- Do not use this device for any other purpose than its intended use.
- Do not climb onto or place objects on top of the outdoor unit.
- Do not allow the air conditioner to operate for long periods of time with doors or windows open, or if the humidity is very high.
OPERATING TEMPERATURES
Your air conditioner is designed to operate in the following indoor and outdoor temperatures. When your air conditioner is used outside of the following temperature ranges, certain safety features may activate and turn off the unit to protect it from damage.
TEMPERATURE RANGES
| COOL mode | HEAT mode | DRY mode | |
| Indoor Air Temperature | 62°F – 90°F (17°C – 32°C) | 32°F – 86°F (0°C – 30°C) | 50°F – 90°F (10°C – 32°C) |
| Outdoor Air Temperature | 05°F – 122°F (-15°C – 50°C) | -22°F – 75°F (-30°C – 24°C) | 32°F – 122°F (0°C – 50°C) |
To further optimize the performance of your unit, do the following:
- Keep doors and windows closed.
- Limit energy usage by using TIMER ON and TIMER OFF features.
- Do not block air inlets or outlets.
- Regularly inspect and clean air filters.
NOTE
Your Durastar air conditioner’s outdoor unit is equipped with a base pan heater, allowing it to continue to operate at freezing temperatures as low as -22°F (-30°C). When outdoor air temperatures are at or below 32°F (0°C), we strongly recommend keeping the unit plugged in at all times to ensure smooth ongoing performance.
NOTE
Keep the room’s relative humidity below 80%. If the air conditioner operates in excess of this, the surface of the air conditioner may attract condensation. To help prevent condensation from forming and dripping, set the vertical airflow louver to its maximum angle (vertically to the floor) and set the fan to HIGH.
ACCESSORIES
INCLUDED INSTALLATION ACCESSORIES
The air conditioning system comes with the following accessories.
FIELD-SUPPLIED INSTALLATION ACCESSORIES
The following installation accessories may be required and must be purchased separately.
- Refrigerant piping (line set)
- Indoor and outdoor connection wire
- Outdoor power supply cord
- Drain pipe
- Pipe and cable wrapping tape
- Wall hole sleeve and cover
- Putty
- Wiring u-lugs
TOOLS NEEDED
The following tools are required for installation.
- Phillips screwdriver
- Drill with 2 1/2″ or 3 1/2″ (indoor unit model depending) core bit
- Vacuum pump
- HVAC manifold gauge set
- Micron Gauge
- Refrigerant leak detector
- Copper pipe cutter
- Flaring tool
- Burr reamer
- Crescent or spanner wrench
- Hexagonal wrench set
- Torque wrench
- Multimeter
- Electroprobe
- Level
- Hammer
- Wire strippers
- Wire crimper
PARTS IDENTIFICATION
NOTE
The installation must be performed in accordance with the required local and national standards. The installation may be slightly different in different areas.
NOTE
The installation must be performed in accordance with the required local and national standards. The installation may be slightly different in different areas.
OUTDOOR UNIT INSTALLATION
Installation Instructions
Install the unit following local codes and regulations. These may differ slightly between regions.
STEP 1: SELECT THE INSTALLATION LOCATION
Before installing the outdoor unit, you must choose an appropriate location. The following are standards that will help you choose an appropriate location for the unit.
Proper installation locations meet the following standards:
- Meets all spatial requirements shown in the installation space requirements above.
- Good air circulation and ventilation.
- Firm and solid location —the location can support the unit’s weight and will not vibrate.
- Noise from the unit will not disturb others.
- Protected from prolonged periods of direct sunlight or rain.
NOTE
Where snowfall is anticipated, raise the unit above the base pad to prevent ice buildup and coil damage. Mount the unit high enough to be above the average accumulated area snowfall. The minimum height must be 18 inches.
DO NOT install the unit in the following locations:
- Near an obstacle that will block air inlets and outlets.
- Near a public street, crowded areas, or where noise from the unit will disturb others.
- Near animals or plants that will be harmed by hot air discharge.
- Near any source of combustible gas.
- In a location that is exposed to large amounts of dust.
- In a location exposed to an excessive amount of salty air.
- In a location 10 ft. (3 m) or closer to TV or radio antennas. Operation of the unit may interfere with antenna reception in areas where the signal is weak. An amplifier may be needed for affected devices.
Special considerations for extreme weather
If the unit is exposed to heavy wind, install unit so that the air outlet fan is at a 90° angle to the direction of the wind. If needed, build a barrier in front of the unit to protect it from extremely heavy winds. See figures below.
If the unit is frequently exposed to heavy rain or snow
Build a shelter above the unit to protect it from rain or snow. Be careful not to obstruct airflow around the unit.
STEP 2: INSTALL THE DRAIN JOINT
- Fit the rubber seal on the end of the drain joint that will connect to the outdoor unit.
- Insert the drain joint into the hole in the base pan of the unit.
- Rotate the drain joint 90° until it clicks in place facing the front of the unit.
- Connect a drain hose extension (not included) to the drain joint to redirect water from the unit during heating mode.

NOTE
In cold climates, make sure that the drain hose is as vertical as possible to ensure swift water drainage. If water drains too slowly, it can freeze in the hose and flood the unit.
STEP 3: MOUNT THE OUTDOOR UNIT
- Anchoring the Unit
The outdoor unit can be anchored to the ground or to a wall-mounted bracket (sold separately) with bolts (M10). Mount the unit on a cement slab, condenser mounting pad, or another level surface able to support the unit’s weight. Do not place the unit directly on the ground. If using a wall-mounting bracket, make sure the attached structure can support at least four times the unit’s weight. - Unit Mounting Dimensions
The distance between their mounting feet varies by the outdoor unit. Prepare the installation base of the unit according to the dimensions below. In most cases, it may be easier to place the outdoor unit in its correct location and mark the exact placement for the anchor holes.
Outdoor Unit – Dimensions Mounting Dimensions W x H x D inches (mm) Dist. A inches (mm) Dist. B inches (mm) DRA1H09S1A – 31-11/16 x 21-13/16 x 12-7/8 (805 x 554 x 330) 20-1/8” (511) 12-1/2” (317) DRA1H12S1A – 31-11/16 x 21-13/16 x 12-7/8 (805 x 554 x 330) 20-1/8” (511) 12-1/2” (317) DRA1H18S1A – 35-1/16 x 26-1/2 x 13-1/2 (890 x 673 x 342) 26-1/8” (663) 13-11/16” (348) DRA1H24S1A – 37-1/4 x 31-7/8 x 16-1/8 (946 x 810 x 410) 26-1/2” (673) 15-7/8” (403)
Installing multiple outdoor units
If installing multiple outdoor units, refer to the diagram below for proper clearances.
- H = Outdoor unit height
- L = Wall / Obstruction height
- A = Required distance between unit and wall/obstruction

STEP 4: CONNECT THE SIGNAL AND POWER CABLES
The outside unit’s terminal block is protected by an electrical wiring cover on the side of the unit. A comprehensive wiring diagram is printed on the inside of the wiring cover.
WARNING
Before performing any electrical or wiring work, turn off the main power to the system.
USE THE RIGHT CABLE
- Indoor Power / Signal Cable: 14/4 stranded, unshielded
- Outdoor Power Cable: Determined by the amperage of the system and the local codes in your area.
CABLE SIZING
Use a minimum of 14 AWG for power and signal cables connected to and between the indoor and outdoor units.
Choose the Correct Size of Cable
The size of the power supply cable, fuse, and switch needed is determined by the maximum current of the unit. The maximum current is indicated on the nameplate located on the side panel of the unit. Refer to this nameplate to choose the right cable (stranded wire preferred), fuse, or switch.
Prepare the cable and wires for connection:
- Using wire strippers, strip the rubber jacket from both ends of the cable to reveal about 1.5″ (38-40mm) of the wires inside.
- Strip the insulation from the ends of the wires.
- Using a wire crimper, crimp u-lugs on the ends of the wires.
WARNING
Pay attention to the live wire. While crimping wires, make sure you clearly distinguish the Live (“L”) Wire from other wires.
WARNING
All wiring work must be performed strictly in accordance with the wiring diagram located inside the terminal cover of the outdoor unit.
- Remove the electrical wiring cover.
- Remove the caps on the conduit panel.
- Temporarily mount the conduit tubes (sold separately) onto the conduit panel.
- Properly connect both the power supply and low-voltage lines to the corresponding terminals on the terminal block.
- Ground the unit in accordance with local codes.
- Be sure to cut the wire several inches longer than the required length for future maintenance.
- Permanently secure the conduit tubes to the conduit panel.
- Replace the wire cover on the side of the unit, and screw it in place.

REFRIGERANT PIPING CONNECTIONS
WARNING
When connecting refrigerant piping, do not let substances or moisture other than specified refrigerant enter the unit or pipes. Run nitrogen through the refrigerant tubing when brazing to avoid carbon buildup. The presence of foreign materials will lower the unit’s capacity and can cause abnormally high pressure in the refrigeration system. This can result in explosions and personal injury.
REFRIGERANT PIPE LENGTH
The length of refrigerant piping will affect the performance and efficiency of the unit. Nominal efficiency is tested with a pipe length of 25 feet (7.6 meters). A minimum pipe run of 10 feet (3 meters) is required to minimize vibration and excessive noise.
Refer to the table below for specifications on the maximum length and drop height of refrigerant piping.
| Capacity (BTU/h) | Maximum Length Feet (Meters) | Maximum Drop Height Feet (Meters) |
| < 15,000 | 82 Ft. (25 M) | 33 Ft. (10 M) |
| ≥15,000 and < 24,000 | 98.5 Ft. (30 M) | 66 Ft. (20 M) |
| ≥24,000 and <36,000 | 164 Ft. (50 M) | 82 Ft. (25 M) |
OIL TRAPS
Oil traps are necessary for the continued performance of the system if the indoor and outdoor units are installed at significantly different heights.
If the indoor unit is installed higher than the outdoor unit:
Oil may flow back into the outdoor unit’s compressor and cause liquid compression. This will lead to deterioration of performance and shorten the life of the compressor. Oil traps in the rising gas piping can prevent this and should be installed every 32’10” (10m) of vertical rise. or dent the pipe while cutting
If the outdoor unit is installed higher than the indoor unit:
Proper oil return to the compressor must be maintained with the suction gas velocity. If velocities drop below 1500fpm, oil return will be decreased and lead to deterioration of performance and shorten the life of the compressor. Oil traps in the rising gas piping can prevent this and should be installed every 19’9″ (6m) of vertical rise.
- The required distance between oil traps when the indoor unit is installed is higher than the outdoor unit.
- The required distance between oil traps when the outdoor unit is installed is higher than the indoor unit.
REFRIGERANT PIPE CONNECTION INSTRUCTIONS
STEP 1: CUT PIPES
When preparing refrigerant pipes, take extra care to cut and flare them properly. This will ensure efficient operation and minimize leaks and the need for future maintenance.
- Measure the distance between the indoor and outdoor units.
- Using a pipe cutter, cut the pipe length a little longer than the measured distance.
- Make sure that the pipe is cut at a perfect 90o angle.
- Do not damage, deform, or dent the pipe while cutting.

STEP 2: REMOVE BURRS
Burrs can affect the airtight seal of the refrigerant piping connection and must be completely removed.
- Hold the pipe at a downward angle to prevent burrs from falling into the pipe.
- Using a reamer or deburring tool, remove all burrs from the cut section of the pipe.

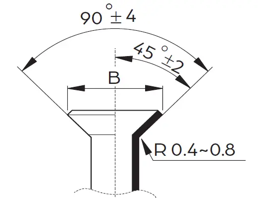
STEP 3: FLARE PIPE ENDS
Proper flaring is essential to achieve an airtight seal.
- After removing burrs from the cut pipe, seal the ends with PVC tape to prevent foreign materials from entering the pipe.
- Sheath pipe with insulating material.
- Place flare nuts on both ends of the pipe. Make sure they are facing in the right direction as you cannot change their orientation after flaring.

- Remove PVC tape from the ends of the pipe when ready to perform flaring.
- Clamp flare forms on the end of the pipe. The end of the pipe must extend beyond the edge of the flare form in accordance with the pipe extension table on the next page.

PIPE EXTENSION BEYOND FLARE FORMOuter Diameter of Pipe Inches (mm) “A” Minimum Extension Inches (mm) “A” Maximum Extension Inches (mm) Ø 1/4″ (6.4mm) 0.0275″ (0.7mm) 0.05″ (1.3mm) Ø 3/8″ (9.5mm) 0.04″ (1.0mm) 0.063″ (1.6mm) Ø 1/2″ (12.7mm) 0.04″ (1.0mm) 0.07″ (1.8mm) Ø 5/8″ (15.9mm) 0.078″ (2.0mm) 0.086″ (2.2mm) Ø 3/4″ (19.1mm) 0.078″ (2.0mm) 0.094″ (2.4mm) 
- Place the flaring tool onto the form.
- Turn the handle of the flaring tool clockwise until the pipe is fully flared.
- Remove the flaring tool and flare form, then inspect the pipe for cracks and even flaring.
STEP 4: CONNECT PIPES
- When connecting refrigerant pipes, be careful not to use excessive torque or to deform the piping in any way. You should first connect the low-pressure pipe, then the high-pressure pipe.
- When bending connective refrigerant piping, the minimum bending radius is 4 inches (10cm). Do not leave coils in the refrigerant line sets. Remove excess line length to ensure proper system operation.

WARNING
Do not leave coils in the refrigerant line sets. All excess line lengths must be removed to ensure proper system operation.
CONNECTING PIPING TO INDOOR UNIT
- Align the center of the two pipes that you will connect.

- Tighten the flare nut as tightly as possible by hand.
- Using a spanner, grip the nut on the unit tubing.
- While firmly gripping the nut on the unit tubing, use a torque wrench to tighten the flare nut according to the torque values in the table below. Loosen the flaring nut slightly, then tighten it again.

Outer Diameter of Pipe Inches (mm) Tightening Torque lb-ft (Nm) Flare Dimension “B” Inches (mm) Flare Shape Ø 1/4″ (6.4mm) 13.3~14.8 (18~20) 0.33~0.34 (8.4~8.7) Ø 3/8″ (9.5mm) 23.6~28.8 (32~39) 0.52~0.53 (13.2~13.5) Ø 1/2″ (12.7mm) 36.1~43.5 (49~59) 0.64~0.65 (16.2~16.5) Ø 5/8″ (15.9mm) 42~52.4 (57~71) 0.76~0.78 (19.2~19.7) Ø 3/4″ (19.1mm) 49.4~74.5 (67~101) 0.91~0.93 (23.2~23.7) 
WARNING
Do not use excessive torque. Excessive force can break the nut or damage the refrigerant piping. You must not exceed the torque requirements shown in the table above.
CONNECTING PIPING TO OUTDOOR UNIT
- Remove the valve cover on the side of the outdoor unit.
- Remove the protective caps from the ends of the valves.
- Align flared pipe end with each valve and tighten the flare nut as tightly as possible by hand.
- Using a spanner, grip the body of the valve. Do not grip the nut that seals the service valve.
- While firmly gripping the body of the valve, use a torque wrench to tighten the flare nut according to the correct torque values in the table above.
- Loosen the flare nut slightly, then tighten it again.
- Repeat steps 3-6 for the remaining pipe.

SYSTEM EVACUATION
PREPARATIONS AND PRECAUTIONS
Air and foreign matter in the refrigerant system can cause abnormal rises in pressure, which can damage the air conditioner, reduce energy efficiency, and cause injury. Use a vacuum pump and manifold gauge to evacuate the refrigerant system, removing any non-condensible gas and moisture from the system. Evacuation should be performed upon initial installation and if the unit is relocated.
BEFORE PERFORMING EVACUATION
- Check to make sure the refrigerant pipes connecting the indoor and outdoor units are connected properly and leak-free.
- Check to make sure all wiring is connected properly.
EVACUATION INSTRUCTIONS
- Connect the high-pressure side hose of the manifold gauge to the service port on the outdoor unit’s service valve.
- Connect the hose from the auxiliary port of the manifold gauge to the nitrogen tank.
- Open the high-pressure side of the manifold gauge. Keep the low-pressure side closed.
- Open the nitrogen tank valve and pressurize the system to 600PSIG.
- Close the nitrogen tank valve and high-pressure side of the manifold gauge.
- Wait 15 minutes, then check that there has been no change in pressure.
- If pressure loss is greater than 5PSIG, a leak may be present. Using the Soap and Bubble Method, locate and fix all leaks. Start back at step 1 once all leaks have been fixed.

- If there is no change in pressure, remove the auxiliary port of the manifold gauge from the nitrogen tank.
- Release the pressure in the system by opening up the high side of the manifold gauge.
- Once pressure has been released, remove the high-pressure side hose of the manifold gauge from the service port and replace it with the low-pressure side hose.
- Connect the hose of the auxiliary port of the manifold gauge to the vacuum pump and a MICRON GAUGE.
- Turn on the vacuum pump to evacuate the system.
- Run the vacuum until the micron gauge reads 250 microns.
- Once the micron gauge reads 250 microns, close the low-pressure side of the manifold gauge and turn off the vacuum pump. The system must hold below 500 microns for 15 minutes with the vacuum pump off.
- If there is a change in pressure, a leak may be present. Using the Soap and Bubble Method, locate and fix all leaks. Start back at step 1 once all leaks have been fixed.
- If there is no change in pressure, remove the manifold gauge auxiliary hose from the vacuum pump.
- Remove the caps from the unit’s valve bodies, and open the system’s valves gently with a hex wrench by turning it counterclockwise until they reach their stopping point. Do not try to force the valves to open further.
NOTE ON ADDING ADDITIONAL REFRIGERANT
Each outdoor unit is factory charged with enough refrigerant to support up to 25′ (7.5m) per zone. This is based on a one way liquid line measurement from the outdoor unit to the indoor unit. Systems with line set that exceed this length will require additional refrigerant (see the following chart). The refrigerant should be charged from the service port on the outdoor unit’s low-pressure valve. Additional refrigerant information can be found in the SUBMITTALS DOCUMENTS at WWW.SERVICE.DURASTAR.COM.
| Liquid Side Ø 1/4″ (6.35mm) | Liquid Side Ø 3/8″ (9.52mm) |
| (Actual pipe length – Standard pipe length) x 0.16oz/ft or (Actual pipe length – Standard pipe length) x 15g/m | (Actual pipe length – Standard pipe length) x 0.32oz/ft or (Actual pipe length – Standard pipe length) x 30g/m |
Additional refrigerant can be calculated using the following formula:
WARNING
DO NOT mix refrigerant types.
FINAL CHECKS
BEFORE THE TEST RUN
Only perform the test run after you have completed the following steps:
- Electrical Safety Checks – Confirm that the unit’s electrical system is connected and operating correctly.
- Gas Leak Check – Check all flare nut connections and confirm the system is not leaking.
- Confirm that the low and high-pressure valves are fully open.
- Check grounding work by measuring the grounding resistance by visual detection and with a multimeter. The grounding resistance must be less than 0.1 Ω.
ELECTRICAL SAFETY CHECKS
After installation, confirm that all electrical wiring is installed in accordance with local and national regulations, and according to this installation manual.
DURING TEST RUN
Using your multimeter, verify the voltage of the main power entering the system. If the main power voltage is greater than ±10% of the nameplate voltage, turn off the unit and immediately call a licensed electrician to find and resolve the cause.
WARNING
RISK OF ELECTRICAL SHOCK – All wiring must comply with local and national electrical codes, and must be installed by a licensed electrician.
GAS LEAK CHECK
There are two methods to check for gas leaks:
- Soap and Water Method – Using a soft brush, apply a soapy water or liquid detergent to all pipe connection points on the indoor and outdoor unit. The presence of bubbles indicates a leak.
- Leak Detector Method – If using a leak detector, refer to the device’s operation manual for proper usage instructions.
GAS LEAK CHECKPOINTS
- A: Low-pressure stop valve
- B: High-pressure stop valve
- C & D: Indoor unit flare nuts
TIP
Use the Durastar Job Site Information Sheet at the end of this manual as a commissioning report to record your start up readings.
TEST RUN
TEST RUN INSTRUCTIONS
You should perform the test run for at least 30 minutes.
- Connect power to the unit.
- Press the ON/OFF button on the remote controller or wired thermostat to turn the unit on.
- Press the MODE button to scroll through the following functions, one at a time:
- COOL – Select lowest possible temperature.
- HEAT – Select the highest possible temperature.
- Let each function run for 5 minutes and perform the following checks:
LIST OF CHECKS TO PERFORM [ X ] Unit is Properly Grounded [ ] All Electrical Terminals are Properly Covered [ ] Indoor and Outdoor Units are Solidly Installed [ ] All Pipe Connection Points Do Not Leak [ ] Water Drains Properly from Drain Hose [ ] All Piping is Properly Insulated [ ] Unit Performs COOL Function Properly [ ] Unit Performs HEAT Function Properly [ ] Indoor Unit Louvers Move Properly [ ] Indoor Unit Responds to Remote Controller or Thermostat [ ] - Double-check all pipe connections. During operation, the pressure of the refrigerant system will increase. This may reveal leaks that were not present during the initial leak check. Take time during the test run to recheck all pipe connection points. Refer to Gas Leak Check section for instructions.
TROUBLESHOOTING
SAFETY PRECAUTIONS
If ANY of the following conditions occurs, turn off your unit immediately!
The power cord is damaged or abnormally warm
- You smell a burning odor
- The unit emits loud or abnormal sounds
- A power fuse blows or the circuit breaker frequently trips
- Water or other objects fall into or out of the unit
DO NOT ATTEMPT TO FIX THESE YOURSELF! CONTACT AN AUTHORIZED SERVICE PROVIDER IMMEDIATELY!
COMMON ISSUES
The following problems are not a malfunction and in most situations will not require repairs
| ISSUE | POSSIBLE CAUSES |
| Unit does not turn on when pressing ON/OFF button | The Unit has a 3-minute protection feature that prevents the unit from overloading. The unit cannot be restarted within three minutes of being turned off. |
| The unit changes from COOL/HEAT mode to FAN mode | The unit may change its setting to prevent frost from forming on the unit. Once the temperature increases, the unit will start operating in the previously selected mode again. |
| The set temperature has been reached, at which point the unit turns off the compressor. The unit will continue operating when the temperature fluctuates again. | |
| The indoor unit emits white mist | In humid regions, a large temperature difference between the room’s air and the conditioned air can cause white mist. |
| Both the indoor and outdoor units emit white mist | When the unit restarts in HEAT mode after defrosting, white mist may be emitted due to moisture generated during the defrosting process. |
| The indoor unit makes noises | A rushing air sound may occur when the louver resets its position. |
| A squeaking sound may occur after running the unit in HEAT mode due to expansion and contraction of the unit’s plastic parts. |
| ISSUE | POSSIBLE CAUSES |
| Both the indoor unit and outdoor unit make noises | Low hissing sound during operation: This is normal and is caused by refrigerant gas flowing through both indoor and outdoor units. |
| Low hissing sound when the system starts, has just stopped running, or is defrosting: This noise is normal and is caused by the refrigerant gas stopping or changing direction. | |
| Squeaking sound: Normal expansion and contraction of plastic and metal parts caused by temperature changes during operation can cause squeaking noises. | |
| The outdoor unit makes noises | The unit will make different sounds based on its current operating mode. |
| Dust is emitted from either the indoor or outdoor unit | The unit may accumulate dust during extended periods of non- use, which will be emitted when the unit is turned on. This can be mitigated by covering the unit during long periods of inactivity. |
| The unit emits a bad odor | The unit may absorb odors from the environment (such as furniture, cooking, cigarettes, etc.) which will be emitted during operations. |
| The unit’s filters have become moldy and should be cleaned. | |
| The fan of the outdoor unit does not operate | During operation, the fan speed is controlled to optimize product operation. |
| Operation is erratic, unpredictable, or unit is unresponsive | Interference from cell phone towers and remote boosters may cause the unit to malfunction. In this case, try the following: • Disconnect the power, then reconnect. • Press ON/OFF button on remote control to restart operation. |
NOTE
If problem persists, contact a local dealer or your nearest customer service center. Provide them with a detailed description of the unit malfunction as well as your model number.
When troubles occur, please check the following points before contacting a repair company.
| PROBLEM | POSSIBLE CAUSES | SOLUTION |
| Poor Cooling Performance | Temperature setting may be higher than ambient room temperature | Lower the temperature setting |
| The heat exchanger on the indoor or outdoor unit is dirty | Clean the affected heat exchanger | |
| The air filter is dirty | Remove the filter and clean it according to instructions | |
| The air inlet or outlet of either unit is blocked | Turn the unit off, remove the obstruction and turn it back on | |
| Doors and windows are open | Make sure that all doors and windows are closed while operating the unit | |
| Excessive heat is generated by sunlight | Close windows and curtains during periods of high heat or bright sunshine | |
| Low refrigerant due to leak or long- term use | Check for leaks, re-seal if necessary and top off refrigerant | |
| Excessive heat is generated by sunlight | Block sunlight in installation area | |
| Too many sources of heat in the room (people, computers, electronics, etc.) | Reduce amount of heat sources | |
| Poor Heating Performance | The outdoor temperature is extremely low | This model is designed to work down to -13°F, however, heating performance is impacted at temperatures below freezing |
| Cold air is entering through doors and windows | Make sure that all doors and windows are closed during use | |
| Low refrigerant due to leak or long-term use | Check for leaks, re-seal if necessary, and top off refrigerant | |
| The unit starts and stops frequently | There’s too much or too little refrigerant in the system | Check for leaks and recharge the system with refrigerant |
| Incompressible gas or moisture has entered the system | Evacuate and recharge the system with refrigerant | |
| The compressor is broken | Replace the compressor | |
| The voltage is too high or too low | Install a manostat to regulate the voltage |
| PROBLEM | POSSIBLE CAUSES | SOLUTION |
| The unit is not working | Power failure | Wait for the power to be restored |
| The power is turned off | Turn on the power | |
| The fuse is burned out | Replace the fuse | |
| Remote control batteries are dead | Replace batteries | |
| The Unit’s 3-minute protection has been activated | Wait three minutes after restarting the unit | |
| Timer is activated | Turn timer off | |
| Indicator lamps con- tinue flashing or error code appears | The unit may stop operation or continue to run safely. If the indicator lamps continue to flash or error codes appear, wait for about 10 minutes. The problem may resolve itself. If not, disconnect the power, then connect it again. Turn the unit on. If the problem persists, disconnect the power and contact your nearest customer service center. | |
NOTE
If your problem persists after performing the checks and diagnostics above, turn off your unit immediately and contact an authorized service center.
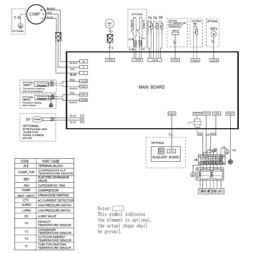
WIRING DIAGRAMS
DRA1H09S1A & DRA1H12S1A
DRA1H18S1A 
DRA1H24S1A
ERROR AND OPERATING CODES

JOB SITE INFORMATION SHEET
- Site Information
- Job Name: _____________________________________________
- Installation Date: _________________
- Address: ______________________________
- City: _____________________
- State: ______
- Zip: ________
- Phone: ________________________
- Email: _______________________________________________
Contractor Information
- Contractor Name: _____________________________
- Technician Name: __________________________
- Address: ______________________________
- City: _____________________
- State: ______
- Zip: ________
- Phone: ________________________
- Email: __________________________________________
Outdoor Unit (ODU) Information
- ODU Model #: ____________________________
- ODU Serial #: ___________________________________
- Unit Location: ________________________________________
Indoor Unit (IDU) Information
- IDU Model #: _____________________________
- IDU Serial #: ____________________________________
- Unit Type: ___________________________
- Unit Location: ____________________
Refrigerant Line Size (Circle Liquid and Gas Line): 1/4″ 3/8″ 1/2″ 5/8″
- Line Set Length: ______________
Outdoor Electrical Readings
- Line Power Wire Color: L1 __________________
- L2 __________________
- G _____________________
- Line Voltage (Power Off): L1 to L2 _____________
- L1 to G _____________
- L2 to G ________________
- Line Voltage (Power On): L1 to L2 _____________
- L1 to G _____________
- L2 to G _________
Outdoor to Indoor Electrical Readings
- IDU Power/Control Wire Color: 1 __________________ 2 __________________ 3 ___________________
- Voltage Readings: 1-2 ___________ AC 2-3 ___________DC
Outdoor Thermal Readings
- ODU Discharge: _________°F
- OD Ambient: _________°F
- Gas Line Saturation: _________°F
- Liquid Line Saturation: _________°F
Indoor Electrical Readings
- IDU Power/Control Wire Color: 1 __________________ 2 __________________ 3 ___________________
- Voltage Readings: 1-2 ___________ AC 2-3 ___________DC
Indoor Thermal Readings
- Return Air: _________°F
- Supply Air: _________°F
- Room Air: _________°F
THIS PAGE INTENTIONALLY LEFT BLANK.
DURASTAR.COM
©2022 Durastar
V1.0 1122



































