This guide provides instructions for an experienced installer to install the Extron NAV E 401 D and NAV E 201 D streaming encoder and to make all connections. The Extron NAV encoder and one or more compatible decoders form an AV distribution and switching matrix on a managed 1G (1 Gbps) IP network. The encoder fits in a standard US three-gang mounting bracket or electrical junction box. The encoder ships with a three-gang mounting bracket and a decorator-style wallplate (white or black, depending on the version ordered). The front panel faceplates are in white or black, as appropriate.NOTE: For more information on any subject in this guide, see the NAV E 401 D and NAV E 201 D User Guide, available at www.extron.com.
Features
Front Panel
- Figure 1 shows a NAV E 401 D. The NAV E 201 D is similar; the only exception is lack of an Extension port (D).
- Items C and F are visible only when the faceplate is removed.

Connectors
- HDMI IN port — Receives the HDMI video input (or DVI, with an appropriate adapter) from the HDMI output port of the digital video source (see LockIt® Lacing Brackets on page 7 to securely fasten the HDMI connectors to the encoder).
- HDMI OUT port — Outputs looped-through HDMI video for local monitoring of the source signal.
- CONFIG (configuration) port — Connect a PC into the encoder for configuration of the encoder. The port uses IP over USB technology; the IP address is always 203.0.113.22 and CANNOT
be changed. The CONFIG port is also discoverable via Toolbelt and Product Configuration Software (PCS). - LAN – EXT (extension) port (NAV E 401 D only) — If desired, connect another networked device to this port (see LAN and EXT connector on page 7 to wire the connector). The port acts as a networked switch to the NAV 1G/PoE+ port (see figure 2, A on page 2).
- Indicators and buttons
- Visible LEDs (LEDs that are always visible)
- Power — Indicates power and startup status.
- Blinking — The unit is receiving power, either locally or remotely (via PoE), and is booting up.
- Lit steadily — The unit is receiving power, either locally or remotely (via PoE), and is operational.
- HDMI — The encoder is detecting an HDMI input.
- HDCP — The HDMI signal is HDCP encrypted.
- Stream — Indicates the output status of the A/V stream.
- Lit steadily – The encoder is actively streaming a NAV output consisting of video, audio, or both.
- Blinking – The encoder is actively streaming a NAV output, but network errors are present.
- Hidden buttons and LEDs (features that are visible only when the faceplate is removed) —
- Reset button and LED — This recessed button and LED initiate and display three modes of reset (see the NAV E 401 D and NAV E 201 D User Guide, available at www.extron.com, for details).
- D button and LED — The recessed ID button identifies the encoder when pressed. The LED blinks when the encoder is in pairing mode (see Pairing devices on front panel on page 7 for details).
- NAV 1G LEDs — Indicate the status of the network connection.
- Link — Lit steadily indicates that a network link is established. Blinking indicates a link speed less than 1Gbps.
- Act — Blinking indicates network traffic. The blink rate corresponds to activity.
Rear Panel Connectors
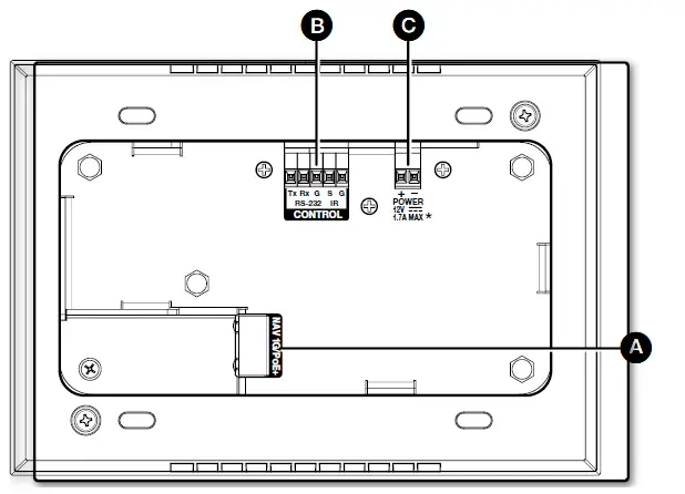
- NAV 1G/PoE+ port — Connects to an AEthernet LAN on which one or more decoders also reside for streaming and control (see LAN and EXT connector on page 7 to wire the connector). This port can also receive Power over Ethernet+ (PoE+) to power the encoder (see Power on page 4 for power options).
- CONTROL RS-232/IR port — Connect a serial RS-232 signal, a modulated IR signal, or both to this 3.5 mm, 5-pole direct insertion connector for bidirectional RS-232 and IR communication with connected remote controlled devices using an Extron control system. (see Control connector on page 7 to wire the connector).
- Power connector (optional) — Plug the included external 12 VDC power supply into this 2-pole direct insertion connector for local power (see Power connector on page 7 to wire the connector and Power for power options).

Installation
Step 1: Prepare the Installation Site
- Installation and service must be performed by authorized personnel only.
- Extron recommends installing the encoder into a grounded, UL Listed electrical junction box.
- If the encoder will be installed into fine furniture, it is best to hire a licenced, bonded craftsperson to cut the access hole and perform the physical installation so the surface will not be damaged.
- Follow all national and local building and electrical codes that apply to the installation site.
- For the installation to meet UL requirements and to comply with National Electrical Code (NEC), the encoder must be installed in a UL Listed junction box. The end user or installer must furnish the junction box. It is not included with the unit.
Americans with Disabilities Act (ADA) compliance
When planning where to install the encoder, you may need to consider factors affecting accessibility of the encoder such as height from the floor, distance from obstructions, and how far a user must reach to access the connectors. For guidelines, see sections 307 (“Protruding Objects”) and 308 (“Reach Ranges”) of the 2010 ADA Standards for Accessible Design available at: http://www.ada.gov/regs2010/2010ADAStandards/2010ADAStandards.pdf.
Site preparation
The encoder fits into a standard US three-gang junction box or mounting bracket and decorator-style wallplate. The encoder ships with a mounting bracket. Optional UL Listed junction boxes, external junction boxes, and surface mounting boxes are available for use with the unit. Read any installation instructions and UL guidelines that come with the mounting devices, then install the box or mounting bracket in the opening at the installation site.
To prepare the site:
- Using the size of the junction box or mounting bracket for reference, cut the hole in the mounting surface. Protect the surface prior to and during cutting so the surface is not damaged.
- Run cables to the mounting location, leaving enough slack for device installation.
- Install the junction box or mounting bracket into the wall or furniture.
- Secure the cables with a clamp for strain relief and so they do not slip back down into the wall or furniture.
Step 2: Cable the Encoder (Behind the Mounting Surface)
- Connect the encoder to the network switch (see figure 2, A on page 2).
- Optional — Connect the encoder to a remote controlled device for bidirectional RS-232 and IR communication (see B on page 2).
- Optional — Connect the encoder to an unpowered external power supply (see C on page 2 and Power on page 4).
Step 3: Test and Troubleshoot
- Power up the system. Check that after approximately 45 seconds, the front panel LEDs indicate normally (Power LED and Stream LEDs lit steadily green).
- Make adjustments to wiring or configuration as needed. Remember that the rear panel ports are not accessible after the encoder is mounted.
Step 4: Complete the Physical Installation
- Insert the cabled encoder into the mounting bracket or junction box within the wall or furniture, aligning the mounting holes in the encoder mounting tabs with those in box or mounting bracket.
- Secure the encoder to the junction box, wall or surface mounting box, or mounting bracket as follows (see figure 4 on page 4):
- Insert the included screws through the mounting holes at diagonal corners of the unit and into the corresponding threaded holes in the box or mounting bracket.
- Using a Phillips screwdriver, tighten the screws until snug.
Operation
Power
- Locally, from the included external power supply via the power connector (see figure 2, C on page 1).
- Remotely, receiving PoE via the NAV 1G/PoE+ port (see A on page 2); either from the network switch or from an optional PI 140 Power Injector.
- Locally (C) and remotely (A), with priority on the NAV 1G/PoE+ port. If PoE voltage drops below a threshold, the encoder immediately transitions to the external power connector with no effect on system operation.When power is applied, the encoder runs a series of self-tests that blink the front panel Power LED and all other indicators. The encoder then boots the NAV operating system. It can take approximately 45 seconds for self-test and system startup to complete. When the process is complete, the Power LED lights steadily.
ATTENTION:
Power over
- Ethernet (PoE) is intended for indoor use only. It is to be connected only to networks or circuits that are not routed to the outside plant or building.
System Operation
The encoder can be configured and controlled using embedded web pages or Toolbelt software (see the NAV E 401 D and NAV E 201 D User Guide available at www.extron.com).
Connection via web pages
Connection to the encoder and its embedded web pages can be made via either the front panel Configuration (USB) port (using IP over USB technology) (see figure 1, C on page 1) or the rear panel NAV 1G/PoE+ port (see figure 2, C on page 2). Access the encoder using HTML pages as follows:
- Open a web browser.
- Enter the IP address of the encoder in the browser Address field
- Press the keyboard <Enter> key. The browser displays a privacy error message (see figure 5) for an example in the Chrome browser).

- Click the browser button that advances past the privacy notification (such as Advanced [1] in Chrome). Explanatory text and a link appear.
- Click Proceed to <IP address> (unsafe) (2) (or similar message). The browser opens to the Login dialog box (see figure 6).

- Complete the Username (see figure 6, 1 on page 5) and Password (2) fields and click SIGN IN (3). The browser opens to the home page of the embedded web pages (see figure 7).
NOTES:
- The default username is admin.
- The factory configured passwords for all accounts on this device have been set to the device serial number. If the password is reset, the encoder defaults to the default password, which is extron.
- Usernames and passwords are case sensitive.

Connection settings
View and change connection settings as follows:
- On the home page, click Settings > Networking (see figure 7, 1).
- Click the Network Connection drop-down menu (2). The Network Connection pane opens (see figure 8), showing protected views of the network connection settings.
- To change the settings, click EDIT (see figure 8, 1). The EDIT button changes to SAVE.
- Click in the desired field (2) and edit it as desired.
- Repeat step 4 as necessary for other values.
- Click SAVE.

Pairing devices on front panel
Pair devices from the front panel as follows:
- Use a Tweeker or other small screwdriver to press and hold the encoder ID button on the front panel, behind the bezel (see figure 1, F on page 1) for approximately 3 seconds, until the ID LED blinks. The encoder enters pairing mode, which allows decoders to receive AV streams from encoders.
- One at a time, use a Tweeker or other small screwdriver to press and hold the decoder front panel ID button for approximately 3 seconds, until the ID LED blinks three times. The decoder is now paired to the encoder.
- Repeat step 2 for each decoder.
- Use a Tweeker or other small screwdriver to press and release the encoder front panel ID button. The encoder exits pairing mode.
- Repeat steps 1 through 4 to pair decoders to other encoders. After all devices are connected, powered on, and paired, the system is fully operational.
Operation in a System with a NAVigator
- Use a Tweeker or other small screwdriver to press and hold the encoder ID button on the front panel, behind the bezel (see figure 1, F on page 1) for approximately 3 seconds, until the ID LED blinks. The encoder enters pairing mode, which allows decoders to receive AV streams from encoders.
- One at a time, use a Tweeker or other small screwdriver to press and hold the decoder front panel ID button for approximately 3 seconds, until the ID LED blinks three times. The decoder is now paired to the encoder.
- Repeat step 2 for each decoder.
- Use a Tweeker or other small screwdriver to press and release the encoder front panel ID button. The encoder exits pairing mode.
- Repeat steps 1 through 4 to pair decoders to other encoders. After all devices are connected, powered on, and paired, the system is fully operational.
Operation in a System with a NAVigator
The Extron NAVigator is a system manager that easily configures and controls the NAV System. The NAVigator supports a 16 endpoint system by default, but if a LinkLicense™ is installed, it can support up to 240 endpoints.
See the NAVigator User Guide, available at www.extron.com for details.
- Plug the HDMI cable into the panel connection (see 1, at right).
- Loosen the HDMI connection mounting screw from the panel enough to allow the LockIt lacing bracket to be placed over it (2). The screw does not have to be removed.
- Place the LockIt lacing bracket on the screw and against the HDMI connector (3).
- Tighten the screw to secure the bracket.
- Loosely place the included tie wrap around the HDMI connector and the LockIt lacing bracket as shown (4).
- While holding the connector securely against the lacing bracket, use pliers to tighten the tie wrap, then remove any excess length (5).


For information on safety guidelines, regulatory compliances, EMI/EMF compatibility,A accessibility, and related topics, see the Extron Safety and Regulatory Compliance Guide on the Extron website.





























