BERTAZZONI REF30BMBIPRT 30 Inch Panel Ready Right-Hinge Built-In Bottom Mount Refrigerator Instructions
PRODUCT DIMENSIONS
SIDE VIEW
FRONT VIEW
TOP VIEW
- Maximum Overall Handle Dimension
- Width of 3/4” (19mm) Door Panel
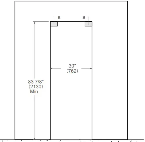
CUTOUT DIMENSIONS
SIDE VIEW
FRONT VIEW
TOP VIEW
- (a) Area to be left clear for the anti-tipping brackets 3”1/2×5” (82x127mm)
- (b) Panel dimensions available on Built-in Food Preservation Design Guide or Installation Manual
ELECTRICAL & WATER CONNECTION
E: A properly-grounded, horizontally-mounted electrical receptacle should be installed according to this drawing
W: To connect to the water supply system, a 1/4” NPT waterline with accessible shut-off valve must be supplied.
Connection(s) placement within the opening may require additional cabinet depth
TOP VIEW
FRONT VIEW
A separate circuit breaker servicing only this appliance is recommended. For installation of multiple products in combination, refer to the Built-in Food Preservation Desig Guide. Dimensions in parentheses are millimeters unless otherwise specified.
INSTALLATION REQUIREMENTS
If the appliance(s) is not connected through the side profile trims to secured cabinetry anti-tip brackets must be installed.
















