Grape Solar GS-600-KIT-BT-INV 600 Watt Off Grid Charging Kit User Guide
GS-600-KIT-BT-INV PHOTOVOLTAIC
POWER GENERATION SYSTEM
QUICK CONNECT GUIDE REV. 220425
600 Watt Off-Grid Charging Kit
(GS-600-KIT-BT-INV)
Quick Connect Guide
IMPORTANT: Please read GS-PWM-COMET-40 charge controller and Xantrex Prowatt SW 2000 inverter owner’s manual, and GS-STAR-200W solar panel Connection Guide (included with products) before assembling kit.
For additional information about Grape Solar products: email [email protected], or
To estimate how much average monthly power this system should produce in your area, please use the PV Watts Calculator found at:
https://pvwatts.nrel.gov/
This System Size= 0.60 kW DC
(only applicable for zip codes in the U.S.A.)

1 Check your order to make sure that all parts are included:
- GS-PWM-Comet40 Charge Controller
- 3x 20-Amp MC4 In-Line Fuse
- 2x MC4 Branch Connector Set
- 3x GS- STAR-200W Solar Panel
- 5-ft. Red/Black 10 AWG Cable Pair
- 15-ft. MC4-to-Bare-Wire Cable Pair
- 5-ft. Red/Black Lug-to-Lug Cable Pair
- Xantrex Prowatt SW 2000

Additional tools and equipment you will need:
- Screwdriver Philips Head
- 12-Volt Deep-Cycle Battery Bank
- Electrical Gloves
- Voltmeter (for Troubleshooting)
2 Mount the 200-watt solar panels 4 so that they are facing due South at approximately the same angle as your latitude. The ideal area has full sun and no shading. If the following connections are made during daylight, cover the panels with cardboard, cloth, or a similar opaque material so that the panel does not output power.
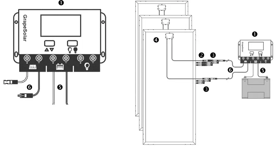
3 Connect the bare wire end of the 10 AWG (thinner) red battery cable 5 to the (+) battery terminal on the bottom of the Comet40 charge controller 1. Connect the bare wire end of the 10 AWG (thinner) black cable 5 to the (-) battery terminal. A Phillips head screwdriver can be used to loosen and tighten the screw clamps onto the wires.
Attach the ring lug end of the red cable 5 to the positive terminal of a 12V deep cycle battery. Attach the ring lug end of the black cables 5 to the negative terminal of the battery.
The charge controller 1 display screen will be visible if the battery has sufficient charge. If the display screen is not visible, the battery must be charged from an another source before processing solar power. The charge controller, which regulates solar power flow to the battery, is powered by the battery.

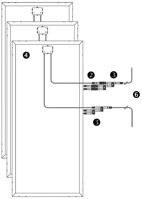
4 Branch connector sets 3 are typically clipped together when shipped. Unclip the branch connectors until there are 4 separate units.
Connect one branch connector 3 with the “female” output to the “male” end of a 15-ft. MC4-to-Bare-Wire cable 6. Connect an additional “female” output branch connector 3 to the attached branch connector.

5 With the other 15-ft MC4-to-Bare-Wire cable , connect one branch connector with the “male” output to the “female” end of the cable. Connect an additional “male” output branch connector to the attached branch connector.
Now, attach an in-line fuse 2 to each of the “female” inputs. There are a total of 3 in-line fuses 2 in this kit, matching a total of 3 “female” open inputs.

6 Connect each positive solar panel 4 cable to one of the “female” fuse 2 ends from the previous connections.
Connect the negative panel cables to the “male” branch 3 connector ends .

7 Attach the bare-wire ends of the 15 ft MC4-to-Bare Wire cable pair 6 to the charge controller 1. Make sure the polarity is matched correctly between the cable and the charge controller input receptor.

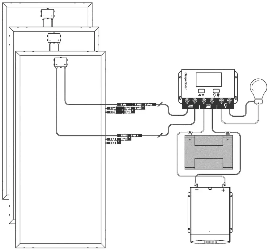
8 Remove the panel covering. In good sunlight, the charge controller’s 1 “BAT %” should increase to 100%. When the controller is set to “LOAD ON,” the system will provide power through the load control output or through the USB port.

9 Electrical gloves are required for this step.
Unscrew the screw nuts on the back of the Xantrex Prowatt SW 2000 inverter. Connect the ring lug end of the 4 AWG (thicker) red battery cable 7 to the positive terminal on the back of the Xantrex Prowatt SW 2000 inverter 8. Connect the ring lug end of the 4 AWG (thicker) black battery cable 7 to negative terminal of the Xantrex Prowatt SW 2000 inverter 8. Tighten the screw nuts to lock the ring lugs in place.
Attach the other ring lug end of the 4 AWG red battery cable 7 to the positive terminal of a 12V deep cycle battery. Attach the ring lug end of the 4 AWG black battery cable 7 to the negative terminal of the battery.
Press the power button once and the inverter should turn on if the battery has sufficient charge.


DISCLAIMER:
Installations of this kit could be subject to national and local building and electrical codes. Installers should have adequate knowledge of national and local code to ensure the installation passes inspection by the local electric authority.
Proper fuses or breakers should be used to comply with all local and national codes. Contact Grape Solar for specific recommendations.
All batteries used for this system should be identical. Do not mix battery types or sizes. Do not mix old batteries with new batteries. Performance and charging anomalies can occur if types, sizes, or age of batteries are not identical.
Grape Solar does not warrant the accuracy, sufficiency, or suitability to all customers of any technical or other information provided in product manuals. Grape Solar does not claim any responsibility or liability for losses, damages, costs or other expenses whether special, indirect, consequential or incidental, which might arise out of the use of such information.
www.GrapeSolar.com
Tel. 1-877-264-1014 (toll free), 1-541-349-9000
Document Version 220425
©Copyright 2021, Grape Solar, Inc. All Rights Reserved




















