ZKTECO US20 Series Data Collection Terminal

About this Guide:
This guide mainly introduces the installation instructions and the wiring method of US20 series device.
Our products are subject to update from time to time, so our company will neither make a commitment to guarantee the consistency between the actual products and this document nor assume any responsibility for any dispute arising out of the discrepancy between the actual technical parameters and this manual. This document is subject to change without prior notice.
Notice about Installing
This is a mass-produced product. It strictly follows to the criteria of manufacture and inspection of China, U.S.A, and EU. Here we recommend you to read this file carefully, for using the device properly can obtain the best efficiency and speed. Otherwise, the incorrect installation may cause the unit damage. Although we could do our best to offer you service, but this could cause the unwanted cost for you.
- Before installation, please make sure the power is cut off, because it is very dangerous if the power is on. The accidental contact of power cable may cause the core parts damage.
- Power cable is connected after all the other wiring. If the device is working abnormally, please shut down the power first, then make the necessary check. Kindly reminds you that any hot-line work may damage the device, and operations will not under warranty.
- The height to mount device is about 1.4-1.5 meter
- Our equipment offers an auto test function. After the installing, please run the auto-test function to confirm the installation is finished.
- In order to guarantee the device run for long time, we set an auto-sleep and wake up function by default, please carefully examine this function normally setting before using.
- We recommend using the equipped DC12V power supply for the device. If the parameters of the power surpass this scope, or the power supply has the bad quality, it possibly causes the damage to the device, and it will not under the warranty.
- Before the device to be connected please read and always follow this guide closely. Because the wrong wiring will cause the core board to burn out, insult in device to break down, at this situation we are not liable for any damages and troubles.
- If the distance between the power and device is too long, please do not use the twisted-pair or other type cable for the power wire. When the power wire is selected, you should consider attenuation of voltage which has passed long distance transfer.
Device Overview
System Construction
- External Ring ★: Connect the electrical bell to the device, when arrive the appointed time, the device will send a signal to trigger the relay.
- Unlock ★: After the user verified the identity, the device will output the unlock signal and unlock the door.
- Supports RS232, TCP/IP modes to connect with PC, that enable you to manage multiple devices easily.
Note: The external ring and unlock function are both optional functions and they can not use together. If you need to use any one of them, please contact our business representative or technical support.
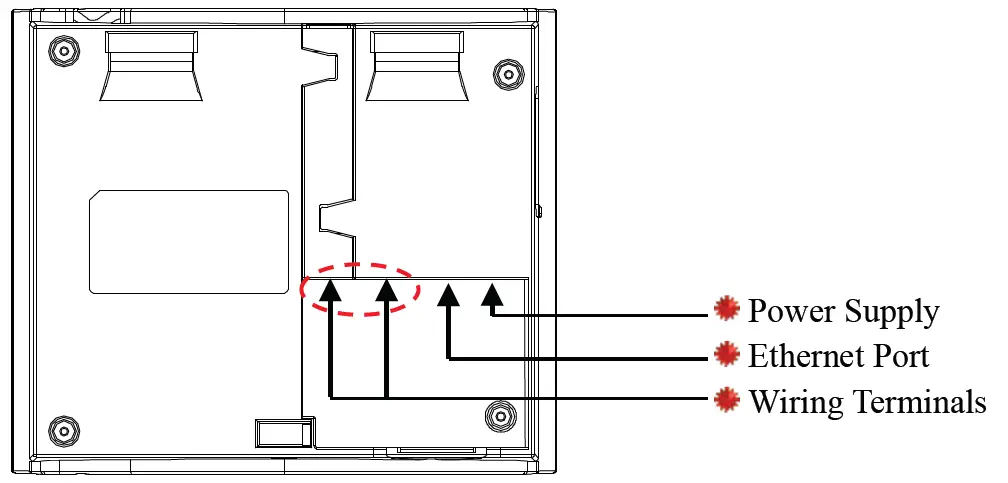
Device Interface
Back View:
- Power Supply: Use to connect with the power supply.
- Ethernet Port: Connect the device into the Internet or connect with the PC directly.
- Wiring Terminals: Use to connect with the external ring (or door lock), RS232 communication (or connect with the printer). See to the red circle on the above figure. The magnified picture as below.
- Device Interface:
Note: You can not use RS232 communication and connect the printer at the same time.
Device Installation and Wiring
Device Installation
Note: Do not connect peripheral equipment before the power of the device is cut down, otherwise it is possible to damage the device badly. Please read and always follow this guide strictly at wiring process.
The device installation operations are as follows:
- Determine the position of the device installation on the wall. The device should be mounted on the external wall of the door, and about 1.4 meters from the ground.
- Stick the mounting paper on the determined position, drill four screw holes and one wiring hole follow the illustration of the template.
- Use the screws to fix the plate on the wall, and then fix the device on the plate.
- After installation, please make sure the device is reliable, fasten, and stable.
Communication Connection
There are two ways that the PC software communicate and exchange information with the device: RS232 and TCP/IP.
Ethernet Mode
- Connects with PC through cross cable, as the figure 3-1.

- The device and the PC both connected to LAN/WAN through Switch/LAN switch as figure 3-2.

RS232 Mode
We will provide a RS232 cable with the device. Connect the device with the PC serial port through this cable, as figure 3-3.
Only four terminals are used for RS232 communication: SGND, RXD, TXD, and GND. Plug the DB 9 PIN side of the cable into the PC port, the other side plug into the device terminals, as figure below.
PC 9 PIN
Port Number Definitions 
- TXD————————————————–2 RXD
- RXD————————————————–3 TXD
- SGND————————————————5 GND
- GND————————————————–Shield Terminal
External Ring and the Lock Connection
Note: The external ring and unlock function are both optional functions and they can not use together. If you need to use any one of them, please contact our business representative or technical support.
- Electric lock connection:
After the user verified the identity, the device will output the unlock signal.
The device supports NO LOCK and NC LOCK. For example the NO LOCK (normally open at power on) is connected with “NO” terminal, and the NC LOCK is connected with “NC” terminal.
Normally Closed Lock:
The lock is normally closed at power on, the connection as figure 3-4.
Normally Open Lock:
The lock is normally open at power on, the connection as figure 3-5.
- External Ring:
Connect the electrical bell to the device, when arrive the appointed time, the device will send a signal to trigger the relay. The connection please refers to the figure 3-6.
Printer Connection
This function is designed for a serial port printer only, the parallel printer is unavailable. After a user is verified, the result will be sending out through serial port. If the device is connected with the printer, the result can be printed directly. We will provide a 25 PIN to 9 PIN female extension cable, and a 9 PIN to terminal cable, the connection as figure below.
Only four terminals are used for RS232 communication: SGND, RXD, TXD, and GND. Plug the DB 25 PIN side into the printer port, the other side connect with the other cable 9 PIN side, the left terminal side plug into the device terminals, the connection and the terminal definition as figure below.
PC 9 PIN
Port Number Definitions 
- Device Terminals
- Terminal
- TXD————————————————–2 RXD
- RXD————————————————–3 TXD
- SGND———————————————–5 GND
- GND————————————————-Shield Terminal
Note: You can not use RS232 communication and connect the printer at the same time.
Power Connection
This device is powered by 12VDC: You can use the 12V power supply adapter which is provided along with the device. And then the device is power on and get ready to work.
Connection: Plug the 12V power supply into the power port at the back of the device. The power port position please refers to 2.1 Device Interface.
Test and Examine after Installation
- After all system installation finished, make a test and examine prior to power on.
- Power on the device. The green LED begins to glitter after power up.
- Enter menu Option Auto test, select [Test all] function.
- Enter menu User management Enroll User Enroll Card,Enroll a user card, and test the device by swipe the card.
- If there is no any problem, please delete this enrolled user and the user card.
Other Functions
Side View:
USB Port
You can use the U disk to download or upload the user information and the verification records. The USB port please refers to the figure 5-1.
Reset Function
If the device does not work properly because of misuse or other abnormality, you can use the “Reset” function to restart it. The reset button please refers to the figure 5-1.
Operation: Remove the black rubber cap, and then stick the Reset button hole with a sharp tool (the tip diameter less than 2mm).
WiFi Connection
Note: Only the device with WiFi module can communicate in the LAN using WiFi function. If you need to use, please contact our business representative or technical support.
The device can connect to the LAN through the embedded WiFi module, upload and download the user information and verification data. The following figure is an example of WiFi application.
Card Verification
Only the product with the card module offers the card verification function.
Please place the registered card on the card reader.
DataSheet
| Capacity | ID Cards: 10,000 Transactions: 100,000 Fingerprint templates: 3,000 |
| Fingerprint Sensor | ZK230P |
| Frequency | 125 KHz、134.2KHz、13.56MHz、2.4GHz |
| Power | 12 V DC, 1.5 A |
| Environment | Operating Temperature: 32º F to 113º F (0℃ to 45℃) Operating Humidity: 5% to 80% |
| Dimensions | Width : 6.5 in. (16.5 cm) Height: 5.5 in. (14 cm) Depth: 1.8 in. (4.6 cm) Weight: 0.95 lbs. (0.43 kg) |
Trouble Shooting
| Trouble | Cause & Measure |
| Power LED is off | Cause: No power or lack of voltage. Measure : Check and examine the connection of power supply. Measure the supply voltage, ensure that it is 12VDC. |
| Device is unable to connect with PC | Cause: The connection problem. Measure: Check and examine the connection of RS232 or TCP/IP, whether its connection is correct or not. |
| When the device is power, it can not enter the main menu | Cause : Chip-on-board is broken. Measure: Need to contact supplier and ask for repair. |
| The time display as “00:00” after restarting | Cause: The clock battery is broke down. Measure: Contact the reseller to replace a battery. |
| keystroke without sound | Cause: ①Trouble in the buzzer, loud- speaker or circuit. ②Set the parameter button beep to “N” in the device Measure: ①Need to replace the buzzer and loudspeaker. ②Enter the Menu – Options-System Opt – Adv Option – Button Beep, turn the parameter to “Y” |
FCC
This device complies with Part 15 of the FCC Rules. Operation is subject to the following two conditions:
- This device may not cause harmful interference, and
- This device must accept any interference received, including interference that may cause undesired operation.
Warning: Changes or modifications to this unit not expressly approved by the party responsible for compliance could void the user’s authority to operate the equipment.
Note: This equipment has been tested and found to comply with the limits for a Class B digital device, pursuant to Part 15 of the FCC Rules. These limits are designed to provide reasonable protection against harmful interference in a residential installation. This equipment generates, uses and can radiate radio frequency energy and, if not installed and used in accordance with the instructions, may cause harmful interference to radio communications. However, there is no guarantee that interference will not occur in a particular installation. If this equipment does cause harmful interference to radio or television reception, which can be determined by turning the equipment off and on, the user is encouraged to try to correct the interference by one or more of the following measures:
- Reorient or relocate the receiving antenna.
- Increase the separation between the equipment and receiver.
- Connect the equipment into an outlet on a circuit different from that to which the receiver is connected.
- Consult the dealer or an experienced radio/TV technician for help.
“This equipment complies with FCC RF radiation exposure limits set forth for an uncontrolled environment.
This equipment should be installed and operated with a minimum distance of 20 centimeters between the radiator and your body.”


Note: You can not use RS232 communication and connect the printer at the same time.




















![Zkteco Elite Series [ti] Instruction Manual Zkteco Elite Series [ti] Instruction Manual](https://static-data1.manualsee.com/1/img/320/5146398/2022/11/fb4f414223137c521cec43028c1d4580.jpg)

