The Delphi
Fever detection device
Quick Start Guide
Packing List
| No. | Name | Qty | Unit |
| 1 | Intelligent measuring instrument | 1 | PCS |
| 2 | Pole base | 1 | PCS |
| 3 | Extension pole | 2 | PCS |
| 4 | Expansion bolt | 3 | PCS |
| 5 | Power adapter | 1 | PCS |
| 6 | Power cable | 1 | PCS |
Note: The accessories may vary with device model and version.
Product Overview
The Delphi is a non-contact thermometer that measures body temperature on the wrist. It provides abnormal temperature alarm and counting features and is mounted on a pole with adjustable heights. The Delphi can be widely applied in schools, office buildings, communities, subway stations, airports, etc.
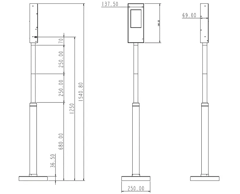
Appearance and Dimensions
See the actual device for appearance. The figure below shows device dimensions. (Unit: mm)

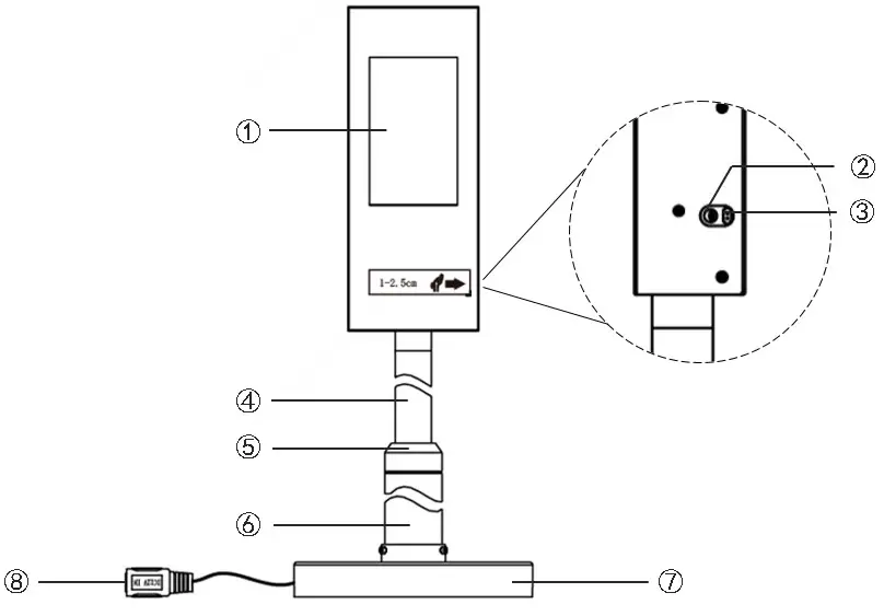
Structure and Cable
The figure below shows the structure and cable of the device. The actual device may vary.
| 1. Display screen | 2. Temperature measurement module |
| 3. Distance measurement module | 4. Extension pole |
| 5. Adapter | 6. Pole base |
| 7. Round base plate | 8. DC 12V power cable |
Device Installation
Tools Preparation
- Antistatic wrist strap or antistatic gloves
- Marker
- Electric drill
- 14mm wrench
Installation
You may choose ground installation or base plate installation. The steps are as follows.
NOTE!
For long-term use at a fixed location, ground installation should be adopted.
3.2.1 Ground Installation
- Mark the positions of holes on the ground by referring to the following figure.

- Use the electric drill to drill holes according to the marked positions.
- Turn the extension pole clockwise to connect it to the pole base.
NOTE!
You may choose to install 1, 2 or no extension poles based on your needs. After installation, the distance between the temperature measurement module and the ground will be 1m if one extension pole is used, 1.25m if two extension poles are used, and 0.75m if no extension pole is used. - Lead the cable through the standing pole and out through the cabling hole on the pole base.

WARNING!
Do not hold the tail cable by hand for weight-bearing. Otherwise, the cables may be loosened.
WARNING!
When turning the measuring instrument, make sure the cable at the pole base is not pressed, and the cable inside the standing pole rotates with the instrument correspondingly. Otherwise, the cabling inside the measuring instrument may be loosened, and device functions may be affected. - Insert M8X80 expansion bolts into the three fixing holes on the ground, and make sure that the expansion bolts are a bit higher than the ground.

- Erect the standing pole, align the hole position at pole bottom with the expansion bolts fixed on the ground, adjust the standing pole so that it’s perpendicular to the ground, adjust device direction, and then fasten the standing pole with nuts.

- Lead the tail cable out through the hole on the round base plate.
- Refer to the figure below to fasten the base plate with screws.

3.2.2 Base Plate Installation
- Connect the measuring instrument, extension pole, and pole base by referring to Step 3 to Step 5 in Ground Installation.
- Fasten the base plate with screws by referring to Step 9 in Ground Installation.
Device Operation
Device Startup
After installation is completed, connect the supplied power cable to power via a power adapter to start up the device. The device starts up successfully when the display screen lights up.
Device Working
- Not Measuring Temperature
When the device is not measuring temperature, environment temperature, the a number of alarms and normal temperatures measured are displayed on the screen.
- Measuring Temperature
To take a temperature, place your wrist 1cm -2.5cm to the temperature measurement module. The screen displays as follows.
Device Activation
Long press the display screen. In the displayed password input interface, enter the password (the default is admin) to go to the Activation Config interface.
NOTE!
The default activation password is intended for initial use. Please enter the new activation password if it has been changed.
On the Activation Config interface, you can view the device’s basic information, configure the network, and change the password.
1. Basic Info
View device status in real-time, so that you can maintain the device better.
Click
in the Activation Config interface to enter Basic Info.
2. Network Setting
- Click
in the Activation Config interface.
- Set network parameters by referring to the table below.
Parameter Description IP Address Enter the IP address of the device.
The IP address of the device must be unique across the
network.Subnet Mask Enter the subnet mask of the device. Default Gateway Enter the default gateway of the device. - Click Save.
3. Activation Password
The default activation password is admin. Follow the steps below to change the activation password.
- Click
in the Activation Config interface.
- Enter the old password, new password, and confirm the new password as required.
NOTE!
- The password should be at least 8 characters including two elements of the following four: uppercase letters, lowercase letters, digits, and underscores, and hyphens.
- The Confirm field must be consistent with the New Password field.
4. Authentication Scene
Configure temperature measurement range and temperature alarm threshold.
- Click
in the Activation Config interface.
- The table below shows details.
Parameter Description Temperature range Valid range: 30-45. Default range:35.5-42.
Configure the range based on actual application scenes.Temperature alarm threshold When the temperature measurement module detects a temperature higher than the threshold, the abnormal temperature alarm is displayed on the GUI and the corresponding warning is sounded.
Valid range: 30-45. Default: 37.3. - Click Save.










in the Activation Config interface.



















