DINSTAR DP81 SIP Door Phone

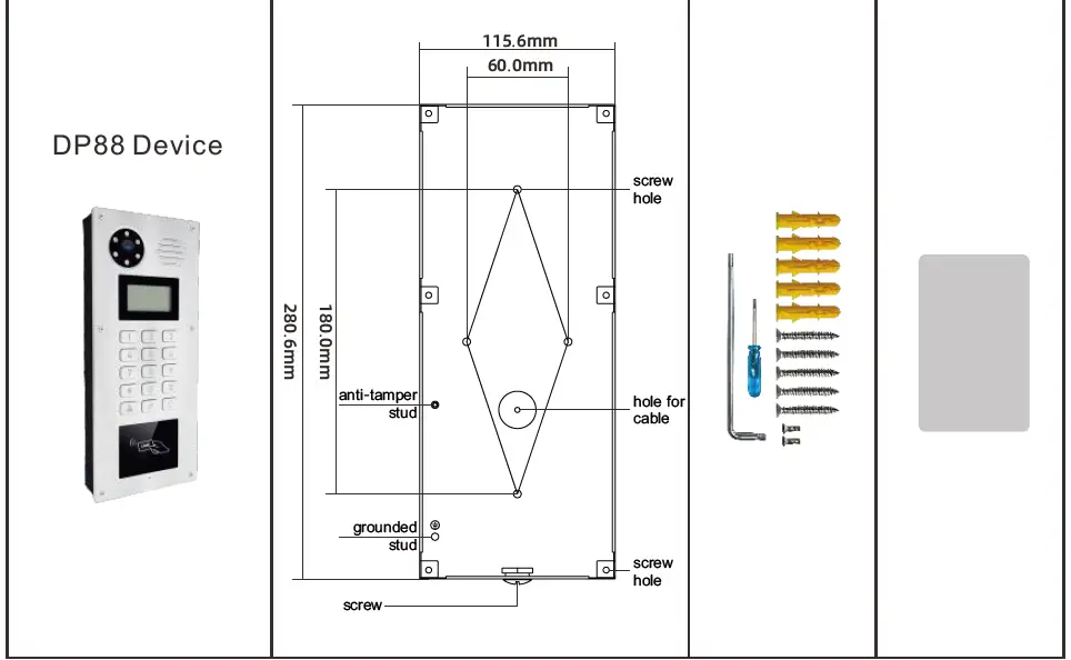
Packing List





Physical Specifications
| DP81 Device Dimension | 153*120*38mm |
| DP82 Device Dimension | 200*120*38mm |
| DP83 Device Dimension | 200*120*38mm |
| DP85 Device Dimension | 200*120*38mm |
| DP88 Device Dimension | 285*120*38mm |
Front Panel



Interface Description

| Number | Description |
| ① | Internet Port: Standard RJ45 port,10/100M Adaptive,suggest use CAT5 or CAT5E line. |
| ② | Power Adaptor: 12V/1A input,left port is “+”,right port is “-”. |
| ③⑤ | Door Exit Switch: To connect indoor exit button. |
| ④⑥ | External Switch/Door Lock: To connect door lock, alarm etc. |
| ⑦ | Wiegand Port: To connect wiegand card reader. |
| ⑧⑨ | Door sensor detection:to detect the door open/close status. |
| ⑩ | To mix device voice & remote call voice, then release them together. 1 port is for record, another port is for GND. |
| ⑪ | External active speakers realize audio power amplification. One is the audio signal line and the other is the bottom line. Note that the ground wire must be grounded, otherwise there will be noise. |
| ⑫ | Audio Input: To connect a external audio signal. |
| ⑬ | JP1 jumper. |
| ⑭ | JP6 jumper. |
JP1 Jumper,JP6 Jumper
There are two models for power supply.One is Internal power supply and the other is external power supply (The default is Internal power supply) .
Internal power supply: when electric-lock starting current less than 12V/500mA, can use internal drive model, electric lock port is 12V DC output.

Wiring Instructions
NO: Normal Open, working status of electric lock is open;COM: Common port;NC: Normal Closed, working status of electric lock is closed;




Installation
Preparations
- Check the following contents
L- type screwdriver x 1
Slotted screwdriver x 1
KA4 X30 mm screws x 5
25mm screw anchors x 5
M3* 8mm screws x 2 - Tools that may be required
L- type screwdriver
screwdriver (Ph2 or Ph3), hammer, RJ45 crimper Electric impact drill with an 6mm drill bit
Steps
- Drill chassis anchoring holes on a proper place. First, drill 4 holes on the wall with a spacing of 60*120 mm for the frame installation, then insert plastic expansion tube, and next Use KA4*30 screws to tighten back panel on the wall. Note: the space for DP88 is 60*180mm.
- Put the front panel to the frame. With 4 X M3*8mm screws. Tighten the front panel to back panel on the wall.
Note: DP88 should use 6 X M3*8mm screws.

IP address
After the device powered on ,the default is that device is getting the IP by DHCP automatically. Enter “963” on the device and press the dial key, then the phone will voice dial the device IP address. And the corresponding IP can be seen on the LCD display.
SIP Door Phone Setting

Log in the Device Web GUI
Input the IP of the device into the browser. (e.g. http://172.28.4.131), The default user name and password are both admin.

Set Door Access Parameter
Click “Door Phone>Access” to set Door Access Parameters. Including Open Door By DTMF Code of indoor units,Access Card (RFID card & password) and Open Door By HTTP (username & password of HTTP door open).

Door Open Setting
Click“Door Phone>Basic” to configure Switch Model and Card Reader Model.

IP Communication Solutions
Shenzhen Dinstar Co., Ltd.
Website: http://www.dinstar.com
Email:[email protected]




















