Dusch Pro+ BERNSTEIN Shower Toilet
OPERATORS MANUEL – I / 2018
LIABILITY DISCLOSURE
The supplier is not liable for damages caused by negligence in the following areas:
- This is an electronic device and must be grounded!
- Persons with disabilities or small children should not be allowed to use this product without supervision.
- This product is an electrical device, please pay attention to a proper installation.
Make sure there is proper ventilation.
SAFETY INSTRUCTIONS


- Do not insert or remove any electrical plug with wet hands. Electrical shock may occur.
- Do not damage the power cord and the plug. Otherwise, there is a risk of electric shock, short circuits, and fire.
- Do not use a damaged electrical plug, cord, or a loose plug-in. Any negligence could result in electrical shock, fire, short circuit, or damage to your product may occur.
- An electrical installation should be installed professionally. Any negligence could result in electric shock, short circuit, fire or damage to your device.
- Do not disassemble any device without expert knowledge. Any negligence could result in electric shock, short circuit, fire or damage to your device.
- Do not allow any fluids of any kind to come in contact with the electrical components. Any negligence could result in electric shock, short circuit, fire or damage to your device.
- Caution! Please pay attention to the water flow direction. Negligence can cause irreparable damage to your device.
- Don not bend, twist or bend the steel water hose, this could cause a leak.
TECHNICAL SPECIFICATIONS
| Wash | Rear Wash | |
| Lady Wash | ||
| Oscillating Wash | ||
| Pulsating Wash | ||
| Oscillation und pulsating stream | ||
| Water temperature settings | 5 Settings (Standard 3) | |
| Stream settings | 5 Settings (Standard 3) | |
| Stream direction settings | 5 Settings (Standard 5) | |
| Warm Air | Air dry settings | |
| Air temperature settings | 5 Settings (Standard 3) | |
| Hygiene | Smell absorption | |
| Self-cleaning jet | ||
| Manuell cleaning | ||
| User | profile | |
| Nightlight | settings | |
| Ambient light | ||
| Intelligent energy saver | ||
| Soft-Close seat | ||
| Control head | ||
| Remote Control | ||
| Rimless toilet | ||
| Water connection | G 3/8“ | |
| Electrical connection | 240 V, 50/60 Hz | |
| Watts | 950 W | |
| Length of cable | 1,80 m | |
| Waterpressure | 0,07 – 0,75 MPa (0,7-7,5 bar) | |
| Water temperature | 4°C – 35°C | |
| Operating temperature range | 4°C – 40°C | |
| Safety class | IPX4 | |
| Water Settings | Water | 350 ~ 650 Milliliter per minute |
| Water temperatur | 31°C – 39°C | |
| Wash cycle | 2 minutes | |
| Heating module | Warm water boiler | |
| Maximum Heat | 1200 W | |
| Safety Fuse | Thermo-cut-off-fuse, Fill cut-ofThermostat air gap | |
| Back | flow | |
| Air Dryer | Maximum airspeed | 5 m/s |
| Maximum drying power | 280 W | |
| Drying cycle | 3 minutes | |
| Warm air temperature | low (ca. 35°C) – high (ca. 50°C) | |
| Safety fuse | Thermo-Cutoff-Fuse | |
| Ventilator | Thermostat (Diatom pure) | |
| Safety Fuse | Grounding protection | |
| Net | 32 kg | |
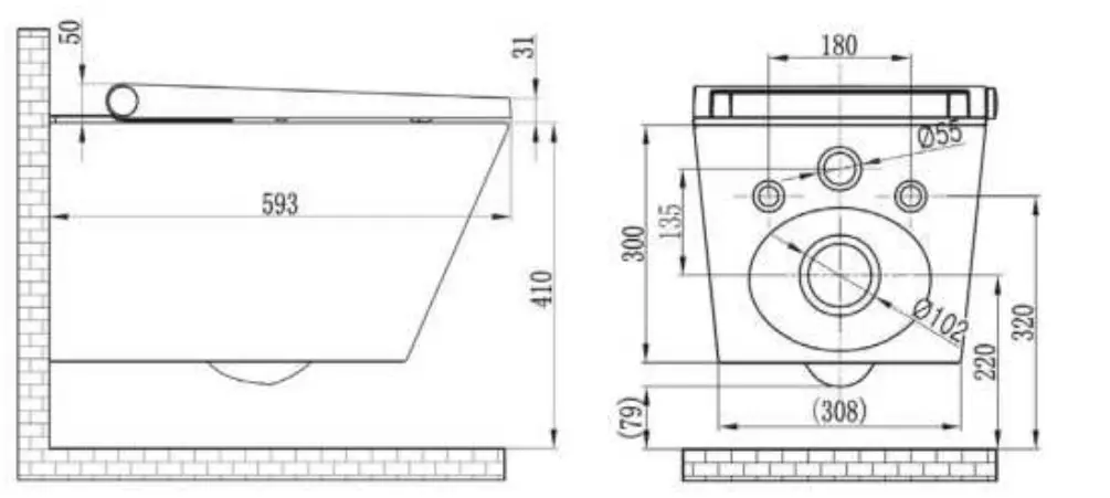
| Dimensions | B 384 x T 593 x H 380 mm | |
TECHNICAL DRAWINGS


OVERVIEW

REMOTE CONTROL

REAR WASH / LADYWASH
In the „seat-down“ position
Press the „Wash“-button on the remote control to activate the stream. The cycle stops automatically after 2 minutes.
The cycle can be interrupted using the Control Button.

OR
By utilizing the Control Button, one can change the settings. Turn the button clockwise to activate the Ladywash and counterclockwise to activate Rear Wash.
After 2 minutes the cycles end automatically. One can also interrupt the cycle by pressing the Stop button on the remote control

DRY OPERATION
sitting position
Please press the „Dryer“ button on the remote control. The dry time is 3
minutes and stops automatically.
ODER
Sitting position
The drying cycle can be started using the Multi-Control Button. Cannot be used during the Rear Wash or Ladywash cycles. Press once on the Multi Control Button, to start the warm air Dry Time. The Dry Time will end automatically after 3 minutes.
MENU SETTINGS
lRear Wash / Ladywash Mode
With the Massage Stream button, one can change the water stream settings.
oscillation: When one control light is on.
Pulsation: When two lights are on.
Oscillation and pulsation: When three lights are on.

MANUEL STOP
Rear Wash or Ladywash / Dry Mode
Simply press the „Stop“ button to turn off the water or ventilator.
OR
Press the MultiControl button.

WATER STREAM PRESSURE SETTING
lRear Wash / Ladywash Mode
Press the water setting button on the remote control, then press the + or -.
OR
One can adjust the water pressure by turning clockwise for + and counterclockwise for -.

ADJUSTING THE JET SETTINGS
- standard Setting is Level 5
- Rear Wash or Ladywash Mode
Press the Water Jet button.
To adjust, press + or -.
WATER TEMPERATURE SETTINGS
- Set Water Temperatur
- Rear Wash / Ladywash
Press „Temperatur adjust“ multiple times on the remote control until the water temp lights up.
Then press + or – to adjust.
OR
Press and hold the MultiControl button to
adjust the temperature. Clockwise for up and
counterclockwise for down.
Air Temperature Adjustment
Air Dry Mode
Press the Temp Adjust button multiple times until the temp lights up.
Then press + or – to adjust.
OR
Press and hold the MultiControl button to adjust the temperature. Clockwise for up and counterclockwise for down.

LIGHT SETTINGS
”Nightlight” Factory setting for light.
Press „Light“ several times on the remote control to change settings.
No Nightlight: The nightlight function is off when the control light is on.
“Always On“: The light is always on when two control lights are on.
Night Light on (Smart-Modus): The Nightlight comes on automatically. 3 control lights on.

VENTILATION SETTINGS
Factory Setting for Ventilation.
Ventilation starts when one sits on the seat. The Ventilation stops 1 minute after leaving.
Press the setting for ventilation several times to activate.

Stopping Ventilation: When one light is lit.
Starting Ventilation: When two lights are lit.
USER SETTINGS
- Saving Settings
Saving settings are only for Water Pressure, Jet Positioning, and The temperature on the remote control. Once you have the correct setting (for the individual setting) then press and hold User 1 or User 2 for longer than 3 seconds in order to save it to the individual User. Once finished with the programming, press the Stop button to end the programming. - Recalling the individual settings
On the remote control, please press User 1 or User 2 to recall the saved settings.
![]()
STANDBY-SETTING
To enter Standby, press the MultiControl button 3 seconds.
NOTE: this is not possible during the wash or dry cycles. To exit the Standby modus, simply press and hold the MultiControl button again for 3 seconds.
CLEANING THE WATER JET
- An automatic cleaning cycle will occur before and after usage.
- Manuel Cleaning
Open the seat and lid and turn the MultiControl button clockwise. Then pull the jet cap off. One can now clean the cap thoroughly and replace it.


TROUBLESHOOTING
The Wash-WC does not function.
Check the electrical connections.
Check the water connections and water flow or supply.
The seat sensor will not register. Please set the sitting position anew if the sensor does not register.
The jet retracts unexpectedly or prematurely.
The awash cycle is set at 2 minutes. After 2 minutes, the jet retracts automatically. Please reset Rear Wash and Ladywash anew, to restart the wash cycle.
A probable water supply could cause this problem. Check the water supply. It’s also possible that the seat sensor could have a false registry. Please reset the sitting position.
The water flow is not enough.
Increase the water flow. The water pressure must have 0,07 MPa.
Water Temperature.
If the water temperature is too warm or cold, please refer to the Installation Manual to readjust the temperature.
The water Jet is too slow.
The jet has an automatic cleaning cycle before and after usage. This is more than likely the reason for a slow retraction or protraction.
Low Air Temperature.
Please refer to the Installation Manual to reset the temperature.
The nightlight does not function correctly.
The nightlight function does not turn off when the room light is on. Reset the light settings.
Nightlight is always on.
If the Nightlight turns off only in the Nightlight modus, clean the MultiControl button thoroughly. However, please make sure not to cover the MultiControl button.
Water Jet retracts prematurely.
The Water Jet retracts automatically after 5 minutes to its‘ start position. By pressing the Stop button on the remote control, one can stop the wash cycle. Attention: for the Water Jet cleaning, close only the seat and not both the seat and lid.
When the light blinks twice and has a constant beeping tone.
The water temperature is too high. Disconnect electricity and turn off the water source. Wait one minute and reconnect both water and electricity and restart the Wash WC.
The light on the MultiControl button blinks further.
Please turn off the water and disconnect electricity and reconnect both, paying attention to water pressure. Restart the Wash WC again. If the problem persists, contact a professional.
SPECIFICATIONS
| Model+A1:B34l | Dusch Pro+ BERNSTEIN Shower Toilet |
| Volt, Frequency power | 240 V, 50/60 Hz |
| Rated Power | 950 W |
| Maximum consumption | 1300 W |
| Water pressure | |
| Minimal Water pressure | 0,07 MPa (0,7 bar) (flow pressure) |
| Max. Water pressure | 0,75 MPa (7,5 bar) |
| Operating temperature range | 4°C – 40°C |
| Product Dimensions | |
| WC-Seat | B 370 x T 593 x H 50 mm |
| WC | B 384 x T 593 x H 380 mm |
| Product Weight | ca. 32 kg |
| WC-Seat | ca. 6,5 kg |
| WC | ca. 25,5 kg |
| WC-Corpus | |
| Flush Amount | Normally 6 Liter (big), 3 Liter (small/short flush) |
| Water supply method | Uses existing water supply line |
| Drainage | Wall Waste Line |
| Waste Line | Drain |
| Shower nozzles | |
| Water supply method | Uses existing water supply line |
| Warm Water Jet | Internal water boiler |
| Nozzles | Motor drive exclusively for Rear Wash and Ladywash |
| Jet Spray Rear Wash | Ø 0,75 mm x 6 orifices |
| Jet Spray Ladydusche | Ø 0,65 mm x 7 orifices |
| Water usage Rear Wash | 0,35 – 0,65 l/min (5-level setting), Water pressure 0,2 Mpa |
| Ladywash water usage | 0,35 – 0,65 l/min (5-level setting), Water pressure 0,2 Mpa |
| Warm water temperature | low ca. 31°C – high ca. 39°C (5-level setting) |
| Water heater | 1200 W |
| Safety devices | Thermal fuses, liquid level switches, flow switches |
| Warm air | |
| Air | 5 m/s |
| Warm air temperature range | low (ca. 35°C) – high (ca. 50°C) |
| Warm Heater | 280 W |
| Safety devices | Thermal fuse, flow switch |
| Ventilation | |
| Ventilation type | Diatom |
| Ventilation volume | Air ventilation volume: 0,08 m³/min |
| Remote control | |
| Dimensions | B 55 x T 180 x H 14 mm |
| Batteries | AAA Battery: 2 pieces, Batteries, not included |
| Power cable | 1,8 m |



















