GOOD GRACIOUS 63044-OAK-HD Electric Heater

ELECTRIC HEATER PRODUCT INFORMATION
The Electric Heater is a home appliance designed to provide warmth in a room. It is important to follow the safety instructions and precautions provided in the user manual to avoid any accidents or hazards. The heater has an electrical parameter of 120V AC, 60Hz frequency, and 1500W power. The package includes various parts required for installation, such as screws, wall anchors, and safety cables.
IMPORTANT SAFETY INSTRUCTIONS
- Do not place the electric heater in direct sunlight.
- Read all instructions before plugging the heater into the power outlet.
- Follow all safety instructions and precautions to avoid fire, electric shock, and injury to persons.
- Do not modify the plug or use adaptors to defeat the purpose of the grounding feature.
- Avoid skin contact with the heater when in use to avoid burns.
- Keep children and pets away from the heater and controls.
- Use wall anchor safety cable to reduce the risk of accidental tipping over of the heater.
PRODUCT USAGE INSTRUCTIONS
- Find a location for the electric heater that is protected from direct sunlight.
- Read all instructions before plugging in the electric heater into a 15A/120V outlet.
- Ensure that all fireplace controls are in the OFF position before operation.
- Use the heater controls located at the top right corner of the insert to adjust the temperature to your desired level.
- Hold down the temperature button for 5 seconds to toggle between Celsius (C) and Fahrenheit (F) temperature scales.
- When turning off the power button, all other heater functions will stop, even if the buttons are in the ON position.
- Replace the battery of the remote control with a CR2025 battery and follow the diagram at the back of the remote handset to install the new battery.
ATTENTION
- Find a location for the electric heater that is protected from direct sunlight.
- Do not plug the electric heater into the power outlet before you read all instructions.
IMPORTANT SAFETY INSTRUCTIONS
SAVE THESE INSTRUCTIONS FOR FUTURE USE
WHEN USING ELECTRICAL APPLIANCES, BASIC PRECAUTIONS SHOULD ALWAYS BE FOLLOWED TO REDUCE THE RISK OF FIRE, ELECTRIC SHOCK, AND INJURY TO PERSONS, INCLUDING THE FOLLOWING:
Read all instructions before using this heater. Failure to follow these important safety instructions may cause fire, electric shock or damage. Following proper safety and operating instructions is the responsibility of the owner.
- Grounding (If necessary) – this heater is for use on 120 volts. DO NOT attempt to modify the plug in any way or use adaptors to defeat the purpose of the grounding feature.
- This heater is hot when in use. To avoid burns, do not let skin come in direct contact with hot surfaces. The grill directly in front of the heater outlet becomes hot during heater operation.
- Front of fireplace should remain not blocked while in use.
- CAUTION: Extreme caution is necessary when any heater is used by or near children or those with disabilities. Never leave the heater operating unattended.
- Do not operate any heater with a damaged cord or plug or after the heater malfunctions, has been dropped or damaged in any manner. Take heater to authorized service facility for examination, electrical or mechanical adjustment or repair.
- Under no circumstance should this electric heater be modified. Parts having to be removed for servicing must be replaced by a certified repair center prior to operating this electric heater again.
- Do not use outdoors or anywhere it can get wet. This heater is not intended for use in bathrooms, laundry areas and similar indoor locations. Never locate heater in bathrooms, laundry areas and similar indoor locations. Never locate this appliance where it may fall into a bathtub or other water container.
- Do not run cord under carpeting. Do not cover cord with throw rugs, runners, or similar coverings. Arrange cord away from traffic area and where it will not be tripped over.
- To disconnect heater, turn off all controls, then remove plug from outlet.
- Connect to property grounded outlets only.
- Do not insert or allow foreign objects to enter any ventilation or exhaust opening as this may cause an electric shock or fire, or damage the heater.
- To prevent a possible fire, do not block air intakes or exhaust in any manner. Do not use on soft surfaces, like a bed, where openings may become blocked.
- CAUTION: A heater has hot and arcing or sparking parts inside. Do not use it in areas where gasoline, propane, paint, or flammable liquids are used or stored or where the unit will be exposed to flammable vapors. The heater should not be used as a drying rack for clothing. Do not hand any decorations on the heater.
- Do not modify this heater. Use this heater only as described in this manual. Any other use not recommended by the manufacturer may cause fire, electric shock, or injury to persons.
- Avoid the use of an extension cord because the extension cord may overheat and cause a risk of fire. However, if you have to use an extension cord, the cord shall be No.16AWG minimum size and rated not less than 1875 watts, and 3-wire cord with grounding type plug and cord connector.
- Do not plug this product into a receptacle controlled by a wall switch or dimmer.
- Always use a certified electrician should new circuits or outlets be required.
- Always disconnect power before performing any cleaning, maintenance or relocation of the heater.
- For off-season storage, keep in a dry place.
NOTE: Procedures and techniques that are considered important enough to emphasize. CAUTION: Procedures and techniques, which, if not carefully followed, will result in damage to the equipment or personal property or may cause personal injury.
WARNING: Procedures and techniques, which, if not carefully followed, will expose the user to the risk of serious injury, illness or death.
WARNING:
This heater and parts become hot when in use. The area directly around and under the heater must be clear and free of any obstructions.
DO NOT ALLOW CHILDREN TO OPERATE THIS HEATER. KEEP CHILDREN AND PETS AWAY FROM HEATER AND CONTROLS.
Electrical Parameter
- Power supply: 120V AC
- Frequency: 60Hz
- Power: 1500W
NOTE: If the supply cord is damaged, it must be replaced by the manufacturer, its service agent or similarly qualified persons in order to avoid a hazard.
PARTS AND TOOLS


Installation



OPERATION
After reading all the instructions, make sure that all the fireplace controls are in the OFF position. Plug the fireplace into a 15A/120V outlet.
The heater controls are located at top right corner of the insert.

:Press this button for main power function and flame effect. Press again will stop the main power function. Once the heater is switched off, the unit will keep working with air flow for 60 more seconds.
: Press this button to toggle between the two temperature scales. The corresponding Celsius (C) or Fahrenheit (F) LED indicates the current setting.
: Press this button for timer function. The letters ‘0H’ to ‘8H’ will appear on the LED screen. ‘0H’ means there is no set running time and heater will run continuously. The letters ‘1H’ to ‘8H’ mean the number of hours that the heater will operate before shutting off.
: Press this button, the numbers ‘6’ to ‘0’ will appear on the LED screen. ‘6’ means there is highest flame brightness. And ‘0’ means there is no flame effect.
: Press up or down button to the desired temperature. When desired ambient temperature is reached, the heater will automatically stop heating. When the ambient temperature drops below the desired temperature 2℃ , the heater will resume heating. Press this button on machine to get the desired temperature. Hold it for 5 seconds o toggle between the two temperature scales. The corresponding Celsius (C) or Fahrenheit (F) LED indicates the current setting.
Note: When the power button is turned off, all other heater functions will stop even though the buttons may be in the on position.
Remote Control Battery Replacement:
Replace with a CR2025 battery and follow the diagram at the back of remote handset to install the new battery.
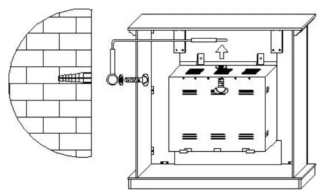
WALL ANCHOR SAFETY CABLE
The use of wall anchor safety cable is highly recommended in order to reduce the risk of the fireplace being tipped over accidentally.
WARNING: This cable may reduce possible risk of injury if the fireplace is improperly handled, but is not a substitute for proper adult supervision. Children should not be left unattended near any heater.
- Drill a 5/16 in (8mm) hole in the wall. Insert the plastic wall anchor into the hole and gently tap until the flange on the anchor is against the wall surface.
- Position the back edge of the mantel close to the wall.
- Attach the safety cable to the mantel using the screw for mantel.
- Use the screw for wall to attach the other end of safety cable to the wall.
- Make sure all screws are tight.

Maintenance
WARNING: Completely disconnect power before attempting any maintenance or cleaning, to reduce the risk of fire or electric shock. Maintenance should only be performed by a certified technician.
Cleaning:
Before cleaning any parts of the fireplace make sure to first turn off the controls and then unplug the unit from power source.
CAUTION: Wait until the unit has completely cooled before attempting any cleaning.
Cleaning Glass Panel: Remove dust with clean dry cloth. Remove fingerprints and other marks from glass door by using a clean damp cloth. Do not use abrasive cleaners or spray liquids on glass door surfaces.
Metal and metal painted parts should be cleaned with clean damp cloth only. Do not use abrasive cleaners or spray liquids on these surfaces.


















