DITEC AS45 Panic Device
Product Information: Installation Manual for Panic Devices
The product is a panic device that can be installed on a door to allow quick exit in case of emergency. The manual provides instructions for the installation of different types of panic devices, such as AST mobile wing, ASME mobile wing, ASMI panic system, and ASMI mobile wing. The manual provides a list of required tools and diagrams for different parts of the installation process.
Product Usage Instructions
Before starting the installation process, make sure that you have all the necessary tools listed in the manual, such as a tape measure, drill, Phillips screwdriver, pliers, saw/level, etc. Follow the step-by-step instructions provided in the manual for the specific type of panic device you are installing.
For example, if you are installing an AST mobile wing panic device, follow these general steps:
- Ensure that the width of the mobile panic wing (/M) is less than or equal to 1000mm for this device.
- Attach the brushes SPAZ14 to prevent them from sliding.
- Insert detail [2] into the lower portion of the wing and fasten it.
- Fasten detail [] by tightening the eight fastening screws.
- Trim the brush SPAZ4811 where it connects with detail.
- Insert detail >@ in the same manner as seaO.
- Attach the supplied hook to the lower part of the wing to prevent seal 87 from sliding.
- Make any necessary adjustments during installation, as specified in the manual.
Follow similar steps for other types of panic devices as specified in the manual. If you have any questions or difficulties during the installation process, refer to the manual or contact the manufacturer for assistance.
LIST OF PROFILES AND SEALS
LIST OF UTENSILS
All right reserved
All data and specifications have been drawn up and checked with the greatest care. The manufacturer cannot however take any responsibility for eventual errors, ommisions or incomplete data due to technical or illustrative purposes.
AST

AST panic devices are TUV approved for use with DITEC TEN and VALOR model automations. Each carriage installed must be connected to the mobile panic wing by at least two fastening points. The wings to be used are intended as having been built with DITEC PAM45L and PAM45M series profiles. The maximum height of the mobile panic wing (HM) must not exceed 2400 mm. The dimensions (LM) and the maximum weight of the door that can be knocked out must comply with the following graphs for one and two mobile door automations.
Note: For dimensions and/or weights which are not accounted for in the diagram, confirm the feasibility of the project with our technical-commercial offices.

- If the width of the mobile panic wing (LM) is greater than 1000 mm, add reinforcement 4173 (see fig. 1)
- If the width of the mobile panic wing (LM) is greater than 1200 mm, add reinforcement the third carriage.
- If the weight of the mobile panic wing is greater than 90 kg, add kit KAS45 to the lower portion (see ref. 1** fig. 2).
Note: (Only for PAM45L) If the weight of the door does not exceed 90 kg, use the KIF45 kit in the lower part (see ref. 10* fig 2). - The maximum height of the fixed panic wing (HF) must not exceed 2400 mm.
- The width of the fixed panic wing (LF) must not exceed 1600 mm and the weight must not exceed 100 ka.
| REF. | KIT | Q.T. AST1 | Q.T. AST2 | SERIE |
| 10* | KIT | AST1 | Q.T. | PAM45L |
| 1** | KAS45 | AST2 | SERI- ES | PAM45L PAM45M |
| 2-3-4-5-6- 7-25 | KASM145 | 1 | PAM45L PAM45M | |
| KASM245 | – | 1 | ||
| 10 | KIF45 | 1 | 2 | PAM45L |
| 3820 3924 1600 4173* SPAZ4811 | KASMG14 KASMN14 |
1 |
2 | PAM45L PAM45M |
| 1-11-12-13- 14-15-16- 17-18-19- 20-21-22- 23-24-26 |
KAST1A45F |
1 |
2 | PAM45L PAM45M |
| 27 | 1CELPR | 2 | 2 | PAM45L PAM45M |
AST MOBILE WING INSTALLATION




- Insert the seal 3839 into the PAM45M profiles 3800, 3808 and 3813 or else the PAM45L profiles 3599, 3821 and 3822, as shown in the diagram.

- Shorten the seal to the size of the profile.

- Insert detail [1] into the PAM45M profiles 3800 and 3813 or else the PAM45L profiles 3599 and 3822, and fasten it as shown in the diagram.


- Join the vertical profiles with the horizontal profiles and fa- sten them as shown in the diagram.
Note: With PAM45L profiles, the glass [9] must be inserted when joining the vertical and horizontal profiles.
The glass support spacers must be properly applied to the four sides 1.26 and must be adjusted as shown in paragraph 1.27.

- Fasten profile 3805 to the lower portion of the wing, as shown in the diagram.

- Insert the brushes SPAZ14 as shown in the diagram, and block them to prevent them from sliding.

- Insert detail [2] into the lower portion of the wing and fasten it as shown in the diagram.

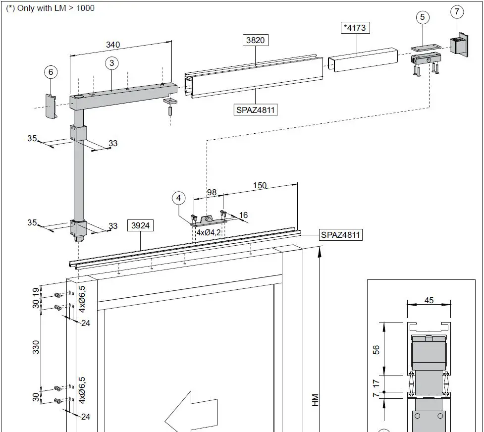
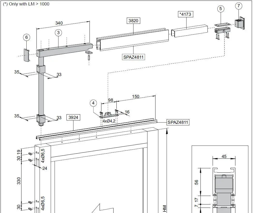
- Insert detail [3] into the upper portion of the wing, as shown Fasten detail (3] by tightening the eight fastening screws, as shown in the diagram

- Insert the brush SPAZ4811 into profiles 3924 and 3820, as shown in the diagram.

- Insert the brush SPAZ4811 into profiles 3924 and 3820, as shown in the diagram.

- Fasten profile 3924 to the upper portion of the wing, as shown in the diagram.

- Fasten detail (4] to profile 3924, as shown in the diagram
Note: Be sure to take note of the wing’s opening direction.
- Trim the brush SPAZ4811 where it connects with detail (5], as shown in the diagram. Note: Be sure to take note of the wing’s opening direction

- Insert profile 3820 into detail [3], as shown in the digram

- Fasten detail [3] to profile 3820, as shown in the diagram.
Note: during the installation of the fixture, in order to obtain the proper horizontal position of the mobile panic wing. loosen the fastening screws and adjust the screw shown in detail (3), as shown in the diagram.

- If the width of the mobile wing is greater than 1000 mm, insert reinforcement 4173 into profile 3820. as shown in the diagram.

- Insert detail [5] into profile 3820. as shown in the diagram.
Note: Be sure to take note of the wing’s opening direction
- Position detail [5] in correspondence to detail [4] and fasten it as shown in the diagram.a.

Note: during the installation of the fixture. in order to obtain the proper breakaway strength for the mobile wing, use the lateral screws to adjust detail (5], as shown in the diagram 2.
- Insert detail 6] into profile 3820 near detail (3], as shown in the diagram.

- Insert the seal 3837 onto the PAM45M profile 3808, or else the PAM45L profile 3821, as shown in the diagram.
Attention: Orient seal 3837 as indicated in the fixtures manual.
Make a hole in the seal that corresponds with the thickness adjustment of the push glass [26] as shown in the picture.
- Insert the seal 3837 onto the PAM45M profile 3808, or else the PAM45L profile 3821, as shown in the diagram.
- Insert detail [7) into profile 3820, as shown in the dia- gram.
Attention: Orient detail [7] in the same manner as seal 3837. - Attach the supplied hook to the lower part of the wing, as shown in the diagram, in order to prevent seal 3837 from sliding.

- Attach profile 3831 to the PAM45M profile 3808, or else to the PAM45L profile 3821, as shown in the diagram


- Attach profile 3831 to the PAM45M profile 3808, or else to the PAM45L profile 3821, as shown in the diagram.

- Insert seal 3838 into profile 3831, as shown in the dia- gram, and block it to prevent it from sliding

- Close the visible holes with the supplied caps, as shown in the diaaram

- With PAM45M profiles, insert the glass [9] into the mobile wing, as shown in the diagram.

- -Set the glass spacers [AJ, shown in the diagram, so that they provide proper support.
N.B.: when installing the fitting, adjust the push glass spacers as shown in the picture 2, for the mobile door wing to reach the horizontal position.
- With PAM45M profiles, insert the seals into the glass-blo- king profiles [8], as shown in the diagram.

AST FIXED WING INSTALLATION



- Insert the seal 3839 into the PAM45M profiles 3800, 3808 and 3813 or else the PAM45L profiles 3599, 3821 and 3822, as shown in the diagram.

- Shorten the seal to the size of the profile.


- Join the vertical profiles with the horizontal profiles and fasten them as shown in the diagram.
Note: With PAM45L profiles, Insert detail [10] into profiles 3599 and 3822, as shown in the diagram.
Note: With PAM45L profiles, the glass [9] must be inserted when joining the vertical and horizontal profiles.
The glass support spacers must be properly applied to the four sides 2.26 and must be adjusted as shown in paragraph 2.27.
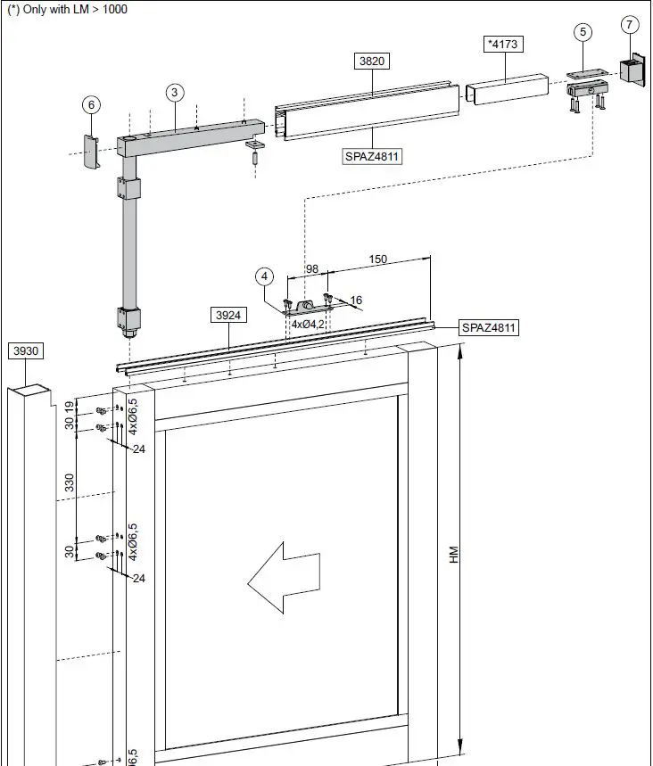
- Insert detail [11] into the lower portion of the wing and fasten it as shown in the diagram.

- Insert the brushes SPAZ14 upon profile 3805 and block them to prevent them from sliding. Fasten profile 3805 to the lower portion of the wing, as shown in the diagram

- Insert detail [12] into the lower portion of the wing and fa- sten it as shown in the diagram.

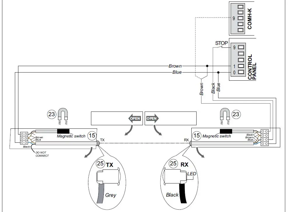
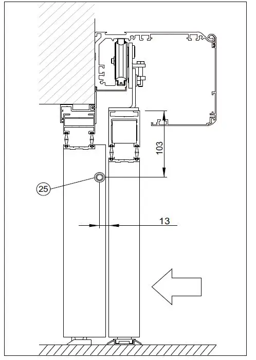
- Insert the photocell [25], which detects the opening of the mobile wing, into profile 3831, as shown in the diagram.
N.B.: the photocells [27] that detect the presence of people and objects in the passage chamber can be inserted as shown in picture 4.
- Feed the cable through the upper portion of the wing and make it to come out in order to allow for the connection of the magnetic limit switch, as shown in the diagram.

- Make the limit switch and photocells cables come out of the hinge side vertical upright, as shown in the diagram

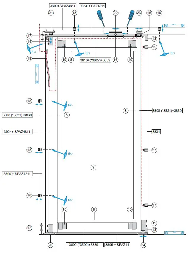
- Attach profile 3831 and insert detail [13], as shown in the diagram.

- Insert and fasten detail [14], as shown in the diagram.
Note: During the installation of the fixture, adjust detail [14] so that detail [21] is properly connected between the fixed wing ad the perimeter profile.
- Attach the magnetic limit switch [15] to its relative bracket, as shown in the diagram

- Insert the brush SPAZ4811 into profiles 3924 and 3809, as shown in the diagram, and block it to prevent it from sliding.

- Fasten detail [15] to profile 3924, as shown in the dia- gram.

- Feed the cable through the upper portion of the wing and make it to come out in correspondence to the photocell cable, as shown in the diagram.

- Fasten profile 3924 to the upper portion of the wing, and perform the proper connections, as shown in the diagram, ma- king reference to page 16. 2.17 Fasten detail [16] to profile 3924, as shown in the diagram. Note: Be sure to take note of the wing’s opening direction.

- Fasten profile 3924 to the hinge side vertical upright, as shown in the diagram.

- Fasten profile 3924 to the hinge side vertical upright, as shown in the diagram.

- Fasten detail [17], as shown in the diagram.

- Fasten the expanders [18] to the perimeter profiles 3809, as shown in the diagram, using the appropriate 6 mm Allen key.
Note: During the installation of the fixture, the perimeter pro-files 3809 must be attached to the wall and leveled with the expanders.
- Fasten detail [19] to profile 3809, as shown in the diagram.
Note: During the installation of the fixture, the cables coming out of the fixed wing must be fed through detail [19].
- Fasten detail [20] to the lower portion of profile 3809, as shown in the diagram.

- Fasten detail [21] to the upper portion of profile 3809, as shown in the diagram.

- Fasten detail [22] to profile 3809, situated above the wing, as shown in the diagram.
Note: During the installation of the fixture, detail [22] must be positioned in correspondence to its internal connection with de- tail [16] and the brush SPAZ4811 must be trimmed. In addition, in order to obtain the proper breakaway strength for the fixed wing, use the lateral screws to adjust detail [22].
- During the installation of the fixture, detail [23] must be positioned in correspondence to the magnetic limit switch [15]. Drill the appropriate holes in order to fasten detail [23] to profile 3809, situated above the wing, as shown in the diagram.

- With PAM45M profiles, insert the glass [9] into the fixed wing, as shown in the diagram. J 2.27 Set the glass spacers [A], shown in the diagram, so that they provide proper support.

- Set the glass spacers [A], shown in the diagram, so that they|

- With PAM45M profiles, insert the seals into the glass-blo- king profiles [8], as shown in the diagram.

- With PAM45M profiles, insert the glass-blocking profiles [8] onto the mobile wing until they click, as shown in the diagram.

- During the installation of the fixture, position detail [24] in correspondence to detail [11] on the fixed wing and fasten it to the floor so that it is aligned with the fixture, as shown in the diagram

- During the installation of the fixture, fasten profile 1600 to the floor, as shown in the PAM45L AST or PAM45M AST manual.
Note: Do not paint profile 1600 after it has been fastened to the floor
AST ELECTRICAL CONNECTIONS


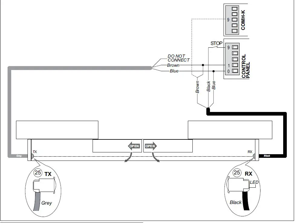
- Perform the electrical connections as shown in the diagram.
Attention: If the COMH-K function selector is used, connect the receiver’s brown cable to terminal 9 on the selector. - Any other arrest devices must be connected in series to terminal 9 (STOP).
- When the receiver (RX) and the transmitter (TX) of the photocell SICUR2 are powered and correctly aligned, the green LED on the transmitter TX and the yellow LED on the receiver RX will light up. The yellow LED on the receiver will go out when they are no longer correctly aligned. Once installation has been completed, check to make sure that the force required to open each single wing does not exceed 220 N. This reading must be taken at 1 m from floor level in corre- spondence to the closure side of the wing opposite to the hinges). The breakaway force can be adjusted as indicated in paragraph 1.18 and 2.24.
- Check that the door’s automatic movement stops when the wings (mobile and fixed) are released. The SICUR2 photocell serves the purpose of detecting the release of the
mobile wings while the magnetic micro-switch serves the purpose of detecting the release of the fixed wings.
If installed, the photocells CELPR [27] that detect the presence of people and objects in the passage chamber must be connected as shown in the manual of the electronic control panel of the automation system.
ASME

- ASME panic devices are TÜV approved for use with DITEC TEN and VALOR model automations.
- Each carriage installed must be connected to the mobile panic wing by at least two fastening points.
- The wings to be used are intended as having been built with DITEC PAM45L and PAM45M series profiles.
Note: The ASME panic system can also be applied to wings which have been built with non-Ditec profiles. - The kits KASM145, KASM245 and KASMG14/KASMN14 must be used, as indicated in the table.
- The size and weight limits indicated below must be respected when assembling the wings.
- The aluminum profiles used to construct the panic wings must be compatible with the ASME panic system.
- Perform any work required in order to adapt the kits, making reference to the measurements indicated in the PAM45 ASME manuals.
- TÜV approval will be void in the case that non-Ditec profiles are employed.
- The maximum height of the mobile panic wing (HM) must not exceed 2400 mm.


If the width of the mobile panic wing (LM) is greater than 1000 mm, add reinforcement 4173 (see fig. 5)
If the width of the mobile panic wing (LM) is greater than 1200 mm, add reinforcement the third carriage.
If the weight of the mobile panic wing is greater than 90 kg, add kit KAS45 to the lower portion (see ref. 1** fig. 6).
Note: (only for PAM45L) If the weight of the wing is not greater than 90 kg, use kit KIF45 to the lower portion (see ref. 10* fig. 6).
The following table lists the contents of the kits.
| RIF. | KIT | Q.T. ASMI1 | Q.T. ASMI2 | SERIES |
| 10* | KIF45 | 1 | 1 | PAM45L |
| 1** | KAS45 | 1 | 2 | PAM45L PAM45M |
| 1-26 | KASM1A45F | 1 | 2 | PAM45L PAM45M |
| 2-3-4-5-6- 7-25 | KASM145 | 1 | 1 | PAM45L PAM45M |
| KASM245 | – | 1 | ||
| 3820 3924 1600 4173* SPAZ4811 | KASMG14 KASMN14 |
1 |
2 | PAM45L PAM45M |
ASME MOBILE WING INSTALLATION





- Insert the seal 3839 into the PAM45M profiles 3800, 3808 and 3813 or else the PAM45L profiles 3599, 3821 and 3822, as shown in the diagram.

- Shorten the seal to the size of the profile.


- Insert detail [1] into the PAM45M profiles 3800 and 3813 or else the PAM45L profiles 3599 and 3822, and fasten it as shown in the diagram.


- Join the vertical profiles with the horizontal profiles and fasten them as shown in the diagram.
Note: With PAM45L profiles, the glass [9] must be inserted when joining the vertical and horizontal profiles.
The glass support spacers must be properly applied to the four sides 4.24 and must be adjusted as shown in paragraph 4.25.
- Fasten profile 3805 to the lower portion of the wing, as shown in the diagram.

- Insert the brushes SPAZ14 as shown in the diagram, and block them to prevent them from sliding.

- Insert detail [2] into the lower portion of the wing and fasten it as shown in the diagram. 4.8 Insert detail [3] into the upper portion of the wing, as shown in the diagram.

- Insert detail [3] into the upper portion of the wing, as shown in the diagram.

- Fasten detail [3] by tightening the eight fastening screws, as shown in the diagram.

- Insert the brush SPAZ4811 into profiles 3924 and 3820, as shown in the diagram, and block it to prevent it from sliding.

- Fasten profile 3924 to the upper portion of the wing, as shown in the diagram.

- Fasten detail [4] to profile 3924, as shown in the diagram.
Note: Be sure to take note of the wing’s opening direction.
- Trim the brush SPAZ4811 where it connects with detail [5], as shown in the diagram. Note: Be sure to take note of the wing’s opening direction.

- Insert profile 3820 into detail [3]. as shown in the diagram.

- 4.15 Fasten detail [3] to profile 3820, as shown in the diagram.

Note: during the installation of the fixture, in order to obtain the proper horizontal position of the mobile panic wing, loosen the fastening screws and adjust the screw shown in detail [3], as shown in the diagram.
- If the width of the mobile wing is greater than 1000 mm, insert reinforcement 4173 into profile 3820, as shown in the diagram.

- Insert detail [5] into profile 3820, as shown in the diagram.
Note: Be sure to take note of the wing’s opening direction.
- Position detail [5] in correspondence to detail [4] and fasten it as shown in the diagram.
Note: during the installation of the fixture, in order to obtain the proper breakaway strength for the mobile wing, use the lateral screws to adjust detail [5], as shown in diagram 6.
- Insert detail 6] into profile 3820 near detail [31, as shown in the diagram.

- Insert the seal 3837 onto the PAM45M profile 3808, or else the PAM45L profile 3821, as shown in the diagram.
Attention: Orient seal 3837 as indicated in the fixture’s manual. Make a hole in the seal that corresponds with the thickness adjustment of the push glass [26] as shown in picture 6.
- Insert detail [7] into profile 3820, as shown in the diagram.
Attention: Orient detail [7] in the same manner as seal 3837.
- Attach the supplied hook to the lower part of the wing, as shown in the diagram, in order to prevent seal 3837 from sliding.


- Attach profile 3925 to the PAM45M profile 3808, or else to the PAM45L profile 3821, as shown in the diagram.

- With PAM45M profiles, insert the glass [9] into the mobile wing, as shown in the diagram.

- Attach profile 3925 to the PAM45M profile 3808, or else to the PAM45L profile 3821, as shown in the diagram.

- With PAM45M profiles, insert the glass [9] into the mobile wing, as shown in the diagram.

- With PAM45M profiles, insert the glass-blocking profiles [8] onto the mobile wing until they click, as shown in the diagram.
ASME ELECTRICAL CONNECTIONS


- The SICUR2 photocell must be installed upon the head of the automation.
- Perform the electrical connections as shown in the diagram.
Attention: If the COMH-K function selector is used, connect
the receiver’s brown cable to terminal 9 on the selector. Any other arrest devices must be connected in series to terminal 9 (STOP). - When the receiver (RX) and the transmitter (TX) of the photocell SICUR2 are powered and correctly aligned, the green LED on the transmitter TX and the yellow LED on the receiver RX will light up. The yellow LED on the receiver will go out when they are no longer correctly aligned.
- Once installation has been completed, check to make sure that the force required to open each single wing does not exceed 220 N.
This reading must be taken at 1 m from floor level in corre- spondence to the closure side of the wing (opposite to the hinges). The breakaway force can be adjusted as indicated in paragraph 4.18. - Check that the door’s automatic movement stops when the mobile wings are released. The SICUR2 photocell serves the purpose of detecting the release of the mobile wings.
ASMI

ASMI panic devices are TÜV approved for use with DITEC TEN and VALOR model automations
Attention: The ASMI panic system will only function while the wings are completely closed.
Each carriage installed must be connected to the mobile panic wing by at least two fastening points.
The wings to be used are intended as having been built with DITEC PAM45L and PAM45M series profiles.
Note: The ASMI panic system can also be applied to wings which
have been built with non-Ditec profiles.
The kits KASM145, KASM245 and KASMG14/KASMN14 must be used, as indicated in the table.
The size and weight limits indicated below must be respected when assembling the wings.
The aluminum profiles used to construct the panic wings must be compatible with the ASMI panic system. Perform any work required in order to adapt the kits, making reference to the measurements indicated in the PAM45 ASMI manuals.
TUV approval will be void in the case that non-Ditec profiles are employed.
The maximum height of the mobile panic wing (HM) must not exceed 2400 mm.
The dimensions (LM) and the maximum weight of the door that can be knocked out must comply with the following graphs for one and two mobile door automations.
Note: For dimensions and/or weights which are not accounted for in the diagram, confirm the feasibility of the project with our technical-commercial offices.

If the width of the mobile panic wing (LM) is greater than 1000 mm, add reinforcement 4173 (see fig. 7)
If the width of the mobile panic wing (LM) is greater than 1200 mm, add reinforcement the third carriage.
If the weight of the mobile panic wing is greater than 90 kg, add kit KAS45 to the lower portion (see ref. 1** fig. 8).
Note: (only for PAM45L) If the weight of the wing is not greater than 90 kg, use kit KIF45 to the lower portion (see ref. 10* fig. 8).
The following table lists the contents of the kits.
| RIF. | KIT | Q.T. ASMI1 | Q.T. ASMI2 | SERIES |
| 10* | KIF45 | 1 | 1 | PAM45L |
| 1** | KAS45 | 1 | 2 | PAM45L PAM45M |
| 1-26 | KASM1A45F | 1 | 2 | PAM45L PAM45M |
| 2-3-4-5-6- 7-25 | KASM145 | 1 | 1 | PAM45L PAM45M |
| KASM245 | – | 1 | ||
| 3820 3924 1600 4173* SPAZ4811 | KASMG14 KASMN14 |
1 |
2 | PAM45L PAM45M |
ASMI MOBILE WING INSTALLATION




- Insert the seal 3839 into the PAM45M profiles 3800, 3808 and 3813 or else the PAM45L profiles 3599, 3821 and 3822, as shown in the diagram.

- Shorten the seal to the size of the profile..


- Insert detail [1] into the PAM45M profiles 3800 and 3813 or else the PAM45L profiles 3599 and 3822, and fasten it as shown in the diagram.


- Join the vertical profiles with the horizontal profiles and fasten them as shown in the diagram.
Note: With PAM45L profiles, the glass [9] must be inserted when joining the vertical and horizontal profiles.
The glass support spacers must be properly applied to the four sides 6.25 and must be adjusted as shown in paragraph 6.26.
- Fasten profile 3805 to the lower portion of the wing, as shown in the diagram.

- Insert the brushes SPAZ14 as shown in the diagram, and block them to prevent them from sliding.

- Insert detail (2] into the lower portion of the wing and fasten it as shown in the diagram.

- Insert detail [3] into the upper portion of the wing, as shown in the diagram

- Fasten detail [3] by tightening the eight fastening screws, as shown in the diagram.

- Insert the brush SPAZ4811 into profiles 3924 and 3820, as shown in the diagram, and block it to prevent it from sliding

- Fasten profile 3924 to the upper portion of the wing, as shown in the diagram.

- Fasten detail [4] to profile 3924, as shown in the diagram.
Note: Be sure to take note of the wing’s opening direction.
- Trim the brush SPAZ4811 where it connects with detail [5], as shown in the diagram. Note: Be sure to take note of the wing’s opening direction.

- Insert profile 3820 into detail [3], as shown in the diagram.

- Fasten detail [3] to profile 3820, as shown in the diagram.

Note: during the installation of the fixture, in order to obtain the proper horizontal position of the mobile panic wing, loosen the fastening screws and adjust the screw shown in detail 3], as shown in the diagram.
- If the width of the mobile wing is greater than 1000 mm, insert reinforcement 4173 into profile 3820, as shown in the diagram.

- Insert detail (5] into profile 3820, as shown in the diagram
Note: Be sure to take note of the wing’s opening direction.
- Position detail [5] in correspondence to detail (4] and fasten it as shown in the diagram.
Note: during the installation of the fixture, in order to obtain the proper breakaway strength for the mobile wing, use the lateral screws to adjust detail [5], as shown in the diagram 8.
- Insert detail [6] into profile 3820 near detail [3], as shown in the diagram

- Insert the seal 3837 onto the PAM45M profile 3808, or else the PAM45L profile 3821, as shown in the diagram.
Attention: Orient seal 3837 as indicated in the fixtures manual. Make a hole in the seal that corresponds with the thickness adjustment of the push glass [26] as shown in the picture 8.
- Insert detail [7] into profile 3820, as shown in the diagram.
Attention: Orient detail [7] in the same manner as seal 3837.
- Attach the supplied hook to the lower part of the wing, as shown in the diagram, in order to prevent seal 3837 from sliding.


- Attach profile 3930 to the PAM45M profile 3808, or else to the PAM45L profile 3821, as shown in the diagram.

- Close the visible holes with the supplied caps, as shown in the diagram.

- With PAM45M profiles, insert the glass [9] into the mobile wing, as shown in the diagram.

- Set the glass spacers [A], shown in the diagram, so that they provide proper support.
N.B.: when installing the fitting, adjust the push glass spacers [26] as shown in the picture 8, for the mobile door wing to reach the horizontal position.
- With PAM45M profiles, insert the seals into the glass-bloking profiles 8, as shown in the diagram.

- With PAM45M profiles, insert the glass-blocking profiles [8] onto the mobile wing until they click, as shown in the diagram.
ASMI ELECTRICAL CONNECTIONS


- The SICUR2 photocell must be installed upon the perimeter profile or else upon the fixed wing, as shown in the diagram and in the PAM45 ASMI manual.
- Perform the electrical connections as shown in the diagram.
Attention: If the COMH-K function selector is used, connect the receiver’s brown cable to terminal 9 on the selector. - Any other arrest devices must be connected in series to terminal 9 (STOP).
- When the receiver (RX) and the transmitter (TX) of the photocell SICUR2 are powered and correctly aligned, the green LED on the transmitter TX and the yellow LED on the receiver RX will light up. The yellow LED on the receiver will go out when they are no longer correctly aligned.O
- Once installation has been completed, check to make sure that the force required to open each single wing does not exceed 220 N.
- This reading must be taken at 1 m from floor level in correspondence to the closure side of the wing (opposite to the hinges). The breakaway force can be adjusted as indicated in paragraph 6.18.
- Check that the door’s automatic movement stops when the mobile wings are released. The SICUR2 photocell serves the purpose of detecting the release of the mobile wings.
OPERATING INSTRUCTION FOR BREAK OUT SLIDING DOORS
‘ The label supplied must be attached in a visible position on each mobile door that can be break out a in the direction of the escape.
The break out of mobile doors [a], and semi-fixed doors [b] if present, is obtained by pushing the doors in the direction of the escape. A force of no more than 220 N near the closing edge at a height of approximately 1 m from ground level, is sufficient. By break out the doors, the motorised function is interrupted and the door can only be moved manually.
To restore automatic function of the sliding door, partially open the break-out mobile doors and manually reposition each door. Start with the mobile doors [a], and then the semi-fixed doors [b], bringing them back to their initial position.
Warning: Doors must not be completely closed 
DITEC S.p.A.
Via Mons. Banfi, 3
21042 Caronno Pertusella (VA) – ITALY
Tel. +39 02 963911 – Fax +39 02 9650314
www.ditec.it – [email protected]
DITEC AS45 Panic Device


































































































































