TELEPRO30 Telescopic Chimney
Instruction Manual
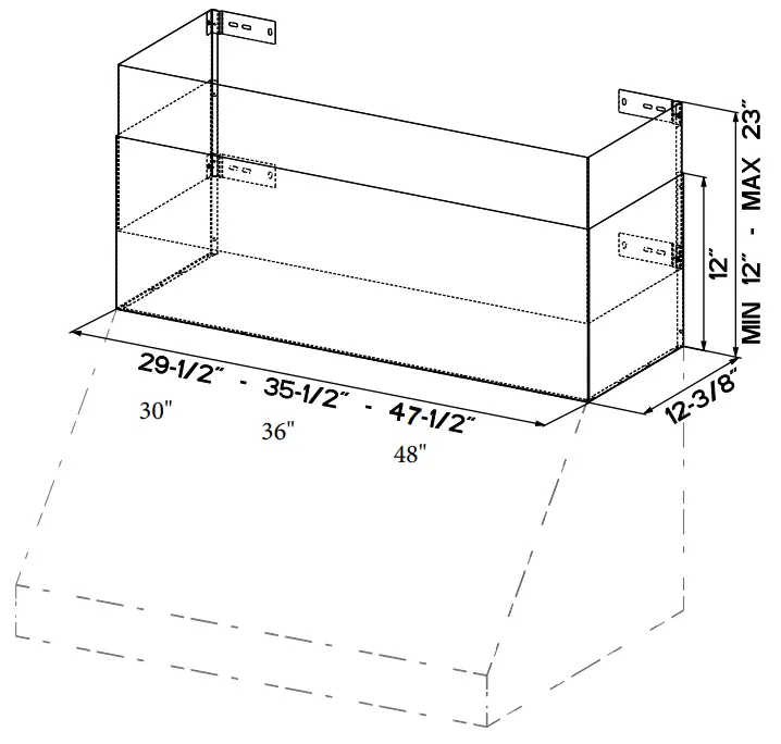
TELESCOPIC CHIMNEY
TELEPRO30
TELEPRO36
TELEPRO48
PARTS
PARTS INCLUDED
| REF. | PART | QTY |
| A | Upper chimney | 1 |
| C | Lower chimney | 1 |
| T | Chimney bracket | 4 |
| REF. | PART | QTY | |
| F | Pozi Screws (1/8″ x 1/4″) | 10 | |
| G | Posi Screws (3/16″ x 1-15/16″) | 8 | |
| H | Wall plug (3/16″ x 2-3/4″) | 8 |

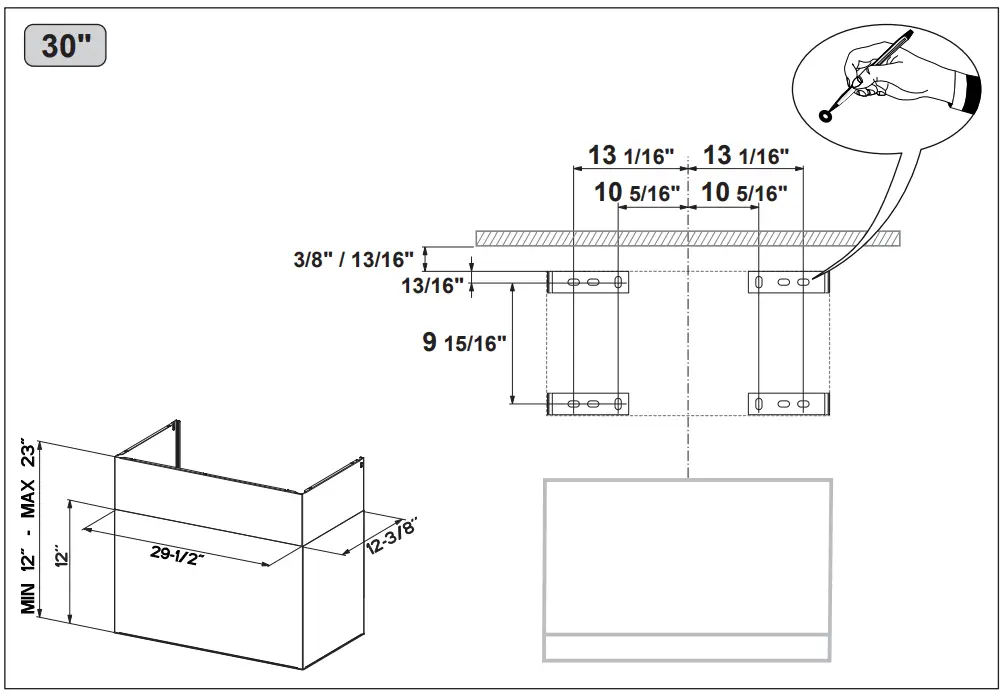
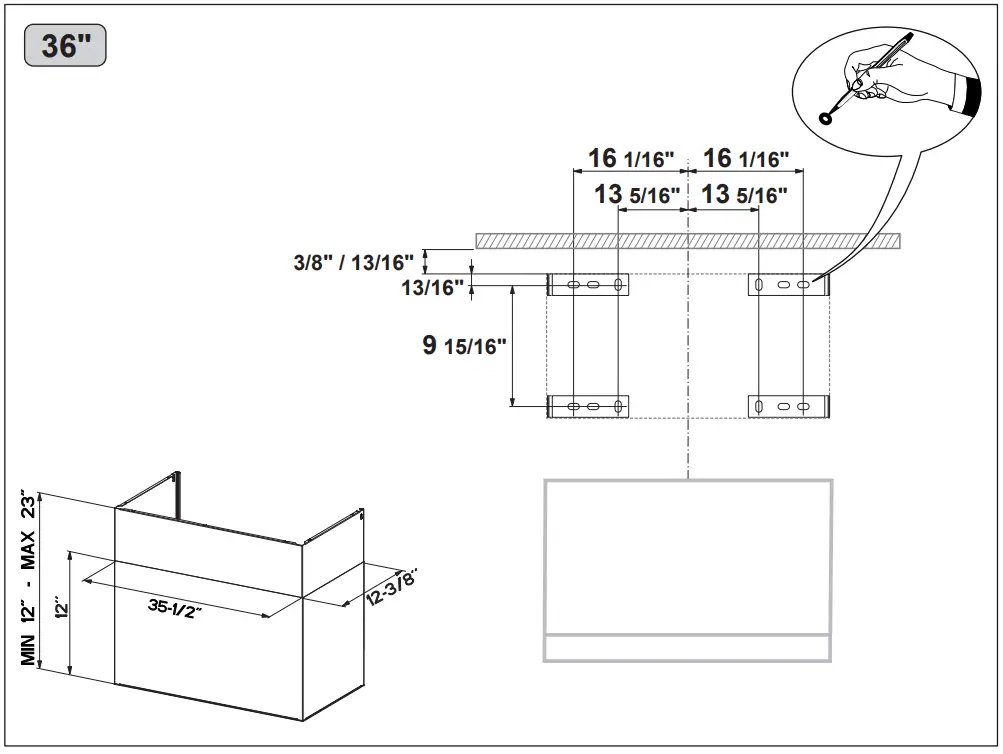
30″ 36″ 48″
Attach the extension brackets as shown.
Make sure that the screws are securely fastened to the wall.

For a different type of wall, it’s possible to use only screws.
Combine the screws and plugs with specific wall.
The screws G (3/16″ x 1-15/16″) are only for wooden walls.



30″ 36″ 48″

For a different type of wall, it’s possible to use only screws.
Combine the screws and plugs with specific wall.








991.0682.080_01 – 220524
D000000008735_00

















