HARVIA WHP1500 Stylish Steel Chimney

WHP1500


SPECIFICATION
- Length: 1.0 m
- Weight: 6.9 kg
- Length of isolated
- component: 970 mm
- Length: 0.5 m
- Weight: 3.5 kg
- Length of isoLated
- component: 470 mm
Note! Extensions increase the total length of the steel chimney by the length of their isolated component.
- Steet Chimney
- Multi-wall T600 – N1 – D – VmL20070 – G100
- Compressive strength
- Maximum road: 5.0 m of chimney elements
- Flow resistance: NPD
- Thermal resistance: NPD
- Sootfire resistance: Yes
- Flexural strength
- Tensile strength: 5.0 m
- Non-vertical installations: not allowed.
- Wind load: Free standing height 2.0 m above last support.
- Maximum spacing of lateral supports:
- 3.0 m Freeze thaw resistance: Yes

General Information
The steel chimney is a CE-standardised chimney for removal of chimney gas in solid fuel run saunas and iron stoves and fireplaces using solid fuel for heating.
- Maximum nominal chimney gas temperature of the furnace joint is 600 °C.
- The cross-section of the chimney is round and the diameter 220 mm.
- The outer casing material is 0.5 mm stainless steel
- The diameter of the smoke pipe is 115 mm and it is made out of 0.7 mm stainless steel.
- The insulation material is mineral wool.
- The maximum height of the steel chimney is five metres while the permissible maximum for the self-supporting element (e.g. the element above the roof) is two metres.
- The steel chimney can only be mounted in a vertical position.
- More detailed instructions available from the local fire authorities. ocal fire authorities.

Cross profile of the steel chimney installation
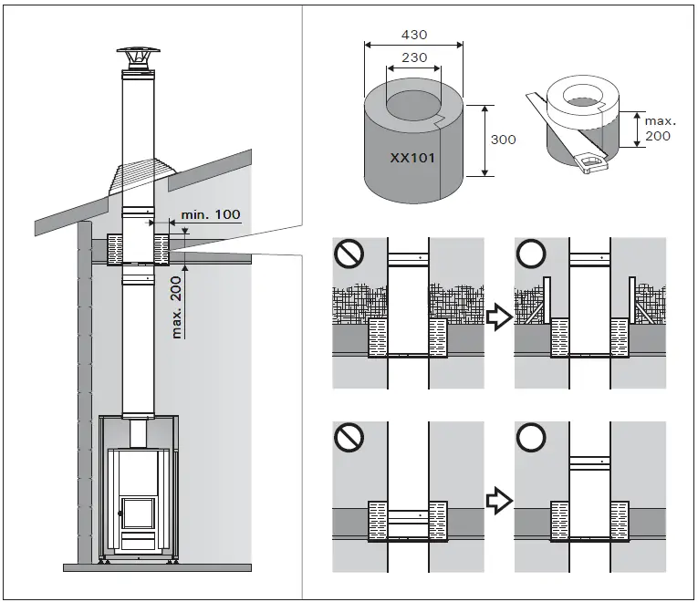
Safety Distances
It is absolutely necessary to install the chimney according to these safety distance values. Neglecting them causes a risk of fire. There shall be no inflammable materials within the established safety distances.
- The safety distance between the inflammable structures and the chimney outer casing must be minimum 100 mm. Figure 2.
- If the connecting pipe in the forward end is of non-isolated material, the safety distance from this pipe to inflammable construction materials needs to be 500 mm. Figure 2.
- The isolated chimney should be visible up to a minimum of 430 mm. Figure 2.
- When the fireplace is used a considerable heating takes place and the chimney needs to be protected with e.g. steel mesh in case it is exposed to touch. The protection, however, should not interfere with the ventilation around the pipe. There is no need for protection if the chimney is installed in a sauna.
- Do not encapsulate the chimney.
- More detailed instructions available from the local fire authorities. ocal fire authorities.

Safety distances (all dimensions in millimeters)
Lead-Through
Openings need to be made to the intermediate floor
and the roof and their minimum size is defined by the
safety distances. The template printed on the utility
box can be used for sizing the openings.
- In lead-through the space between the chimney and the roof structures have to be filled with lead-through insulation XX101 or other class A insulating material, which has a long-term operating temperature limit of 750 °C or more.
NOTE! We recommend the use of lead-through insulation XX101. If other insulating material is used, it is absolutely necessary to make sure that there is no combustible material among it. - It is recommended to install the chimney so that the pipe joints do not meet with the lead- through areas (does not apply to the joint in WHP1500).

Lead-through (all dimensions in millimeters)
Connecting the Parts of the Steel Chimney
The components of the steel chimney are joined by following the instructions in the pictures (figure 4). The leading principle is to lock the smoke pipeto the former component by winding it in place, then pressing the outer casing with insulation on the smoke pipe and finally locking the casing in place with screws.
- A. Pull the smoke pipe of the component/ extension out of the insulation and the outer casing.
- B. Join the pipe by slotting it to the studs of the smoke pipe below. Turn clockwise until the joint tightens and the pipe is fixed.
- C. Press the outer casing with the insulation on the smoke pipe. Slot the studs in the outer casing below. Turn clockwise until the joint tightens and the pipe is fixed.
- D. Any gaps between the insulation sheets should be sealed by pressing them downwards in the pipe.
- E. Lock the outer casing in place with three self boring screws. Bore the screws through the metal sockets.
- F. Join the upper end with three self-boring screws. Bore the screws through the plate.
NOTE! The upper end should be installed in a position where the screws will meet with the slot-braced outer casing.

Connecting the parts of the steel chimney
Installing the Rain Flange
The rubber rain flange prevents water and snow entering through the chimney lead-through hole. If the profile of the roofing material is very high or brick is used, an integral, uniform and stiffened metal sheet covering the chimney hole should be installed. This ensures the flange is fixed firmly in the damper.
- A. Cut an opening in the rain flange with the diameter of 175- 180 mm i.e. approx. 20 % less than the chimney diameter.
- B. Mount the flange from the up- per end of the chimney on the surface of the roof. Soap solution can be used as a lubricant if needed.
NOTE! Aluminium-covered side of the border upwards. - C. Mould the brims of the rain flange carefully fitting it to the roof profile.

- D. Spread some silicone under- neath the flange and press the flange into place on the roof covering. Smooth out the excess silicone against the edge of the rain flange.
- E. Fix the flange to the damper with screws. (Screws are not included in the delivery.) The recommended spacing is max. 35 mm. Finally check that there are no gaps in the sealing.
NoTE! A special snow barrier is needed to prevent snow from sliding against the rain flange. The amassed snow should be removed occasionally thus preventing the snow accumulating and clumping on the flange.

Installing the Rain Cap
Slot in the damper with the smoke pipe of the lower module. Lock the rain cap in place by gently turning it clockwise.
NOTE! Be careful not to turn and lock the rain cap too tight! The cap needs to be removed for chimney sweeping.

Installing the Lead-Through Flange
The two-piece lead-through flange fixed in horizontal or pitched ceilings trims the edges of the opening. The lead-through flange is best suited for roof pitches of under 1:1.5. Figure 8.
- A. Instal the two halves of the flange around the chimney. The straighter the roof, the more the components will overlap.
- B. Fix the lead-through flange in place with screws. Be careful and tighten the screws only so much as not to bend the metal sheet.

Sweeping the Chimney
A brush made of plastic or stainless steel should be used for sweeping the chimney.
HRRVIR Harvia Oy PL12 40951 Muurame Finland www.harvia.fi



















