Wilo-DrainLift XS-F Minisystem for Faecal Water

General information
About this document
These installation and operating instructions are an integral part of the product. They must be kept readily available at the place where the product is installed. Strict adherence to these instructions is a precondition for the proper use and correct operation of the product.
These installation and operating instructions correspond to the relevant version of the product and the underlying safety standards valid at the time of going to print..
Safety
- These operating instructions contain basic information which must be adhered to during installation and operation. For this reason, these operating instructions must, without fail, be read by the service technician and the responsible operator before installation and commissioning .
- It is not only the general safety instructions listed under the main point “safety” that must be adhered to but also the special safety instructions with danger symbols included under the following main points .
Designation of information in the operating instructions
DANGER!
Acutely dangerous situation.
Non-observance results in death or the most serious of injuries.
WARNING!
The user can suffer (serious) injuries. “Warning” implies that (serious) injuries to persons is probable if this information is disregarded.
CAUTION!
There is a risk of damaging the pump/unit. ‘Caution’ implies that damage to the product is likely if the information is disregarded.
NOTE: Useful information on using the product. It draws attention to possible problems.
Personnel qualifications
The installation personnel must have the appropriate qualification for this work.
Danger in the event of non-observance of the safety instructions
Non-observance of the safety instructions can result in risk of injury to persons and damage to pump/unit. Non-observance of the safety instructions can result in the loss of any claims to damages.
In detail, non-observance can, for example, result in the following risks :
- Failure of important pump/unit functions
- Failure of required maintenance and repair procedures
- Danger to persons from electrical, mechanical and bacteriological influences
- Property damage
Safety instructions for the operator
The existing directives for accident prevention must be adhered to.
Danger from electrical current must be eliminated. Local directives or general directives [e.g. IEC, VDE etc.] and local power supply companies must be adhered to.
Safety instructions for inspection and installation work
- The operator must ensure that all inspection and installation work is carried out by authorised and qualified personnel, who are sufficiently informed from their own detailed study of the operating instructions.
- Work to the pump/unit must only be carried out when at a standstill.
Unauthorised modification and spare part production
Modifications to the pump/unit are only permissible after consultation with the manufacturer. Original spare parts and accessories authorised by the manufacturer ensure safety.
The use of other parts can nullify the liability from the results of their usage.
Improper use
The operating safety of the supplied pump/unit is only guaranteed for conventional use in accordance with Section 4 of the operating instructions. The limit values must on no account fall under or exceed those specified in the catalogue/data sheet.
Transport and interim storage
Immediately after receiving the product:
- Check the product for damage in transit
- If there is damage in transit, take the necessary steps with the shipping company within the required period.
CAUTION! Risk of damage!
Incorrect transport and interim storage can cause damage to the product.
- The unit must be protected from humidity and physical damage during transport and interim storage.
- The unit is frost-resistant when stored at temperatures down to –20 °C. When the unit is installed, however, do not allow water left in the reservoir to freeze.
Intended use
- The DrainLift XS-F is a sewage lifting unit for restricted use (according to DIN 1986-100 and DIN EN 12050-3) which is ready to be directly connected to an wall hung toilet. The unit fulfils all conditions for front wall installation, especially where a toilet or shower must be installed, particularly in cellars or basements, during modernisation or restoration work.
- Faeces and toilet paper are pumped into the on-site collector pipes.
- The unit disposes of sewage for a single toilet or an additional washbasin, a shower and/or a bidet, where the waste water cannot be directed to the canalisation via a natural fall, or for waste water which accumulates below the backflow level.
- All connected drainage points must be in the same room as the unit (limited use of the lifting unit).
- It is designed for a small number of users and there must be another toilet above the backflow level.
- The connection of additional drainage fixtures such as a washing machine, dishwasher or bathtub is prohibited by DIN EN 12050-3.
- The unit must be operated with a cistern with a capacity of at least 6 litres. When the flushing water is less than 6 litres, for example on dual-flush toilets, satisfactory operation is not guaranteed.
- The system is only suitable for domestic sewage as defined in EN 12056-1.
CAUTION! Risk of damage!
Inappropriate materials in the system can cause damage to the product. - Never put hygiene products, paper towels, moist toilet paper, leftover food, solvents, chemicals, grease etc. in units for restricted use.
- Never put solid materials, fibrous materials, tar, sand, cement, ash, coarse paper, rubble, refuse, butcher’s waste, grease, oil or swimming-pool water in the unit.
Application limits
- The flow rate in the pressure pipe must be at least 0.7 m/s. For safe operation, the maximum geodesic delivery head of 4 mWS must not be exceeded. Fig. 1 shows the resulting application limits and delivery distances (maximum pressure pipe lengths DN 32 / DN 25) depending on the pipe diameter.
- For best results, the pressure pipe should be laid first vertically and then horizontally (including two 90° bends and an integrated non-return valve).
- When installed according to the regulations and properly used, the unit complies with the EMC safety requirements of EU directive 89/336 EEC and is suitable for domestic use on the public electricity mains.
- Proper use includes compliance with the instructions in this manual.
- Any other use is considered improper.
Product information
Type key
| DrainLift | Lifting unit |
| XS | Size |
| -F | Front-wall |
Technical data
| Connected voltage | [V] | 1~230, ± 10% |
| Power consumption P1 | [kW] | 0,4 |
| Rated current | [A] 1,8 | |
| Mains frequency | [Hz] | 50 |
| Protection class | IP 24 | |
| Speed | [¹/min] | 2610 |
| Operating mode | S 3 30% (3 min. operation – 7 min. pause) | |
| Max. total delivery head | [mWS] | See name plate |
| Max. permitted geodesic delivery head | [mWS] | 4 |
| Max. volume flow | [m³/h] | See name plate |
| Max. fluid temperature | [°C] | 35 |
| Gross volume | [l] 7,9 | |
| Dimensions incl. non-return valve (WxDxH) | [mm] | 515x168x410 |
| Weight | [kg] | 6,5 |
| Pressure port | [DN] | 32 (outer diameter AD 40) |
| Inlet ports | [DN] | 50, 100 |
| Ventilation | [DN] | 50 |
Please state all the information on the system name plate when ordering spare parts
Complete DrainLift XS-F, with integrated alarm system and potential-free contact, installed ready to plug in.
Scope of delivery
- 1 pressure port discharge elbow DN 32
- 3 sleeves DN 50
- 1 sleeve DN 100
- 2 hose clips 32-50
- 6 hose clips 40-60
- 2 hose clips 100-120
- 1 adapter joint 40 x 1 ¼”
- adapter joint 40/50 x 1 ¼”
- non-return valve 1 ¼” pressure pipe
- 1 non-return valve for inlet pipe DN 50
- 1 drain hose 600 mm with plug and hose clip
- 1 ventilation insert
- 1 active carbon filter
- 1 compensating orifice plate
- 1 ventilation grille
- 1 hanger bolt M8x200
- 1 wall plug S10
- 1 “Prohibited substances” sticker
- 1 installation and operating instructions
Accessories
Accessories must be ordered separately:
- Service hatch
- Gate valve 1 ¼”
- Alarm switchgear KAS
- Alarm switchgear DrainAlarm 2
For a detailed list and description see the catalogue/price list.
Description and function
Description of the unit
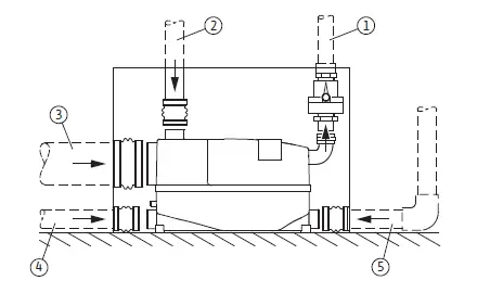
- An automatically operating small lifting unit (Fig. 3) including all required switching and control mechanisms, with non-return valve, active carbon filter, elastic pressure port and connections for a toilet, two additional drainage fixtures and a ventilation pipe.
- The DrainLift XS-F small lifting unit is directly connected to the outflow bend of a wallhung toilet.
- The direct toilet connection and the connections for additional drainage fixtures are on the longitudinal sides of the unit, and the two ventilation ports are on the top of the tank. The fluid flows out through an elastic, rotatable pressure pipe.
- Ventilation takes place via the active carbon filter supplied into the installation room, or odour-free via a ventilation pipe through the rough.
Connections
- Pressure pipe
- Ventilation pipe
- Inlet for wall hung toilet, HT pipe DN 100
- Inlet pipe for shower/bidet
- Inlet pipe for washbasin
Dimensions
Function
- The DrainLift XS-F has a level switch, which switches on the pump according to the water level. It is switched off automatically after a set time.
- The motor winding is protected by an overload safety device which automatically switches off the pump and switches it on again after it has cooled down.
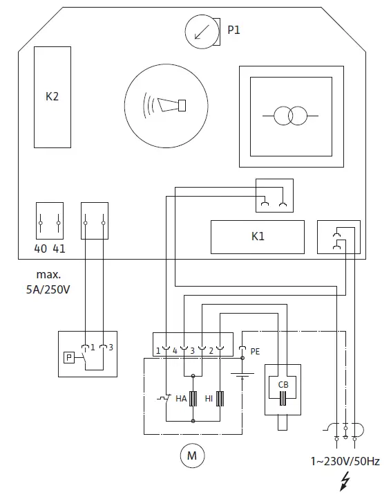
- An integrated, mains-dependent alarm signal (buzzer) signals any operating faults which occur. An additional potential-free contact (5 A/250 V) on the board can be used to forward the signal.
Installation and electrical connection
DANGER! Risk of fatal injury!
Incorrect installation and inexpert electrical connection can pose a risk of fatal injury.
- The installation and electrical connection may only be carried out by qualified personnel in accordance with the applicable regulations!
- Observe the regulations on the prevention of accidents!
Preparing for installation
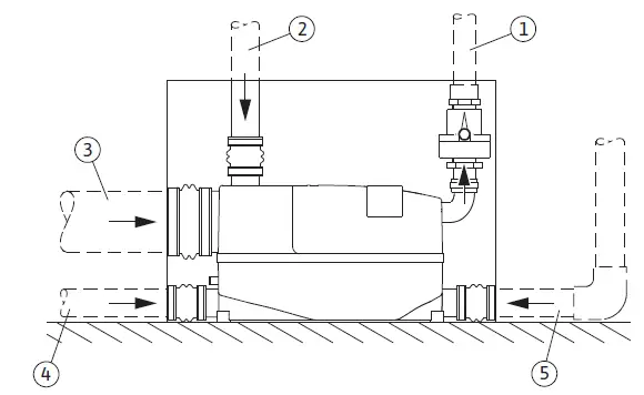
The DrainLift XS-F is designed for front wall installation (Fig. 4). The unit is installed directly beside the module for a wall-hung toilet.
- The unit must be installed in a room protected from frost.
- The installation surface must be horizontal and flat.
- The lifting unit and its electrical connection (power plug) must remain accessible for maintenance after it is installed.
Front wall installation
Modules for front wall installation
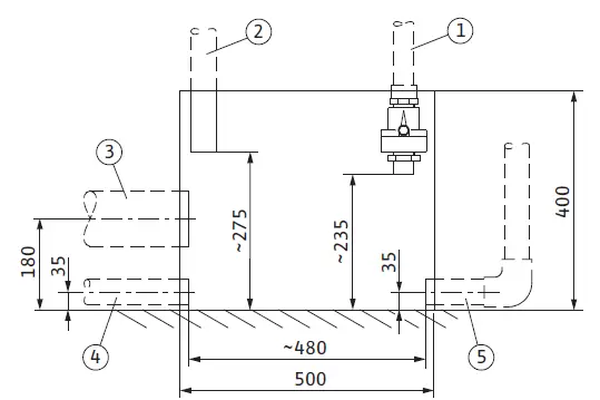
- The DrainLift XS-F can be combined with all commercially available front wall installation systems. The main installation conditions for the unit are shown in Fig. 5. To guarantee accessibility, there must be a service hatch of at least 500 x 400 mm. An installation kit for making a service hatch is available as an accessory.
- If the front wall depth is 200 mm and several modules are aligned on a floor-mounted rail larger than 37 x 37 mm, a compensating plate may have to be placed under the unit.
- The plate should not be too thick, in order to ensure a sufficient fall in the drain pipe of the toilet bowl. The shower must also be placed higher by the thickness of the plate.
Modules for front wall installation
Inlet ports
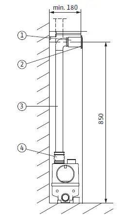
The toilet connection (Fig. 4, Pos. 4) takes place directly with the outflow bend of the front wall installation and an HT bend DN 100, 15 °C, and can be either to the right or the left of the toilet basin.
CAUTION! Risk of damage!
Incorrect installation can result in damage.
- The distance between the middle of the wall-hung toilet and the unit may not be more than 350 mm, as otherwise malfunctions may occur.
- Therefore, do not use an additional connecting pipe between the toilet outflow bend and the unit.
- The middle of the toilet outflow must be 220 mm above the installation level of the unit.
- As well as a wall-hung toilet, the unit can be connected to a washbasin, a shower and a bidet; other connections are not permitted.
- The tank has one port for additional DN 50 HT pipes on each longitudinal side, located lower down, as well as two ports on the top of the tank.
- The elastic connecting sleeves supplied for connecting the outflow pipe simplify installation and are required for reasons of noise prevention.
- The inlet pipes from the shower and washbasin must be fitted with a bend (Fig. 4, Pos. 5) as close as possible to the unit, if they are connected to the low ports on the longitudinal sides.
- This bend must have a height of at least 180 mm between the bottom of the pipe and the installation level, in order to prevent sewage containing faeces from flowing back into the inlet pipe.
- Installing the lifting unit before covering the frame makes it easier to inspect the connections
Pressure pipe
The on-site pressure pipe (Fig. 4, Pos. 1) DN 25 or DN 32 (minimum clear diameter 28 mm) is connected via an S-shaped discharge elbow to the pressure outlet of the unit. The waste water pressure pipes may be made of PVC, PP or PE-HD.
Pressure pipe connection
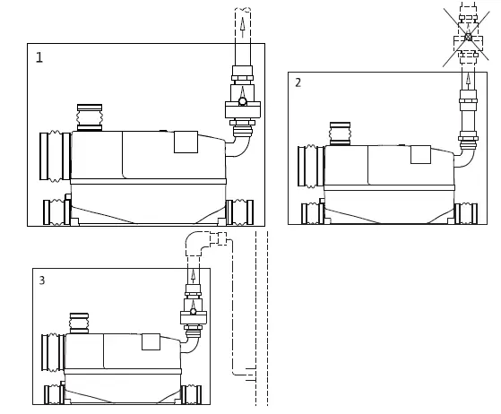
- The pressure pipe should be laid without a fall. If laying it with a fall to the transfer point is unavoidable, a wider pipe should be laid from the highest point in order to prevent a lifting effect and associated malfunctions (Fig. 4, Pos. 2 and Fig. 6-3).
- Fasten the 1 ¼” non-return valve with a 40 x 1 ¼” adapter directly to the S-shaped pressure pipe elbow, so that the water flowing back after the pump is switched off is reduced to a minimum and the valve can be easily accessed through the inspection opening during maintenance (Fig. 6-1).
Tank ventilation
CAUTION! Risk of damage!
- Incorrect installation can result in damage.
- Improperly installed tank ventilation can cause malfunctions.
- The tank must be ventilated in order for the unit to work properly.
Tank ventilation
The ventilation insert can be positioned as in Fig. 4, Pos. 3 and Fig. 7. The filter insert can also be fed upwards or sideways through the front wall.
Fitting the tank ventilation
The tank is ventilated (Fig. 8) through an on-site HT pipe DN 50, which connects the ventilation insert (supplied) or a ventilation pipe through the roof to the unit. The unit is supplied with an active carbon filter which reduces smells in the ventilation insert. Before installation, remove the foil. To change the active carbon filter, simply remove the ventilation grille from outside.
- Ventilation insert with active carbon filter
- Ventilation grille
- Ventilation pipe (HT) DN 50
- Connecting sleeve DN 50
Hole for ventilation insert
Fig. 9 shows how to drill a hole 76 mm in diameter for installing the ventilation insert.
Ventilation insert
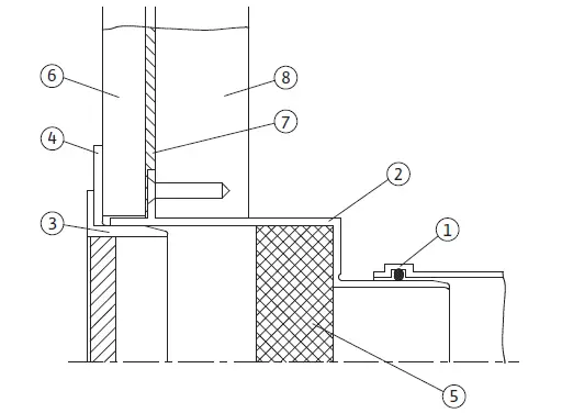
Fig. 10 shows a cross-section through the finished wallmounted installation around the ventilation insert. If ventilation is through the roof, the ventilation insert and the active
carbon filter are not required.
- HT pipe sleeve DN 50
- Ventilation insert
- Ventilation grille
- Compensating orifice plate
- Active carbon filter
- Tiles
- Tile adhesive
- Moisture-proof board
Electrical connection
DANGER! Risk of fatal injury!
If the electrical installation is not properly carried out, there is a risk of fatal electric shock.
- Always have the electrical connection performed by a qualified electrician.
- For installation in bath and shower rooms, observe the relevant local regulations [e.g. VDE 0100 Part 701 in Germany].
The unit is delivered ready to plug in and may only be connected to standard safety sockets.
- The current type and voltage of the mains connection must correspond to those stated on the name plate,
- Mains fuse: 10 A, slow-blow
- Earth the unit according to the regulations.
Mains connection
Position of the safety socket
There are two options for positioning the safety socket:
- Within the front wall installation, behind the cover of the maintenance hatch (Fig. 11, Pos. 1). The inspection hatch must be opened in order to respond to an alarm by pulling out the mains plug.
- Outside the front wall installation, near the maintenance hatch (Fig. 11, Pos. 2). There is immediate access to the main plug for responding to an alarm or switching off the unit in an emergency.
Installing the safety socket
For installation outside the front wall installation, a flushmounted cavity wall socket with a cut-out base is required (Fig. 12). It is covered with a commercially available cooker socket from any manufacturer. When the insert for the cooker socket is removed, the mains plug can be passed through for initial connection and maintenance.
Switching diagram
The device has a potential-free normally open alarm contact on the motor board (Fig. 13) for forwarding alarms:
- Terminals 40 / 41
- Max. contact load: 5 A/250 V.
Note for using screwless terminals:
Open the terminal with a screwdriver and push the cable into the lower opening.
Each terminal can only hold one conductor.
Installation
Before starting installation, check the scope of delivery of the unit and the local installation conditions
Pre-mounting the connections
The inlet and pressure pipes must be pre-mounted as illustrated (Fig. 14) in the room where the unit is to be installed. If the unit is mounted to the right of the toilet, assembly is the reverse of the illustration.
- Pressure pipe
- Ventilation pipe
- Inlet for wall-hung toilet
- Inlet pipe for shower/bidet
- Inlet pipe for washbasin
Buoyancy protection
The DrainLift XS-F cannot be flooded, which means the installation site must be secure against flooding. EN 12050- 3 requires that sewage lifting units must be protectedagainst buoyancy (Fig. 15). Place the unit in the installation room and align it to the pipes to be connected. Use a long 10 mm stone bit to drill a marking just above the tank (not above the detachable hood), so that the hanger bolt to be mounted later will touch or only have a slight gap to the tank.
After drilling, take the unit out of the maintenance hatch and finish drilling the hole. Then put in the wall plug. Only fit the hanger bolt after you have installed the system.
Preparing the connecting ports of the unit 
Open the connecting ports for the drainage fixtures in addition to the wall-hung toilet (shower, washbasin and / or bidet) and for the ventilation ports using a 40 mm hole saw (Fig. 16). Then deburr the holes.
CAUTION! Risk of damage! Remove the cut-out circle; do not leave it in the tank.
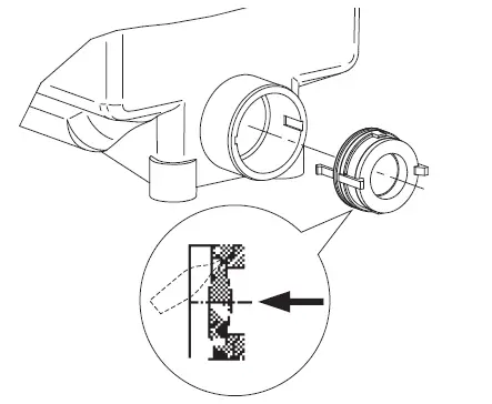
Shower inlet non-return valve (not permitted in Germany)
The 40 mm non-return valve supplied (Fig. 17) is inserted in the lower inlet opening of the shower connection via the guide grooves until it snaps in.
CAUTION! Risk of malfunctions!
Malfunctions will occur if the valve is incorrectly fitted
- The valve hinge must face upwards (check the condition on delivery).
- The valve must open towards the inside of the tank.
Emergency drain connection 
NOTE: The PVC hose with plug supplied can be attached to the tank for simple draining in emergencies (Fig. 23). Drill the 13 mm port on the bottom of the tank with a spiral drill (max. Ø 9 mm) (Fig. 18). Push in the hose and fasten it with the hose clip (1.5 Nm tightening torque). Make sure that the drain opening of the hose is securely sealed with the plug.
Mounting the connecting sleeves
Before installing the unit, fasten the DN 50 and DN 100 connecting sleeves to the inlet pipes using the clips (supplied) (Fig. 19).
Make sure they are correctly seated and do not leak.
Installing the unit
Place the unit in the room where it is to be installed, line it up and fit the hanger bolt for buoyancy protection. Then fit theconnecting sleeves to the tank ports using the clips. Fit the discharge elbow between the pressure pipe and the pressure outlet of the unit and fasten it with the clips (Fig. 20). Make sure all clip connections they are correctly seated and do not leak.
Prohibited substances
Attach the sticker warning of prohibited substances (Fig. 21).
Attach the sticker supplied showing instructions (symbols) for the user of the toilet somewhere clearly visible, for example above the toilet lid or on the inside of the toilet lid.
CAUTION! Risk of damage! Putting in prohibited materials can cause malfunctions, damage the unit and invalidate the warranty.
Commissioning
- Plug in the safety plug
- On initial use, flush the toilet twice
- Check all pipe connections for leaks and tighten the clips if necessary
- Adjust the cistern of the toilet so that the flush volume is not less than 6 litres of water Operation
NOTE: After using mild, commercially available detergents, flush several times so that no traces of the cleaning agent are left in the unit.
CAUTION! Risk of damage! - The unit can be damaged by incorrectly fastened toilet cleaners.
- Fasten holders for toilet cleaners very securely to the toilet bowl to ensure that they are not flushed into the unit.
Maintenance and cleaning
Maintenance and repairs may only be carried out by qualified personnel
WARNING! Risk of infection!
All maintenance must be carried out wearing suitable safety clothing (gloves) in order to prevent the risk of infection.
DANGER! Risk of fatal injury!
There is a risk of fatal electric shock when working on electrical equipment.
- Before all maintenance and repair work, switch off the unit from the power supply and make sure it cannot be switched on by unauthorised persons.
- Disconnect the power plug!
- Work on the electrical part of the unit may only be carried out by a qualified electrician.
- When properly used, the DrainLift XS-F requires little maintenance. Nevertheless, the unit should be inspected at least once a year:
- Check all connections for leaks.
- Check the active carbon filter in the ventilation insert and replace it.
Remove obstructions after alarms
Disconnect the power plug before any work on the unit!
- Take off the cover of the inspection opening.
- If the pump is obstructed or blocked, you can free it with a screwdriver without removing any other parts.
Freeing the motor shaft
- Remove the plug in the middle of the cover cap.
- Insert a long screwdriver through the hole in the cover (Fig. 22).
- Find the slot in the motor shaft by slightly turning it and remove the obstruction by forcefully turning the shaft in both directions.
- Check the pump by temporarily connecting the power plug.
- If the pump does not run as normal, remove the pump unit.
Dismantling the pump unit
Emergency drainage
Before dismantling, you must drain the water from the toilet bowl and the unit. Use an electric drill (n > 2000/min clockwise) and a long screwdriver to drive the pump using the slot in the motor shaft and carry out emergency draining.
Draining the unit
- If the supplied PVC hose was fitted during assembly (Fig. 18 / 23), the accumulated water can be easily drained in an emergency.
- The water is drained out through the hose into a flat receptacle.
- The hose is then sealed with the plug.
For the rest of the work, the tank remains installed in the wall. Only the pump unit has to be removed.
Removing the pump unit 
- Remove the screw from the cover.
- Push the cover slightly towards the pressure pipe until it snaps out.
- Lift off the cover.
- Release the clips of the discharge elbow on the pressure pipe and pull off the discharge elbow.
- Undo the four screws on the corners of the pump unit and lift it out of the tank.
WARNING
- Remove any foreign matter from the tank or the pump through the suction opening and, if necessary, clean the parts and the opening to the blockage pressure switch.
- Carefully reassemble the unit in the reverse order.
CAUTION! Risk of damage!
Incorrect reassembly can cause damage to the product. - Before reassembly, generously grease the O-ring and the seat on the tank, for example using petroleum jelly.
- Make sure the O-ring is correctly seated on the pump unit during reassembly.
- Push the pump unit by hand into the seal seat and hand-tighten the screws crosswise. First turn them slightly anticlockwise to find the thread.
Installing / changing the active carbon filter
The active carbon filter (supplied) must be installed when ventilation through the roof is not possible. The filter should be changed at least once a year, as well as after malfunctions where water escapes, or when smells accumulate.
- To install or change the filter, take the ventilation grille off the ventilation housing.
- Take out the old filter and insert the new filter (after removing the foil) into the ventilation insert as far as it will go, to the same position as the old filter (Fig. 8).
- The push the ventilation grille back on.
Faults, causes and remedies Faults may only be repaired by qualified personnel!
| Fault | Cause | Remedy |
| Unit will not start, Water remains in toilet bowl. | Power failure. | Check mains voltage. |
| Faulty fuse. | Replace fuse. | |
| Mains cable damaged. | Attention! The special cable may only be replaced by after-sales service or a qualified electrician. | |
| Unit overloaded; motor shut down. | Unit switches on again after cooling down, avoid overload if possible. | |
| Motor defective. | Have after-sales service replace pump unit. | |
| Impeller blocked. | See 9.1 | |
| Water only drains very slowly from the toilet bowl. | Obstruction in siphon of toilet bowl. Obstruction in front of tank in toilet inlet. | Check the amount of water for flushing in the toilet cistern and set it to 9 litres or the maximum quantity. If more water than usual remains in the toilet bowl, flush again and repeat as long as it is pumped out. |
| Obstruction in pump suction opening due to too much paper and not enough water. | See 9.1 | |
| Delivery head too high. | See 7.1.3, pressure pipe. | |
| Pump switches on frequently after normal delivery. | Cistern valve leaks, water constantly flows through the toilet bowl to the unit. | Check the cistern valve. |
| Leaky or defective non-return valve; after pumping water returns from the pressure pipe to the unit. | Check the non-return valve; if there is no backflow in the toilet bowl, flush at intervals several times. | |
| Obstruction in the tank in front of the pump, so that water is only pumped out at short intervals. | See 9.1 | |
| Defective level switch on the unit. | Call after-sales service. | |
| Noisy operation. | Foreign matter in the pump. | See 9.1 |
| Unit alarm sounds. | Running time too long (pressure pipe or pump inlet opening blocked). | See 9.1 |
| Water level in tank too high (pump blocked or obstructed). | See 9.1 | |
| Water level in tank too high (level switch defective). | Call after-sales service. | |
| Occasional obstructions, no audible sipping mode. | No homogenisation of fluid. | Call after-sales service. |
If the malfunction cannot be rectified, call a specialist or the nearest Wilo agent or after-sales support.
Spare parts
- Spare parts can be ordered from local specialists or Wilo after-sales service.
- To prevent queries or faulty orders, please state all the information on the name plate when ordering.
- Subject to change without prior notice


























