
Greenfire® GCI60
OWNER’S MANUAL
Cast Iron
Pellet Insert

French Manual: https://bit.ly/3t7lFbE

| PLEASE READ THIS ENTIRE MANUAL BEFORE INSTALLATION AND USE OF THIS PELLET-BURNING ROOM HEATER. FAILURE TO FOLLOW THESE INSTRUCTIONS COULD RESULT IN PROPERTY DAMAGE, BODILY INJURY OR EVEN DEATH. | |||
| Contact your building or fire officials about restrictions and installation inspection requirements in your area. | |||
WARNING: Improper installation, adjustment, alteration, service or maintenance can cause injury, property damage, or loss of life. Refer to this manual. For assistance or additional information consult an authorized installer or service agency. | FOR YOUR SAFETY: Do not store or use gasoline or other flammable vapours and liquids in the vicinity of this or any other appliance. Installation and service must be performed by an authorized installer or service agency. | ||
Tested by:
| IMPORTANT: SAVE THESE INSTRUCTIONS |
0268PM027E | |
919-569d FPI FIREPLACE PRODUCTS INTERNATIONAL, LTD. 6988 Venture St., Delta, BC, Canada V4G 1H4 03.11.21
TO THE NEW OWNER
Congratulations! You are the owner of a state-of-the-art Pellet Stove.
Thank you for purchasing an
FPI FIREPLACE PRODUCT.
The pride of workmanship that goes into each of our products will give you years of trouble-free enjoyment. Should you have any questions about your product that are not covered in this manual, please contact the HAMPTON DEALER in your area.
Safety Note: If this stove is not properly installed, a house fire may result. For your safety, follow the installation instructions, contact local building, fire officials, or authority having jurisdiction about restrictions and installation inspection requirements in your area.
The authority having jurisdiction should be consulted before installation to determine the need to obtain a permit.
Emissions and Efficiency: This manual describes the installation and operation of the Regency GCI60 pellet heater. This heater is U.S. ENVIRONMENTAL PROTECTION AGENCY certified to comply with 2020 particulate emission standards. Under specific test condition this heater has been shown to deliver heat at rates raging from:
4,383 – 23,542 Btu/hr
Efficiency: 60.4% HHV

0268PM027E
FIRE EXTINGUISHER AND SMOKE DETECTION: All home with a pellet burning stove should have at least one fire extinguisher in a central location known to all the household. Smoke detectors and carbon monoxide detectors should be installed maintained in the room containing the stove. If it sounds the alarm, correct the cause but do not deactivate. You may choose to relocate the smoke the smoke detection device within the room; DO NOT REMOVE THE SMOKE OR CARBON MONOXIDE DETECTORS FROM THE ROOM.
WARNING: This wood heater needs periodic inspection and repair for proper operation. It is against federal regulation to operate this wood heater in a manner inconsistent with operating instructions in this manual.
WARNING: This wood heater has a manufacturer set minimum low burn rate that must not be altered. It is against federal regulations to alter this setting or other wise operate this wood heater in a manner inconsistent with operating instructions in this manual.

We recommend that our products be installed and serviced by professionals who are certified in the U.S. by the National Fireplace Institute (NFI) or in Canada by Wood Energy Technical Training (WETT)
WARNING: Cancer and Reproductive Harm
www.P65Warnings.ca.gov
919-874
Introduction
* This manual is designed for the home owner in conjunction with the technical manual. *
RATING LABEL LOCATION:
The rating label is located on the top of the hopper.
FUEL QUALITY:
Fuel quality is important, please read the following:
Your Hampton pellet stove has been designed to burn ¼” (6mm) dia wood pellets and other organic pellet fuels (corn, wheat, barley). DO NOT use this appliance as an incinerator. DO NOT use unsuitable and non recommended fuels, including liquid fuels as this will void any warranties stated in this manual.
The performance of your pellet stove is greatly affected by the type and quality of fuel being burned. As the heat output of various quality fuels differs, so will the performance and heat output of the pellet stove.
CAUTION: It is important to select and use only fuel that are dry and free of dirt or any impurities such as high salt content. Dirty fuel will adversely affect the operation and performance of the unit and will void the warranty. The Pellet Fuel Industries (P.F.I.) has established standards for wood pellet manufacturers. We recommend the use of pellets that meet or exceed these standards. Ask your dealer for a recommended pellet type.
ASH: The ash content of the fuel and operation of your stove will directly determine the frequency of cleaning. The use of high ash fuels may result in the stove needing to be cleaned daily. A low ash fuel may allow longer intervals between cleaning.
CLINKERING: [clinkers are silica (sand) or other impurities in the fuel that will form a hard mass during the burning process]. This hard mass will block the air flow through the Burn Pot Liner and affect the performance of the stove. Any fuel, even approved types, may clinker. Check the Burn-Pot Liner daily to ensure that the holes are not blocked with clinkers. If they become blocked, remove the liner (when the unit is cold) and clean/scrape the clinkers out. Clean the holes with a small pointed object if required. Refer to the section Routine Cleaning and Maintenance.
FUEL FEED RATES: Due to different fuel densities and sizes, fuel feed rates may vary. This may require an adjustment to the slider damper setting or to the auger feed trim setting.
Since Regency Fireplace Products Ltd. has no control over the quality of fuel that you use, we assume no liability for your choice in fuels.
FILLING FUEL HOPPER: Open lid on top of unit, check hopper for foreign objects, empty the bag into the hopper, and ensure hopper lid closes completely.
Store fuels at least 36” (1 m) away from the pellet stove.
WARNING: Parts of the appliance, especially the external surfaces, will be hot to touch when in operation so use due care.
FLAMMABLE LIQUIDS: Never use gasoline, gasoline-type lantern fuel, kerosene, charcoal lighter fluid, or similar liquids to start or “freshen up” a fire in the heater. Keep all such liquids well away from the heater while it is in use.
Safety Warnings & Recommendations
Please read this entire Owner’s Manual before installing or operating your Hampton Pellet Stove. Failure to follow these instructions may result in property damage, bodily injury or even death. Any unauthorized modification of the appliance or use of replacement parts not recommended by the manufacturer is prohibited. All national and local regulations and shall be complied with when operating this appliance.
Caution: Do not connect to any air distribution duct or system.
Warning: Never place wood, paper, furniture, drapes or other combustible materials within 48” (122cm) of the front of the unit, 12” (30.5cm) from each side, and 4” (10cm) from the back of the unit. Do not let children or pets touch it when it is hot.
To prevent the possibility of a fire, ensure that the appliance is properly installed by adhering to the installation instructions. An Hampton dealer will be happy to assist you in obtaining information with regards to your local building codes and installation restrictions.
FIRE EXTINGUISHER AND SMOKE DETECTION: All homes with a pellet burning stove should have at least one fire extinguisher in a central location known to all in the household. Smoke detectors should be installed and maintained in the room containing the stove. If it sounds the alarm, correct the cause but do not deactivate. You may choose to relocate the smoke detection devise within the room; DO NOT REMOVE THE SMOKE DETECTOR FROM THE ROOM.
CHIMNEY OR RUN AWAY FIRE: Call local fire department (or dial 911). Close the draft fully. Extinguish the fire in the burn pot liner with a cup of water and close the door. Examine the flue pipes, chimney, attic, and roof of the house, to see if any part has become hot enough to catch fire. If necessary, spray with fire extinguisher or water from the garden hose. IMPORTANT: Do not operate the stove again until you are certain the chimney and its lining have not been damaged.
OPERATION: The door and ash drawer must be kept closed when the unit is in operation to prevent fume spillage and for proper and safe operation of the pellet stove. Also ensure all gaskets on the door are checked and replaced when necessary. Unit hot while in operation. Keep children, clothing and furniture away. Contact may cause skin burns.
CAUTION: When operating during adverse weather, if the unit exhibits dramatic changes in combustion stop using the unit immediately.
FUEL: This stove is designed and approved to only burn wood pellets of any quality, corn, wheat, barley, and grass. Dirty fuel will adversely affect the operation and performance of the unit and may void the warranty. Check with your dealer for fuel recommendations. THE USE OF CORDWOOD IS PROHIBITED BY LAW. Do not burn garbage or flammable fluids such as gasoline, naptha or engine oil.
SOOT: Operation of the stove with insufficient combustion air will result in the formation of soot which will collect on the glass, the heat exchanger, the exhaust vent system, and may stain the outside of the house. Frequently check your stove and adjust the slider/damper as needed to ensure proper combustion. See: “SLIDER/DAMPER SETTING”.
CLEANING: There will be some build up of fly ash and small amounts of creosote in the exhaust. This will vary due to the ash content of the fuel used and the operation of the stove. It is advisable to inspect and clean the exhaust vent semi-annually or every two tons of pellets.
The appliance, flue gas connector and the chimney flue require regular cleaning. Check them for blockage prior to re-lighting after a prolonged shut down period.
ASHES: Disposed ashes should be placed in a metal container with a tight fitting lid. The closed container of ashes should be on a non-combustible surface, well away from all combustible materials pending final disposal. If the ashes are disposed of by burial in soil or otherwise locally dispensed, they should be retained in the closed container until all cinders have thoroughly cooled.
ELECTRICAL: The use of a surge protected power bar is recommended. The unit must be grounded. The grounded electrical cord should be connected to a standard 110-120 volts (4.2 Amps), 60 hertz electrical outlet and also must be accessible. If this power cord should become damaged, a replacement power cord must be purchased from the manufacturer or a qualified Hampton dealer. Be careful that the electrical cord is not trapped under the appliance and that it is clear of any hot surfaces or sharp edges. This unit’s maximum power requirement is 504 watts.
GLASS: Do not abuse the glass by striking or slamming the door. Do not attempt to operate the stove with broken glass. The stove uses ceramic glass. Replacement glass must be purchased from an Hampton dealer. Do not attempt to open the door and clean the glass while the unit is in operation or if glass is hot. To clean the glass, use a soft cotton cloth and mild window cleaner, gas or wood stove glass cleaner, or take a damp paper towel and dip into the fly ash. This is a very mild abrasive and will not damage the glass.
KEEP ASH PAN FREE OF RAW FUEL. DO NOT PLACE UNBURNED OR NEW PELLET FUEL IN ASH PAN. A fire in the ash pan may occur.
INSTALLATION: Contact your local building or fire official to obtain a permit and any information on installation restrictions and inspection requirements for your area.
Be sure to maintain the structural integrity of your home when passing a vent through walls, ceilings, or roofs, and all construction meets local building codes. It is recommended that the unit be secured into its position in order to avoid any displacement. This appliance must be installed on a floor with an adequate load bearing capacity, if existing construction doesn’t meet load capacity, suitable measures (e.g. load distributing plate) must be taken to achieve it.
DO NOT INSTALL A FLUE DAMPER IN THE EXHAUST VENTING SYSTEM OF THIS UNIT.
DO NOT CONNECT THIS UNIT TO A CHIMNEY FLUE SERVING ANOTHER APPLIANCE.
FRESH AIR: This unit uses large quantities of air for combustion; outside Fresh Air connection is strongly recommended. Fresh Air must be connected to all units installed in Mobile and “Air Tight Homes” (R2000) or where required by local codes.
Consider all large air moving devices when installing your unit and provide room air accordingly. NOTE: Extractor fans when operating in the same room or space as the appliance may cause problems. Limited air for combustion may result in poor performance, smoking and other side effects of poor combustion.
The stove’s exhaust system works with negative combustion chamber pressure and a slightly positive chimney pressure. It is very important to ensure that the exhaust system be sealed and airtight. The ash pan and viewing door must be locked securely for proper and safe operation of the pellet stove.
Do not burn with insufficient combustion air. A periodic check is recommended to ensure proper combustion air is admitted to the combustion chamber. Setting the proper combustion air is achieved by adjusting the slider damper located on the left side of the stove.
Soot or creosote may accumulate when the stove is operated under incorrect conditions such as a rich burn (black tipped, lazy orange flames).
If you have any questions with regards to your stove or the above-mentioned information, please feel free to contact your local dealer for further clarification and comments.
SINCE REGENCY FIREPLACE PRODUCTS LTD. HAS NO CONTROL OVER THE INSTALLATION OF YOUR STOVE, REGENCY FIREPLACE PRODUCTS LTD. GRANTS NO WARRANTY IMPLIED OR STATED FOR THE INSTALLATION OR MAINTENANCE OF YOUR STOVE. THEREFORE, REGENCY FIREPLACE PRODUCTS LTD. ASSUMES NO RESPONSIBILITY FOR ANY CONSEQUENTIAL DAMAGE(S).
SAVE THIS INSTRUCTION MANUAL FOR FUTURE REFERENCE.
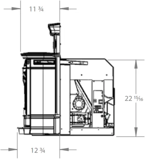
Specifications
DIMENSIONS:




Regular Cast Faceplate Dimensions Oversize Filler Panel Dimensions
SPECIFICATIONS:
Input rating when using: Wood Pellets/Corn – 55,000BTU (16.1KW•hr) & Wheat/Barley – 53,000BTU (15.5KW•hr).
Table 1: GCI60 Specifications.
| Description | Fuel type | |
| Residential Pellet Heater | 6mm (¼”) dia. Pellets – wood, corn, wheat, & barley* | |
| Voltage | Current | Max Power |
| 110 – 120 V | 4.2 Amps | 504 Watts |
| Frequency | Hopper Capacity | Consumption on Low |
| 60 Hz | up to 60 lb (36.3 Kg) | 1.5 lb/hr (0.68 Kg/hr)* |
| Testing Standard | Weight (with full hopper) | Consumption on High |
| ASTM 1509-04 | 500 lb (227 Kg) | 6.5 lb/hr (2.95 Kg/hr)* |
*Note: Consumption will vary with the type and quality of pellets / fuel used.
Operating Instructions
CONTROL BOARD FUNCTIONS:
Note: The Control Panel is located underneath the units Cast Hopper Lid which is attached to a safety switch that will immediately stop the auger. The switch will stop operation of the stove and display a #4 flash code if the lid is not closed within two minutes.
1. ON/OFF BUTTON: Used to turn the unit ON and OFF manually.
2. HEAT OUTPUT INDICATOR: Shows the present Heat Level output setting and the Feed Trim while it is being adjusted.
3. THERMOSTAT SWITCH: Sets the unit’s control mode; AUTO/OFF or HIGH/LOW (when using a Thermostat or Timer) or MANUAL.
4. FUEL TYPE LIGHTS: Shows the present Fuel Type selected; Premium Wood Pellets are Red, Regular Wood Pellets are Green, and Low Grade Wood Pellets / Multi-Fuel Pellets is Yellow. The Light flashes during start-up, and when the Thermostat is in control of the Unit. The Light stops flashing when the Exhaust Sensor closes.
5. FUEL TYPE BUTTON: Used to switch between three fuel type modes: Premium Pellets for high grade wood pellets, Regular pellet for mid grade wood pellets, and Low Grade for low grade wood pellets and other pellet fuel types (corn, wheat, barley).
6. COMBUSTION AIR TRIM BUTTON: Increases or Decreases the Fan voltage by 2.5volts on all feed settings. When pressed all lights on Heat Level Indicator will come on except the one that is the set point. Hold Trim Button down and press the UP or DOWN Heat Level Arrow to adjust setting. #3 Light is the default setting. Depending on Fuel quality Ignition problems may occur at higher altitudes, this can be resolved by trimming the Combustion Fan to a higher setting.
7. FEED TRIM BUTTON: Used in conjunction with the Heat Level Adjustment Buttons to adjust the Feed Trim. It can be increased by two (2) feed settings or it can be decreased by two (2) feed settings. #3 Light is the default setting.
8. HEAT LEVEL ADJUSTMENT BUTTONS: Changes the Heat Setting of the Unit from LO to HIGH. Press the Arrow Up button to increase Heat, and Arrow Down to decrease Heat.

Figure 2: Circuit Board Control Panel Decal
AUTOMATIC SAFETY FEATURES OF YOUR PELLET STOVE:
A. EXHAUST TEMPERATURE SWITCH: The stove will shut off when the fire goes out and the exhaust temperature drops below 49°C (120°F). It will display a #3 flash code.
B. HIGH LIMIT SAFETY SWITCH: If the temperature on the hopper reaches 93°C (200°F), the auger will automatically stop, the stove will shut down, and it will display a #4 flash code. If this happens, call your local dealer to reset the 93°C (200°F) high limit switch AND DETERMINE THE CAUSE OF THE OVERHEATING.
C. VACUUM SWITCH: Notifies when the unit has lost vacuum. This can be caused by either a combustion fan/vent failure, or simply the unit’s ash pan door, pedestal door. It will display a #2 flash code.
Starting a Fire in Your Pellet Stove 
OPERATING YOUR PELLET STOVE:
THE UNIT WILL NOT OPERATE WITH THE DOOR OR ASH BOX OPEN. Open the hopper lid only to re fuel or to adjust the controls. The unit will shut down if the hopper lid is left open for longer than two minutes.
CAUTION: When operating during adverse weather, such as high winds or freezing rain, if the unit exhibits dramatic changes in combustion stop using the unit immediately. Watch for blocked exhaust outlet.
CAUTION: Radiant surfaces can become very hot and can cause burns when contacted.
PRE-BURN CHECK: The burn pot liner holes must be clear and the liner installed properly against the ignitor tube and locked in place. Check the hopper for enough pellets to start the unit.
Note: To change fuel type, ensure the Thermostat Switch is set to Manual Mode. Press the Off button and then press the Fuel Type button to cycle through the available fuel types.
Note: The unit has an automatic cleaning cycle; every thirty minutes the agitator will turn continuously for one minute to help clean out the burn pot liner.
MANUAL MODE:
All control of circuit board function is adjusted at the circuit board.

Figure 3: Thermostat Switch in MANUAL position.
INITIAL START-UP: Press the ON / OFF button. The stove will turn on. The Fuel Type Light will flash (the Auger Feed Rate is pre-programmed during start-up). The Heat Level Indicator will show the Heat Level that the stove will run at after start-up.
If this is the first time the unit has been started or the unit has run out of fuel, the auger may need to be primed. The liner can be primed with a handful of pellets, or after the two minute prefeed, the unit can be restarted.
The agitator will not operate for the first five minutes after the ON button has been pressed. After the ten minutes it will pulse at the same interval as the feed auger.
When the start-up sequence is complete, the unit will switch to the designated heat setting. Once a fire has been established, the convection blower will turn on after ten minutes.
Starting a Fire in Your Pellet Stove
To OPERATE: Press the Heat Level buttons to change the desired Heat Level Output setting. The speed of the convection blower is controlled by the setting of the heat level.
The Feed Trim button pressed in conjunction with the Heat Level adjustment buttons can be used to adjust the feed trim. It can be increased by two feed settings or it can be decreased by two feed settings.
HIGH/LOW MODE: (Requires a Thermostat or Timer)
INITIAL START-UP: See MANUAL MODE above.
OPERATION: When the thermostat calls for heat (contacts are closed) the stove settings are adjustable as per Manual Mode. When the thermostat contacts open, the HEAT LEVEL and Fans will drop down to the LOW setting until the thermostat contacts close again. The stove will come back to the previous HEAT LEVEL setting once the thermostat contacts close.

Figure 4: Thermostat Switch in HIGH/LOW position.
AUTO/OFF MODE: (Requires a Thermostat or Timer)
INITIAL START-UP: See MANUAL MODE above.
OPERATION: When the thermostat contacts close, the unit will light automatically. Once up to temperature, the stove operates the same as in MANUAL. When the thermostat contacts open, the stove’s HEAT LEVEL and Fans will drop down to the LOW setting for 30 minutes. If the thermostat contacts close within the 30 minutes, the HEAT LEVEL will return to the previous MANUAL setting. If the thermostat contacts remain open, the stove automatically begins its shutdown routine. The stove will re-light when the thermostat contacts close again.

Figure 5: Thermostat Switch in AUTO/OFF position.
TURNING YOUR PELLET STOVE OFF:
- MANUAL and HI / LOW mode: To turn the unit OFF, simply press the ON / OFF button. This will stop the feed of pellets. The blowers will continue to operate and cool the stove down. When cool enough, the stove will turn off.
- AUTO / OFF mode: To turn the unit OFF, turn the Thermostat down or Timer off.
- On shut down the burn pot agitator will run continuously for five (5) minutes on premium mode, one (1) minute on regular mode, and five (5) minutes on low grade / multi-fuel Pellet mode.
DO NOT turn unit off during start-up or unplug unit while operating; this may lead to smoke escaping from the stove.
SLIDER/DAMPER SET-UP:
This is used to regulate the airflow through the pellet stove.
Starting a Fire in Your Pellet Stove

Figure 6: Slider/Damper Plate in Unit.
- SLIDER DAMPER
- EXHAUST SENSOR & REMOVABLE PLATE
- EXHAUST CHANNEL
- CONVECTION FAN
NOTE: THE SURROUND PANEL MOUNT HAS BEEN REMOVED FOR CLARITY
This unit is designed to operate within a negative pressure range of 0.15-0.17 inches of water column (37-42 Pa). This can be measured using a Magnahelic pressure gauge once the unit has been running on heat level 5 setting after one hour of burn time. This adjustment is necessary for varying venting configurations. The reading can be taken from the ⅛” hole located above the top right corner of the door. A #8 screw must be removed in order to access this hole.
The Combustion Trim, Feed Trim and Fuel Type Functions can be used to compensate for varying fuel qualities. Refer to page 7 for circuit board operation.
If, after long periods of burning, the fire builds up or there is a build up of clinkers, this would be a sign that the fuel quality is poor – this requires more air.
The easiest way to make sure that an efficient flame is achieved is to understand the characteristics of the fire.
- A tall, lazy flame with dark orange tips requires more air.
- A short, brisk flame, like a blowtorch, has too much air.
- If the flame is in the middle of these two characteristics with a bright yellow/orange, active flame with no black tips then the air is set for proper operation, refer to Figure 7.
SPECIAL NOTES:
Fuel quality is a major factor in how the stove will operate. If the fuel has a high moisture content or ash content the fire will be less efficient and has a higher possibility of the fire building up and creating clinkers (hard ash build-up).
If all of these steps are followed, there should be no visible emissions.
Routine Cleaning and Maintenance
The following list of components should be inspected and maintained routinely to ensure that the appliance is operating at its optimum and giving you excellent heat value. The appliance, flue gas connector and the chimney flue require regular cleaning. Check them for blockage prior to re-lighting after a prolonged shut down period.
| Check the Burn Pot Liner DAILY | |
| Weekly | Bi-annually or 2 Tons of Fuel |
| Burn Pot and Liner – Empty | Exhaust Vent |
| Agitator | Fresh Air Intake Tube |
| Heat Exchanger Tubes | Blower Mechanisms |
| Door Glass | Heat Exchanger Tubes |
| Ash Pan and Door Gaskets | Behind Firebox Liners |
| Inside Firebox | All Hinges |
| Door Latch | Post Season Clean-up |
TOOLS REQUIRED TO CLEAN UNIT:
Torx T-20 Screwdriver, ¼”, 5/16” ⅜”, & 7/16” wrench and/or socket, Brush, Soft Cloth, and Vacuum with fine filter bag
Cleaning Your Pellet Stove
BURNER POT AND LINER (Checked Daily/Emptied Weekly)
This is the ‘pot’ where the pellets are burned. Only clean when the unit is cold.
Note: If, after long periods of burning, the fire continually builds up and overflows the burn pot or there is a build up of clinkers, this is an indication that the pellet fuel quality is poor or the stove may need cleaning. Check the stove for ash build up (clean if required) and adjust the slider / damper to produce the proper clean combustion.
- Open the door using the door handle located on the right-hand side of the stove.
- Lift the lever on burn pot to unlock the fire grate and remove it.
- The agitator locks at the right; rotate the top of the agitator towards the back of the firebox to unlock it, slide it to the left, and lift it out of the burn pot liner.
- Lift the burn pot liner out of the stove.
- Lift the burn pot from the firebox by gently lifting it up at the front of the burn pot, then slide it out from around the air intake tube and the ignitor cartridge.
- Remove any build up on the agitator (calcium build-ups are common when burning corn). Using a metal scraper, remove material that has accumulated or is clogging the liner’s holes and dispose of the scraped ashes from the liner and from inside the burn-pot.
- Place the burn-pot back into the stove, there are hooks at the front of the burn pot that sit in a mount in the firebox. Ensure that the air intake tube and the ignitor cartridge are properly inserted into the burn pot.
- Place the liner back into the burn-pot, making sure that the ignitor hole in the liner is aligned with the ignitor tube.
- Slide the agitator back into place and turn rotate the top towards the front of the stove to lock it in.
- Set the fire grate in place, it should sit level on the front and back of the burn pot liner. Lock it in with the lever on the burn pot.
- Close the door

Figure 8: GCI60 Burn Pot Assembly.
- Burn Pot
- Air Intake Tubes
- Spring Loaded Ignitor
- Burn Pot Liner
- Agitator
- Fire Grate
HEAT EXCHANGER TUBES (Weekly)
The exchanger tube scraper rod handle is located above the firebox door. Move the handle all the way in and out a few times (ONLY WHEN THE UNIT IS COLD) in order to clean away any fly ash that may have collected on the heat exchanger tubes. As different types of pellets produce different amounts of ash, cleaning of the tubes should be done on a regular basis to enable the unit to run efficiently.
DOOR GLASS CLEANING (Weekly)
To maintain optimum heat transfer through the glass, clean it weekly. Cleaning of the glass must only be done when stove is cold. Open the door by lifting the handle. The glass can be cleaned by wiping down the outside and inside of the glass with a dry soft cloth. Do not use abrasive cleaners. If the glass has build up that can not be removed with only the cloth, clean the glass using paper towel and a gas appliance glass cleaner, this may be purchased through most dealers. If a gas appliance glass cleaner is not available, use a damp paper towel dipped in fly ash to clean the glass. After the glass has been cleaned use the dry soft cloth to wipe down the outside and inside of the glass.

Figure 9: GCI60 Heat Exchanger Cleaning.
- Front castings removed for clarity
ASH PAN AND DOOR GASKETS (Weekly)
After extended use the gasketing may come loose. To repair this, glue the gasketing on using high temperature fiberglass gasket glue available from your local dealer. This is important to maintain an airtight assembly.
ASH PAN (Weekly)
IMPORTANT: The unit must be OFF while the ash pan is removed.
The ash pan is located behind the lower castings (see Figure 10). To remove the ash pan, swing the cast front door out to the left, rotate the ash pan latch to the left and pull the ash drawer out towards you. Reach inside and pull the ash pan tray out.
Dump the ashes into a metal container stored away from combustibles. Monitor the ash level every week. Remember that different pellet fuels will have different ash contents. Ash content is a good indication of fuel efficiency and quality. Refer to “Safety Warnings And Recommendations” for disposal of ashes. Vacuum the inside of the ash pan compartment. Insert the ash pan fully and reverse the previous steps.
DO NOT PLACE UNBURNED OR RAW PELLET FUEL IN ASH PAN.
EXHAUST VENT (Biannually)
This vent should be cleaned every year or after two tons of pellets. We recommend contacting your dealer for professional cleaning. To clean the vent pipe, tap lightly on the pipe to dislodge any loose ash. Open the bottom of the “T” to dump the ash, then vacuum as much of the ash out of the vent pipe as possible.
FRESH AIR INTAKE (Biannually)
Inspect periodically to be sure that it is not clogged with any foreign materials.
Cleaning Your Pellet Stove
EXHAUST PASSAGES (Biannually)
- Swing open the cast door, and unlatch the firebox door.
(Both removed for clarity) - Remove the burn pot assembly and clean all the parts.
- Lubricate all screws with penetrating oil.
- Pull the Tube Scraper Rod fully out. Remove the firebox liner, and lift out the firebox lower. Vacuum the firebox and firebox liner thoroughly.
- Open the ash drawer; remove the ash pan and clean out the cavity.
- Re-install the parts in reverse order
- Close all doors securely.

Figure 10: GCI60 Exhaust Passages.
- ASH PAN
- ASH DRAWER
- FIREBOX LOWER
- FIREBOX LINER
BLOWER MECHANISMS (Annually)
Unplug the stove and pull the unit forward to access the two blowers. Vacuum all dust from motors. The blower motors have sealed bearings, DO NOT lubricate these motors. Check gaskets and replace if needed.
POST SEASON CLEAN-UP
Once you are finished using the pellet appliance for the season, unplug the stove for added electrical protection. It is very important that the stove be cleaned and serviced as stated above.
CLEANING PAINTED SURFACES
Please clean painted surfaces with a soft damp cloth.
Cleaning Your Pellet Stove
FIREBOX LINER
The paint on the Firebox Liner may peel. This is due to extreme conditions applied to the paint and is in no way covered by warranty.
DOOR GLASS REPLACEMENT
It is recommended that your dealer replace the glass if broken. The door glass is made of high temperature PYRO CERAMIC. To replace the glass, unscrew and remove the six retainer nuts using a 5/16” socket. Remove the glass and any broken pieces. High temperature fiberglass tape should be used around the glass in the same location as the original fiberglass. Insert the glass into the retainer and screw the door to the retainer. The use of substitute materials is prohibited. Use Hampton Part#: GCI60-024.
Optional Service Rail Kit (Part number GCI60-900)
- Remove Cast Ash Drawer Front.
- Slide open the Cast Top.
- Lift off Cast Sides.
- Clip Side Rails to unit.
- Attach Front Rail using the quick release pins as shown in Fig. 12.
- Adjust leg height and lock them in using the thumb screws. (Fig 12)
- Slide unit forward on rails.

Figure 11: GCI60 with Service Rail Kit

Figure 12: Close up of Front Rail
- Quick Release Pin
- Thumb Screw
Cleaning Your Pellet Stove
NOTES
WARRANTY
Limited Lifetime Warranty
FPI Fireplace Products International Ltd. (for Canadian customers) and Fireplace Products U.S., Inc. (for U.S. customers) (collectively referred to herein as “FPI”) extends this Limited Lifetime Warranty to the original purchaser of this appliance provided the product remains in the original place of installation. The items covered by this limited warranty and the period of such coverage is set forth in the table below.
Some conditions apply (see below).
The policy is not transferable, amendable or negotiable under any circumstances.
| Pellet Products Warranty Coverage for Components and labor is as follows: | Component Coverage 7 years | 2 years | Labour Coverage (Years) |
| Firebox/Heat exchanger | 2 | ||
| Surrounds, castings, door assembly. | 2 | ||
| Burn Pot, Log sets, Firebox panels, | 2 | ||
| Ceramic Glass (Thermal Breakage) | 2 | ||
| Pedestals, legs | 2 | ||
| Burn Pot Liner | 2 | ||
| Agitator | 2 | ||
| Auger Motor, Combustion blower, Convection blower | 2 | ||
| Wiring, all switches, Wiring harness, Power cords | 2 | ||
| Circuit boards, Circuit board ribbon cable | 2 | ||
| Vacuum switch, Ignitor, Air pump, Temperature sensors, Wall thermostat | 2 | ||
| Auger | 2 | ||
| Circuit Board Decals | 2 | ||
| Hopper Rails/ Baffle | 2 |
Conditions:
Warranty protects against defect in manufacture or FPI factory assembled components only, unless herein specified otherwise.
Any part(s) found to be defective during the warranty period as outlined above will be repaired or replaced at FPI’s option through an accredited distributor, dealer or pre-approved and assigned agent provided that the defective part is returned to the distributor, dealer or agent for inspection if requested by FPI. Alternatively, FPI may at its own discretion fully discharge all of its obligations under the warranty by refunding the verified purchase price of the product to the original purchaser. The purchase price must be confirmed by the original Bill of Sale.
The authorized selling dealer, or an alternative authorized FPI dealer if pre-approved by FPI, is responsible for all in-field diagnosis and service work related to all warranty claims. FPI is not responsible for results or costs of workmanship of unauthorized FPI dealers or agents in the negligence of their service work.
At all times FPI reserves the right to inspect reported complaints on location in the field claimed to be defective prior to processing or authorizing of any claim. Failure to allow this upon request will void the warranty.
All warranty claims must be submitted by the dealer servicing the claim, including a copy of the Bill of Sale (proof of purchase by you). All claims must be complete and provide full details as requested by FPI to receive consideration for evaluation. Incomplete claims may be rejected.
Replacement units are limited to one per warranty term. Airtube and baffle replacements are limited to one replacement per term.
Unit must be installed according to all manufacturers’ instructions as per the manual.
All Local and National required codes must be met.
The installer is responsible to ensure the unit is operating as designed at the time of installation.
The original purchaser is responsible for annual maintenance of the unit, as outlined in the owner’s manual. As outlined below, the warranty may be voided due to problems caused by lack of maintenance.
Repair/replacement parts purchased by the consumer from FPI after the original coverage has expired on the unit will carry a 90 day warranty, valid with a receipt only. Any item shown to be defective will be repaired or replaced at our discretion. No labor coverage is included with these parts
Exclusions:
This Limited Lifetime Warranty does not extend to paint, rust or corrosion of any kind due to a lack of maintenance or improper venting, combustion air provision, corrosive chemicals (i.e. chlorine, salt, air, etc.), inner panels, door or glass gasketing, or any other additional factory fitted gasketing.
Malfunction, damage or performance based issues as a result of environmental conditions, location, chemical damages, downdrafts, installation error, installation by an unqualified installer, incorrect chimney components (including but not limited to cap size or type), operator error, abuse, misuse, use of improper fuels (plastics, garbage, solvents, cardboard, coal or coal products, oil based products, waxed cartons, compressed pre manufactured logs), lack of regular maintenance and upkeep, acts of God, weather related problems from hurricanes, tornados, earthquakes, floods, lightning strikes/bolts or acts of terrorism or war, which result in malfunction of the appliance are not covered under the terms of this Limited Lifetime Warranty.
FPI has no obligation to enhance or modify any unit once manufactured (i.e. as products evolve, field modifications or upgrades will not be performed on existing appliances).
This warranty does not cover dealer travel costs for diagnostic or service work. All labor rates paid to authorized dealers are subsidized, pre-determined rates. Dealers may charge homeowner for travel and additional time beyond their subsidy.
Any unit showing signs of neglect or misuse will not be covered under the terms of this warranty policy and may void this warranty. This includes units with rusted or corroded fireboxes which have not been reported as rusted or corroded within three (3) months of installation/purchase.
Units which show evidence of being operated while damaged, or with problems known to the purchaser and causing further damages will void this warranty.
Units where the serial no. has been altered, deleted, removed or made illegible will void this warranty.
Minor movement, expansion and contraction of the steel is normal and is not covered under the terms of this warranty.
FPI is not liable for the removal or replacement of facings or finishing in order to repair or replace any appliance in the field.
Freight damages for products or parts are not covered under the terms of the warranty.
Products made or provided by other manufacturers and used in conjunction with the FPI appliance without prior authorization from FPI may void this warranty.
Limitations of Liability:
The original purchaser’s exclusive remedy under this warranty, and FPI’s sole obligation under this warranty, express or implied, in contract or in tort, shall be limited to replacement, repair, or refund, as outlined above. IN NO EVENT WILL FPI BE LIABLE UNDER THIS WARRANTY FOR ANY INCIDENTAL OR CONSEQUENTIAL COMMERCIAL DAMAGES OR DAMAGES TO PROPERTY. TO THE EXTENT PERMITTED BY APPLICABLE LAW, FPI MAKES NO EXPRESS WARRANTIES OTHER THAN THE WARRANTY SPECIFIED HEREIN. THE DURATION OF ANY IMPLIED WARRANTY IS LIMITED TO DURATION OF THE EXPRESSED WARRANTY SPECIFIED ABOVE. IF IMPLIED WARRANTIES CANNOT BE DISCLAIMED, THEN SUCH WARRANTIES ARE LIMITED IN DURATION TO THE DURATION OF THIS WARRANTY.
Some U.S. states do not allow limitations on how long an implied warranty lasts, or allow exclusion or limitation of incidental or consequential damages, so the above limitations or exclusions may not apply to you.
Customers located outside the U.S. should consult their local, provincial or national legal codes for additional terms which may be applicable to this warranty.
How to Obtain Warranty Service:
Customers should contact the authorized selling dealer to obtain warranty service. In the event the authorized selling dealer is unable to provide warranty service, please contact FPI by mail at the address listed below. Please include a brief description of the problem and your address, email and telephone contact information. A representative will contact you to make arrangements for an inspection and/or warranty service.
Canadian Warrantor:
FPI Fireplace Products International Ltd.
6988 Venture St.
Delta, British Columbia
Canada, V4G 1H4
U.S. Warrantor:
Fireplace Products U.S., Inc.
PO Box 2189 PMB 125
Blaine, WA
United States, 98231
Or contact the Regency Customer Care Centre at 1-800-442-7432 (phone) / 604-946-4349 (fax)
Product Registration and Customer Support:
Thank you for choosing a Regency Fireplace. Regency strives to be a world leader in the design, manufacture, and marketing of hearth products. To provide the best support for your product, we request that you complete a product registration form at http://www.regency-fire.com/Customer-Care/Warranty-Registration.aspx within ninety (90) days of purchase.

Product Registration and Customer Support:
Thank you for choosing a Regency Fireplace. Regency strives to be a world leader in the design, manufacture, and marketing of hearth products. To provide the best support for your product, we request that you complete a product registration form found on our Web Site under Customer Care within ninety (90) days of purchase.
For purchases made in CANADA or the UNITED STATES:
http://www.regency-fire.com/Customer-Care/Warranty-Registration.aspx
For purchases made in AUSTRALIA:
http://www.regency-fire.com.au/Customer-Care/Warranty-Registration.aspx
You may also complete the warranty registration form below to register your Regency Fireplace Product and mail and/or fax it back to us, and we will register the warranty for you. It is important you provide us with all the information below in order for us to serve you better.
Warranty Registration Form (or Register online immediately at the above Web Site):
| Warranty Details | |
| Serial Number (required): | |
| Purchase Date (required) (mm/dd/yyyy): | |
| Product Details | |
| Product Model (required): | |
| Dealer Details | |
| Dealer Name (required): | |
| Dealer Address: | |
| Dealer Phone #: | |
| Installer: | |
| Date Installed (mm/dd/yyyy): | |
| Your Contact Details (required) | |
| Name: | |
| Address: | |
| Phone: | |
| Email: | |
For purchases made in CANADA:
FPI Fireplace Products International Ltd.
6988 Venture St.
Delta, British Columbia
Canada, V4G 1H4
Phone: 604-946-5155
Fax: 1-866-393-2806
For purchases made in the UNITED STATES:
Fireplace Products US, Inc.
PO Box 2189 PMB 125
Blaine, WA
United States, 98231
Phone: 604-946-5155
Fax: 1-866-393-2806
For purchases made in AUSTRALIA:
Fireplace Products Australia Pty Ltd
1- 3 Conquest Way
Hallam, VIC
Australia, 3803
Phone: +61 3 9799 7277
Fax: +61 3 9799 7822
For fireplace care and tips and answers to most common questions please visit our Customer Care section on our Web Site. Please feel free to contact your selling dealer if you have any questions about your Regency product.
NOTES
Hampton GCI60 Cast Pellet Insert Owner’s Manual
Installer: Please complete the following information
Dealer Name & Address:_______________________ _____________________________________________
Installer: _____________________________________
Phone #: _____________________________________
Date Installed: ________________________________
Serial #:______________________________________
Hampton GCI60
Regency, Hampton and Greenfire are registered and / or proprietary trademarks of FPI Fireplace Products International Ltd.
© Copyright 2021, FPI Fireplace Products International Ltd. All rights reserved.
Printed in Canada






















