Troffer AT1 Instruction
Manual
LED Troffer AT1
ACE LED TROFFER (AT1) INSTALLATION INSTRUCTIONS
READ CAREFULLY BEFORE INSTALLING FIXTURE.
PLEASE KEEP THIS MANUAL FOR FUTURE USE.
Fixtures must be wired in accordance with the national electrical code and all applicable local codes. Proper grounding is required for safety.
This product must be installed in accordance with the application code by a person familiar with the construction and operation of the product and the hazards involved. Make certain power off before installing or maintaining fixture. Check that voltage is compatible with fixture driver, use approved connectors for all electrical connections
LED troffer not suitable for using in wet locations.
LED troffer not suitable for covering with thermally insulating material.
Please keep the LED troffer away from any corrosive substance, and please use dry cloth when you clean it.
WARNING
Risk of Fire or Electric Shock
Make sure power supply is off before installing or maintaining the product.
Risk of fire or electric shock. Install this product only in the luminaires that have the construction features and dimensions shown in the photographs and/or drawings and where the input rating of the product does not exceed the input rating of the luminaire. Install the recessed troffer only in 15/16” NEMA type G or type NFG t-grids with a minimum troffer depth of 3”. Risk of fire or electric shock. To prevent wiring damage or abrasion, do not expose wiring to edges of sheet metal or other sharp objects.
Risk of fire or electric shock. Installation guide requires knowledge of luminaire electrical systems. If not qualified, do not attempt installation. Contact a qualified electrician.
Risk of fire or electric shock. Only those open holes indicated in the photographs and/or drawings may be made or altered as a result of kit installation. Do not make or alter any open holes in an enclosure of wiring or electrical components during installation.
Risk of fire or electric shock. Never perform maintenance or cleaning while fixture is energized. Disconnect power and allow fixture to cool before maintaining.
Risk of injury. Wear safety glasses and gloves during installation and servicing.
MAINTENANCE CAUTION
- Review the diagrams before beginning and make sure the fixture is grounded properly.
- For lighting controls, use driver wiring diagram.
- Turn power off and wait for fixture to cool.
- Maintenance must be done by qualified electricians.
TECHNICAL SPECS
| Part No. | Power | Working Current | Input Voltage | Efficacy | CCT | Viewing Angle | CRI | PF | Dimmable | Warranty |
| AT10S-A2-ADJ-22-ADJ-80-FR -LV-GRID- xxx]-10V | 30W / 35W / 40W | 0.367A | AC 120-277V | 125 LPW | 3500K / 4000K / 5000K | 120° | ≥80 | ≥0.9 | 0-10V | 5 Years |
| AT10S-A2-ADJ-24-ADJ-80-FR -LV-GRID-[xxx]-10V | 30W / 40W / 50W | 0.458A |

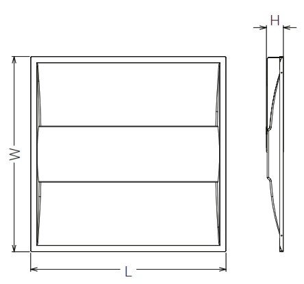
| Dimensions | 2×2 | 2×4 |
| L | 23.74” | 47.75” |
| W | 23.74” | 23.74” |
| H | 2.08” | 2.08” |
INSTALLATION GUIDE
![]() | ![]() |
| Unscrew the driver cover. | Connect the conduit to the driver box. |
![]() | ![]() |
| Connect other wires separately. | Put back the driver cover and fix it by screw. |
Recessed Installation
- Replace existing lighting fixture from ceiling with LED Troffer.

- Use the protective brackets for safety.

Linmore LED Labs, Inc.
2360 S Orange Ave, Fresno CA 93725
559-485-6010
linmoreled.com
[email protected]
























