HubSat4Di Passive UTP Transceiver Hub

Overview:
Altronix HubSat4Di Passive UTP Transceiver Hub with Integral Isolated Camera Power transmits UTP video, RS422/RS485 data and power over a single CAT-5 or higher structured cable. Unit provides 4 camera channels in a wall mount enclosure. Video transmission range is up to 750 ft. max. per channel. Units are compatible with AC and/or DC fixed or PTZ cameras when utilizing Altronix Hub Way Av or Hub Way Dv Video Balun/Combiners. In addition, the unit features individually selectable 24VAC or 28VAC electronically isolated PTC protected outputs with surge suppression. Optionally, the HubSat4Di can be used as an accessory module to transmit video from up to 4 cameras over a single CAT-5 or higher structured cable back to the Hub Way, Hub Way LD or Hub Way LDH Passive and Active UTP Transceiver Hubs. In addition, the HubSat4Di provides power to these cameras locally to eliminate the possibility of voltage drop associated with long cable runs.
Specifications:
- Input:
115VAC, 50/60Hz, 1.25A. - Video:
- Four (4) channels of quality video over twisted pair up to a distance of 750 ft. per channel.
- Four (4) 75 Ohm video outputs.
- Data:
RS422/RS485 data input. - Power:
- Individually selectable 24VAC or 28VAC power outputs with OFF position.
- Unit provides up to 1A max. per channel not to exceed a total of 4A maximum current.
- Individual electronically isolated outputs.
- PTC protected outputs are rated @ 1A per channel.
- Surge suppression.
- Visual Indicators:
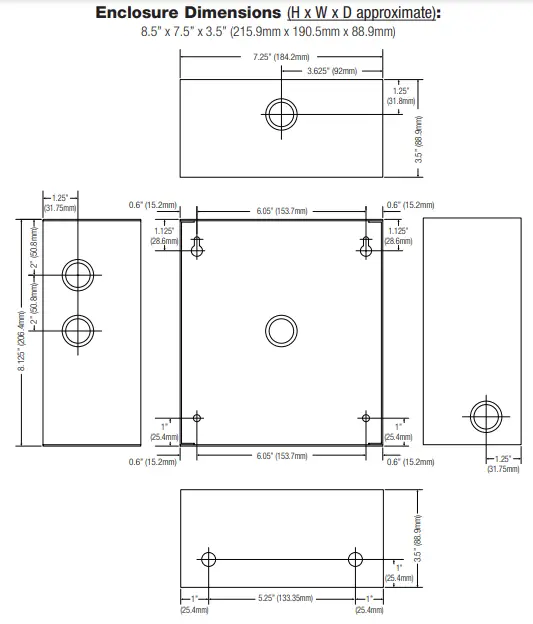
Four (4) power LED indicators. - Enclosure Dimensions (H x W x D):
8.5” x 7.5” x 3.5” (215.9mm x 190.5mm x 88.9mm). - Optional Accessories:
- Video Balun/Combiners:
- HubWayAv – for use with 24VAC cameras.
- HubWayAv2 – for use with 24VAC cameras.
- Hub Way Dv – for use with 12VDC cameras.
- Video Balun/Combiners:
Additional Models:
- HubSat42Di
HubSat4Di w/four (4) Hub Way Av Video Balun/Combiners for 24VAC Cameras. - HubSat43D
HubSat4Di w/four (4) Hub Way Dv Video Balun/Combiners for 12VDC Cameras.
Installation Instructions:
WARNING: To reduce the risk of fire or electric shock do not expose the unit to rain or moisture. This installation should be made by qualified service personnel and should conform to all local codes.
HubSat4Di Passive UTP Transceiver Hub with Integral Isolated Camera Power.
- Mount unit in the desired location. Mark and pre drill holes in the wall to line up with the top two keyholes in the enclosure. Install two upper fasteners and screws in the wall with the screw heads protruding. Place the enclosure’s upper keyholes over the two upper screws; level and secure. Mark the position of the lower two holes. Remove the enclosure. Drill the lower holes and install two fasteners. Place the enclosure’s upper keyholes over the two upper screws. Install the two lower screws and make sure to tighten all screws (Enclosure Dimensions, pg. 12). Secure green wire lead to earth ground.
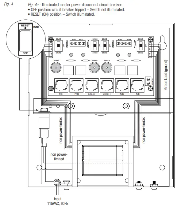
- Set illuminated master power disconnect circuit breaker to the [OFF] position (Fig. 4a, pg. 8).
- Connect 115VAC 50/60Hz to the black and white flying leads of open frame transformer. Secure ground wire (Green) to earth ground (Fig. 5, pg. 9). The power LEDs (Green) for Channels 1-4 of the HubSat4Di will illuminate when AC power is present (Fig. 1e, pg. 6)
- Select 24VAC or 28VAC power output for each of the Channels 1-4 on HubSat4Di (Fig. 4, pg. 8) with the corresponding output voltage switches. Select OFF position when servicing or installing individual cameras (Fig. 1d, pg. 6).
- Connect the BNC video outputs marked [Video 1-4] on HubSat4Di to the corresponding video inputs on the head end equipment (DVR) (Fig. 1a, pg. 6).
- Connect terminals marked [+ Data –] on HubSat4Di (polarity must be observed) to the RS422/RS485 output of the head end equipment (DVR) (Fig. 1f, pg. 6). When using fixed cameras disregard this step.
- Plug the RJ45 connector at one end of the CAT-5 or higher structured cable into the RJ45 jack marked [PVD1] on HubSat4Di (Fig. 1i, pg. 6). Plug the RJ45 connector at the opposite end of the CAT-5 or higher structured cable into the RJ45 jack of the Video Balun/Combiner to be installed at camera 1.
- For 24VAC cameras use Altronix model HubWayAv/HubWayAv2 Video Balun/Combiner (Figs. 2a, 2b, 2e. pg. 7).
- For 12VDC cameras use Altronix model Hub Way Dv Video Balun/Combiner (Figs. 2c, 2d, pg. 7).
The total cable distance must not exceed 750 ft. for video transmission between the HubSat4Di and each camera. Repeat this step for all other camera channels [PVD2-4].
- Set illuminated master power disconnect circuit breaker to the RESET (ON) position (Fig. 4a, pg. 8). Power LEDs (Green) of the Hub Sat will illuminate when AC power is present (Fig. 1e, pg. 6) and Hub Way Av and Hub Way Dv Video Balun/Combiner LEDs will illuminate indicating power is present
(Fig. 2b, 2d, pg. 7). - Measure the output voltage at each Video Balun/Combiner (Figs. 2b, 2d, pg. 7) before making connections to each camera to ensure proper operation and avoid possible damage.
- Set illuminated master power disconnect circuit breaker to the (OFF) position (Fig. 4a, pg. 8).
- Connect power outputs of HubWayAv, HubWayAv2 or HubWayDv Video Balun/Combiners to power inputs of cameras (Figs. 2a-2e, pg. 7). Polarity must be observed.
- HubWayAv/HubWayAv2 – Terminals marked [AC POWER] (Figs. 2a, 2b, 2e, pg. 7).
- HubWayDv – Terminals marked [– 12VDC +] (Figs. 2c, 2d, pg. 7).
- Connect the terminals marked [+ DATA –] of HubWayAv, HubWayAv2v or HubWayDv Video Balun/Combiners to the data input terminals of cameras for PTZ control (Figs. 2b-2d, pg. 7). Polarity must be observed. When using fixed cameras disregard this step.
- Connect the BNC connector of HubWayAv, HubWayAv2 or HubWayDv Video Balun/Combiners to the BNC video outputs of cameras (Figs. 2b-2d, pg. 7).
- Set illuminated master power disconnect circuit breaker to the RESET (ON) position (Fig. 4a, pg. 8).
- The power LEDs (Green) of the HubSat4Di will illuminate when AC power is present (Fig. 1e, pg. 6). Note: If any of the power LEDs are not illuminated the cause may be due to the following:
- AC mains fail.
- Illuminated master power disconnect circuit breaker is tripped.
- An individual power output voltage switch is set to the OFF position (Fig. 1d, pg. 6).
- A PTC is tripped due to a short circuit or overload condition for one or more channels/power outputs. To reset the PTC:
- Set the voltage output selector switch for that corresponding channel to the OFF position.
Switch must remain in the OFF position for approximately 2 minutes in order for the PTC to reset
(Fig. 1d, pg. 6). - Eliminate the trouble condition (short circuit or overload).
- Set the voltage output selector switch for either 24VAC or 28VAC (Fig. 1d, pg. 6).
- Set the voltage output selector switch for that corresponding channel to the OFF position.
HubSat4Di for use as a Remote Accessory Module with HubWay/HubWayLD/HubWayLDH UTP Transceiver Hubs.
After completing steps 1-4 of Installation Instructions for HubSat4Di Passive UTP Transceiver Hub with Integral Isolated Camera Power proceed with the following.
- For fixed cameras, run a single CAT-5 cable between HubSat4Di and Hub Way, Hub Way LD or Hub Way LDH to allow video transmission of up to four (4) cameras. For PTZs, run two (2) CAT-5 cables between HubSat4Di and Hub Way, Hub Way LD or Hub Way LDH (Fig. 6, pg. 9).
- Connect one (1) of the CAT-5 cables to the RJ45 jack marked [Video 1-4] on HubSat4Di. Connect the opposite end of this CAT-5 cable into the RJ45 jack marked [CH 1-4] of Hub Way, Hub Way LD or Hub Way LDH unit (Fig. 6, pg. 9).
- For data (PTZ), connect the second CAT-5 cable to the RJ45 jack marked [Data 1-4] on HubSat4Di. Connect the opposite end of this CAT-5 cable into any unused RJ45 jack marked [1-16] of Hub Way, Hub Way LD or Hub Way LDH unit (Fig. 6, pg. 9).
Note: Data inputs of Hub Way, Hub Way LD or Hub Way LDH units must be wired in parallel for proper operation. When using fixed cameras disregard this step.
- Plug the RJ45 connector at one end of the CAT-5 or higher structured cable into the RJ45 jack marked [PVD1] on HubSat4Di (Fig. 1i, pg. 6). Plug the RJ45 connector at the opposite end of the CAT-5 or higher structured cable into the RJ45 jack of the Video Balun/Combiner to be installed at camera 1.
- For 24VAC cameras use Altronix model Hub Way Av/HubWayAv2 Video Balun/Combiner
(Figs. 2a, 2b, 2e, pg. 7). - For 12VDC cameras use Altronix model Hub Way Dv Video Balun/Combiner (Figs. 2c, 2d, pg. 7).
The total cable distance must not exceed 750 ft. for video transmission between the HubSat4Di and each camera. Repeat this step for all other camera channels [PVD 2-4].
- For 24VAC cameras use Altronix model Hub Way Av/HubWayAv2 Video Balun/Combiner
- Set illuminated master power disconnect circuit breaker to the RESET (ON) position (Fig. 4a, pg. 8). Power LEDs (Green) of the HubSat4Di will illuminate when AC power is present (Fig. 1e, pg. 6) and Hub Way Av, Hub Way Dv Video Balun/Combiner LEDs will illuminate indicating power is present
(Fig. 2b, 2d, pg. 7). - Measure the output voltage at each Video Balun/Combiner (Figs. 2b, 2d, pg. 7) before making connections to each camera to ensure proper operation and avoid possible damage.
- Set illuminated master power disconnect circuit breaker to the (OFF) position (Fig. 4a, pg. 8).
- Connect power outputs of Hub Way Av, HubWayAv2 or Hub Way Dv Video Balun/Combiners to power inputs of the cameras (Figs. 2a-2e, pg. 7). Polarity must be observed.
- Hub Way Av/HubWayAv2 – Terminals marked [AC POWER] (Figs. 2a, 2b, 2e, pg. 7).
- Hub Way Dv/ – Terminals marked [– 12VDC +] (Figs. 2c, 2d, pg. 7).
- Connect the terminals marked [+ DATA –] of Hub Way Av, HubWayAv2 or Hub Way Dv Video Balun/Combiners to the data input terminals of cameras for PTZ control (Figs. 2b-2e, pg. 7). Polarity must be observed. When using fixed cameras disregard this step.
- Connect the BNC connector of Hub Way Av, HubWayAv2 or Hub Way Dv Video Balun/Combiners to the BNC video outputs of cameras (Figs. 2b-2e, pg. 7).
- Set illuminated master power disconnect circuit breaker to the RESET (ON) position (Fig. 4a, pg. 8).
- The power LEDs (Green) of the HubSat4Di will illuminate when AC power is present (Fig. 1e, pg. 6). Note: If any of the power LEDs are not illuminated the cause may be due to the following:
- AC mains fail.
- Illuminated master power disconnect circuit breaker is tripped.
- An individual power output voltage switch is set to the OFF position (Fig. 1d, pg. 6).
- A PTC is tripped due to a short circuit or overload condition for one or more channels/power outputs. To reset the PTC:
- Set the voltage output selector switch for that corresponding channel to the OFF position. Switch must remain in the OFF position for approximately 2 minutes in order for the PTC to reset (Fig. 1d, pg. 6).
- Eliminate the trouble condition (short circuit or overload).
- Set the voltage output selector switch for either 24VAC or 28VAC (Fig. 1d, pg. 6).
Alternate 24VAC Fixed Camera Hookup (Fig. 7a, pg. 9).
After completing steps 1-5 of Installation Instructions Remote Accessory Module for use with HubWay, HubWayLD or HubWayLDH UTP Transceiver Hubs proceed with the following.
- Set illuminated master power disconnect circuit breaker to the (OFF) position (Fig. 4a, pg. 8).
- Connect one end of the coaxial cable to the BNC connector marked [Video1] on HubSat4Di (Fig. 1a, pg. 6). Connect the opposite end of the coaxial cable to the BNC video output of camera 1 (Fig. 6a, pg. 9).
- Set illuminated master power disconnect circuit breaker to the RESET (ON) position (Fig. 4a, pg. 8). Measure the output voltage at terminal pair marked [AUX1] on HubSat4Di to ensure proper operation and avoid possible damage (Fig. 1c, pg. 6).
- Connect the power output terminal pair marked [AUX1] on HubSat4Di to the power inputs of camera 1 (Fig. 1c, pg. 6). Repeat steps 1-3 for each additional camera [AUX2-4].

- 1a – BNC Connector: Video in from remote camera video out to DVR.
- 1b – Output PTCs: Protects each output.
- 1c – Power Terminals: 24VAC/28VAC power outputs.
- 1d – Output Voltage Switches: Selects 24VAC/28VAC/OFF for each output.
- 1e – LED(s) 1-4: Power output indicators.
- 1f – Data: RS422/RS485 input from head end equipment (DVR) for PTZ control.
- 1g – Channels 1-4: Single CAT-5 or higher structured cable out to Hub Way, Hub Way LD or Hub Way LDH enables transmission of up to four (4) video signals. Pin out configuration (Fig. 3, pg. 7).
- 1h – Data: CAT-5 or higher structured cable to data port on Hub Way, Hub Way LD or Hub Way LDH or head end equipment (DVR).
- 1i – Channels 1-4: CAT-5 or higher structured cable to cameras. Pin out configuration (Fig. 3, pg. 7).
Hub Way Av, HubWayAv2, Hub Way Dv Video Balun/Combiners:
| Altronix Model Number | Input Voltage from HubWay Unit |
Output Voltage to Camera |
Camera Type | Power LED |
| HubWayAv | *24VAC/28VAC | *24VAC/28VAC | *24VAC/28VAC | Green |
| HubWayAv2 | *24VAC/28VAC | *24VAC/28VAC | *24VAC/28VAC | N/A |
| HubWayDv | *24VAC/28VAC | 12VDC | 12VDC cameras | Red |


Typical Application Drawing for HubSat4Di
Passive UTP Transceiver Hub with Integral Camera Power:

WARNING
- The lightning flash with arrowhead symbol within an equilateral triangle is intended to alert the user to the presence of an insulated
- DANGEROUS VOLTAGE within the product’s enclosure that may be of sufficient magnitude to constitute an electric shock.
- The exclamation point within an equilateral triangle is intended to alert the user to the presence of important operating and maintenance (servicing) instructions in the literature accompanying the appliance.
CAUTION: To reduce the risk of electric shock do not open enclosure. There are no user serviceable parts inside. Refer servicing to qualified service personnel.
Enclosure Dimensions (H x W x D approximate):
8.5” x 7.5” x 3.5” (215.9mm x 190.5mm x 88.9mm)

ABOUT COMPANY
- Altronix is not responsible for any typographical errors.
- 140 58th Street, Brooklyn, New York 11220 USA
- phone: 718-567-8181
- fax: 718-567-9056
- website: www.altronix.com
- e-mail: [email protected]
- Lifetime Warranty IIHubSat4Di I20U




















