
Video • Data • Power
More than just power.™
HubSat4DiV
Four (4) Camera Channels Passive
UTP Transceiver Hub
with Integral Isolated Camera Power
Installation Guide
Rev. 030612
Installing Company: _______________ Service Rep. Name: ______________________
Address: _____________________________________ Phone #: __________________
Overview:
Altronix HubSat4DiV Passive UTP Transceiver Hub with Integral Isolated Camera Power transmits UTP video, RS422/RS485 data, and power over a single CAT-5 or higher structured cable. The unit provides 4 camera channels in a wall-mount enclosure. Video transmission range is up to 750 ft. max. per channel. Units are compatible with AC and/or DC fixed or PTZ cameras when utilizing Altronix HubWayAv or HubWayDv Video Balun/Combiners. In addition, the unit features individually selectable 24VAC or 28VAC electronically isolated PTC-protected outputs with surge suppression. Optionally, the HubSat4DiV can be used as an accessory module to transmit video from up to 4 cameras over a single CAT-5 or higher structured cable back to the subway, HubWayLD or HubWayLDH Passive and Active UTP Transceiver Hubs. In addition, the HubSat4DiV provides power to these cameras locally to eliminate the possibility of voltage drop associated with long cable runs.
Specifications:
Input:
- 220VAC, 50/60Hz, 0.75A.
Video:
- Four (4) channels of quality video over twisted pair up to a distance of 750 ft. per channel.
- Four (4) 75 Ohm video outputs.
Data:
- RS422/RS485 data input.
- Individually selectable 24VAC or 28VAC power outputs with an OFF position.
- The unit provides up to 1A max. per channel not to exceed a total of 4A maximum current.
- Individual electronically isolated outputs.
Power (cont.):
- PTC-protected outputs are rated @ 1A per channel.
- Surge suppression.
Visual Indicators:
- Four (4) power LED indicators.
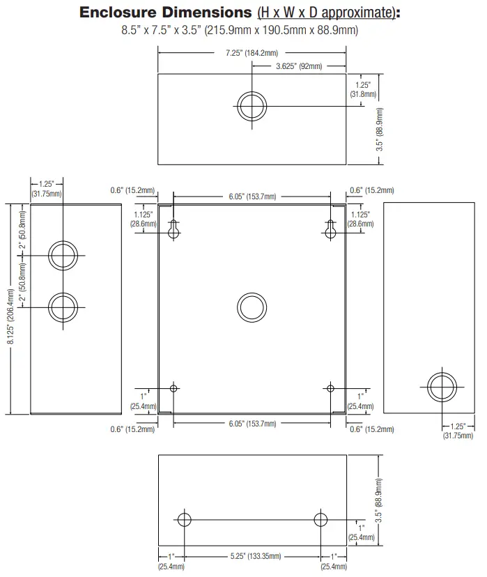
Enclosure Dimensions (H x W x D):
8.5” x 7.5” x 3.5”
215.9mm x 190.5mm x 88.9mm).
Optional Accessories:
- Video Balun/Combiners:
– HubWayAv – for use with 24VAC cameras.
– HubWayAv2 – for use with 24VAC cameras.
– HubWayDv – for use with 12VDC cameras.
WARNING: To reduce the risk of fire or electric shock do not expose the unit to rain or moisture. This installation should be made by qualified service personnel and should conform to all local codes.
Installation Instructions:
HubSat4DiV Passive UTP Transceiver Hub with Integral Isolated Camera Power.
- Mount the unit in the desired location. Mark and predrill holes in the wall to line up with the top two keyholes in the enclosure. Install two upper fasteners and screws in the wall with the screw heads protruding. Place the enclosure’s upper keyholes over the two upper screws; level and secure. Mark the position of the lower two holes. Remove the enclosure. Drill the lower holes and install two fasteners. Place the enclosure’s upper keyholes over the two upper screws. Install the two lower screws and make sure to tighten all screws (Enclosure Dimensions, pg. 12). Secure green wire leads to earth ground.
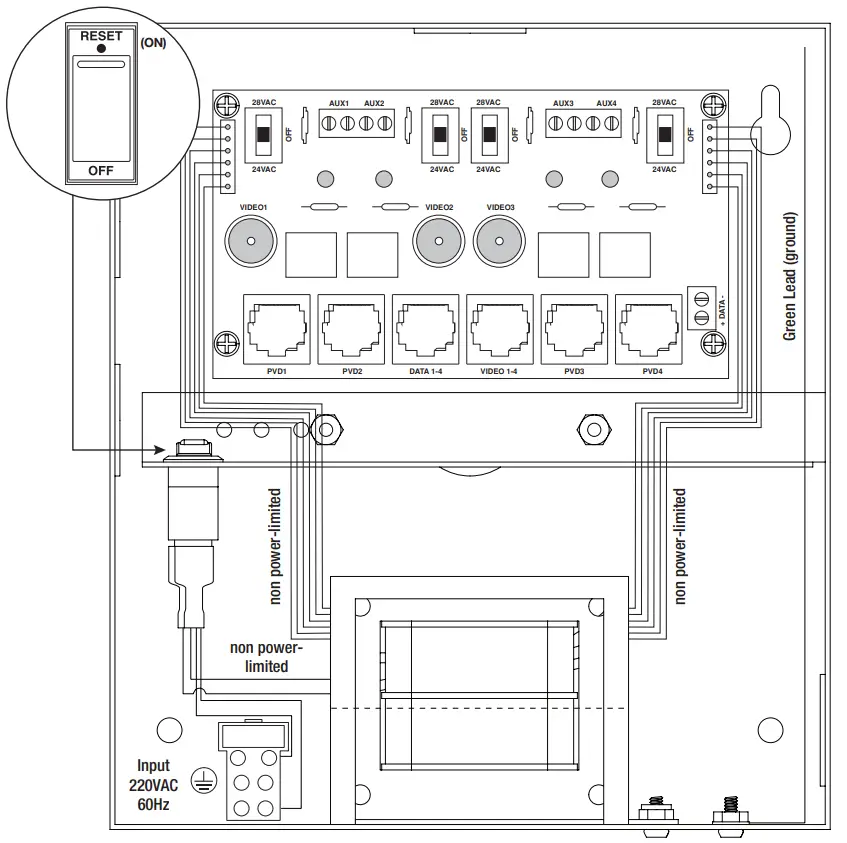
- Set the illuminated master power disconnect circuit breaker to the [OFF] position (Fig. 4a, pg. 8).
- Connect the unswitched AC circuit (220VAC, 60Hz) as follows: Green branch wire (ground) connects to the terminal marked,
Line, connects to the terminal marked [L], and Neutral connects to the terminal marked [N] of the Inlet Appliance Connector (Fig. 5, pg. 9). The power LEDs (Green) for Channels 1-4 of the HubSat4DiV will illuminate when AC power is present (Fig. 1e, pg. 6) - Select 24VAC or 28VAC power output for each of the Channels 1-4 on HubSat4DiV (Fig. 4, pg. 8) with the corresponding output voltage switches. Select the OFF position when servicing or installing individual cameras (Fig. 1d, pg. 6).
- Connect the BNC video outputs marked [Video 1-4] on HubSat4DiV to the corresponding video inputs on the head end equipment (DVR) (Fig. 1a, pg. 6).
- Connect terminals marked [+ Data –] on HubSat4DiV (polarity must be observed) to the RS422/RS485 the output of the head end equipment (DVR) (Fig. 1f, pg. 6). When using fixed cameras disregard this step.
- Plug the RJ45 connector at one end of the CAT-5 or higher structured cable into the RJ45 jack marked [PVD1] on HubSat4DiV (Fig. 1i, pg. 6). Plug the RJ45 connector at the opposite end of the CAT-5 or higher structured cable into the RJ45 jack of the Video Balun/Combiner to be installed at camera 1.
• For 24VAC cameras use the Altronix model HubWayAv/HubWayAv2 Video Balun/Combiner (Figs. 2a, 2b, 2e. pg. 7).
• For 12VDC cameras use the Altronix model HubWayDv Video Balun/Combiner (Figs. 2c, 2d, pg. 7).
The total cable distance must not exceed 750 ft. for video transmission between the HubSat4DiV and each camera. Repeat this step for all other camera channels [PVD2-4]. - Set illuminated master power disconnect circuit breaker to the RESET (ON) position (Fig. 4a, pg. 8). Power LEDs (Green) of the HubSpot will illuminate when AC power is present (Fig. 1e, pg. 6) and HubWayAv and HubWayDv Video Balun/Combiner LEDs will illuminate indicating power is present (Fig. 2b, 2d, pg. 7).
- Measure the output voltage at each Video Balun/Combiner (Figs. 2b, 2d, pg. 7) before making connections to each camera to ensure proper operation and avoid possible damage.
- Set illuminated master power disconnect circuit breaker to the (OFF) position (Fig. 4a, pg. 8).
- Connect power outputs of HubWayAv, HubWayAv2 or HubWayDv Video Balun/Combiners to power inputs of cameras (Figs. 2a-2e, pg. 7). Polarity must be observed.
• HubWayAv/HubWayAv2 – Terminals marked [AC POWER] (Figs. 2a, 2b, 2e, pg. 7).
• HubWayDv – Terminals marked [– 12VDC +] (Figs. 2c, 2d, pg. 7). - Connect the terminals marked [+ DATA –] of HubWayAv, HubWayAv2v or HubWayDv Video Balun/Combiners to the data input terminals of cameras for PTZ control (Figs. 2b-2d, pg. 7). Polarity must be observed. When using fixed cameras disregard this step.
- Connect the BNC connector of HubWayAv, HubWayAv2 or HubWayDv Video Balun/Combiners to the BNC video outputs of cameras (Figs. 2b-2d, pg. 7).
- Set illuminated master power disconnect circuit breaker to the RESET (ON) position (Fig. 4a, pg. 8).
- The power LEDs (Green) of the HubSat4DiV will illuminate when AC power is present (Fig. 1e, pg. 6).
Note: If any of the power LEDs are not illuminated the cause may be due to the following:
a. AC mains fail.
b. Illuminated master power disconnect circuit breaker is tripped.
c. An individual power output voltage switch is set to the OFF position (Fig. 1d, pg. 6).
d. A PTC is tripped due to a short circuit or overload condition for one or more channels/power outputs.
To reset the PTC:
1. Set the voltage output selector switch for that corresponding channel to the OFF position.
The switch must remain in the OFF position for approximately 2 minutes in order for the PTC to reset
(Fig. 1d, pg. 6).
2. Eliminate the trouble condition (short circuit or overload).
3. Set the voltage output selector switch for either 24VAC or 28VAC (Fig. 1d, pg. 6).
HubSat4DiV for use as a Remote Accessory Module with HubWay/HubWayLD/HubWayLDH UTP Transceiver Hubs.
After completing steps 1-4 of Installation Instructions for HubSat4DiV Passive UTP Transceiver Hub with Integral Isolated Camera Power proceed with the following.
- For fixed cameras, run a single CAT-5 cable between HubSat4DiV and HubWay, HubWayLD or HubWayLDH to allow video transmission of up to four (4) cameras. For PTZs, run two (2) CAT-5 cables between HubSat4DiV and HubWay, HubWayLD or HubWayLDH (Fig. 6, pg. 9).
a. Connect one (1) of the CAT-5 cables to the RJ45 jack marked [Video 1-4] on HubSat4DiV. Connect the opposite end of this CAT-5 cable into the RJ45 jack marked [CH 1-4] of HubWay, HubWayLD, or HubWayLDH unit (Fig. 6, pg. 9).
b. For data (PTZ), connect the second CAT-5 cable to the RJ45 jack marked [Data 1-4] on HubSat4DiV.
Connect the opposite end of this CAT-5 cable to any unused RJ45 jack marked [1-16] of HubWay, HubWayLD or HubWayLDH unit (Fig. 6, pg. 9).
Note: Data inputs of HubWay, HubWayLD, or HubWayLDH units must be wired in parallel for proper operation. When using fixed cameras disregard this step. - Plug the RJ45 connector at one end of the CAT-5 or higher structured cable into the RJ45 jack marked [PVD1] on HubSat4DiV (Fig. 1i, pg. 6). Plug the RJ45 connector at the opposite end of the CAT-5 or higher structured cable into the RJ45 jack of the Video Balun/Combiner to be installed at camera 1.
• For 24VAC cameras use the Altronix model HubWayAv/HubWayAv2 Video Balun/Combiner (Figs. 2a, 2b, 2e, pg. 7).
• For 12VDC cameras use the Altronix model HubWayDv Video Balun/Combiner (Figs. 2c, 2d, pg. 7).
The total cable distance must not exceed 750 ft. for video transmission between the HubSat4DiV and each camera. Repeat this step for all other camera channels [PVD 2-4]. - Set illuminated master power disconnect circuit breaker to the RESET (ON) position (Fig. 4a, pg. 8).
Power LEDs (Green) of the HubSat4DiV will illuminate when AC power is present (Fig. 1e, pg. 6) and HubWayAv, HubWayDv Video Balun/Combiner LEDs will illuminate indicating power is present (Fig. 2b, 2d, pg. 7). - Measure the output voltage at each Video Balun/Combiner (Figs. 2b, 2d, pg. 7) before making connections to each camera to ensure proper operation and avoid possible damage.
- Set illuminated master power disconnect circuit breaker to the (OFF) position (Fig. 4a, pg. 8).
- Connect power outputs of HubWayAv, HubWayAv2 or HubWayDv Video Balun/Combiners to power inputs of the cameras (Figs. 2a-2e, pg. 7). Polarity must be observed.
• HubWayAv/HubWayAv2 – Terminals marked [AC POWER] (Figs. 2a, 2b, 2e, pg. 7).
• HubWayDv/ – Terminals marked [– 12VDC +] (Figs. 2c, 2d, pg. 7). - Connect the terminals marked [+ DATA –] of HubWayAv, HubWayAv2 or HubWayDv Video Balun/Combiners to the data input terminals of cameras for PTZ control (Figs. 2b-2e, pg. 7). Polarity must be observed. When using fixed cameras disregard this step.
- Connect the BNC connector of HubWayAv, HubWayAv2 or HubWayDv Video Balun/Combiners to the BNC video outputs of cameras (Figs. 2b-2e, pg. 7).
- Set illuminated master power disconnect circuit breaker to the RESET (ON) position (Fig. 4a, pg. 8).
- The power LEDs (Green) of the HubSat4DiV will illuminate when AC power is present (Fig. 1e, pg. 6).
Note: If any of the power LEDs are not illuminated the cause may be due to the following:
a. AC mains fail.
b. Illuminated master power disconnect circuit breaker is tripped.
c. An individual power output voltage switch is set to the OFF position (Fig. 1d, pg. 6).
d. A PTC is tripped due to a short circuit or overload condition for one or more channels/power outputs.
To reset the PTC:
1. Set the voltage output selector switch for that corresponding channel to the OFF position.
The switch must remain in the OFF position for approximately 2 minutes in order for the PTC to reset (Fig. 1d, pg. 6).
2. Eliminate the trouble condition (short circuit or overload).
3. Set the voltage output selector switch for either 24VAC or 28VAC (Fig. 1d, pg. 6).
Alternate 24VAC Fixed Camera Hookup (Fig. 7a, pg. 9).
After completing steps 1-5 of Installation Instructions Remote Accessory Module for use with HubWay, HubWayLD or HubWayLDH UTP Transceiver Hubs proceed with the following.
- Set illuminated master power disconnect circuit breaker to the (OFF) position (Fig. 4a, pg. 8).
- Connect one end of the coaxial cable to the BNC connector marked [Video1] on HubSat4DiV (Fig. 1a, pg. 6).
Connect the opposite end of the coaxial cable to the BNC video output of camera 1 (Fig. 6a, pg. 9). - Set illuminated master power disconnect circuit breaker to the RESET (ON) position (Fig. 4a, pg. 8).
Measure the output voltage at the terminal pair marked [AUX1] on HubSat4DiV to ensure proper operation and avoid possible damage (Fig. 1c, pg. 6). - Connect the power output terminal pair marked [AUX1] on HubSat4DiV to the power inputs of camera 1 (Fig. 1c, pg. 6). Repeat steps 1-3 for each additional camera [AUX2-4].

1a – BNC Connector: Video in from remote camera video out to DVR.
1b – Output PTCs: Protects each output.
1c – Power Terminals: 24VAC/28VAC power outputs.
1d – Output Voltage Switches: Selects 24VAC/28VAC/OFF for each output.
1e – LED(s) 1-4: Power output indicators.
1f – Data: RS422/RS485 input from head-end equipment (DVR) for PTZ control.
1g – Channels 1-4: Single CAT-5 or higher structured cable out to HubWay, HubWayLD, or HubWayLDH enables transmission of up to four (4) video signals. Pinout configuration (Fig. 4, pg. 8).
1h – Data: CAT-5 or higher structured cable to data port on HubWay, HubWayLD, or HubWayLDH or head end equipment (DVR).
1i – Channels 1-4: CAT-5 or higher structured cable to cameras. Pinout configuration (Fig. 3, pg. 7).
HubWayAv, HubWayAv2, HubWayDv Video Balun/Combiners:
| Altronix Model Number | Input Voltage from HubWay Unit | Output Voltage to Camera | Camera Type | Power LED |
| Hu bWayAv | *24VAC/28VAC | *24VAC/28VAC | *24VAC/28VAC | Green |
| HubWayAv2 | *24VAC/28VAC | *24VAC/28VAC | *24VAC/28VAC | N/A |
| HubWayDv | *24VAC/28VAC | 12VDC | 12VDC cameras | Red |
*Based on camera load and structured cable length.


Fig. 4
Fig. 4a – Illuminated master power disconnect circuit breaker:
- OFF position: circuit breaker tripped – Switch not illuminated.
- RESET (ON) position – Switch illuminated.

Typical Application Drawing for HubSat4DiV
Passive UTP Transceiver Hub with Integral Camera Power:

Typical Application Drawing for HubSat4DiV
Remote Accessory Module for use with HubWay/HubWayLD/HubWayLDH UTP Transceiver Hubs:

The lightning flash with an arrowhead symbol within an equilateral triangle is intended to alert the user to the presence of an insulated DANGEROUS VOLTAGE within the product’s enclosure that may be of sufficient magnitude to constitute an electric shock.
The exclamation point within an equilateral triangle is intended to alert the user to the presence of important operating and maintenance (servicing) instructions in the literature accompanying the appliance.

CAUTION: To reduce the risk of electric shock do not open the enclosure.
There are no user-serviceable parts inside.
Refer servicing to qualified service personnel.


HubSat4DiV Installation Guide
Altronix is not responsible for any typographical errors.
140 58th Street, Brooklyn, New York 11220 USA | phone: 718-567-8181 | fax: 718-567-9056
website: www.altronix.com | e-mail: [email protected] | Lifetime Warranty
IIHubSat4DiV K18U



















