
8DiV Series UTP Passive Transceiver Hub
Installation Guide
Models Include:
HubSat8DiV
– Eight (8) Channel Passive UTP Transceiver Hub with Integral Camera Power
HubSat82DiV
– Eight (8) Channel Passive UTP Transceiver includes eight (8) HubWay Av Video Balun/Combiners
HubSat83DiV
– Eight (8) Channel Passive UTP Transceiver includes eight (8) HubWay Dv Video Balun/Combiners![]()
Rev. 041212
Installing Company: ____________
Service Rep. Name: ____________
Address: ___________________
Phone #: __________________
Overview:
Altronix HubSat8DiV Passive UTP Transceiver Hub with Integral Isolated Camera Power transmits UTP video, RS422/RS485 data and power over a single CAT-5 or higher structured cable. Unit provides 8 camera channels in a wall mount enclosure. Video transmission range is up to 750 ft. max. per channel. Units are compatible with AC and/or DC fixed or PTZ cameras when utilizing Altronix HubWayAv or HubWayDv Video Balun/Combiners. In addition, the unit features individually selectable 24VAC or 28VAC PTC protected outputs with surge suppression. Optionally, the HubSat8DiV can be used as an accessory module to transmit video from up to 8 cameras over two (2) separate CAT-5 or higher structured cables back to the HubWay, HubWayLD or HubWayLDH Passive and Active UTP Transceiver Hubs. In addition, the HubSat8DiV provides power to these cameras locally to eliminate the possibility of voltage drop associated with long cable runs.
Specifications:
Input:
- 220VAC 60Hz, 1.7A.
Video:
- Eight (8) channels of quality video over twisted pair up to a distance of 750 ft. per channel.
- Eight (8) 75 Ohm video outputs.
Data:
- RS422/RS485 data input.
Power:
- Individually selectable 24VAC or 28VAC power outputs with OFF position.
- Unit provides up to 1A max. per channel not to exceed a total of 8A maximum current.
- PTC protected outputs are rated @ 1A per channel.
- Surge suppression.
Visual Indicators:
- Eight (8) power LED indicators.
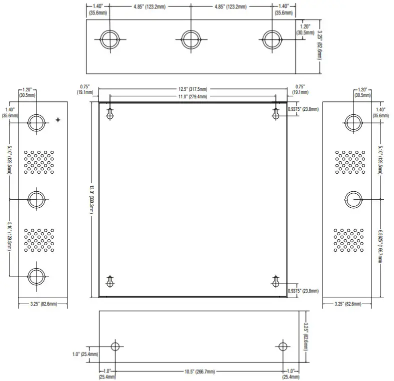
Enclosure Dimensions (H x W x D approx.):
13.5” x 13” x 3.25” (342.9mm x 330.2mm x 82.6mm).
Optional Accessories:
- Video Balun/Combiners:
– HubWay Av – for use with 24VAC cameras.
– HubWay Av2 – for use with 24VAC cameras.
– HubWay Dv – for use with 12VDC cameras.
Additional Models:
Hub Sat 82 DiV
- Hub Sat 8 DiV with eight (8) HubWayAv
Video Balun/Combiners for 24VAC Cameras.
Hub Sat 83 DiV
- Hub Sat 8 DiV with eight (8) Hub Way Dv
Video Balun/Combiners for 12VDC Cameras.
WARNING: To reduce the risk of fire or electric shock do not expose the unit to rain or moisture.
This installation should be made by qualified service personnel and should conform to all local codes.
Installation Instructions:
Hub Sat 8 DiV Passive UTP Transceiver Hub with Integral Isolated Camera Power.
- Mount unit in desired location. Mark and predrill holes in the wall to line up with the top two keyholes in the enclosure. Install two upper fasteners and screws in the wall with the screw heads protruding. Place the enclosure’s upper keyholes over the two upper screws; level and secure. Mark the position of the lower two holes. Remove the enclosure. Drill the lower holes and install two fasteners. Place the enclosure’s upper keyholes over the two upper screws. Install the two lower screws and make sure to tighten all screws (Enclosure Dimensions, pg. 12). Secure green wire lead to earth ground.
- Set illuminated master power disconnect circuit breaker to the (OFF) position (Fig. 4a, pg. 8).
- Connect unswitched AC circuit (220VAC, 60Hz) as follows: Green branch wire (ground) connects to the terminal marked , Line connects to the terminal marked [L], and Neutral connects to the terminal marked [N] of the Inlet Appliance Connector (Fig. 4, pg. 8).
- Select 24VAC or 28VAC power output for each of the Channels 1-4 on Hub Sat Circuit Board A and HubSat Circuit Board B (Fig. 4, pg. 8) with the corresponding output voltage switches. Select OFF position when servicing or installing individual cameras (Fig. 1d, pg. 6).
- Connect the BNC video outputs marked [Video 1-4] on Circuit Board A and [Video 1-4] on Circuit Board B to the corresponding video inputs on the head end equipment (DVR) (Fig. 1a, pg. 6).
- Connect terminals marked [+ DATA –] on Circuit Board A and Circuit Board B (polarity must be observed) to the RS422/RS485 output of the head end equipment (DVR) (Fig. 1f, pg. 6).
Note: The DATA input terminals of Circuit Board A and Circuit Board B must be wired in parallel for proper operation. When using fixed cameras disregard this step. - Plug the RJ45 connector at one end of the CAT-5 or higher structured cable into the RJ45 jack marked [PVD1] on Circuit Board A (Fig. 1i, pg. 6). Plug the RJ45 connector at the opposite end of the CAT-5 or higher structured cable into the RJ45 jack of the Video Balun/Combiner to be installed at camera 1.
• For 24VAC cameras use Altronix model HubWayAv/HubWayAv2 Video Balun/Combiner (Figs. 2a, 2b, 2e, pg. 7).
• For 12VDC cameras use Altronix model HubWayDv Video Balun/Combiner (Figs. 2c, 2d, pg. 7).
The total cable distance must not exceed 750 ft. for video transmission between the HubSat8D and each camera. Repeat this step for all other camera channels [PVD2-4] on Circuit Board A and [PVD1-4] on Circuit Board B. - Set illuminated master power disconnect circuit breaker to the RESET (ON) position (Fig. 4a, pg. 8). Power LEDs (Green) of the HubSat8DiV will illuminate when AC power is present (Fig. 1e, pg. 6) and HubWay Av or HubWay Dv Video Balun/Combiner LEDs will illuminate indicating power is present (Fig. 2b, 2d, pg. 7).
- Measure the output voltage at each Video Balun/Combiner (Figs. 2b, 2d, pg. 7) before making connections to each camera to ensure proper operation and avoid possible damage.
- Set illuminated master power disconnect circuit breaker to the (OFF) position (Fig. 4a, pg. 8).
- Connect power outputs of HubWayAv, HubWayAv2 or HubWayDv Video Balun/Combiners to the power inputs of cameras (Figs. 2a-2e, pg. 7). Polarity must be observed.
• HubWayAv/HubWayAv2 – Terminals marked [AC POWER] (Figs. 2a, 2b, 2e, pg. 7).
• HubWayDv – Terminals marked [– 12VDC +] (Figs. 2c, 2d, pg. 7). - Connect the terminals marked [+ DATA –] of HubWayAv, HubWayAv2 or HubWayDv Video Balun/Combiners to data input terminals of cameras for PTZ control (Figs. 2b-2d, pg. 7).
Polarity must be observed. When using fixed cameras disregard this step. - Connect the BNC connector of HubWayAv, HubWayAv2 or HubWayDv Video Balun/Combiners to the BNC video outputs of cameras (Figs. 2b-2d, pg. 7).
- Set illuminated master power disconnect circuit breaker to the RESET (ON) position (Fig. 4a, pg. 8).
- The power LEDs (Green) of the Hub Sat 8 DiV will illuminate when AC power is present (Fig. 1e, pg. 6).
Note: If any of the power LEDs are not illuminated the cause may be due to the following:
a. AC mains fail.
b. Illuminated master power disconnect circuit breaker is tripped.
c. An individual power output voltage switch is set to the OFF position (Fig. 1d, pg. 6).
d. A PTC is tripped due to a short circuit or overload condition for one or more channels/power outputs.
To reset the PTC:
- Set the voltage output selector switch for that corresponding channel to the OFF position.
Switch must remain in the OFF position for approximately 2 minutes in order for the PTC to reset (Fig. 1d, pg. 6). - Eliminate the trouble condition (short circuit or overload).
- Set the voltage output selector switch for either 24VAC or 28VAC (Fig. 1d, pg. 6).
HubSat8DiV for use as a Remote Accessory Module with HubWay/HubWay LD/HubWay LDH UTP Transceiver Hubs.
After completing steps 1-4 of Installation Instructions HubSat8DiV Passive UTP Transceiver Hub with Integral Camera Power proceed with the following.
- For fixed cameras run two (2) CAT-5 cables between HubSat8DiV and HubWay, HubWay LD or HubWay LDH to allow video transmission of up to eight (8) cameras. For PTZs run three (3) CAT-5 cables between HubSat8DiV and HubWay, HubWay LD or HubWay LDH (Fig. 6, pg. 9).
a. Connect one (1) of the CAT-5 cables to the RJ45 jack marked [Video 1-4] on Circuit Board A.
Connect the opposite end of this CAT-5 cable into the RJ45 jack marked [CH 1-4] of HubWay, HubWay LD or HubWay LDH unit (Fig. 6, pg. 9).
b. Connect the second CAT-5 cable to the RJ45 jack marked [Video 1-4] on Circuit Board B. Connect the opposite end of this CAT-5 cable into the RJ45 jack marked [CH 5-8] of HubWay, HubWay LD or HubWay LDH unit (Fig. 6, pg. 9).
c. For data (PTZ) connect the third CAT-5 cable to the RJ45 jack marked [Data 1-4] on Circuit Board A.
Connect the opposite end of this CAT-5 cable into any unused RJ45 jack marked [1-16] of HubWay, HubWay LD or HubWay LDH unit (Fig. 6, pg. 9).
Note: Data inputs of HubWay, HubWay LD or HubWay LDH units must be wired in parallel for proper operation. When using fixed cameras disregard this step. - Plug the RJ45 connector at one end of the CAT-5 or higher structured cable into the RJ45 jack marked [PVD1] on Circuit Board A (Fig. 1i, pg. 6). Plug the RJ45 connector at the opposite end of the CAT-5 or higher structured cable into the RJ45 jack of the Video Balun/Combiner to be installed at camera 1.
• For 24VAC cameras use Altronix model HubWayAv/HubWayAv2 Video Balun/Combiner (Figs. 2a, 2b, 2e, pg. 7).
• For 12VDC cameras use Altronix model HubWayDv Video Balun/Combiner (Figs. 2c, 2d, pg. 7).
The total cable distance must not exceed 750 ft. for video transmission between the Hub Sat 8 DiV and each camera. Repeat this step for all other camera channels [PVD2-4] on Circuit Board A and [PVD1-4] on Circuit Board B. - Set illuminated master power disconnect circuit breaker to the RESET (ON) position (Fig. 4a, pg. 8). Power LEDs (Green) of the HubSat8DiV will illuminate when AC power is present (Fig. 1e, pg. 6) and HubWay Av or HubWay Dv Video Balun/Combiner LEDs will illuminate indicating power is present (Fig. 2b, 2d, pg. 7).
- Measure the output voltage at each Video Balun/Combiner (Figs. 2b, 2d, pg. 7) before making connections to each camera to ensure proper operation and avoid possible damage.
- Set illuminated master power disconnect circuit breaker to the (OFF) position (Fig. 4a, pg. 8).
- Connect power outputs of HubWayAv, HubWayAv2 or HubWayDv Video Balun/Combiners to power inputs of cameras (Figs. 2a-2e, pg. 7). Polarity must be observed.
• HubWayAv/HubWayAv2 – Terminals marked [AC POWER] (Figs. 2a, 2b, 2e, pg. 7).
• HubWay Dv – Terminals marked [– 12VDC +] (Figs. 2c, 2d, pg. 7). - Connect the terminals marked [+ DATA –] of HubWayAv, HubWayAv2 or HubWayDv Video Balun/Combiners to data input terminals of cameras for PTZ control (Figs. 2b-2d, pg. 7).
Polarity must be observed. When using fixed cameras disregard this step. - Connect the BNC connector of HubWayAv, HubWayAv2 or HubWayDv Video Balun/Combiners to the BNC video outputs of cameras (Figs. 2a-2e, pg. 7).
- Set illuminated master power disconnect circuit breaker to the RESET (ON) position (Fig. 4a, pg. 8).
- The power LEDs (Green) of the Hub Sat 8 DiV will illuminate when AC power is present (Fig. 1e, pg. 6).
Note: If any of the power LEDs are not illuminated the cause may be due to the following:
a. AC mains fail.
b. Illuminated master power disconnect circuit breaker is tripped.
c. An individual power output voltage switch is set to the OFF position (Fig. 1d, pg. 6).
d. A PTC is tripped due to a short circuit or overload condition for one or more channels/power outputs.
To reset the PTC:
- Set the voltage output selector switch for that corresponding channel to the OFF position.
Switch must remain in the OFF position for approximately 2 minutes in order for the PTC to reset (Fig. 1d, pg. 6). - Eliminate the trouble condition (short circuit or overload).
- Set the voltage output selector switch for either 24VAC or 28VAC (Fig. 1d, pg. 6).
Alternate 24VAC Fixed Camera Hookup (Fig. 6a, pg. 9).
After completing steps 1-5 of Installation Instructions Remote Accessory Module for use with HubWay, HubWay LD or HubWay LDH UTP Transceiver Hubs proceed with the following.
- Set illuminated master power disconnect circuit breaker to the (OFF) position (Fig. 4a, pg. 8).
- Connect one end of the coaxial cable to the BNC connector marked [Video1] on Circuit Board A (Fig. 1a, pg. 6). Connect the opposite end of the coaxial cable to the BNC video output of camera 1 (Fig. 6a, pg. 9).
- Set illuminated master power disconnect circuit breaker to the RESET (ON) position (Fig. 4a, pg. 8).
Measure the output voltage at terminal pair marked [AUX1] on Circuit Board A to ensure proper operation and avoid possible damage (Fig. 1b, pg. 6). - Connect the power output terminal pair marked [AUX1] on Circuit Board A to the power inputs of camera 1 (Fig. 1c, pg. 6). Repeat steps 1-3 for each additional camera [AUX2-4].

- 1a – BNC Connector: Video in from remote camera video out to DVR.
- 1b – Output PTCs: Protects each output.
- 1c – Power Terminals: 24VAC/28VAC power outputs.
- 1d – Output Voltage Switches: Selects 24VAC/28VAC/OFF for each output.
- 1e – LED(s) 1-4: Power output indicators.
- 1f – Data: RS422/RS485 input from head end equipment (DVR) for PTZ control.
- 1g – Channels 1-4: Single CAT-5 or higher structured cable out to HubWay, HubWay LD or HubWay LDH enables transmission of up to four (4) video signals.
Pin out configuration (Fig. 4, pg. 7). - 1h – Data: CAT-5 or higher structured cable to data port on HubWay, HubWay LD or HubWay LDH or head end equipment (DVR).
- 1i – Channels 1-4: CAT-5 or higher structured cable to cameras. Pin out configuration (Fig. 3, pg. 7).
HubWayAv, HubWayAv2, HubWay Dv, and HubWay Dvi Video Balun/Combiners:
| Altronix Model Number | Input Voltage from HubWay Unit | Output Voltage to Camera | Camera Type | Power LED |
| HubWayAv | *24VAC/28VAC | *24VAC/28VAC | *24VAC/28VAC | Green |
| HubWayAv2 | *24VAC/28VAC | *24VAC/28VAC | *24VAC/28VAC | N/A |
| HubWayDv | *24VAC/28VAC | 12VDC | 12VDC cameras | Red |
*Based on camera load and structured cable length.
HubWay Av/HubWay Av2 passes AC voltage from pins 4, 5, 7, 8 to terminals marked [AC Power] (Fig. 3, pg. 7).
HubWay Dv/HubWay Dvi converts AC voltage to DC voltage from pins 4, 5, 7, 8 to terminals marked [– 12VDC +] (Fig. 3, pg. 7).

Fig. 4a – Illuminated master power disconnect circuit breaker:
- OFF position: circuit breaker tripped – Switch not illuminated.
- RESET (ON) position – Switch illuminated.

Typical Application Drawing
HubSat8DiV Passive UTP Transceiver Hub with Integral Isolated Camera Power:
Typical Application Drawing
HubSat8DiV Remote Accessory Module with HubWay UTP Transceiver Hubs:
Notes: ———————-
The lightning flash with arrowhead symbol within an equilateral triangle is intended to alert the user to the presence of an insulated DANGEROUS VOLTAGE within the product’s enclosure that may be of sufficient magnitude to constitute an electric shock.
The exclamation point within an equilateral triangle is intended to alert the user to the presence of important operating and maintenance (servicing) instructions in the literature accompanying the appliance.
![]() | CAUTION | ![]() |
| RISK OF ELECTRIC SHOCK DO NOT OPEN |
CAUTION: To reduce the risk of electric shock do not open enclosure.
There are no user serviceable parts inside.
Refer servicing to qualified service personnel.
Enclosure Dimensions (H x W x D approximate):
13.5” x 13” x 3.25” (342.9mm x 330.2mm x 82.6mm)
Altronix is not responsible for any typographical errors.
140 58th Street, Brooklyn,
New York 11220 USA
Phone: 718-567-8181
Fax: 718-567-9056
Website: www.altronix.com
E-mail: [email protected]
Lifetime Warranty
IIHubSat8DiV K19U
HubSat8DiV Installation Guide






















