Advanced Lithium-Ion Battery
Instruction Manual

SS4143-01
Advanced Lithium-Ion battery
Introduction
This manual is intended to provide assistance to an installer for the installation and commissioning of the range of Solar MD Lithium Ion phosphate (LiFePO4) energy storage solutions.
Product Description
The SS4143-01 battery solution is available in one standard size and can be paralleled to meet most residential applications. The rated voltage is 51.2V nominal (to suit 48V systems). Larger systems are provided by Solar MD based on specific project requirements.
WARNING: Read the entire document before installing or using the Solar MD attery. Failure to comply with the instructions or warnings in this document could result in electrical shock or serious injury that can result in death or damage to the product that can render the SS4143 Solar MD battery inoperable.
Product Specifications
All SS4143-01 specifications & descriptions contained in this document are verified to be accurate at the time of printing. Solar MD reserves the right to make any product revisions & improvements at any time.
Errors or Inaccuracies
To communicate any inaccuracies, omissions or to provide general feedback regarding this manual, send an email to [email protected]
Copyrights
All information in this document is subject to the copyright of Solar MD (Pty) Ltd. Additional information is available upon request.
Safety Information
This manual contains important instructions and warnings that must be followed when using SS4143-01. Read all instructions before installing and using the SS4143-01.
Warnings
Cautions
- Use SS4143-01 only as instructed.
- For communication and other information please read the BMS manual.
- Do not attempt to disassemble, repair, modify, or tamper with this battery unit.
- Do not insert foreign objects into any part of the battery unit.
- Avoid exposure to any moisture.
- Do not expose to extreme temperatures.
- Do not drill any holes into the box.
- Use only an approved Solar MD installer to install this product. Failure to comply will void the warranty
Specification
Solar MD 14.3kWh SS4143-01 specification | |||
| Battery type | Lithium Iron Phosphate | Scalability | Yes |
| Battery module | SS4143 | Communication | CANBUS 500kbps / CAN 2.0B |
| Rated battery capacity | 14336 Wh | Can BUS termination | Single 120 Ohm |
| Output power | Max 10 kW | Canbus ID range: | 256 – 499 |
| Usable battery energy @ 0.3℃ | 13.00 kWh | Protection method | Cell level: uv / ov / oc Position: x / y / xAcceleration: x / y / z Temperature: ot / ut |
| Nominal voltage | 51.2V | Protection phy | Mechanical relay NO |
| Rated Current (Ampere) | 200A | C Rating | 0.71C |
| Number of battery modules | 1 module | Com (CANBUS ) isolation | Yes 1.5kV |
| Weight | 118kg | Transportation protection | Yes |
| Operating voltage | 44.8V – 55.6Vdc | Indicator | Led, programmable |
| Communication | CANBUS | Addition IO | 3 GPO |
| Dimensions of SS4143: h/w/d (mm) | 650/600/210 | Cell balancing | Passive balancing |
| Net Weight of SS4143 | 118 kg | Counters | Cycle counters and SoH |
| Battery cycle life [+25 ℃] | > 4000 | AUX power output | 5V 1A max |
| Charging efficiency | 99% | Storage duration | 6 months@+25℃ |
| Operating temperature | -5℃ ~+50℃ | Safety standards compliance | IEC 62619/UN 38.3/UL1642 |
| Transport | UN3480 & UN38.3 | Cell Certificate | TUV / CE / RCM / UL1642 |
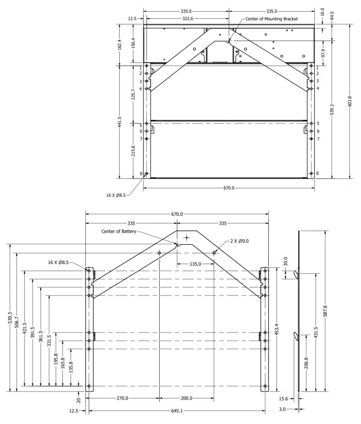
Mechanical installation
The middle triangle just serves as spacing. No fastening of this piece to the wall is necessary.
Holes 1 & 5 are the most important. Should at least have these 4 secured. Holes 3 & 6 can be the next to be used.
Please use the correct mounting screws for the specific wall surface. Make use of M8 screws/bolts.


Installing the top cover plate
Move lid maximum 36mm up, then move lid towards yourself. Be mindful of the button that’s still connected.
Figure 3. Top cover installation single or multiple batteries in line
Installation stacked should be spaced a minimum 50mm vertically and a minimum of 15mm horizontally.

Figure 3b Battery spacing – installation single or multiple batteries in line

Figure 3c Battery feet – installation of battery feet
Electrical installation
Step 1. Before connecting anything be sure that the battery ON/OFF switch is at OFF position. (figure 4)

Figure 4 BMS board component locations
Connecting Inverters/chargers/UPS to the battery unit while it is ON can cause big sparks due to capacitors inside the connected device. This can be harmful to people.
Connecting the main battery terminal must be with the correct size cable based on the rated current of the battery and the charger/inverter in case it’s lower.

Step 2. Connect the negative cable to the battery negative busbar and the positive cable to the battery positive busbar as shown in figure 5.
Switching the Battery ON
Step 1. Make sure all DC cables are tightened according to specifications. Step 2. If the battery operates in parallel with other energy sources, make sure that the difference between battery voltage and DC bus is not more than 2.5V. If greater than 2.5V please charge or discharge the other source accordingly until the voltage difference is in a safe range under 2.5V.
Caution! A hot connection with the difference in voltage can cause a very high equalization current which can burn the fuses of the battery!
Caution! Measure the voltage of the battery before connecting the DC cables.
Step 3. Turn the BMS board ON/OFF switch to the ON position (figure 4).
Step 4. Connect the Multipurpose button if not connected to the BMS board connector (figure 4).
Step 5. Hold the multi-purpose button until the light comes on.
Warning! If the battery does not switch the main protection contactor ON in
7 sec, please check the BMS board indication LED for faults. See section BMS
Error and Warnings.

Figure 6: Multicolor / Multipurpose button.
Button functions
The new Solar MD Multipurpose button has an extended functionality in combination with the BMS-EX. The Multipurpose Button can be used to directly execute 6 predefined functions and a shutdown instruction. In combination with the 6 Indication LEDs on BMS-EX, the user can choose between each function by holding the button until the LED count matches the number of the function. By releasing the button while moving through the functions, the LEDs will start blinking and wait for the user to press the button again within 3 seconds.
The predefined functions are:
- Reserved
- Change indication LED function between Show Capacity, Show Current, and Off
- Reserved
- Wake up if Sleep mode is active
- Activate Override Off state for 60sec
- Activate Override On state for 60sec
If the button is held continuously after function 6, shutdown mode is activated and the battery will send a signal to switch off in 4sec. Further holding the button causes the BMS to delay complete shutdown for a maximum of 3 minutes. This operation is used when the technician wants to continue to read or write parameters after shutdown.
Button indication
**Access to all features in future development
The Multipurpose button’s advanced indication functionality, allows the user to choose between 5 different states. Mixed combinations are also allowed when a combination of multiple batteries with BMS-EX is used. The User can change the preferred stage by logging into their mypower24 Energy Portal and go to the Battery Settings.
Illumination off
**For future development
When this state has been selected, the button serves as an on/off switch without illumination (fixed color).
Color based on capacity When this state has been selected, the button shows static illumination in a color based on the state of charge from RED at 0% SoC (State of Charge) to GREEN at 100% state of charge.
Color based on capacity with current direction based on shading.
**For future development
When this state has been selected, the button shows flashing illumination in a color based on the state of charge and flashing code based on the electrical current direction (charge/discharge). From RED at 0% SoC (State of Charge) to GREEN at 100% state of charge. The flashing code for charge goes through illumination interruption for 1 interval and slow illumination into the color based on the SoC for 5 intervals. The flashing code for discharge represents the opposite of charge – study color for 1 interval and low loss of color following illumination interruption. Solar MD users refer for both as charging/discharging waves. Fixed color with current direction based in shading
**For future development
When this state has been selected, the button shows illumination in a color based on the user choice and flashing code based on the electrical current direction (charge-discharge) The flashing code for charge goes through illumination interruption for 1 interval and slow illumination for 5 intervals. The flashing code for discharge represents the opposite of charge – study color for 1 interval and slow loss of color following illumination interruption. Solar MD users refer for both as charging/discharging waves.
BMS Warnings and Errors
Method of displaying general warnings and errors:

Figure7: Display general warnings and errors, main status LEDs, and indication LEDs. The Status LEDs determine what the indicator LEDs will show.
- If the Status LED is Green the indication LEDs will show:
a) Battery capacity
b) Current flow and direction
c) Off The functionality of the indicator LEDs are configurable, see more on this: multifunction push button. - If the Warning LED is Orange
a) The indication LEDs will show the warning number in binary, which corresponds to that tabulated below in the warning register. - If the Error LED is Red
a) The indication LEDs will show the error number in binary, which corresponds to that tabulated below in the error register.
Warning Register
| Warning Code | Visual Representation
| Description If the Warning LED blinks ORANGE, refer to the indication LEDs to find the corresponding warning event in the table below |
| 30 |
| Pending Awake High |
| 29 | Pending Awake Low | |
| 28 | Positive fuse blown | |
| 27 | Negative fuse blown | |
| 26 | Override ONactive | |
| 25 | Override OFF active | |
| 11 | Discharge current too high |
| 10 | Charge current too high | |
| 9 | Cell temperature too low | |
| 8 | Cell temperature too high | |
| 2 | Battery cell voltage too high | |
| 1 | Battery cell voltage too low |
Error Register
| Error Code | Visual Representation | Description If the Error LED blinks RED, refer to the indicator LEDs to find the corresponding Error event in the table below |
| 31 | Max 14921 not responding (Cell monitoring) | |
| 30 | Max 14921 thermal shutdown | |
| 29 | Open cell detected | |
| 28 | Internal EEPROM error | |
| 27 | External EEPROM error | |
| 26 | Balancing error internal FET circuit | |
| 25 | ADC reference not correct |
| 24 | Override On out of range | |
| 23 | Internal fault | |
| 22 | Cell overvoltage | |
| 21 |
| Charge Over current |
| 20 | Pack overvoltage | |
| 19 | Pack Undervoltage | |
| 18 | Pack Undervoltage | |
| 17 | Over-current charge | |
| 16 | Over-current discharge | |
| 15 | User shutdown init | |
| 14 | Remote shutdown init |
| 10 | Relay coil over current | |
| 9 | Relay fuse blown | |
| 8 | Relay coil open | |
| 7 | Gyro Z out of range | |
| 6 | Gyro Y out of range | |
| 5 | Gyro X out of range | |
| 4 |
| Ext NTC 3 fault |
| 3 |
| Ext NTC 2 fault |
| 2 | Ext NTC 1 fault | |
| 1 | Cell temperature too high |
CANBUS connection.
Bms EX used CAN 2.0B @ 500000 kb. Connecting other devices operating at different speed rates is not allowed. For connection please use twisted pair wires in a shielded cable o minimize RF emissions. RJ45 connections can be used for daisy chaining BMS EX together using a straight Ethernet cable. The output of the Bms EX CAN transceiver is galvanically isolated.

Figure 8: BMS-E connection to the CANBUS.

CANBUS warnings

Figure 9 CANBUS Termination resistor and Warning LED location.
![]()
pules ON
pules OFF
The Orange LED (WARN) is used to display a warning for canbus only. Reading this warning is possible with pulse counting.
– CANBUS line open or no termination resistor set. [1]
![]()
-CAN BUS line in the initialization stage. Canbus init occurs when the line is opened and then established. The minimum period for initialization is 30sec. In this period all nodes are scanned in the network and scanned for ID and serial number collisions. [2]
![]()
– Duplicate CAN ID detected with no “auto-ID” set. [3]
![]()
– Duplicate Serial number detected. [4]
![]()
CANBUS Internal fault. [5]
Troubleshooting Warnings/Errors
| Code | Cause | Solution |
Warnings ( Figure 6) | ||
| 1-2 | 1. inverter/rectifier settings may not be correct. 2. Battery cells may be imbalanced | 1. Check the battery settings 2. Contact Solar MD support |
| 3-4 | The system design is not correct. | Add additional battery, decrease charging / discharging current from your inverter / rectifier / load |
| 5-6 | Manual override | Manual override has been activated – please check with your installer |
| 29-30 | The BMS is ready to switch on after deep discharge/charge | Connect charger / load to the Battery |
Errors (Figure 7 & 8) | ||
| 5,6,7 | The battery is not installed in the upright position | Install the battery in the right position |
| 15,16,17 | The BMS has been shut down manually or remotely | Switch on the BMS |
| 18,19 | The absolute maximum charge/discharge current has been achieved | The BMS will restart automatically, please contact support team or approved installer |
| 21 | The BMS is set for different number cells in series as the actually installed | Contact your installer or Solar MD support team |
| 22 | The battery cell voltage is way too low. | Fill in the failure report and send to i[email protected] The unit needs to return to the factory for testing |
| 23 | Battery cell voltage way too high | The BMS will restart automatically after pending awake condition |
| 24,25,26, 27,28,30, 31 | BMS Internal failure | Fill in the failure report and send to i[email protected] The BMS will be dispatched to you for replacement |
| 29 | Battery factory failure | Fill in the failure report and send to i[email protected] The unit needs to return to the factory for testing |
CANBUS Warning (Figure 10) | ||
| 1 | 1. Canbus line open. 2. Single CANBUS resistor not terminated. | 1. Check if a minimum of two nodes are connected on the line with the same transmission speed. 2. Check if the single resistor is terminated via the jumper. Located top left of can LEDS(Fig 10). |
Maximum charging / discharging voltages for nonsupported devices.
– Bulk charge (stop charging) 54.6V
– Float charge (if applicable) 53.8V
– Low battery discharge: 48V
Check that the Equalisation function are disabled, then verify if there is a voltage difference on the inverter display and the battery [email protected] Cdischarge/charge current. adjust the values above.
Please check if your inverter charger has been approved by Solar MD and it is CAN compatible.
For the latest Solar, MD installation documents go to: www.solarmd.com
To secure the full 12-year product warranty for the end user, be sure to register your battery online – login.mypower24.co.za.
SS4143.01 INSTALLATION
MAN UAL v1.0
Unit 23,
Alternator Park
Montague Gardens
Cape Town
7441 South Africa
Solar MD (PTY)
E: [email protected]
T: (021) 555 2181.


















