PRODUCT SPECIFICATION SHEETS
Residential
Undercounter Refrigeration
24″ ADA-HEIGHT COMPLIANT SERIES
Refrigerator

| JOB | |
| AREA | |
| ITEM NO. | |
| MODEL NO. |

Drawer Model
| MODELS | DESCRIPTION |
| HA24RB-4-5 | Indoor ADA-Height Compliant Refrigerated Stainless Steel Drawers |
| HA24RB-4-6 | Indoor ADA-Height Compliant Refrigerated Panel Ready Drawers |
KEY PRODUCT FEATURES AND BENEFITS
- Superior construction provides ideal combination of energy efficient operation & powerful refrigeration performance ideal for food and beverages
- Industry’s largest selection of ADA-height compliant models for accessible and aging in place designs
- 800 BTU/hr capacity delivers commercial grade cooling performance
- Commercial-grade all stainless steel interior provides superior durability and easy cleaning; black vinyl exterior for built in applications
- Smooth glide self closing drawers offer high storage capacity
Quick Features:
- Industry’s best full 6 year warranty for owner ease of mind
- Available with stainless steel or panel ready drawers to match your design style
- Audible door alarm warns user if drawer is held open
- White LED task lighting
- R600a Natural Refrigerant offers maximum energy efficency with zero ozone depletion potential
| MODEL NUMBERS | HA24RB | |
| MODEL DESCRIPTION | 24” Indoor ADA-Height Compliant Refrigerated Drawers | |
| ATTRIBUTES | ||
| Perlick Anti-Condensation System | NO | |
| Energy Star Certified | YES | |
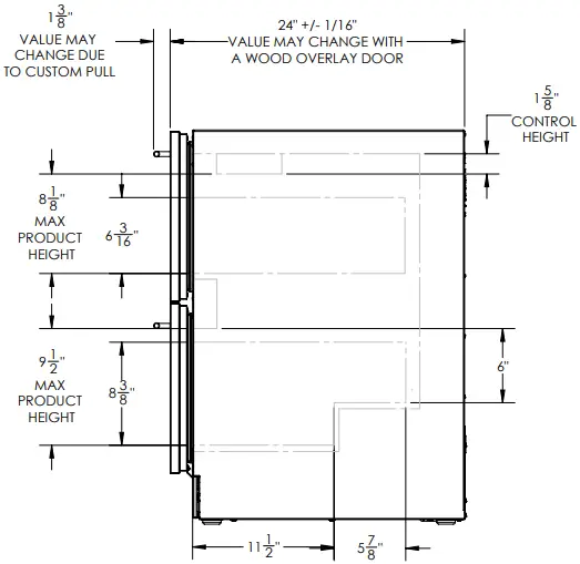
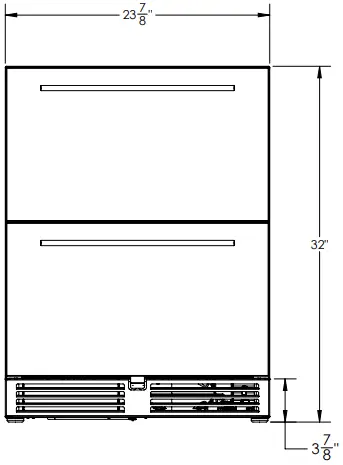
| OVERALL DIMENSIONS | Width – in. (mm) | 23-7/8” (606 mm.) |
| Depth – in. (mm) | 24” (610 mm.) | |
| Height – in. (mm) | 32” (813 mm.) | |
| STANDARD OPENING DIMENSIONS | Width – in. (mm) | 24” (610 mm.) |
| Depth – in. (mm) | 24-7/8” (632 mm.) | |
| Height – in. (mm) | 32-1/4” (819 mm.) | |
| INTERNAL VOLUME Net. Cu. Ft. | 4.8 cu. ft total | |
| SHIPPING WEIGHT Lbs. (kg.) | 181 lbs (82.27 kg.) | |
| ELECTRICAL SPECIFICATIONS | Electrical Supply | 115 VAC/60 Hz/1 Ph |
| Running Load Amps | 1.9 amps | |
| Electrical Connection | Cord connected | |
| Cord Plug Type | NEMA 3 Prong 5-15P | |
| Cord Length | 6’ | |
| Defrost Initiation | Automatic | |
| Defrost Type | Off cycle | |
| Thermostat | Digital | |
| Lighting Type | LED | |
| REFRIGERATION SPECIFICATIONS | Refrigerant | R600a (62g) |
| Expansion Device | Capillary Tube | |
| Temperature Settings F°(C°) | 33° (0.5°) – 48° (8.8°) | |
| Heat Rejection (at 75°F) | 450 BTU/hr | |
| Pull Down Capacity | 800 BTU/hr | |
| Front Vented | Yes | |
| PLUMBING | None Required | |
Installation Notes: To achieve 24” install depth, place electrical connection adjacent to the installation cavity.
ACCESSORIES
| MODEL NOS. | DESCRIPTION |
| (L) | Factory Installed Lock |
| 67164 | 6” Toe Kick Kit (includes riser) for HA24 models |
| 66736 | Caster Kit for HP24/HC24/HA24 models |
| RS-24-24D | Divider Shelf for HP24/HC24/HA24 models |
Perlick accessories are available for purchase through an authorized Perlick dealer. For a full list of accessories and to find a dealer near you, visit perlick.com.
WARNING: California Prop 65 Notice
These products may expose you to chemicals including Chromium, which are known to the state of California to cause cancer and birth defects or other reproductive harm. For more information on whether a product in this list contains these chemicals, please refer to the specific product page at perlick.com. Or to find out more about Prop 65, go to P65Warnings.ca.gov.
| CUSTOMER MODEL NUMBER | REGULATORY MODEL NUMBER | Hinge Side | Lock |
| HA24RB-4-5 | HA24RB4E-00-EDS0D | Drawers | No |
| HA24RB-4-6 | HA24RB4E-00-DD00D | Drawers | No |
| HA24RB-4-5DL | HA24RB4E-00-EDSLD | Drawers | Yes |
| HA24RB-4-6DL | HA24RB4E-00-DD0LD | Drawers | Yes |


Form No. Z2678
Rev 11.07.22
PERLICK CORPORATION 8300 W. Good Hope Rd., Milwaukee, WI 53223 • (800) 558-5592 • perlick.com
24″ ADA-HEIGHT COMPLIANT SERIES


















