myRoom Code-Smart Guestroom System Installation Guide
WARNING! Electric Shock Hazard. May result in Serious Injury or Death. To avoid the risk of electric shock, locate and remove fuse(s) or lock circuit breaker(s) in the OFF position for all circuits entering the panel before proceeding. Lutron recommends all work be done by a cerified electrician.
Features:
- 120 V~ operation.
- Simple energized/de-energized automation of line-voltage switches and receptacles, by Lutron or others.
Included Components:
- LUT-8X8-ENC

- MQSE-2S1-D

- QSM2-XW-C

- LRF2-OCR2B-P-WH

- CU300HD-CPN6814*

- PP-DV

- Note: Only provided in CCGS-NA-2
Important Notes
Environment
Ambient operating temperature: 32 °F to 104 °F (0 °C to 40 °C), 0% to 90% humidity, non-condensing. Indoor use only.
Codes
Install in accordance with all local and national electrical codes.
Cleaning
For cleaning information, see individual product documentation.
DO NOT use any chemical cleaning solutions.
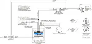
Wiring Diagram for CCGS-NA-1

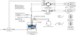
Wiring Diagram for CCGS-NA-2

Installation
Step 1: Verify package contents
Package should include the following parts:
- LUT-8X8-ENC: Enclosure with cover
- MQSE-2S1-D: DIN rail load controller
- QSM2-XW-C: QS sensor module
- (2) LRF2-OCR2B-P-WH: Radio Powr Savr occupancy sensors
- PP-DV: 16 A load controller for lighting (must not be used to control receptacles)
- CU300HD-CPN6814: 20 A load controller for receptacles (only used in CCGS-NA-2)
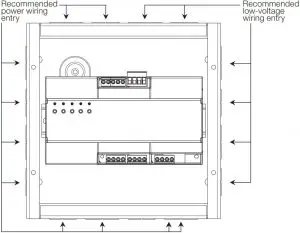
Step 2: LUT-8X8-ENC Installation
- Remove the four (4) cover screws.
- Use the mounting holes with bolts sufficient for 20 lb (14 kg).
1/4 in (M6) bolts recommended (mounting hardware not provided).
Step 3: Install DIN rail load controller and run power wiring
WARNING: Shock Hazard. May cause Serious Injury or Death. More than one disconnect may be required to de-energize this device. Disconnect all power sources before servicing unit.
Refer to the MQSE-2S1-D installation instructions for wiring details. Recommended locations to run power wiring into the panel are shown below. It is recommended that all feed splicing be done outside of this enclosure. Enclosure must be grounded as per all applicable codes.

Step 4: Install and wire remaining equipment
- Install LRF2-OCR2B-P-WH, PP-DV, CU300HD-CPN6814, QSM2-XW-C, Normally Open (N/O) door contact (not provided), and thermostat (not provided) per installation instructions provided. Normally open door contact means when entrance door is open, contact is open.
- Optional: Install jumper connecting CCO Common to CCO N.O. as shown to energize lights /receptacles prior to programming.

Step 5: Wiring Verification
- Place supplied warning label on the front cover of the LUT-8X8-ENC.
- Ensure LUT-8X8-ENC cover is installed. If optional jumper was installed and wiring is correct, lights and receptacles (CCGS-NA-2 only) should power on. If either are not energized, remove power and check wiring per Step 4.
- To verify QS link wiring, check the QSM. If the LED blinks once every 7 seconds, then the QSM is connected properly. If there is no LED blinking, the QSM is not energized. Remove power and check wiring per Step 4. If the LED is on for 3 seconds and off for 5 seconds, then the QS link communication wires are not connected properly but power is present. Remove power from the system and check wiring per Step 4.
Step 6: Associate LRF2 occupancy sensors to QSM
- Press and hold the “Program” button on the QSM for 3 seconds to enter “Sensor Association Mode”. You will hear a 1 second beep upon entering. LED will blink twice every second while in Sensor Association Mode.

- For each wireless sensor you wish to associate, press and hold the
а button on the sensor. After each successful association, the QSM will respond with three (3) long beeps. Repeat for each occupancy sensor.
- Press and hold the “Program” button on the QSM for 3 seconds to exit Sensor Association Mode. Note: QSM will timeout and exit Sensor Association Mode after 10 minutes of inactivity. Occupancy sensor has a default timeout of 15 minutes.
Step 7: If optional jumper was installed, follow these steps to remove, otherwise skip to step 8
- Remove power from the system.
- Remove optional jumper installed in step 4.2.
- Re-energize the system.
Step 8: Test the system
- Remove the occupancy sensors from the ceiling and place somewhere where they will not detect occupancy.
- A few seconds later, open and close the entrance door.
- Wait 15 minutes and make sure the lights connected to the PP-DV and the receptacles in the room go OFF.
- Remove occupancy sensors from location so they detect occupancy, and ensure lighting connected to the PP-DV (and receptacles if applicable) turn ON.
Troubleshooting
Symptom | Possible Cause | Solution |
| Lights in room do not turn OFF | Occupancy sensor not associated with QSM | Re-associate LRF2 occupancy sensor to QSM in Step 6 |
| Power pack may not be wired properly | Check all line voltage wiring | |
| Door contact mis-wired to MQSE controller | Verify door contact wiring to MQSE controller | |
| Verify no neighboring rooms occupancy sensors are associated to the QSM | Reset the QSM to factory defaults:
| |
| Light in room does not turn On | Door contact is a Normally Closed type | Replace door contact with a Normally Open type |
| Door contact mis-wired to MQSE controller | Verify door contact wiring to MQSE controller |
Customer Assistance
For questions concerning the installation or operation of this product, call Lutron Customer Assistance. Please provide exact model number when calling.
U.S.A. and Canada
1.844.LUTRON1
www.lutron.com/support
Mexico 8am – 8pm ET +1.888.235.2910
Limited Warranty
For limited warranty information, please visit: HomeWorks_Warranty [PDF]
The Lutron logo, Lutron, Clear Connect, myRoom, and Radio Powr Savr are trademarks or registered trademarks of Lutron Electronics Co., Inc. in the US and/or other countries.
©2021 Lutron Electronics Co., Inc.




























