Honeywell Home HS331XX Wireless Burglar Alarm Kit

Content box
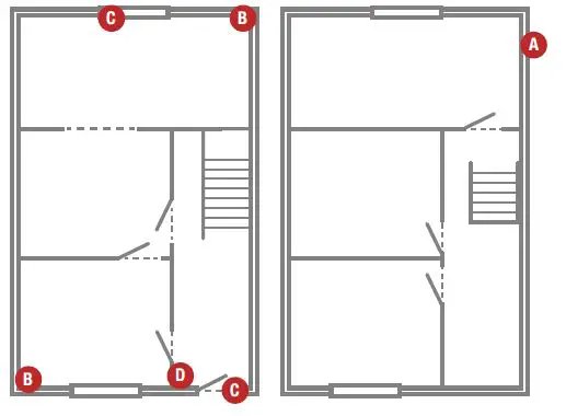
A zone is a group of “B” or “C” sensors installed in an area of the home. To add further zones refer to online manual.
Location planning
“C” sensors pre-linked to Zone 1
“B” sensors pre-linked to Zone 2
All devices are pre-linked
Installation

Location planning



Refer to safety leaflet before installation

Changing PIN code

Operating your alarm with open door or window alert

To program at home zoning mode, see online manual
Operating your alarm with open door or window alert





















