
HIGH SPEED SLIDING GATE OPENER
Model: iS1200LV

USER MANUAL
SAFETY PRECAUTIONS

WARNING! FAILURE TO FOLLOW THESE SAFETY PRECAUTIONS AND INSTALLATION INSTRUCTIONS COULD RESULT IN INJURY OR DEATH AND/OR DAMAGE TO PROPERTY AND EQUIPMENT.
- Appropriately licensed and competent personnel only should install the automation equipment.
- The operators are designed specifically to open and close sliding gates or doors and should not be used for any other purpose.
- Before commencing installation, read through this installation manual.
- Check that the operator and controls are in new condition and have not been damaged in transit.
- Check the gate or door and its associated support posts and walls to protect against shearing, compression and other various traps which could cause serious injury or death. Take into consideration the general installation and surrounding environment.
- Check the gateposts or mounting structure has the necessary strength and rigidity to support the operator and the load of the opening and closing gate motion.
CAUTION! 
Always incorporate the appropriate Photo Electric Cells, Induction Loops and any other safety devices to protect both equipment and personnel. Extra caution should be employed when using operator in auto close mode.
- Display any necessary signs to indicate any danger areas and automatic operation of the gate or door.
- The operators are not designed to be used in any hazardous areas or areas subject to flooding etc.
- All electrical connections and wiring must be performed with AS/NZS 3000-2007 as the guidelines. (Or its counterpart for other countries outside of Australia and New Zealand)
WARNING! ELECTRICITY CAN KILL
- The manufacturer of the automation equipment is not responsible for the damage which may be caused to either the operator, gate or door and any other person or equipment when:
- Wrong or poor installation practices were performed.
- No or inadequate safety devices were used.
- EITHER THE SURROUNDING STRUCTURE OR THE GATE OR DOOR STRENGTH AND RIGIDITY WAS NOT SUFFICIENT FOR THE TASK IN HAND.
- INEFFICIENT LOCKING DEVICES WERE EMPLOYED.
- Poor maintenance on the equipment.
- Any other circumstances beyond the manufacturers control.
- ISOLATE POWER BEFORE ATTEMPTING ANY MAINTENANCE, QUALIFIED PERSONNEL ONLY TO CARRY OUT MAINTENANCE
- ONLY ORIGINAL SPARE PARTS ARE TO BE USED SHOULD THERE BE A REQUIREMENT FOR THEM.
- KEEP LOOSE CLOTHING AND HANDS CLEAR OF THE GATE WHILST IN OPERATION OR POTENTIALLY ABLE TO BE OPERATED.
- THE INSTALLER SHOULD PROVIDE ALL INFORMATION CONCERNING THE USE OF THE AUTOMATION EQUIPMENT AS WELL AS INSTRUCTIONS REGARDING THE MANUAL OVERRIDE AND MAINTENANCE PROCEDURES TO THE USERS OF THE SYSTEM.
WIRING REQUIREMENTS
- The operator can be connected to a suitable 240VAC 10A power circuit provided it is done so by a licensed person and rules in AS/NZS 3000:2007 are adhered to.
- The operator can be ordered with separate power supply remote from operator making it easier to run low voltage to the operator in situations where it’s difficult or not practical to run 240VAC. Special attention will have to be made to the wire size used in this case to allow for voltage drop.
- Solar power can be used to power the operator instead of connecting 240VAC. This unit can be supplied to run on solar power by special order.
- Conduits preferably need to come through base plate knock out. A plan view diagram is provided below to help plan the conduit installation positions.
- If extra low voltage control cable runs are over 10m, Shielded cable should be used and the shield connected to the chassis.
INSTALLATION DETAILS
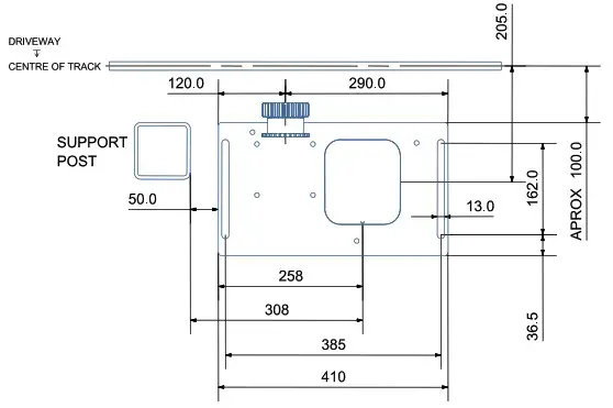
Plan View and Operator Dimensions

NOTE:
- THESE MEASUREMENTS ARE ONLY APPLICABLE WHEN USING A 100×100 GATE FRAME
- THIS DRAWING IS FOR A GATE THAT OPENS TO THE LEFT WHEN LOOKING FROM THE ROAD INTO THE PROPERTY.
- WITH THIS GATE OPENING SCENARIO THE CENTRE POSITION OF THE CONDUIT ENTRY IS 308MM FROM THE SUPPORT POST AND 240MM FROM THE CENTRE OF THE TRACK

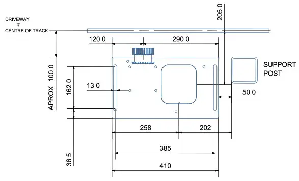
NOTE:
- THESE MEASUREMENTS ARE ONLY APPLICABLE WHEN USING A 100×100 GATE FRAME
- THIS DRAWING IS FOR A GATE TAHT OPENS TO THE RIGHT WHEN LOOKING FROM THE ROAD INTO THE PROPERTY.
- WITH THIS GATE OPENING SECENARIO THE CENTER POSITION OF THE CONDUIT ENTRY |S 202MM FROM THE SUPPORT POST AND 240MM FROM THE CENTER OF THE TRACK

Mechanical Installation
- Check that the gate runs smoothly throughout its travel and does not bind anywhere.
- IMPORTANT Ensure gate stops are fitted at the fully open and closed positions. These stops need to be engineered and installed in such a way that they will be strong enough to stop the gate should the limits fail at any time.
- Position the sliding gate operator on the concrete mounting pad and using a length of rack held onto the gate rail, adjust the operator at a location where the pinion gear meshes fully onto the rack.
- Ensure the pinion wheel face is parallel with the gate rail and mark the 4 holes through the mounting plate for fixing.
- Dynabolt mounting plate to concrete pad using 12mm x 100mm dynabolts.
- Position gate operator so rack will fully mesh onto pinion gear.
- Loosen manual release knob on the front of the gearbox (anticlockwise) and then start attaching rack to the gate frame ensuring that the rack meshes onto the pinion gear with 1 2mm clearance.
- Rack is normally tek screwed to gate rail. After fixing the rack for the full length of the gate, run the gate back and check the rack meshes to the pinion gear without being too high or too low.
PLACE THE OPERATOR IN CORRECT POSITION. PINION WHEEL TO BE PARALLEL TO THE GATE, AND STEPPED OUT TO ALLOW FOR WIDTH OF RACK ONCE IT IS MOUNTED ONTO THE GATE FRAME. MARK OUT FIXINGS AND FIX OPERATOR TO THE CONCRETE PAD.
FIX RACK TO THE GATE FRAME KEEPING 1MM-2MM CLEARANCE BETWEEN THE RACK TEETH AND PINION WHEEL.
ONCE THE RACK IS FIXED MOVE THE GATE AND SIGHT THE RACK MOVING OVER THE PINION WHEEL, CHECK THAT MOST OF THE PINION WHEEL MESHES WITH THE RACK. MAKE SURE RACK RUNS FREELY OVER THE PINION WHEEL, ANY TIGHTS SPOTS SHOULD BE CORRECTED BY ADJUSTING THE RACK HEIGHT. CHECK THE OPERATOR IS FIRMLY BOLTED DOWN TO THE CONCRETE PAD.
ENSURE MECHANICAL STOPS ARE INSTALLED AT THE FULLY CLOSED AND FULLY OPEN POSITIONS.
LIMIT SWITCH ADJUSTMENT
- Install the limit switch magnets as shown in fig 6.
- The limit switch magnets should be installed to initiate slow speed. The gate needs to slow down before it reaches fully open or fully closed stops.
- Adjustments of the limit switch should be done after all other components are installed securely.
The 2 x limit magnets should have different marking on them. One should have a
and the other should have a
. You cannot use the limit magnets if they have the same marking. The magnets can be installed on either side (open or close). Please see the diagram below to locate the marking on the magnets.
When steel gear rack is used (or gear rack which are much slimmer), you will have to use the packing block which comes with the limit switches. Please see the diagram below

Electrical Connections
Supply
- A,N,E 240V 3A fused input terminals are provided pre wired with a 3 pin plug top.
- Supply transformer rated at 240VAC primary, 24VAC 160VA secondary.
- A 20A Blade fuse is fitted on the board. (this fuse rating must not be exceeded, doing so will void warranty)
Power for accessories
12VDC 250mA regulated supply available at the control board terminals. Or regulated 24VDC 1A supply located on DIN rail, protected by a replaceable 20mm glass fuse.
Control Board
(Refer to the Elsema MCSv2 manual for full details)
The control board uses Elsema`s Eclipse operating system and has been pre-set and test run in the factory with settings which are a general setting for a mid- sized gate. Settings can be changed to suit the individual installation through the menu system. If the board has to be reset at any time, or the motor speed altered, the screen will prompt you to perform the “I learn” procedure.
Control Inputs
Push button: N/O input acts as a OSC (open, stop, close) input.
Open: N/O input acts as a open only (swipe mode) input.
Close: N/O input close only input (force close) input.
Ped Access: Used for initiating a partial opening.
Photo Beam (P.E): N/C safety input. Can be set for N/O operation if needed through menu 3.1.
PE beam operation modes can be changed through menu 4.2.
Control Outputs
Motor 1: Power output to motor 1. Polarity doesn’t matter as motor direction can be checked and changed through the initial I learn set up procedure.
12VDC: Supplies regulated 12VDC at a max of 250mA, can be used for accessories such as pe cells warning devices etc, but must not exceed 250mA.
24VDC: Supplies 24VDC 1.0A regulated output, this can be used for higher power usage devices such as induction loops. This output is fused at 1.0 A.
Output 1: N/O dry contact relay output. Do not exceed 5A load. Can be set for various functions through menu 5.1 default is Lock/Brake.
Output 2: N/O plus N/C dry contact relay output, 5A max. Functions set through menu 5.2 factory default is courtesy light.
Battery: An on-board charger is provided. SLA batteries can be connected directly to these terminals. The batteries not only provide a limited number of operations in a power outage, they also provide extra current for the motor to draw upon if needed. It is important to change the batteries when they get to the end of their life, which generally is 2 to 3 years, but there is a lot of varying factors which affect battery life. A Maximum of 12 AHR battery capacity may be connected.
FACTORY PARAMETER SETTINGS
If the control board has been reset, these parameters will have to be checked and adjusted as required.

| MENU No | PARAMETER | SETTING VALUE |
| 1.5 | NORMAL AUTOCLOSE ON SEQUENTIAL OBSTRUCTIONS | OFF |
| 8.1 | OPEN OBSTRUCTION MARGIN M 1 | 3A |
| 8..2 | CLOSE OBSTRUCTION MARGIN M 1 | 3A |
| 8.3 | OPEN AND CLOSE SLOW SPEED OBSTRUCTION MARGIN M 1 | 2A |
| 8.4 | OBSTRUCTION DETECTION RESPONSE TIME | FAST |
| 8.5 | SLOW SPEED DETECTION RESPONSE TIME | FAST |
| 9.1 | OPEN SPEED | 100% |
| 9.2 | CLOSE SPEED | 100% |
| 9.3 | OPEN AND CLOSE SLOW SPEED | 35% |
| 10.3 | ELECTRONIC BRAKING | ON |
| 10.5 | CLOSING DIRECTION : GATE MOVEMENT AFTER OBSTRUCTION | REVERSE FULLY |
| 14.7 | FUSE RATING | 20A |
| 14.8 | SLOW SPEED RAMP | 0.4 |
COMMISIONING
- Commissioning should only commence once all wiring is complete, and all the mechanical installation is complete and checked including checking of all fixing bolts for tightness.
- Make sure there is no obstructions in the way of the gate travel, with no vehicle traffic, and no pedestrian traffic. If the site is busy, necessary traffic/pedestrian barriers and warning signs must be in be in place before operating the gate.
- An Elsema PentaFOB® or PentaCODE® transmitter has been supplied with the gate operator, and should have already been programmed into the on-board receiver. If it hasn’t been programmed, press and hold programme 1 button on the receiver, while still pressing this button, press and release the remote button you want to use. The led on the receiver will turn from red to green, indicating that the receiver has accepted the new code from the remote control.
Note: With PentaCODE® remote controls, you must set its dip switches all to OFF position. The dip switches can be accessed by removing the battery cover of the remote.
The memory in the receiver can be cleared by touching together the two jumper pins for 10 seconds using a pin jumper or small screwdriver. This will clear all remote controls out of its memory, clearing individual remotes can only be done using Elsema’s FOBprogrammer.
Before proceeding to “I Learn” menu, check that the limit switches are correctly aligned and working correctly. An easy way to check is to enter menu 14.4 “Test Inputs”, and taking note when manually sliding the gate that the switch activates at the correct positions. When the switch activates, it will show on the screen which input has been triggered. Once set correctly, proceed to the “I Learn menu”, menu No 11.
The control board has been set with factory settings as shown above but the limits have not yet been learnt through the “I learn” procedure. This can be done by following the prompts on the screen. Upon power up, the controller will go through its start-up, until on the screen will appear:
“MCS V2 configured for sliding gate” then:
“Travel limit not set” press master control for 2sec, so press the master control button for seconds and scroll through to menu 11 to select “I Learn”.
Once selected follow the prompts.
“Are limit switches used? yes/no” select “yes” by pressing the master control.
“How are they connected?” select “MCS Control card”
“Limit switch input? NC, NO” select “NC”
“limit switch operation” select “gate slows on limits”
Is the gate open halfway? If No, use open and close buttons to adjust gate position then press master control.
If yes is selected, the gate will proceed in the opening direction.
“Did the gate open yes/no” select yes if it did, if it closed, select no.
“I learn mode opening” the gate will drive open to the end. Once opened, the will start to drive closed.
It will perform a few operations, then, once closed will display “learning successful” if all ok.
*NOTE if motor open/close speed settings are changed, the controller will again ask you to perform the I-Learn procedure again. Slow speed, and limit switches can be adjusted to suit gate with no need to I learn again. Once set up, proceed to check that all safety devices and other inputs/outputs are functioning correctly before handing over the installation to the owner. Install cover, using screws provided in the front and sides to hold cover firm. Provide full details to the owner concerning the operation and relevant maintenance and disconnect details, including this manual and the manual release door keys, and the PentaFOB® set up remote control.
MANUAL RELEASE INSTRUCTIONS
Place key in door lock, turn clockwise till released and pull door open.
Turn knurled knob anticlockwise approx. ½ a turn to release. With the clutch door open this disengages the door switch which in turn inhibits the operation of the operator.
Gate can now be opened by hand.
To re-engage the clutch, move the gate by hand into approx. the half way position and turn the Knurled knob clockwise until it is tight. If, when turning the knurled knob clockwise and it just spins, either, try spinning it clockwise with more force to release it off the hexagonal retaining nut or hold the nut with one hand and turn the knurled knob clockwise

MAINTENANCE DETAILS
WARNING!
Failure to maintain equipment may result in injury or death and/or damage to property and equipment
Recommended maintenance to be performed on the operator and gate are as follows:-
| Operator performs over 150 cycles a day Operator performs between 100-150 cycles a day Operator performs between 50-99 cycles a day Operator performs between 20-49 cycles a day Operator performs under 20 cycles a day | each month every 2 month every 4 months every 6 months every 12 months |
Date: __________________________________
Site Name: _____________________________
Site Address: ____________________________
Before commencing maintenance on the operator, isolate the electrical supply to ensure operator will not run inadvertently.
Gate rolls freely when in manual……………………………………………………………………………………………….
Gate wheels and guide rollers in good condition………………………………………………………………………..
Gate stops are installed and in good condition, not loose……………………………………………………………
Gate rack is tight & correct clearances between pinion wheel & rack………………………………………….
Gate track is not damaged…………………………………………………………………………………………………………..
Gate operator mounting bolts tight…………………………………………………………………………………………….
No oil leaks from gearboxes………………………………………………………………………………………………………..
Gearbox mounting bolts/nuts tight…………………………………………………………………………………………….
Inside operator and control box clean………………………………………………………………………………………….
`Baygon’ Surface Spray around operator and control box (not on electronics)…………………………….
All electrical connections tight……………………………………………………………………………………………………..
Limit Switches operate in appropriate positions……………………………………………………………………………
External safety devices work effectively / cleaned………………………………………………………………………..
Electromagnetic lock, if fitted, operates correctly and is clean……………………………………………………..
Wash down of control box and cover (particularly near corrosive/sea environments)………………….
General operation i.e. speed, auto close etc normal………………………………………………………………………
Comments…………………………………………………………………………………………………………………………………….. ……………………………………………………………………………………………………………………………………………………… ………………………………………………………………………………………………………………………………………………………
Service performed by:……………………………………………………………………………………………………………………


















