
HD49kWe external (REU-VCM2837WC-ZK)
HD49kWi internal (REU-VCM2837FFC-ZK)
A28i internal (REU-VCM2837FF-ZK)

INFINITY HD and A28i VCM continuous flow water heaters Installation guide
Important
This appliance must be installed in accordance with:
– Manufacturer’s installation instructions
– Current AS/NZS 3000, AS/NZS 3500, AS/NZS 5601.1 and G12/AS1
For use with Natural Gas or Universal LPG as indicated on the appliance.
Not suitable as a spa or swimming pool heater.
Not suitable for hydronic applications.
A28i is not suitable for commercial applications.
The appliance must be installed, commissioned, and serviced by an authorized person, being in New Zealand a licensed gasfitter.
Warning
Improper installation, adjustment, alteration, service, and maintenance can cause property damage, personal injury, or loss of life.
For more information about buying, using, and servicing Rinnai appliances call 0800 RINNAI (0800 746 624).
Rinnai New Zealand Limited
105 Pavilion Drive, Mangere, Auckland
PO Box 53177, Auckland Airport, Auckland 2150
Phone: (09) 257-3800
Fax: (09) 257-3899
Email: [email protected]
Web: rinnai.co.nz
youtube.com/rinnainz
facebook.com/rinnainz
Before installation
Unpack the appliance and check for damage. DO NOT install any damaged items.
Check all components and that the correct gas type has been supplied.
Get an overview of the steps required before starting the installation. Failure to follow these instructions could cause a malfunction of the appliance. This could result in serious injury and property damage.
These instructions apply only to the continuous flow water heater models listed on the front of this guide.
Specification
Designed and made in Japan, the Rinnai INFINITY REU-VCM models are continuous flow gas hot water heaters with inbuilt frost protection. They have electronic ignition and require electricity to operate. The internal units are room-sealed appliances. The internal units have an inbuilt controller on the front panel, the external unit has a status monitor.
The INFINITY HD VCM units are factory preset to 75 °C but can be set to deliver higher temperatures, up to 85 °C, making them ideal for commercial applications. The INFINITY A28i is factory preset to 55 °C and is suitable for residential applications only.
Specification summary
- Colour Silver (HD), white (A28i)
- Input 11-210 MJ/h
- Output 48.8 kW
- Efficiency 83.5 %
Suitability
HD49 units are primarily designed for commercial applications but can be used for larger hot water capacity residential projects. The A28i is suitable for residential applications only.
They are not suitable as a spa or swimming pool heater, or for hydronic heating.
Hard or acidic water will need to be treated to use this product.
Capacity
Hot water capacity 1.4-37 liters per minute.
Nominal water capacity 28 liters per minute at a
25° rise (1680 L/h).
Connections
Hot water outlet R¾ (20 mm)
Coldwater inlet R¾ (20 mm)
Gas supply R¾ (20 mm)
Exhaust system: Forced flue
Ignition system: Direct electronic ignition.
Line pressures
NG 1.13-3.0 kPa
LPG 2.75-3.0 kPa
Line pressure maximum
3.5 kPa (maximum standing pressure under abnormal intermittent conditions is 5.0 kPa).
In the case of commercial metering (i.e. 35-37 kPa coming in), there may be a requirement to regulate the incoming line pressure down.
Ingress protection rating
- HD49kWe IPX5
- HD49kWi / A28i IPX2
Power consumption
| HD49kWe | HD49kWi / A28i | |
| Normal | 66 W | 95 W |
| Standby | 2 W | 2 W |
| Antifrost | 104 W | 120 W |
Noise level
Internal units: 54 dB(A)
External unit: 52 dB(A)
NOx af: 40 ppm
Safety devices
- Flame failure
- Boil-dry protection
- Overheat protection (OHS)
- Fusible link
- Pressure relief valve
- Combustion fan rpm check
Water supply
Nominal operating pressure: 220-1000 kPa
Minimum operating pressure: 10 kPa
Minimum water flow: 1.5 liters per minute
Weights
Internal – 21 kg
External – 20 kg
Internal model flueing
The internal HD49kWi and A28i models MUST USE Rinnai flue components—the use of nonapproved flue components will result in a dangerous installation.
A Rinnai flue system must be installed in accordance with the Rinnai flue installation manual provided with the flue kit and/or components. Refer to the flue manual for more information and flue configuration options.
Connections

Service connection points
An approved full flow isolation valve and disconnection union MUST BE fitted to the cold water inlet. A non-return valve is not required unless stipulated by local regulations.
Isolation valves MUST NOT be fitted directly to the appliance.
It may be necessary to fit a temperature limiting device for delivery to areas used primarily for the purposes of personal hygiene, refer page on ‘Water delivery temperature’ for more information.
Purge gas and cold water supply lines to remove air and swarf before final connection. Swarf in the gas or water supplies may cause damage, a common problem, which is not covered by warranty.
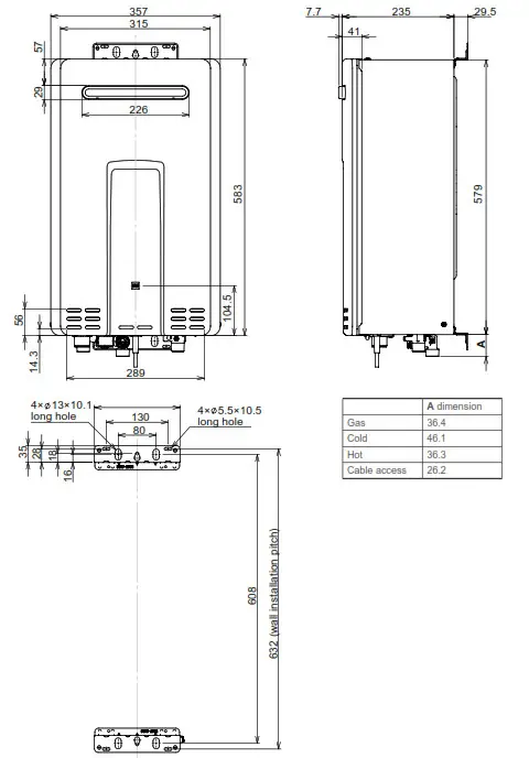
HD49kWe external dimensions (mm)

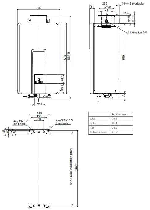
HD49kWi and A28i internal dimensions (mm)

Appliance location
This appliance MUST BE placed as close as possible to the most frequently used hot water outlet(s) to minimize the delay for hot water delivery 1. For installations where the distance between the water heater and outlets is considerable, a flow and return system can be used to minimize the waiting time for hot water delivery. Alternatively, multiple appliances can be strategically placed to service outlets with minimal delay.
An AC 230 V, 10 A earthed PowerPoint must be provided adjacent 2 to the appliance. This PowerPoint must be weatherproof. It must be clear of the gas and water connections to the appliance and also the flue exhaust and water pressure relief valve. The power cord of the appliance is 1.5 m long.
All appliances MUST BE installed to ensure access can be gained without the hazard or undue difficulty for maintenance and servicing. Sufficient clearances shall allow access and removal of all serviceable components. Appliances should not be mounted more than 2.5 m above the ground or floor level unless the customer can arrange permanent and safe access, or can provide another means of safe access.
The appliance MUST BE mounted on a vertical structure with the water and gas connections on the underside pointing downwards.
Location of the flue terminal MUST BE in accordance with Section 6 and Figure 6.2 of AS/NZ 5601.
Outdoor (external) models
This appliance is designed for outdoor installations only. It MUST BE located above ground in open air with natural ventilation, without stagnant areas, where gas leakage and products of combustion can be rapidly dispersed by wind and natural convection. Indoor (internal) models
This appliance is for indoor installations only. They may be installed in an enclosure if the requirements of AS/NZS 5601.1 are satisfied. An enclosure is defined as a compartment, enclosed area or partitioned off space primarily used for the installation of the appliance.
- DO NOT install in areas where contaminated air is present.
- Consider, before installation, where the air has the ability to travel within a building.
- Where possible, install the heater in a sealed space so that it is free of contaminated indoor air.
It is important a suitable drained catch pan is fitted where damage could be caused by discharge from the water heater. Provision
must be made for the safe disposal of any leaking water to an external location.
This appliance MUST BE used with the appropriate Rinnai flue system.
1. Rinnai recommends a maximum pipe run of 10 m.
2. Power point can be within the pipe cover if a pipe cover is installed—must comply with AS/NZS Wiring rules
General installation information
Securing the Rinnai INFINITY
The wall structure on which units are mounted MUST BE capable of supporting the weight of the appliance (21 kg) and associated pipework.
Ensure that suitable fixing screws or bolts are used to secure the unit to the wall, in accordance with AS/NZS 5601 section 6.
Wooden plugs shall not be used.
The top bracket has a keyhole slot so that the appliance can be positioned by hanging it on one screw. Once in position, the appliance can be secured with appropriate fixings.
The appliance can be mounted directly against the wall or structure. There is no need to use non-combustible sheeting or leave an air gap between the appliance back panel and the wall or structure to meet the temperature hazard requirements of AS/NZS 5601.
Pipe sizing
If the gas pipe sizing is insufficient the appliance won’t perform properly. Gas pipe sizing must consider the gas input into this appliance as well as other gas appliances in the premises. The gas meter and regulator must be specified for this gas rate.
An approved sizing chart such as the one in AS/NZS 5601 should be used. Refer p.4 for gas consumption details.
Water pipe sizing and layout should be performed in accordance with AS/NZS 3500.
All hot water pipework should be insulated to optimize performance and energy efficiency.
Water supply
The appliance is intended to be permanently connected to the water mains.
Refer p.4 for operational water pressure limitations. Approved pressure limiting valves may be required if the maximum rated water supply pressures are exceeded. To achieve the rated flow, the minimum water supply pressures must be met.
The water heaters will operate at lower pressures but will not achieve the rated flow.
Contact Rinnai for gravity-fed or low-pressure installations.
Water chemistry and impurity limits are detailed in the operation guide within the warranty section. Most metropolitan water supplies fall within these requirements.
If you are unsure about the water quality contact your water authority. If sludge or foreign matter is present in the water supply, a suitable filter or strainer is required in the water supply to the water heater to prevent unwarranted damage and loss of performance.
Frost protection
Frost protection operates automatically, as long as the appliance is connected to the electrical power supply, by activating when the temperature inside the unit drops below 3.5 °C 1 and turns off once the temperature inside the unit reaches 7 °C 1.
1. Approximate temperature.
External unit – horizontal obstructions
AS/NZS 5601 states a minimum horizontal clearance of 500 mm between a building structure and obstruction facing the terminal. At 500 mm the obstruction needs to be the full height of the unit, as shown below, and not a partial obstruction. Partial obstruction of fewer than 1 m could result in wind pushing the flue gases back into the flue terminal.

IMPORTANT There MUST be NO partial obstructions to the appliance front cover or any other part of the appliance casing. This will avoid the appliance from failing to operate under windy conditions.
Water delivery temperature
Requirements of AS/NZS 3500 MUST BE considered regarding the temperature limitations of hot water supplied to areas used primarily for personal hygiene. The temperature of these areas may be limited to 55 °C or less.
If the appliance is to deliver water primarily for the purposes of personal hygiene in an early childhood center, school, nursing home or similar facility as defined in AS/NZS 3500.4, a Temperature Limiting Device (TLD), such as a tempering valve may be required, even if the appliance is set to 55 °C or less. For these types of applications contact Rinnai.
Requirements for Rinnai INFINITY units installed without controllers

Flued (internal) water heaters
The HD49kWi and A28i internal water heaters MUST be fitted with a Rinnai FFSS flue system.
The chart below highlights the maximum flue length and number of bends. It also shows the difference between a short and long flue.
IMPORTANT
If the flue length falls within the ‘Long flue’ category the flue settings MUST BE changed on the PCB. If this is not done the unit will not operate correctly and may shut down. For more information refer to p.18, and to the data plate on the side of the appliance.
Condensate
A condensate trap kit (FFSSCOND) is required for flue lengths over 1.5 m. If flueing less than 1.5 m, the flue spigot on top of the unit is capped using the drain cap tube supplied with the unit.
The drain cap is only removed if the condensate kit is connected.
The condensate trap collects any condensate from the flue and prevents condensate from entering the water heater and causing damage.
Condensate is a by-product of gas combustion and is mildly acidic. For this reason, copper tubes and fittings must not be used as it will corrode. Instead, Rinnai recommends plastic pipes and fittings such as UPVC or PE.
Water controller installation
The maximum number of controllers that can be fitted to the HD49kWe external model is four, and three for the HD49kWi and A28i internal models (one connection is taken up with the inbuilt controller on the front panel), refer water controller configurations section below.
General information
Other manufacturers’ water controllers are NOT compatible with Rinnai water heaters. Water controllers MUST NOT be used with any solar boost water heater. Rinnai water controllers bought in from other countries are not compatible with Rinnai appliances sold in New Zealand.
Water controllers and transceivers (for those with wireless controllers) DO NOT contain serviceable parts and must only be serviced by an authorized person.
Master controller
Only one master controller can be designated as a ‘master’ water controller. This water controller is normally used in the kitchen. The remaining controllers are ‘sub-controllers’ and are for use in bathrooms, toilets, and laundry. The temperature limit for all sub-controllers is 50 °C, this is a safety feature, to reduce the risk of burns in these areas. A master controller MUST NOT be
installed in a bathroom.
Water controller configurations
- HD49kWe: A maximum of four Compact controllers (MC-601) can be fitted.
- HD49kWi / A28i: A maximum of three Compact controllers (MC-601) can be fitted.
- Only one master controller can be installed. This can be a Kitchen Deluxe 1 (MC-100V), or any other Compact controller (MC-601).
1When a Kitchen Deluxe controller is fitted, it will always function as a master controller, this is the default setting and cannot be changed. - In addition to a master controller, up to three additional controllers can be fitted to an external model, and two for the internal models.
Controller location
- Do not install water controllers near a heat source, such as a cooktop, stove or oven. Heat steam, smoke, and hot oil may cause damage.
- Do not install water controllers outdoors unless protection from water/dust ingress and sunlight are provided.
- Do not install water controllers in direct sunlight.
- Do not install water controllers against a metal wall unless the wall is earthed in accordance with AS/NZS 3000.
- Water controllers must not be installed where chemicals such as benzene, alcohol, turpentine, hydrogen sulfide, ammonia, chlorine or other similar chemicals are in use.
The water controller is water-resistant, however excessive exposure to water may result in damage. Durability is improved when positioned OUTSIDE the shower recess.
- Avoid direct exposure to water or steam as these may cause the controller to malfunction.
- Water controllers must be installed in shaded and clean locations. They should be fitted out of reach of children (suggested height 1.5 m from the floor), and installed at least 400 mm above the highest part of a sink, basin, or bath.
When cleaning your water controller use only a damp cloth and mild detergent.
Communication cables
Wired water controllers operate at an extra-low voltage (12 V DC), which is supplied from the water heater. A 10 m long communication cable is supplied for connection to the water heater. Only Rinnai-supplied communication cables may be used.
Connecting communication cables to the mini-plug
CAUTION DO NOT attempt to connect water controller cables to the mini-plug when it is plugged into the PCB unless the power to the water heater is switched OFF, otherwise, damage to electrical components may occur.
Connecting communication cables to the PCB (refer to image on next page)
DO NOT attempt to connect the mini-plug or water controller cables to the water heater unless the power to the water heater is switched OFF, otherwise, damage to electrical components may occur.
- Isolate the power supply by switching the PowerPoint off and removing the water heater plug from the power socket.
- Remove the front cover of the appliance.
- Insert the mini-plug and the connected water controller cables through the cable access at the base of the appliance. Ensure the cable connectors are located inside the appliance for protection.
- Locate the PCB (bottom right of the appliance), and carefully rotate the plastic safety cover out of the way.
- Locate the accessory port socket (bottom front of PCB).
- Plug the mini-plug into the accessory port socket, the plug and socket are keyed so that they can only be plugged into one direction).
- Proceed with the water controller installation and connect the communication cables to the controllers.
Connecting communication cables to the PCB

Commissioning
AS/NZS 5601.1, clauses 2.6.8 and 6.11.2. states that every part of the gas installation shall be commissioned prior to initial use. It is the installer’s responsibility to ensure all current AS/NZS 5601 requirements are met.
The appliance must be tested after installation. Ensure the building occupants do not have access to the hot water outlets during this procedure.
WARNING
Please note
The Rinnai INFINITY HD VCM models come with a factory preset outlet temperature of 75 °C, and the A28i with a preset temperature of 55 °C. The high and low gas operating pressures are also factory preset. Under normal operating conditions the operating pressures do not require adjustment during installation. Make adjustments ONLY if the unit is not operating correctly and all other possible causes for incorrect operation have been eliminated.
Inlet supply pressure MUST BE checked and set within the operating parameters of the appliance in all instances. If the appliance cannot be adjusted to perform correctly call 0800 RINNAI (0800 746 624) for assistance.
Commissioning steps
| 1 | Flush water pipes and gas line | Before the final connection of the water heater, flush the gas, hot, and cold water supply lines. Swarf in the gas or water supplies may cause damage, a common problem, which is not covered by warranty. |
| 2 | Connect the gas line | |
| 3 | Purge the gas line of air | |
| 4 | Final connection test | |
| 5 | Check supply pressure | Operate ALL other gas appliances at their maximum rate. With all gas appliances on maximum supply pressure must read between 1.13-3.0 kPa on Natural Gas and 2.75-3.0 kPa on LPG. If the supply pressure is lower, the gas supply is inadequate and the appliance will not operate to specification. It is the installer’s responsibility to check the gas meter, service regulator and pipework for correct operation and sizing, and rectify as required. |
| 6 | PCB settings checked | If factory default settings are changed check the PCB to ensure it is set correctly. |
| 7 | Operate and check for gas leaks | Replace the appliance front cover otherwise, the unit won’t operate correctly, and operate and test for gas leaks using an electronic leak detector. |
| 8 | Operational test | Confirm the water flow and hot water delivery temperature using a thermometer. If water controllers are fitted, it is necessary to test their operation through the complete range of functions, refer to separate instructions provided with the water controllers. |
| 9 | Check cold water inlet filter | Inspect and clean the water inlet filter. This may need to be repeated to ensure the filter remains clear, especially on new installations. If you feel the customer is capable of doing this then show them how to inspect and clean the water filter as well. |
| 10 | Customer handover | After testing is completed, explain to the customer the function and operation of the water heater and water controllers (if fitted). Also, talk to them about: • The gas, power, and water connections • How to frost protection works • Procedure for draining the water heater • Where to find the data plate • Maintenance and servicing If the customer is not there try and contact them by phone to discuss these important points. Ensure the installer details section is completed in the operation guide, the commissioning checklist has been completed and signed, and that the guide and checklist are left with the customer. |
PCB interface and dip switch settings
The PCB interface and dip switch settings must only be changed by a licensed gasfitter.
Care must be taken when changing the dip switch settings as they can be easily switched or bumped into the wrong position. Fully check the operation of the water heater before leaving including the temperature of the water delivered.
The cover of the water heater will need to be removed to change to settings. As this will expose live mains voltage wiring please disconnect the power supply before removing the front cover.
We wish to draw your attention to the requirements of the New Zealand Building Code and compliance document G12. This requires that water delivered to sanitary fixtures be no more than 55 °C. Increasing the water heater set temperature will require that you protect all sanitary fixtures to which the appliance is plumbed with suitable tempering valves or something similar.
Rinnai will accept no liability for issues arising out of use of the use of this information. If you have any doubts about the performance of the water heater, please contact Rinnai 0800 RINNAI (0800 746 624).

Under normal operating conditions the operating pressures do not require adjustment during installation. Make adjustments ONLY if the unit is not operating correctly and all other possible causes for incorrect operation have been eliminated.
Gas pressure setting
- Attach pressure gauge to the burner test point.
- Turn on the gas and power supplies.
- If remote controllers are fitted, turn the unit ON at the controller and select a maximum delivery temperature.
- Open hot water taps fully to reach maximum flow rate—ensure building occupants do not have access to the hot water outlets during this procedure.
- Move SW8 of DipSW1 to the ON position.
- Push the PCB board button A for one second.
- Calibrate forced low combustion (FL on display) using buttons A (up) and B (down) as required, refer to data plate for gas pressures.

- Move SW8 of DipSW1 to the OFF position and then back to the ON position.
- Push the PCB board button B for one second.
- Calibrate forced high combustion (FH on display) using buttons A (up) and B (down) as required, refer to data plate for gas pressures. Z
- Move SW8 of DipSW1 to the OFF position.
- Close hot water taps and turn OFF the gas, and power supply.
- Remove the pressure gauge and replace the sealing screw. Turn on the gas, and power supply.
- Operate the unit and check for gas leaks.
- Replace the front cover of the appliance.
Factory preset default dip switch settings
| settings | HD49kWi | A281 | HD49kWe | ||||||
| Bank | SW | Description | |||||||
| OFF | ON | OFF | ON | OFF | ON | ||||
| DipSW1 | 1 | Model and flue setting | OFF: Flue length = long ON: Flue length = short | Ext | |||||
| 2 | Temperature settings | OFF: Fixed temp ON: Remote controller | |||||||
| 3 | See the ‘Temperature settings’ table below | 75 °C | 55 °C | 75 °C | |||||
| 4 | |||||||||
| 5 | |||||||||
| 6 | High altitude | OFF: Level 0 (0-900 m) ON: Level 1 (901-1800 m) | LO | LO | LO | ||||
| 7 | Gas type | OFF: LPG ON: NG | LPG | NG | LPG | NG | LPG | NG | |
| 8 | Forced combustion | OFF | |||||||
| DipSW2 | 1 | Model and flue setting | OFF: Flue length = long ON: Flue length = short | Ext | |||||
| 2 | Capacity | OFF: 28 L ON: 26 L | 28 L | 28 L | 28 L | ||||
| 3 | Model and exhaust type | OFF: Internal ON: External | Int | Int | Ext | ||||
| 4 | Capacity | OFF: 28 L ON: 26 L | 28 L | 28 L | 28 L | ||||
| 5 | Model and exhaust type | OFF: Internal ON: External | Int | Int | Ext | ||||
| 6 | High altitude | OFF: Level 0 (0-900 m) ON: Level 1 (901-1800 m) | LO | LO | LO | ||||
| 7 | Gas type | OFF: LPG ON: NG | LPG | NG | LPG | NG | LPG | NG | |
| 8 | Auto-reset | On | On | On | |||||
Temperature settings °C – DipSW1 SW2-5
| DipSW 1 | SW2 of DipSW1 = Off (fixed temp.) | SW2 of DipSW1= On (with controllers) | ||||
| SW3 | SW4 | SW5 | No controllers (fixed temp.) | With controllers (Max. set temp.) | No controllers (fixed temp.) | With controllers (Max. set temp.) |
| Off | Off | Off | 55 | 55 | 55 | 55 |
| On | Off | Off | 75 | 75 | 55 | 75 |
| Off | On | Off | 65 | 65 | 55 | 65 |
| On | On | Off | 60 | 60 | 55 | 60 |
| Off | Off | On | 50 | 50 | 50 | 50 |
| On | Off | On | 42 | 42 | 42 | 42 |
| Off | On | On | 85 | 75 | 40 | 40 |
| On | On | On | 85 | 75 | 70 | 85 |
Rinnai.co.nz
Tel: 0800 746 624
http://www.youtube.com/rinnainz
http://facebook.com.rinnainz
Rinnai INFINITY REU-VCM installation guide 01-21

U307-2085(00)
REU-VCM(NZ)
◎



















