KIDDE Scorpio Fire Control Panel

SAFETY SUMMARY
Installation Precautions Adherence to the following will aid in problem-free installation with long-term reliability:
Warning – Several different sources of power can be connected to this fire alarm control panel. Disconnect all sources of power before servicing. Control unit and associated equipment may be damaged by removing and/or inserting cards, modules, or interconnecting cables while the unit is energized. Do not attempt to install, service, or operate this unit until this manual is read and understood.
CAUTION – System Re-acceptance Test after Re-Programming: To ensure proper system operation, this product must be tested in accordance with NFPA – 1996 Chapter 7 after any programming operation. Re acceptance testing is required after any change, addition or deletion of system components, or after any modification, repair or adjustment to system hardware or wiring.
All components, circuits and system operations known to be affected by a change must be 100% tested. In addition, to ensure that other operations are not inadvertently affected, at least 10% of initiating devices that are not directly affected by the change, up to a maximum of 50 devices, must also be tested and proper system operation verified.
This system meets NFPA requirements for operation at 0 to 49° C and at a relative humidity of 85% RH (non-condensing) @ 30°C. However, the useful life of the system’s standby batteries and the electronic components may be adversely affected by extreme temperature ranges and humidity. Therefore, it is recommended that this system and its peripherals be installed in an environment with a nominal room temperature of 60-80°F.
Like all solid state electronic devices, this system may operate erratically or can be damaged when subjected to lightning induced transients. Although no system is completely immune from lightning transients and interference, proper grounding will reduce susceptibility. The use of overhead or outside aerial wiring is not recommended due to the increased susceptibility to nearby lightning strikes. Consult with the Applications Engineering Department if any problems are anticipated or encountered.
Remove all electronic assemblies prior to any drilling, filing, reaming, or punching of the enclosure. When possible, make all cable entries from the sides. Before making modifications, verify that they will not interfere with battery and printed circuit board location.
Do not over tighten screw terminals, over tightening may damage threads, resulting in reduced terminal contact pressure and difficult with screw terminal removal.
This system contains static-sensitive components. Always ground yourself with a proper wrist strap before handling any circuits so that static charges are removed from the body. Use static suppressive packaging to protect electronic assemblies removed from the unit.
Follow the Instructions in the installation, operating, and programming manuals. These instructions must be followed to avoid damage to the control panel and associated equipment. FACP operation and reliability depend upon proper installation.
Fire Alarm System Limitations
While installing a fire alarm system may make lower insurance rates possible, it is not a substitute for fire insurance!
An automatic fire alarm system – typically made up of smoke detectors, heat detectors, manual pull stations, audible warning devices, and a fire alarm control with remote notification-capability can provide early warning of a developing fire. Such a system, however, does not assure protection against property damage or loss of life resulting from a fire.
Any fire alarm system may fail for a variety of reasons:
Smoke detectors may not sense fire where smoke cannot reach the detectors such as in chimneys, in walls, or roofs, or on the other side of closed doors. Smoke detectors also may not sense a fire on another level or floor of a building. A second floor detector, for example, may not sense a first floor or basement fire. Furthermore, all types of smoke detectors – both ionization and photoelectric types, have sensing limitations. No type of smoke detector can sense every kind of fire caused by carelessness and safety hazards such as smoking in bed, violent explosions, escaping gas, improper storage of flammable materials, overloaded electrical circuits, children playing with matches, or arson.
Audible warning devices such as bells, may not alert people if these devices are located on the other side of closed or partly open doors or are located on another floor of a building.
A fire alarm system will not operate without electrical power. If AC power fails, the system will operate from standby batteries only for a specified time.
Rate-of-Rise heat detectors may be subject to reduced sensitivity over time. For this reason, the rate-of-rise feature of each detector should be tested at least once per year by a qualified fire protection specialist.
Auxiliary Equipment used in the system may not be technically compatible with the control panel. It is essential to use only equipment listed for service with your control panel.
Telephone lines needed to transmit alarm signals from a premise to a central monitoring station may be out of service or temporarily disabled.
The most common cause of fire alarm malfunctions, however, is inadequate maintenance. All devices and system wiring should be tested and maintained by professional fire alarm installers following written procedures supplied with each device. System inspection and testing should be scheduled monthly or as required by National and/or local fire codes. Adequate written records of all inspections should be kept.
GENERAL SAFETY NOTICES
The following must be observed to maintain personnel safety. The following general safety notices supplement specific warnings and cautions appearing in the manual. The safety precautions in this section must be understood and applied during operation and maintenance. This manual is to be used by trained distributors/ technicians. The entire manual should be read and fully understood prior to installation.
TEST EQUIPMENT
Make certain test equipment is in good operating condition. Do not touch live equipment or personnel working on live equipment while holding a test meter. Some types of measuring devices should not be grounded; these devices should not be held when taking measurements.
FIRST AID
Any injury, no matter how slight, should never go unattended. Always obtain first aid or medical attention immediately.
GENERAL PRECAUTIONS
The following general safety precautions are to be observed at all times:
- All electrical components associated with equipment shall be installed and grounded in accordance with NEC, NFPA and local regulation requirements.
- Special precautionary measures are essential to prevent applying power to equipment at any time maintenance work is in progress.
- Before working on electrical equipment, use a voltmeter to ensure that system is not energized.
- When working near electricity, do not use metal rules, flashlights, metallic pencils, or any other objects having exposed conductive material.
- When connecting a meter to terminals for measurement, use range higher than expected voltage.
Scorpio™ Fire Control Panel
INSTALLATION, OPERATION AND MAINTENANCE
GENERAL FEATURES
- Microprocessor Based
- 24 Vdc Power Supply/Charger
- Transient and Noise Isolation
- Trouble Diagnostics
- Ground Fault Supervision
- Field Programmable
APPROVALS
- UL Listed to Standard 864, File #S2422
- FM Approved
- MEA Accepted MEA #339-94-E
- CSFM Listed #07165-1076:119
- ULC (This system meets ULC when used with Canadian options.)
GENERAL
This low cost, versatile, single hazard control panel supervises and controls one fire suppression system. Incorporation of state of the art microprocessor technology provides increased reliability. The control unit is compatible with KIDDE FM 200®, FE-13™, CO2, Industrial Dry Chemical, and Restaurant Wet Chemical suppression systems. It meets requirements of NFPA 72 and is UL listed per Standard 864. The control panel is approved for use in suppression systems covered by NFPA codes 12, 12A, 17, 17A, and 2001.
DETECTION
The control panel has two independent Style “B” initiating circuits. A total of 15 FENWAL® smoke detectors may be connected to each of these two initiating circuits. Contact type devices such as FENWAL DETECT-A-FIRE® heat detectors may also be connected to the same circuit. Total lead resistance of 50 ohms allows extended detection circuit wire runs. The unit may be programmed to activate its output functions on a single zone or two zone (cross zoned) input allowing flexibility for use in various types of applications. See Table 1 for UL listed compatible smoke detectors.
ALARMS
The control panel provides a single style “Y” supervised alarm output circuit for operating polarized signaling devices. The output pulses on first alarm, and is a steady output on second alarm. An independent form “C” dry contact is associated with each of the two alarm levels when programmed for two zone release. Alarm Relay 2 may also be configured to operate when the agent starts to release.
The alarm silence switch located on the operator interface board will silence the alarm signal output; however, a subsequent alarm will override the alarm silence switch.
SUPPRESSION AGENT RELEASE
The control panel drives a control head operated release valve so the unit can be used with either Pre-Engineered or Engineered suppression systems. The release circuit will activate two 24 Vdc control heads (Kidde P/N 48650001, 899175 or 890181).
MANUAL RELEASE
The control panel provides a fully supervised style “B” manual release circuit which will monitor normally open contact devices. This circuit can be programmed to have the following characteristics:
- No Time Delay
- Time Delayed
The manual release overrides the abort function. Refer tothe programming section for details of appropriate settings.
Table 1. Compatible Two-Wire Detectors and Bases
| New Series Detectors | New Series Bases | Previous Bases w/Adapter | |||
| Detector | CID | Base | CID | Base/MA001 | CID |
| CPD 7051** | 151FE1 | 2-Wire** | FE51A | 70-201000-001 | FE01A |
| PSD 7155** | P55FE1 | 2 WRB** | FE53A | 70-201000-003 | FE03A |
| PSD 7156** | P56FE1 | 2 WRB** w/LED | FE55A | 70-201000-005 | FE05A |
| *CPD 7051 and PSD 7155 Only ** For Canadian Version add C. | 2 WRLT** | FE52A | 70-201000-002 | FE02A | |
| DH-51** footnote * also applies | DS-22 FE5 | DH-22* | DH-22 FE1 | ||
ABORT FUNCTION
The control panel incorporates a fully supervised style “B” abort circuit which will monitor N.O. contact devices. The abort function is capable of three modes of abort. The three modes operate as follows:
Mode 1
Upon activation, timer will count down to and hold at 10 seconds; upon release, timer will continue to count down to zero. This mode complies with UL 864.
Mode 2
Upon activation, timer will reset to initial value; upon release, timer will continue to count down to zero.
IRI Mode
This function is similar to Mode 1 with the exception that the abort will only function if held prior to receiving the second alarm.
Agent release can be aborted with the exception of manual release. Activating the abort input will cause a trouble condition.
TIME DELAY
The control panel can be programmed for a 0 to 60 second delay at 10 second increments between alarm or manual release and release circuit activation. The abort function can be programmed to operate three ways as mentioned in the paragraph above. The manual release delay will stop at 30 seconds.
Note: Panels with software revision 06-235252-002 or earlier, made prior to date code 9735, can be programmed for a 30 second delay maximum.
SUPERVISION
The control panel is fully supervised. Supervision includes, but is not limited to the following:
- AC Power
- Abort Circuit (N.O.)
- Alarm Output
- Detection Circuits
- Ground Fault (±)
- Releasing Output
- Supervisory (N.O.)
- Manual Release (N.O.)
- Battery Connection
- Battery Voltage
The control panel provides 14 indicators which are visible with the front door closed (AC Power, Zone 1 Alarm & Trouble, Zone 2 Alarm & Trouble, Alarm Silence, Supervisory On, Supervisory Trouble and System Trouble, Manual Release Alarm & Trouble, Release Output Trouble, Abort Active, Abort Trouble). Additional troubleshooting of specific trouble can be done with the built in diagnostic features. See the following Troubleshooting/Indications section for instructions.
LAMP TEST
Use the following steps to test all LEDs on the Control Panel:
- Hold the RESET Switch down. All LEDs should light up.
- Release the RESET Switch. All LEDs should return to Normal.
TROUBLESHOOTING/INDICATIONS
Trouble conditions result in an audible signal and illumination of the trouble LED annunciator. The audible signal may be silenced by activating the silence switch on the operator interface board. The specific trouble condition is identified with the use of the built in diagnostic function.
The diagnostic mode is activated by holding down the silence switch for a full two (2) seconds. All LEDs will go off for approximately two (2) seconds. One or more of the indicator LEDs will illuminate as listed in the following Table.
Table 2. LED Trouble Indications
| LED | Trouble |
| POWER | AC Fault |
| ZONE 1 ALARM | Ground Fault |
| TROUBLE | Battery Fault |
| SUPERVISORY ON | Signal Circuit Open |
| SILENCE | Signal Circuit Short |
Any of the above mentioned trouble conditions will also activate the trouble relay form C contacts.
POWER SUPPLY
The control panel contains a 24 Vdc power supply with overload protection provided by electronic current limiting.
The control panel includes a built in battery charger and space for one set of 1.2 ampere-hour, sealed lead acid batteries to be housed within the enclosure to provide 24 hours of standby operation. The unit also includes a auxiliary 24 Vdc output for connection to a single UL listed
notification appliance located in the same room and interconnected in conduit. A trouble signal is generated if battery voltage falls below acceptable levels, or if the battery becomes disconnected.
* An optional battery cutout circuit is available (mandatory for use in Canada). The circuit protects the batteries from damage in the event of a long-term power failure.
Note: When installing or using the battery cutout circuit, AC must be applied before connecting the batteries
ENCLOSURE
The panel enclosure is rugged, 18 gauge steel painted red. A steel door is held closed by a key lock. All operator interface switches and indicators are located on the operator interface board behind the locked cover. The enclosure is of sufficient size to house the two 1.2 V 1.2 AH batteries required for standby power operation.
- An optional dead-front enclosure (P/N 06-235500-001) is available (mandatory for use in Canada). The dead front protects the user from access to any exposed wiring. See Figure 1 for installation.

PROGRAMMING
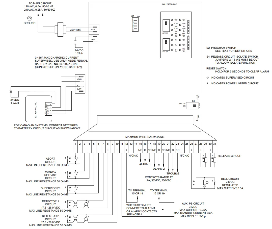
The control panel provides an 8 position DIP switch (S2) for setting of the programmable functions of the unit. These functions are set by placing the switch in either the ON or OFF position. The following paragraphs explain the functions and appropriate settings.
S2-1. Switch 2-1 allows the installer to program the control unit to activate the release output on activation of one alarm zone or both alarm zones (cross-zoned). S2-1 OFF = 2 zone release (cross-zoned), S2-1 ON = 1 zone release.
S2-2. Switch 2-2 is not used.
S2-3. Switch 2-3 allows the installer to program a delay for the manual release input circuit. The manual input circuit may be either delayed or not delayed. The same delays apply to this circuit when activated as to the detection circuits (to a maximum of 30 seconds). S2-3 OFF = immediate output, S2-3 ON = delayed.
S2-4, S2-5 & S2-6. Switches 2-4, 2-5 & 2-6 allow the installer to program the unit with the appropriate delay (0, 10, 20, 30, 40, 50 or 60 seconds), needed for the installation. Table 3 lists the switch positions and associated delays. (The manual release delay will delay for 30 seconds, maximum.)
Note: Panels with software revision 06-235252-002 or earlier, made prior to date code 9735, S2-6 = ON Enables the abort function, S2-6 = OFF Disables the abort function.
S2-7 & S2-8. Switches 2-7 and 2-8 allows the installer to program the desired Abort mode for the installation. There are three modes of Abort as explained in a previous section of this document. S2-7 OFF = Mode 1, S2-7 ON = Mode 2, S2-8 OFF = IRI Mode, S2-8 ON = Mode 1 or Mode 2 per S2-7.
Mode 2 and IRI Mode does not comply with UL 864.
Table 3. Switch Settings
| Time Delay | S4 | S5 | S6 |
| 0 sec. | OFF | OFF | OFF |
| 10 sec. | ON | OFF | OFF |
| 20 sec. | OFF | ON | OFF |
| 30 sec. | ON | ON | OFF |
| 40 sec. | ON | OFF | ON |
| 50 sec. | OFF | ON | ON |
| 60 sec. | ON | ON | ON |
ISOLATE SWITCH
W1 & W2. W1 & W2 are wire jumpers which allow the installer to enable the use of the isolate switch (S4). To enable the isolate switch cut both W1 & W2. When both jumpers are installed the isolate switch will not disable the release output circuit from activating the attached suppression system.
PROGRAMMABLE ALARM RELAY
W8 is a wire jumper which allows the installer to program Alarm Relay 2. To program the relay to activate on second alarm, cut W-8. Alarm Relay 2 is programmed to activate at the start of release when the wire jumper is installed.
BASIC OPERATING INSTRUCTIONS
Standby Condition
- Green POWER ON LED lit, all other LEDs and sounder off.
Alarm Condition – Panel Programmed for One Zone Mode
Upon receipt of an alarm from an activated detector:
- Red Zone 1 or Zone 2 ALARM LED lit.
- Sounder on.
- Signal circuit devices are activated and on steady.
- Programmed release time delay activated.
Upon receipt of an alarm from an activated manual station:
- Red Manual Station ALARM LED lit.
- Sounder on.
- Signal circuit devices are activated and on steady.
- Programmed release time delay activated.
Operation of SILENCE switch:
- Yellow SILENCE LED lit.
- Sounder off.
- Signal circuit devices off.
Operation of ABORT:
- Yellow ABORT ACTIVATE LED lit.
- Discharge is aborted ONLY when alarm is from a detector, and abort is activated during programmed re lease time delay. Abort sequence is dependent upon programming.
Alarm Condition – Panel Programmed for Two Zone Mode
Upon receipt of an alarm from one activated detector in one zone:
- Red Zone 1 or Zone 2 ALARM LEDs lit.
- Sounder on.
- Signal circuit device on for 1 second every 2 seconds.
Upon receipt of an alarm from a second activated detector in the other zone:
- Red Zone 1 and Zone 2 ALARM LEDs lit.
- Sounder on.
- Signal circuit devices on steady.
- Programmed release time delay activated.
Upon receipt of an alarm from an activated manual station:
- Red Manual Station ALARM LED lit.
- Sounder on.
- Signal circuit devices on steady.
- Programmed release time delay activated.
Operation of ABORT:
- Yellow ABORT ACTIVATE LED lit.
- Discharge is aborted ONLY when alarm is from a detector, and abort is activated during programmed release time delay. Abort sequence is dependent upon programming.
Supervisory Condition
Upon receipt of a supervisory signal:
- YELLOW SUPERVISORY LED lit.
- Sounder pulses for 1 second every 10 seconds.
Trouble Condition
Upon receipt of a trouble signal:
- YELLOW TROUBLE LED flashes.
- Sounder pulses for 1 second every 10 seconds.
All Programming Modes
Operation of SILENCE switch:
- Yellow SILENCE LED flashes.
- Sounder off.
- signal circuit devices off.
- A subsequent alarm will turn signal circuit devices on.
RECOMMENDED WIRING COLOR CODE FOR FIRE SUPPRESSION INSTALLATIONS
Wiring Color Code Single-Conductor Wires
Black = BK AC power hot
White = WH AC neutral
Green = GR Ground
WIRE SIZES
AC power feed: #14 minimum (#12 Max.)
All Others: #14, 16 or 18
BATTERY POWER
Batteries provide 24 hour standby supervision, plus 5 minute alarm load at the end of that time, contingent upon detection and output limitations stated herein. Panel loading and battery standby comply with NFPA 72. Batteries must be ordered separately.
Note: Batteries supplied with control panel should be placed in service within 3 months of shipment date if stored at approximately 70°F, or within one month if stored at 100°F. For longer storage time, they require charging per manufacturer’s specification to prevent permanent loss of capacity.
CAUTION
Before servicing batteries, disconnect AC power. Batteries should be replaced at least once every 36 months, or as directed by the local authority having jurisdiction. Do not install a battery set whose open circuit voltage is less than 22 volts.
INSTALLATION INSTRUCTIONS
Instructions for mounting (see Figure 2).
All installation wiring shall adhere to NFPA 70 (NEC) and all State and Local codes.
Position the system in a readily accessible and easily visible location approximately 4-1/2 feet from the floor. Ensure that there is a one-foot clearance in front of the system for the door.
The mounting surface must be flat and in an area that is relatively clean and dry

- Remove knockouts at top and bottom (beware of battery location on bottom of enclosure) as required.
- Insert mounting hardware (not provided) into wall, spaced to match key holes on back of box.
- Mount box on to the screws.
- Insert mounting hardware in remaining two holes in the bottom of the box and tighten all screws.
- See installation wiring diagram for further instructions.

INSTALLATION NOTES
- End of line resistors are 10K ohm. 1/2 watt. These resistors are not supplied with panel, but available as part no. 06-129520-001 (kit of 50).
- Maximum number of smoke detectors per circuit is 15.
- Release devices: See Figures 4 and 5 for wiring.
- The non-supervised aux power supply circuit is only intended to supply up to 0.25 A to power a single 24 VDC notification appliance when installed in the same room and with all wiring in conduit. The connection to this device must include a N.O. Alarm contact relay closure.
- The trouble contacts are marked with the panel either de-energized (no power) or in trouble condition. The relay is energized and the contacts change state on application of power to the panel. The relay is de-energized in trouble condition.
- If there are no devices connected to the release circuit, connect a 300 ohm, 2 watt resistor between terminals 28 and 31.
- Circuits marked with a circle (o ) are power limited; all field wiring must be routed away from ac in and battery wiring.
- If using a power limited power source, follow note 7. If using a non-power limited source, maintain a minimum 1/4” spacing from all power limited wiring.
- For ULC installations, all extended circuits shall not exceed 120 V nominal (150 V max to ground).
RELEASE CIRCUIT CONFIGURATIONS


CAUTION
Before installing a control head on any cylinder valve, ensure the control head is in the “SET” position (e.g., actuating pin or plunger is on the fully retracted or “SET” position.)
Electric control head P/N 48650001 is designed for installation on a 487 or ECS series control head only. Installation of this control head to any other device (e.g., pressure operated control head) will result in failure of device to operate when control head is actuated.
All solenoid control heads must be removed from the cylinders prior to testing to prevent accidental cylinder discharge.
Notes on 24 Vdc Release Circuit
- P/N 48650001 is a polarized control head. Improper wiring will result in failure of device to operate.
- The release circuit will activate for 90 seconds. At the end of the 90 seconds the output will de-energize
- When resetting an alarm condition, the reset switch should be depressed and held for five seconds to ensure smoke detector reset.
TECHNICAL SPECIFICATIONS
Input Power:
- 120 Vac, 50/60 Hz 0.5 A max.
- 240 Vac, 50/60 Hz 0.25 A max.
An impedance of 25K ohms from any field wiring terminal to ground except AC input power and relay outputs will cause a ground fault condition.
Panel 24 VDC Power Requirements:
- Standby Current: 35mA
- Alarm Current: 200mA
Auxiliary Power:
- 24 Vdc at 0.25A in alarm only
Output Circuit:
- One Style-Y signal circuit, 10K ohm EOL.
- Rated at 24 Vdc 0.5 A (max)
- Open circuit fault impedance: 13.5K ohms
- Short circuit fault impedance: 4.5K ohms
When programmed for two-zone operation, pulses on first alarm, steady output on second alarm.
Relay Outputs:
- Alarm 1 relay (activates on 1st zone in alarm)
- Alarm 2 relay (activates on 2nd zone in alarm or start of release)
Note: When set up is for a single zone release, S1=ON, Alarm 1 and Alarm 2 relays will both activate on first alarm.
- Trouble relay (normally energized)
- All are Form C, rated 2A @ 250 Vac/30 Vdc
Note: For ULC installations, the form C relays are rated for 120 V AC (150 V max to ground).
Release Output, Solenoid Style
Output circuit capable of activating 2 of the following control heads P/Ns:
- 48650001
- 890181
- 899175
Output held ON for 90 seconds. Circuit is power limited and supervised on terminals 28-31.
- Open circuit fault impedance: 1.7K ohms
UL Compatibility Identifier Number: C30FE1
Two Detection Circuits:
Output voltage: 17.3 – 26.0 Vdc
Max. number of 2 wire smoke detectors per circuit: 15
Maximum line resistance: 50 Ohms
Operation: Style B, 10K ohm EOL.
See Table 1 for 2-wire detector compatibility
- Open circuit fault impedance: 22K ohms
Auxiliary Inputs:
- Supervisory Input, Style B, 10K ohm EOL.
- Manual Release Input, Style B, 10K ohm EOL.
- Abort Input, Style B, 10K ohm EOL.
- Open circuit fault impedance for Abort, Supervisory and Manual release: 22K ohms
Isolation Switch:
Disconnects the release output. Available by cutting jumpers W1 and W2.
Standby Batteries:
Requires (2) 12 Vdc 1.2A-H sealed lead acid batteries for 24 hour standby operation/5 minute alarm operation at maximum rated load. Order separately
Battery Charger Output:
- Nominal Standby Load: 35 mA
- Maximum Charging Current 0.48 A
Time Delay to Discharge:
0, 10, 20, 30, 40, 50, or 60 seconds field selectable.
Dimensions (nominal): 13.25”H x 11.0”W x 2.30”D
ORDERING INFORMATION
DESCRIPTION PART NO.
Scorpio Control Panel 84-232000-102
Above panel (240 Vac input) 84-232000-104
(1) Battery 12 Vdc 1.2 A-H 06-115915-020
Accessory Kit (50 10K EOL resistors) 06-129520-001
Extra Operating Instruction Sheet 06-235883-001
Spare Scorpio Circuit Board 06-129800-002
Extra Scorpio Key 06-118013-001
Canadian Scorpio 84-232000-202
Canadian Scorpio (240 Vac Input) 84-232000-204
TECHNICAL MANUAL USER FEEDBACK FORM
Use this report to indicate deficiencies, user remarks and recommendations relating to the publication. Fold on dotted line, tape and mail to KIDDE-FENWAL, Inc., 400 Main Street, Ashland, MA 01721, Attn. Documentation Manager or FAX to 508-881-8920)
| 1. PART NUMBER | 2. VOLUME NO. | 3. TITLE (NOMENCLATURE) | 4. CHANGE NO. OR REV. DATE | 5. SYSTEM/EQUIPMENT | 6. PRIORITY OF COMMENT |
| 7. USER EVALUATION MANUAL IS: EXCELLENT GOOD FAIR POOR COMPLETE INCOMPLETE | |||||
| 8. PROBLEM QUESTION SUGGESTION COMMENT: (check one) | |||||
| 9. RECOMMENDED CHANGE TO PUBLICATION | |||||
| PAGE NO. | PARAGRAPH NO. | LINE NO. | FIGURE NO. | RECOMMENDED CHANGES AND REASON (Use Blank Continuation Sheets as Required) | |
| 10. ORIGINATOR | 11. COMPANY NAME | ||||
| 13. KIDDE-FENWAL USE ONLY | |||||
| a. Received | b. Action Necessity | c. Priority | d. Comments | ||
KIDDE-FENWAL, Inc.
400 Main Street
Ashland, MA 01721
Attn. Documentation Manager
LIMITED WARRANTY STATEMENT
Kidde-Fenway, Inc. represents that this product is free from defects in material and workmanship, and it will repair or replace any
product or part thereof which proves to be defective in workmanship or material for a period of twenty-four (24) months from the date
shipment by Kidde-Fenway Inc. For a full description of Kidde-Fenway’s LIMITED WARRANTY, which, among other things, limits the
duration of warranties of MERCHANTABILITY and FITNESS FOR A PARTICULAR PURPOSE and EXCLUDES liability for CONSEQUENTIAL DAMAGES, please read the entire LIMITED WARRANTY on the Kidde-Fenway Quotation, Acceptance of Order and/or
Original Invoice which will become part of your sales agreement. Please contact Kidde-Fenway directly for a return material authorization (RMA) number before returning material to the factory at Ashland, Massachusetts, shipment prepaid. Kidde-Fenway will repair
or replace and ship prepaid.
These instructions do not purport to cover all the details or variations in the equipment described, nor do they provide for every possible contingency to be met in connection with installation, operation and maintenance. All specifications subject to change without notice. Should further information be desired or should particular problems arise which are not covered sufficiently for the purchaser’s purposes, the matter should be referred to KIDDE-FENWAL, INC., Ashland, Massachusetts
CUSTOMER SUPPORT
KIDDE-FENWAL, INC.
400 MAIN STREET
ASHLAND, MA 01721
(508) 881-2000
FAX: (508) 881-8920






















