UNI-SP-01XX Universal Side of Pole Mount
Installation Guide
Introduction
These Side of Pole Mounts are simple and universal pole mounting solution for photovoltaic modules.
These mounts can be installed on 2”to 4” sch-40 pipe with OD of 2-3/8” to 4-1/2”, flat surfaces, and on a 25G ROHN tower frame and they have user-adjustable angle settings from 30 to 60 degrees.
Customer Support
Tamarack Solar makes every effort to ensure your Pole Mount is easy to install. If you need assistance at any point in your installation or have suggestions on how we can improve your experience, call customer support at 1-800-819-7236 ext 556 or email us at [email protected]
Tools Required and Torque Settings
Torque values for are in the table below. Anti-seize lubricant on bolts is recommended. A torque wrench and the three sockets listed below are required.
| Bolts Size | Socket Size | Foot-Pounds/(Inch-Pounds)Dry Threads | Foot-Pounds/(Inch-Pounds) With Anti-sieze on threads |
| 5/16 inch | ½ inch | 11 / (132) | 9 / (112) |
| ¼ inch | 7/16 inch | 6 / (75) | 5 / (64) |
| Band Clamp | 5/16 inch | 3 / (35) | N/A |
Components List
The following parts are used in the Braced 2 bucket SOP mount models. Spare hardware is supplied. See the following page for images of these parts
| SP Mounts | Quantity of each part needed in each mount assembly | ||||||||
| Mount Model >>>»» | sp/oixx | sp/02 | sp/02A | sp/02x | sp/03 | sp/03w | |||
| Part # | Description of part | ||||||||
| 51-3517-200 | Bucket, 25.5″ | 2 | 2 | 2 | |||||
| 51-3517-242 | Bucket, 35.6″ | 2 | 2 | 2 | |||||
| 51-3517-243 | Clip, left | 2 | 2 | 2 | 2 | 2 | 2 | ||
| 51-3517-244 | Clip Right | 2 | 2 | 2 | 2 | 2 | 2 | ||
| 51-0530-000 | Panel Support Rail, 30′ | 2 | |||||||
| 51-0545-002 | Panel Support Rail, 45″ | 2 | |||||||
| 51-0555-001 | Panel Support Rail, 55″ | 2 | 2 | ||||||
| 51-0580-011 | Panel Support Rail, 70″ | 2 | 2 | ||||||
| 51-0519-000 | Brace Rail, 19″ Outer | 2 | 2 | 2 | 2 | ||||
| 51-0519-001 | Brace Rail, 19″ Inner | 2 | 2 | 2 | 2 | ||||
| 51-3029-000 | Brace Rail, 29″ Outer | 2 | 2 | ||||||
| 51-3029-001 | Brace Rail, 29″ Inner | 2 | 2 | ||||||
| 27-5000-010 | Hose Clamp 5″ | 4 | 4 | 4 | 4 | 4 | 4 | ||
| Hardware | Mount Model >>>»» | sp/otxx | sp/02 | sp/02A | sp/02x | sp/03 | sp/03w | ||
| 29-5002-000 | Spare Hardware 1/4 + 5/16 x 3/4 | 1 | 1 | 1 | 1 | 1 | |||
| 1 | |||||||||
| 29-5000-000 | Module Mounting Hardware | 2 Sets | 3 Sets | ||||||
| 23-2520-050 | Bolt, 1/4-20 x .75 SS | 4 | 4 | 4 | 4 | 4 | 4 | 2 | |
| 25-2502-000 | Washer, flat 1/4 SS | 8 | 8 | 8 | 8 | 8 | 8 | 2 | |
| 25-2501-000 | Washer, lock 1/4″ SS | 4 | 4 | 4 | 4 | 4 | 4 | 2 | |
| 24-2520-440 | Nut, 1/4-20 Fin Hex SS | 4 | 4 | 4 | 4 | 4 | 4 | 2 | |
| 29-5001-000 | Mount Assembly Hardware | 3 Sets | |||||||
| 23-3118-021 | Bolt 5/16-18×3/4 Hex SS | 8 | 8 | 8 | 8 | 8 | 8 | 2 | |
| 24-3118-440 | Nut, 5/16-18 Hex SS | 8 | 8 | 8 | 8 | 8 | 8 | 2 | |
| 25-3101-000 | Washer, lock 5/16 Med Split SS | 8 | 8 | 8 | 8 | 8 | 8 | 2 | |
| 25-3102-000 | Washer, flat 5/16 SS | 16 | 16 | 16 | 16 | 16 | 16 | 2 | |
Component views
The following parts are used across various models of our Side of Pole mount and ship with necessary hardware: 
Optional Components For Mounting (not included)
For High Wind Locations (see page 8)
1 pair: 1/2” – 13 x 2”, 3”, or 4” U-Bolts
With Flat and Lock Washers and Nuts per bucket
For mounting to a wooden pole 5”
in Diameter or Larger (see page 8)
2 sets per bucket: 1/2”x 3” (or longer) Lag bolts and wide washers
For mounting on a 25G Rohn tower (see page 8)
4 per bucket, hose clamps, 1 9/16” to 2 1/2” range![]()
Step 1. Measure PV Mounting Hole Distance
A. Lay the module(s) face down on a protected surface in the suitable orientation. Leave approximately 1/4” or more space between panels if more than one.
B. Measure the center-to-center distance between the inside mounting holes on the back of the PV module as shown and make a note of it. (Measure across the panel if mounting one panel in portrait.)
Step 2. Mounting Rail Supports on PV Module
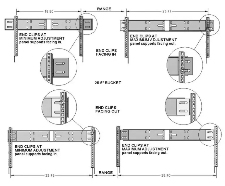
A. Review the reference diagrams to determine the orientation of the panel support rails and the end clips, based on the center to center range of your module(s) and the length of the bucket in your mount model. (See next page for 25.5” bucket range and common detail views)
B. Determine panel spacing and secure the rails with a 1/4-20 x 3/4” bolt, lock washer, and hex nut in each of the PV mounting holes (4 on each panel). Tighten the bolts to 84 in-lbs (see page 6)

Step 3. Attaching Clips to Rails for the top bucket
A. Attach the clips to the rails as determined by the bucket range diagrams.
(Shown in previous step). Example shown has the clips facing in on the inside of the rails that are facing out. (Note the orientation of the curved slot)
B. In each of the clip mounting holes, use a 5/16-18 x 3/4” bolt and flat washer on one side and a flat washer, lock washer and nut on the other. Tighten these bolts finger tight only at this time (these will torque to 144 in-lbs. after assembly is finished and tilt angle is final.)
Step 4. Attaching Upper Bucket to the Pole
A. Unscrew the hose clamp to release the end and thread each hose clamp through the sets of narrow center slots in the top bucket as shown and place at the desired location on the pole.
B. Once the top bucket in the desired position, tighten the hose clamp screws to 35 in-lbs.
Note: Always recheck torque on hose clamps after exposure to windy conditions.
Optional Mounting Methods – Installer must supply additional hardware
In high loading conditions, in conjunction with the hose clamps, add the optional 1/2-13 U-Bolts as appropriate for the pipe size being used. tighten securely but take care not to deform the bucket 
Use (optional) 1/2” lag bolts as appropriate to the wooden structure being mounted to (telephone pole or post). Tighten securely but take care not to deform the bucket.
Use eight hose clamps to attach buckets to a 25G Rohn tower.
Step 5. Mounting PV Assembly on Pole
A. Place the PV module assembly so the holes on the clips line up with holes in the inside of the bucket.
Depending on the size of the panel you started with, your assembly may look different than what is shown in the provided view, with the clips and rails facing in the opposite direction.
B. Attach the clips to the bucket. In each of the 4 mounting holes, use a 5/16-18 x 3/4” bolt and flat washer on one side and a washer, lock washer and nut on the other. Tighten bolts to 144 in-lbs.
C. Prop up the array to the desired angle and tighten the bolts to 144 in-lbs. but leave the prop in place while installing the second bucket and brace rails.
D. Install the lower bucket loosely to the pole so it can be moved up or down for adjustment to install the brace rails.
E. Loosely install the left and right clips to the lower bucket facing the same direction as the clips on the upper bucket. Note position of the curved slot.
Step 6: Assembling Inner\Outer Brace Rails
A. Determine the best mounting holes on the panel support to install the inner\outer brace rails that would best keep them as close as possible to a right angle and keep the maximum overlap of the inner\outer brace rails.
B. Line up an inner and outer support rail as shown so that two of the holes in the rails line up that are closest to the ends of the rails. See the table on the next page for suggested Brace Rail length to achieve the desired solar module angle.
C. Bolt the rails together using a 5/16-18 x 3/4” bolt and flat washer on one side, and a flat washer, lock washer and nut on the other. Tighten the bolts to 144 in-lbs.
D. Repeat with the second set of support rails.
Step 7: Attaching Brace Rails
A. For each of the two pre-assembled brace rails, loosely bolt one end of the rail end to the panel supports and the other end to the corresponding clips, (move lower bucket up or down for alignment and ) using 5/16-18 x 3/4” bolts and flat, lock washer, hex nut. torque to 144 in-lbs and torque the hose clamps to 35 inch-lbs on the lower bucket.
B. Do a final check that all hardware is torqued to specification.
Angle adjustment dimension – see table and drawing below:
| Side of Pole Model # | Module Rail Length A | Module Rail Tilt Angle Degrees from Horizontal B | Distance to Brace on Module Support Rail C | Brace Length D | Distance Between Buckets E |
| UNI-SP/01XX | 30 inch | 30 | 21. | 25 | 22. |
| 40 | 21. | 25 | 28.0 | ||
| 50 | 21. | 25 | 34. | ||
| 60 | 21. | 21 | 34. | ||
| UNI-SP/02 | 45 inch | 30 | 32. | 31 | 22. |
| 40 | 32. | 31 | 33 | ||
| 50 | 32. | 31 | 41. | ||
| 60 | 32. | 25 | 41. | ||
| UNI-SP/02A UNI-SP/02X | 55 inch | 30 | 39. | 36 | 19 |
| 40 | 39. | 36 | 39. | ||
| 50 | 39. | 31 | 42 | ||
| 60 | 39. | 25 | 44. | ||
| UNI-SP/03 UNI-SP/03W | 70 inch | 30 | 51. | 47. | 28. |
| 40 | 51. | 44.0 | 45. | ||
| 50 | 51. | 39.0 | 54 | ||
| 60 | 51. | 32. | 54 |
Installer Responsibility
The installer is solely responsible for:
i. Complying with all applicable local or national building codes, including any that may supersede this manual;
ii. Ensuring that Tamarack Solar and other products are appropriate for the particular installation and the
installation environment;
iii. Using only Tamarack Solar parts and installer-supplied parts as specified by Tamarack Solar. Substitution parts may void the warranty;
iv. Ensuring safe installation of all electrical aspects of the PV array; and
v. Ensuring correct and appropriate design parameters are used in determining the design loading used for the specific installation. Parameters, such as snow loading, wind speed, exposure and topographic factor should be confirmed with the local building official or a licensed professional engineer.
Warranty Information
Tamarack Solar warrants each Mounting Structure to be free from defects in materials and workmanship for ten (10) years from the date of first purchase (“Warranty Period”), when installed properly and used for the purpose for which it is designed, except for the finish, which shall be free from visible peeling, or cracking or chalking under normal atmospheric conditions for a period of three (3) years, from the earlier of 1) the date the installation of the Product is completed, or 2) 30 days after the purchase of the Product by the original Purchaser (“Finish Warranty”). The Finish Warranty does not apply to any foreign residue deposited on the finish.
All installations in corrosive atmospheric conditions are excluded. The Finish Warranty is VOID if the practices specified by AAMA 609 & 610-02 – “Cleaning and Maintenance for Architecturally Finished Aluminum” (www.aamanet.org) are not followed by Purchaser for Tamarack Solar’s aluminum based products. The warranty covers the replacement cost of parts to repair the product to proper working condition. Transportation and incidental costs associated with warranty items are not reimbursable. The warranty does not cover normal wear, or damage resulting from misuse, abuse, improper installation, negligence, or accident, or typographical errors in instruction manuals. The Warranty does not cover any defect that has not been reported in writing to Tamarack Solar within ten (10) days after discovery of such defect. Furthermore, it does not cover units that have been altered, or repaired without written authorization from the manufacturer or its authorized representative, or units used in a manner or for a purpose other than that specified by the manufacturer. Tamarack Solar’s entire liability and Purchaser exclusive remedy, whether in contract, tort or otherwise, for any claim related to or arising out of breach of the warranty covering the Mounting Structures shall be correction of defects by repair, replacement, or credit, at Tamarack Solar’s discretion. Refurbished Mounting Structures may be used to repair or replace the Mounting Structures
Tamarack Solar shall have no liability for any injuries or damages to persons or property resulting from any cause, whatsoever, or any claims or demands brought against Tamarack Solar by Purchaser, any employee of Purchaser, client of Purchaser, end-user of the Product or other party, even if Tamarack Solar has been advised of the possibility of such claims or demands (collectively, “Third Party Claims”). This limitation applies to all materials provided by Tamarack Solar during and after the Warranty Period.
[email protected]
1-800-819-7236 ext 556
Installer Responsibility
















